Maison à construire à Laigné-en-Belin (72220)
Images
Description
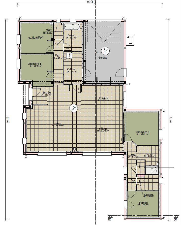
VENTE : maison F4 (143 m²) à Laigné-en-Belin
PROCHE GARE - MAISON 4 PIÈCES NEUVE
En vente à deux pas du Mans, ayez le coup de coeur pour cette maison de 4 pièces de plain-pied de 143 m² et de 415 m² de terrain dans Laigné-en-Belin (72220), proche de la gare. Son intérieur dispose de quatre chambres, d'une cuisine et de deux salles de bains.
La maison est neuve.
Il y a l'École Primaire Publique Jean-Baptiste Galan et le Lycée Agricole Privé les Horizons-Site de Saint Gervais à moins de 10 minutes à pied. Côté transports en commun, on trouve la gare Laigné-Saint-Gervais dans les environs. On trouve un accès à l'autoroute A28 à 9 km. Il y a un tennis, trois commerces, trois boulangeries, un supermarché et une boucherie-charcuterie à quelques minutes.
Elle est à vendre pour la somme de 375 000 €.
Contactez François HOUDAYER ((Numéro supprimé)) pour toute question sur la maison. Maine Construction Le Mans est là pour vous accompagner dans toutes vos démarches.
Logement susceptibles de vous intéresser
Nous vous proposons de découvrir aussi cette sélection de logements situés à moins de 10km de Laigné-en-Belin et qui seraient susceptibles de vous intéresser.
Teloché
TERRAINTeloché : terrain de 368 m² en venteIDÉALEMENT SITUÉ – VUE DÉGAGÉEÀ Teloché (72220) en vente à 12 km du Mans, venez découvrir ce terrain de 368 m². Ce terrain, avec vue dégagée, bénéficie d’une exposition sud. Dans un quartier prisé, le terrain idéalement situé est proche des commerces et des écoles. Il y a l’École Élémentaire Publique Au Fil du Rhonne, l’École Maternelle Publique Croque Lune, l’École Primaire Privée Sainte Thérèse-Saint Joseph et le Collège Privé Saint Jean Baptiste de la Salle à moins de 10 minutes à pied. Niveau transports en commun, on trouve trois gares (Laigné-Saint-Gervais, Écommoy et Arnage) à moins de 10 minutes en voiture. L’autoroute A28 est accessible à 8 km. Il y a un tennis, une bibliothèque, deux boulangeries, deux commerces, une boucherie-charcuterie et une supérette à proximité.Son prix de vente est de 44 000 €. N’hésitez pas à prendre contact avec François HOUDAYER (tél : (Numéro supprimé)) pour toute question sur le terrain. Donnez vie à vos projets immobiliers avec Maine Construction Le Mans.
Teloché
TERRAIN ET MAISONVENTE : maison F7 (114 m²) à TelochéIDÉALEMENT SITUÉE – MAISON 7 PIÈCES NEUVEÀ 12 km du Mans, nous vous présentons en vente, idéalement située dans Teloché (72220), cette maison de 7 pièces de plain-pied de 114 m² et de 368 m² de terrain.Elle dispose de trois chambres, d’une cuisine et de deux salles de bains. La maison est neuve.Cette maison se trouve dans un secteur prisé. L’École Élémentaire Publique Au Fil du Rhonne, l’École Maternelle Publique Croque Lune, l’École Primaire Privée Sainte Thérèse-Saint Joseph et le Collège Privé Saint Jean Baptiste de la Salle sont implantés à moins de 10 minutes à pied. Côté transports, il y a les gares Laigné-Saint-Gervais, Écommoy et Arnage à moins de 10 minutes en voiture. L’autoroute A28 est accessible à 8 km. On trouve un tennis, une bibliothèque, deux boulangeries, deux commerces, une supérette et une boucherie-charcuterie à quelques minutes du logement.Son prix de vente est de 285 000 €.Contactez notre agence (François HOUDAYER : (Numéro supprimé)) pour obtenir de plus amples informations sur la maison ou sur les démarches à suivre. Maine Construction Le Mans est là pour vous accompagner à toutes les étapes de votre projet.
Teloché
TERRAIN ET MAISONTeloché : maison T4 (122 m²) à vendreIDÉALEMENT SITUÉE – MAISON 4 PIÈCES NEUVEÀ 12 km du Mans, nous sommes ravis de vous présenter en vente, idéalement située dans Teloché (72220), cette maison de 4 pièces de plain-pied de 122 m² et de 368 m² de terrain.Conçue de plain-pied, elle propose deux chambres, une cuisine et une salle de bains. Cette maison est neuve.La maison se situe dans un secteur attractif. L’École Élémentaire Publique Au Fil du Rhonne, l’École Maternelle Publique Croque Lune, l’École Primaire Privée Sainte Thérèse-Saint Joseph et le Collège Privé Saint Jean Baptiste de la Salle se trouvent à moins de 10 minutes à pied. Niveau transports, il y a trois gares (Laigné-Saint-Gervais, Écommoy et Arnage) à moins de 10 minutes en voiture. Il y a un accès à l’autoroute A28 à 8 km. On trouve un tennis, une bibliothèque, deux boulangeries, deux commerces, une supérette et une boucherie-charcuterie dans les environs.Elle est proposée à l’achat pour 295 000 €.Prenez contact avec François HOUDAYER ((Numéro supprimé)) pour tout renseignement sur la maison ou sur les démarches à suivre. Maine Construction Le Mans est là pour vous accompagner à toutes les étapes de votre projet.
Teloché
TERRAIN ET MAISONMaison de 3 pièces (71 m²) en vente à TelochéIDÉALEMENT SITUÉE – MAISON 3 PIÈCES NEUVEÀ deux pas du Mans, en vente idéalement située dans Teloché (72220), nous vous proposons cette maison de 3 pièces de plain-pied de 71 m².Elle compte deux chambres, une cuisine et une salle de bains. La maison est neuve.Le terrain du bien s’étend sur 368 m².La maison se trouve dans un quartier prisé. L’École Élémentaire Publique Au Fil du Rhonne, l’École Maternelle Publique Croque Lune, l’École Primaire Privée Sainte Thérèse-Saint Joseph et le Collège Privé Saint Jean Baptiste de la Salle sont implantés à moins de 10 minutes à pied. Côté transports en commun, il y a trois gares (Laigné-Saint-Gervais, Écommoy et Arnage) à moins de 10 minutes en voiture. L’autoroute A28 est accessible à 8 km. On trouve un tennis, une bibliothèque, deux boulangeries, deux commerces, une boucherie-charcuterie et une supérette à quelques minutes à peine.Elle est à vendre pour la somme de 186 000 €.Contactez notre agence (François HOUDAYER : (Numéro supprimé)) pour plus de renseignements sur la propriété ou sur les modalités de vente. Maine Construction Le Mans est là pour vous accompagner à toutes les étapes de l’achat.
Teloché
TERRAIN ET MAISONTeloché : maison de 4 pièces (108 m²) en venteIDÉALEMENT SITUÉE – MAISON 4 PIÈCES NEUVEEn vente à quelques kilomètres du Mans, nous vous présentons, idéalement située dans Teloché (72220), cette maison de 4 pièces de 108 m² et de 368 m² de terrain.Il s’agit d’une maison de 2 niveaux. Son intérieur est composé de quatre chambres, d’une cuisine et de deux salles de bains. Cette maison est neuve.La maison est située dans un quartier recherché. Il y a l’École Élémentaire Publique Au Fil du Rhonne, l’École Maternelle Publique Croque Lune, l’École Primaire Privée Sainte Thérèse-Saint Joseph et le Collège Privé Saint Jean Baptiste de la Salle à moins de 10 minutes à pied. Niveau transports en commun, on trouve les gares Laigné-Saint-Gervais, Écommoy et Arnage à moins de 10 minutes en voiture. Il y a un accès à l’autoroute A28 à 8 km. Il y a un tennis, une bibliothèque, deux boulangeries, deux commerces, une supérette et une boucherie-charcuterie à proximité du bien.Son prix de vente est de 269 000 €.N’hésitez pas à prendre contact avec François HOUDAYER (tél : (Numéro supprimé)) pour obtenir de plus amples renseignements sur la maison ou sur les démarches à suivre.
Teloché
TERRAIN ET MAISONMaison de 8 pièces (150 m²) à vendre à TelochéIDÉALEMENT SITUÉE – MAISON 8 PIÈCES NEUVEEn vente : localisée à 12 km du Mans, ayez le coup de coeur pour, idéalement située dans Teloché (72220), cette maison de 8 pièces de 150 m² et de 368 m² de terrain.Il s’agit d’une maison de 2 niveaux. Elle comporte six chambres, une cuisine et deux salles de bains. Cette maison est neuve.Le bien se trouve dans un quartier convoité. L’École Élémentaire Publique Au Fil du Rhonne, l’École Maternelle Publique Croque Lune, l’École Primaire Privée Sainte Thérèse-Saint Joseph et le Collège Privé Saint Jean Baptiste de la Salle sont implantés à moins de 10 minutes à pied. Côté transports, on trouve trois gares (Laigné-Saint-Gervais, Écommoy et Arnage) à moins de 10 minutes en voiture. On trouve un accès à l’autoroute A28 à 8 km. Il y a un tennis, une bibliothèque, deux boulangeries, deux commerces, une boucherie-charcuterie et une supérette à proximité.Il est à vendre pour la somme de 412 000 €.Contactez François HOUDAYER (tél : (Numéro supprimé)) pour plus d’informations sur la maison, sur les modalités de vente ou sur les démarches à suivre.
Teloché
TERRAIN ET MAISONVENTE : maison T4 (115 m²) à TelochéIDÉALEMENT SITUÉE – MAISON 4 PIÈCES NEUVEEn vente : à quelques kilomètres du Mans, idéalement située dans Teloché (72220), votre agence Maine Construction Le Mans est heureuse de vous proposer cette maison de 4 pièces de plain-pied de 115 m² et de 368 m² de terrain.Son intérieur inclut trois chambres, une cuisine et deux salles de bains. Cette maison est neuve.La maison se situe dans un quartier prisé. On trouve l’École Élémentaire Publique Au Fil du Rhonne, l’École Maternelle Publique Croque Lune, l’École Primaire Privée Sainte Thérèse-Saint Joseph et le Collège Privé Saint Jean Baptiste de la Salle à moins de 10 minutes à pied. Niveau transports en commun, il y a trois gares (Laigné-Saint-Gervais, Écommoy et Arnage) à moins de 10 minutes en voiture. On trouve un accès à l’autoroute A28 à 8 km. On trouve un tennis, une bibliothèque, deux boulangeries, deux commerces, une supérette et une boucherie-charcuterie dans les environs.Son prix de vente est de 286 000 €.N’hésitez pas à prendre contact avec François HOUDAYER ((Numéro supprimé)) pour toute information sur la maison. Faites de vos projets immobiliers une réalité avec Maine Construction Le Mans.
Teloché
TERRAIN ET MAISONTeloché : maison de 5 pièces (104 m²) en venteIDÉALEMENT SITUÉE – MAISON 5 PIÈCES NEUVEÀ vendre : située à deux pas du Mans, Maine Construction Le Mans vous présente cette maison de 5 pièces de plain-pied de 104 m², idéalement située dans Teloché (72220). Son intérieur comporte quatre chambres, une cuisine et une salle de bains.Le terrain du bien est de 368 m².Cette maison est neuve.Cette maison se trouve dans un quartier recherché. Il y a l’École Élémentaire Publique Au Fil du Rhonne, l’École Maternelle Publique Croque Lune, l’École Primaire Privée Sainte Thérèse-Saint Joseph et le Collège Privé Saint Jean Baptiste de la Salle à moins de 10 minutes à pied. Niveau transports en commun, on trouve les gares Laigné-Saint-Gervais, Écommoy et Arnage à moins de 10 minutes en voiture. On trouve un accès à l’autoroute A28 à 8 km. Il y a un tennis, une bibliothèque, deux boulangeries, deux commerces, une supérette et une boucherie-charcuterie à quelques minutes de la maison.Son prix de vente est de 259 000 €.Prenez contact avec François HOUDAYER (tél : (Numéro supprimé)) pour obtenir de plus amples renseignements sur la maison, sur les modalités de vente ou sur les démarches à suivre. Maine Construction Le Mans est là pour vous accompagner à toutes les étapes de votre projet.
Teloché
TERRAIN ET MAISONMaison T4 (83 m²) en vente à TelochéIDÉALEMENT SITUÉE – MAISON 4 PIÈCES NEUVEÀ vendre à deux pas du Mans, ayez le coup de coeur pour, idéalement située dans Teloché (72220), cette maison de 4 pièces de 83 m² et de 368 m² de terrain.Cette maison compte 2 niveaux. Elle comporte trois chambres, une cuisine et une salle de bains. Cette maison est neuve.La maison se trouve dans un secteur recherché. Il y a l’École Élémentaire Publique Au Fil du Rhonne, l’École Maternelle Publique Croque Lune, l’École Primaire Privée Sainte Thérèse-Saint Joseph et le Collège Privé Saint Jean Baptiste de la Salle à moins de 10 minutes à pied. Niveau transports en commun, on trouve les gares Laigné-Saint-Gervais, Écommoy et Arnage à moins de 10 minutes en voiture. On trouve un accès à l’autoroute A28 à 8 km. Il y a un tennis, une bibliothèque, deux boulangeries, deux commerces, une supérette et une boucherie-charcuterie dans les environs.Elle est proposée à l’achat pour 210 000 €.Contactez François HOUDAYER ((Numéro supprimé)) pour toute question sur la maison.
L’actualité immobilière à Laigné-en-Belin
27/11/2023
02/11/2023
30/10/2023
20/10/2023
16/10/2023
16/10/2023