Images
Description
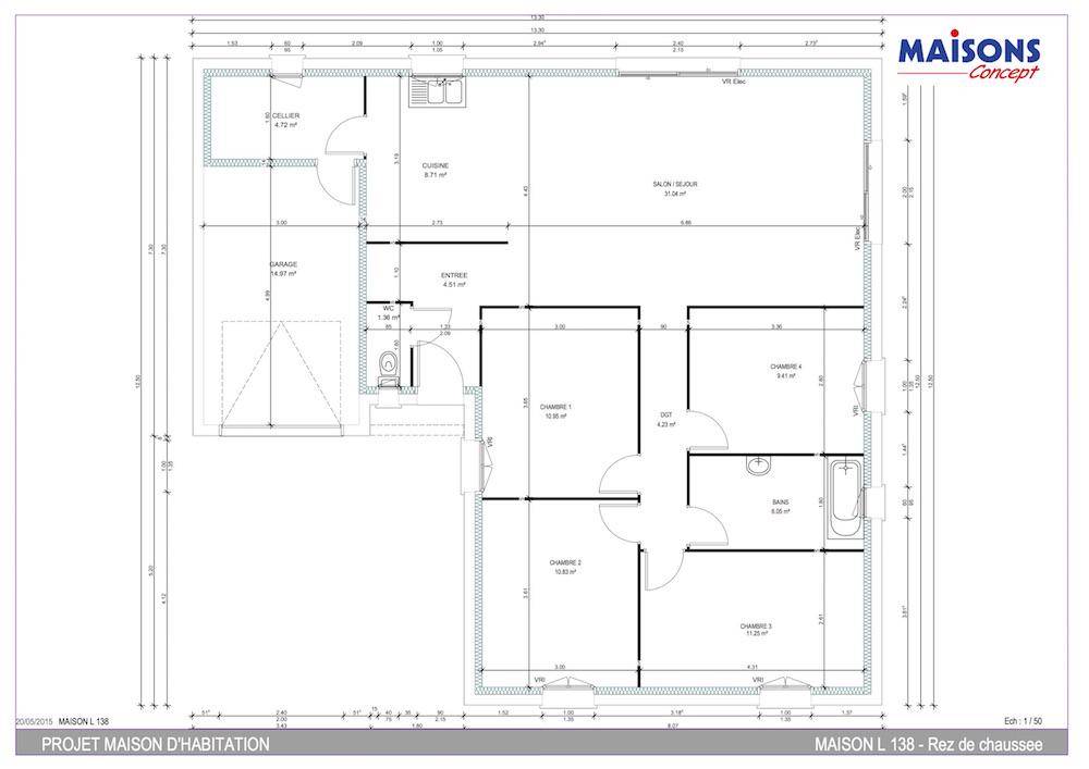
Nous vous proposons cette maison neuve, baptisée ""Élégance"", un modèle qui se distingue par sa forme architecturale en L, offrant à la fois style et fonctionnalité sur une surface habitable de 103 m². Conçue pour répondre aux attentes des plus exigeants, cette maison de plain-pied combine harmonieusement espace et confort, avec un total de 4 pièces, dont 4 chambres spacieuses, promettant ainsi un cadre de vie idéal pour toute la famille.
L'entrée s'ouvre sur un vaste salon-séjour baigné de lumière, grâce à sa conception ouverte qui s'étend jusqu'à la cuisine, créant un espace de vie convivial et accueillant. L'intégration d'un garage attenant et d'un cellier pratique souligne la pensée méticuleuse mise dans la conception de cette maison, visant à allier esthétique et fonctionnalité.
L'une des caractéristiques les plus appréciées de ce modèle est son enduit bi-ton, qui ajoute une touche de modernité et d'élégance à l'extérieur, reflétant le nom même de la maison. De plus, cette maison est entièrement personnalisable, vous permettant d'adapter chaque espace à votre mode de vie et à vos préférences, assurant ainsi que votre futur foyer réponde parfaitement à vos attentes.
Au-delà de son design attrayant, ""Élégance"" est une maison basse consommation, rigoureusement conçue pour respecter les normes de la RE2020. Cette caractéristique garantit non seulement un confort optimal tout au long de l'année mais aussi des économies significatives sur les factures d'énergie, soulignant notre engagement envers la durabilité et le respect de l'environnement.
En choisissant ""Élégance"", vous optez pour une maison qui allie beauté, confort et responsabilité environnementale. Une opportunité à ne pas manquer pour ceux qui cherchent à construire leur nid familial dans un cadre de vie à la fois moderne et économe en énergie.
Logement susceptibles de vous intéresser
Nous vous proposons de découvrir aussi cette sélection de logements situés à moins de 10km de Le Lude et qui seraient susceptibles de vous intéresser.
Le Lude
TERRAINNous vous proposons un magnifique terrain à vendre, d’une surface généreuse de 993 m², idéal pour réaliser votre projet de construction de maison. Situé à Dissé-sous-le-Lude dans le département de la Sarthe, cette parcelle entièrement viabilisée bénéficie d’un cadre champêtre paisible, vous permettant de profiter d’une qualité de vie exceptionnelle. Envisagez l’opportunité de bâtir la maison de vos rêves dans un environnement serein, entouré de nature. Située en plein cœur des Pays de la Loire, Dissé-sous-le-Lude offre un cadre de vie alliant tranquillité et accessibilité. Cette charmante commune est à proximité de commodités locales, tout en bénéficiant d’attractions naturelles et culturelles dans les environs. Vous pourrez profiter d’un cadre de vie agréable, avec des espaces verts, des sentiers de randonnée et un bon voisinage, le tout à quelques pas de services essentiels tels que commerces, écoles, et transports. Cette localisation présente une opportunité rare pour créer un foyer empreint de sérénité, tout en restant connecté à la communauté locale. Ne manquez pas cette occasion unique d’investir dans un terrain au potentiel exceptionnel à Dissé-sous-le-Lude. Envisagez dès maintenant votre futur projet immobilier dans un environnement idyllique. À noter qu’en tant que constructeur, nous ne sommes pas mandatés pour réaliser la vente de ce terrain.
Le Lude
TERRAIN ET MAISONNous vous proposons cette maison neuve, baptisée « »Élégance » », un modèle qui se distingue par sa forme architecturale en L, offrant à la fois style et fonctionnalité sur une surface habitable de 103 m². Conçue pour répondre aux attentes des plus exigeants, cette maison de plain-pied combine harmonieusement espace et confort, avec un total de 4 pièces, dont 4 chambres spacieuses, promettant ainsi un cadre de vie idéal pour toute la famille.L’entrée s’ouvre sur un vaste salon-séjour baigné de lumière, grâce à sa conception ouverte qui s’étend jusqu’à la cuisine, créant un espace de vie convivial et accueillant. L’intégration d’un garage attenant et d’un cellier pratique souligne la pensée méticuleuse mise dans la conception de cette maison, visant à allier esthétique et fonctionnalité.L’une des caractéristiques les plus appréciées de ce modèle est son enduit bi-ton, qui ajoute une touche de modernité et d’élégance à l’extérieur, reflétant le nom même de la maison. De plus, cette maison est entièrement personnalisable, vous permettant d’adapter chaque espace à votre mode de vie et à vos préférences, assurant ainsi que votre futur foyer réponde parfaitement à vos attentes.Au-delà de son design attrayant, « »Élégance » » est une maison basse consommation, rigoureusement conçue pour respecter les normes de la RE2020. Cette caractéristique garantit non seulement un confort optimal tout au long de l’année mais aussi des économies significatives sur les factures d’énergie, soulignant notre engagement envers la durabilité et le respect de l’environnement.En choisissant « »Élégance » », vous optez pour une maison qui allie beauté, confort et responsabilité environnementale. Une opportunité à ne pas manquer pour ceux qui cherchent à construire leur nid familial dans un cadre de vie à la fois moderne et économe en énergie.
Le Lude
TERRAIN4Venez découvrir ce superbe terrain à vendre, idéalement situé dans un cadre champêtre à Dissé-sous-le-Lude, dans le département de la Sarthe. Avec une surface généreuse de 1084 m², ce terrain viabilisé est parfait pour concrétiser votre projet de construction de maison. Profitez de la tranquillité d’un environnement calme tout en ayant l’opportunité de créer votre havre de paix sur ce terrain plat, offrant une qualité de vie inégalée. Dissé-sous-le-Lude se trouve au cœur de la magnifique région des Pays de la Loire, une zone réputée pour ses paysages pittoresques et ses activités de plein air. À proximité, vous trouverez des commodités essentielles ainsi que des attractions locales qui enrichiront votre quotidien. Que vous soyez amateur de nature, de culture ou de gastronomie, cette ville saura vous séduire par son ambiance authentique et conviviale. Les services disponibles dans la commune garantissent un cadre de vie pratique et agréable, faisant de ce terrain un choix d’investissement judicieux. N’attendez plus pour saisir cette opportunité unique d’acquérir un terrain au potentiel remarquable. Explorez la possibilité de bâtir la maison de vos rêves dans cet emplacement de choix ! À noter qu’en tant que constructeur, nous ne sommes pas mandatés pour réaliser la vente de ce terrain.
Le Lude
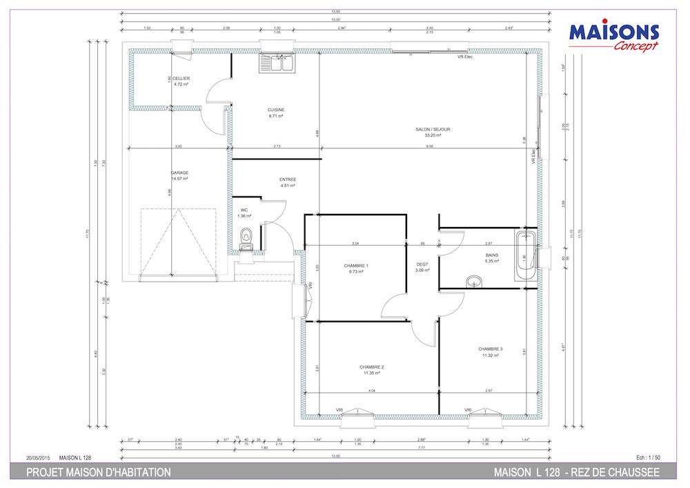
TERRAIN ET MAISONNous vous proposons cette maison neuve, baptisée « »Rubis » », une demeure qui incarne la perfection pour les familles en quête d’un foyer à la fois moderne, fonctionnel et économique. Avec une surface généreuse de 98 m², cette maison est conçue pour maximiser votre confort et répondre à toutes vos attentes.La Rubis se distingue par son excellent rapport qualité/prix, offrant non seulement 4 chambres spacieuses mais aussi un total de 4 pièces bien agencées, garantissant ainsi un espace de vie optimal pour chaque membre de la famille. La pièce de vie, véritable cœur de la maison, s’étend sur plus de 40 m², offrant un espace ouvert et lumineux, idéal pour partager des moments précieux en famille ou entre amis.L’un des atouts majeurs de cette maison est sans doute ses combles aménageables, qui offrent la possibilité d’agrandir l’espace habitable selon vos besoins et vos envies, ajoutant ainsi une valeur considérable à votre investissement. De plus, la Rubis intègre un garage, solution pratique pour sécuriser votre véhicule et stocker vos équipements.Construite dans le respect de la norme RT2020, la Rubis est une maison basse consommation, conçue pour minimiser votre empreinte écologique tout en réduisant vos factures d’énergie. Cette maison neuve est conforme à la RE2020, vous assurant ainsi un confort thermique de premier ordre et une qualité de vie inégalée.Les options les plus plébiscitées par nos clients, telles que la basse consommation énergétique, sont au cœur de la conception de la Rubis, reflétant notre engagement à répondre aux attentes les plus exigeantes en termes de durabilité et d’efficacité énergétique.La façade décalée de la Rubis lui confère un caractère unique, avec un séjour agréablement agencé qui se distingue nettement de la partie nuit, le tout à un prix des plus accessibles.Choisir la maison Rubis, c’est opter pour une demeure qui allie esthétique, fonctionnalité et respect de l’environnement, le tout conçu pour enrichir votre quotidien.
Aubigné-Racan
TERRAINDécouvrez cette belle opportunité d’acquérir un terrain de 730 m² idéalement situé à Aubigné-Racan, une commune prisée du département de la Sarthe, dans la région des Pays de la Loire. Ce terrain, non viabilisé, est parfait pour y construire la maison de vos rêves. Avec des caractéristiques uniques, telles qu’un environnement calme et verdoyant, ce bien constitue un projet idéal pour les familles en quête de tranquillité et d’un cadre de vie agréable. Aubigné-Racan offre un cadre de vie exceptionnel, avec un accès facile aux commerces locaux et aux services essentiels, garantissant ainsi un quotidien pratique pour ses résidents. Cette charmante ville est réputée pour sa qualité de vie et son ambiance conviviale, tout en offrant de nombreuses attractions locales à proximité. Que vous soyez amateur de nature, de patrimoine ou de vie communautaire active, cet emplacement saura répondre à toutes vos attentes. N’attendez plus pour saisir cette opportunité rare qui offre un potentiel incroyable pour votre futur projet immobilier. Contactez-nous dès maintenant pour plus d’informations. À noter qu’en tant que constructeur, nous ne sommes pas mandatés pour réaliser la vente de ce terrain.
Aubigné-Racan
TERRAIN ET MAISONNous vous proposons cette maison neuve, baptisée Tentation City, une demeure contemporaine à étage qui se distingue par son design unique et son adaptabilité à tous les environnements. Avec une surface habitable de 82 m², cette maison est conçue pour répondre aux besoins de confort et d’espace de ses résidents, offrant 3 chambres réparties dans un agencement de 3 pièces pensé pour maximiser l’espace et la luminosité.Tentation City se caractérise par son garage intégré, une dalle d’étage en béton robuste et des combles aménagés, offrant ainsi un espace supplémentaire qui peut être adapté selon vos besoins. Conforme à la réglementation thermique RT2020, cette maison basse consommation est un choix idéal pour ceux qui cherchent à réduire leur empreinte écologique tout en bénéficiant d’un confort optimal toute l’année.Les options les plus plébiscitées, telles que l’enduit bi-ton et les menuiseries en aluminium, ajoutent une touche d’élégance et de modernité à l’ensemble, permettant à chaque propriétaire de personnaliser sa maison selon ses goûts et préférences. La structure même de Tentation City rompt avec la monotonie des constructions contemporaines standards grâce à son jeu de hauteur et ses différents compartiments, ainsi qu’une galerie en façade qui lui confère une allure à la fois moderne et intemporelle.Cette maison est non seulement modulable et personnalisable à volonté, mais elle est également conçue pour s’intégrer harmonieusement dans son environnement, reflétant ainsi un parfait équilibre entre innovation architecturale et respect de la nature.Opter pour Tentation City, c’est choisir une maison qui allie esthétique, fonctionnalité et performance énergétique, le tout conforme à la nouvelle réglementation environnementale RE2020. C’est l’assurance de vivre dans un espace qui répond non seulement à vos attentes en matière de confort et de design, mais qui contribue également à la préservation de notre planète pour les générations futures.
Aubigné-Racan
TERRAINMickaël Bourdais – Optimhome Immobilier – vous présente un terrain à bâtir de plus de 2 000 m², situé sur la commune d’Aubigné-Racan.oSurface : plus de 2 000 m²oRaccordement au tout-à-l’égout déjà effectuéoEau et électricité à prévoir (réseaux en bordure)oTerrain clos, avec deux arbres apportant un bel espace ombragéoAccès existant,Le terrain se situe à proximité des commerces, des écoles et de la gare SNCF, offrant un cadre pratique pour votre projet de construction. Les honoraires d’agence sont à la charge de l’acquéreur, soit 23,81% TTC du prix hors honoraires.Les informations sur les risques auxquels ce bien est exposé sont disponibles sur le site Géorisques : www. georisques. gouv. fr.Contactez Mickaël BOURDAIS Entrepreneur Individuel, Agent commercial OptimHome (RSAC N(Numéro supprimé) Greffe de LE MANS) (Numéro supprimé) (réf. 593329 )
Luché-Pringé
TERRAINBienvenue sur ce terrain d’exception de 422 m², situé au cœur d’un lotissement paisible, idéal pour concrétiser votre projet de construction de maison. Ce terrain viabilisé vous offre une opportunité rare de profiter d’un cadre de vie agréable et tranquille. La ville se distingue par sa qualité de vie, garantissant un environnement privilégié pour les familles et les professionnels en quête de sérénité. Idéalement localisé à 72800 dans le département de la Sarthe, ce terrain bénéficie d’une proximité avec de nombreuses attractions locales et services essentiels. Vous trouverez à proximité des commerces, des écoles et des espaces verts, permettant de profiter d’une vie de quartier dynamique tout en étant à distance de marche des commodités. L’emplacement est stratégiquement choisi pour allier le calme de la campagne avec l’accessibilité aux ressources de la ville, un atout indéniable pour tous ceux qui souhaitent construire leur future maison dans un cadre agréable. Ne manquez pas cette occasion unique d’acquérir un terrain au potentiel certain et de réaliser votre projet de rêve. Pour toute question ou renseignement supplémentaire, n’hésitez pas à nous contacter. À noter qu’en tant que constructeur, nous ne sommes pas mandatés pour réaliser la vente de ce terrain.
Luché-Pringé
TERRAIN ET MAISONNous vous proposons cette maison neuve, baptisée Futura, une construction qui allie tradition et modernité, conçue spécialement pour répondre aux besoins des familles d’aujourd’hui. Avec une surface habitable de 84 m², cette maison basse consommation est non seulement économique mais aussi respectueuse de l’environnement, conformément aux exigences de la norme RE2020.La Futura se distingue par son excellent rapport qualité/prix, faisant d’elle un choix privilégié pour les primo-accédants. Elle se compose de 4 pièces lumineuses, dont 3 chambres confortables, parfaites pour accueillir une famille. Son agencement intérieur a été pensé pour maximiser l’espace et le confort, offrant ainsi un cadre de vie agréable et fonctionnel.Au cœur de cette maison, vous trouverez un vaste salon de 36 m², jouxtant une cuisine ouverte de 10 m². Cet espace de vie ouvert, d’environ 50 m², est idéal pour partager des moments conviviaux en famille ou entre amis. La maison comprend également un garage intégré de 15 m², accessible via un cellier pratique de 5,5 m², optimisant ainsi l’espace de rangement et la fonctionnalité de la maison.La Futura bénéficie d’une charpente fermette à entraits porteurs 3 appuis, avec une toiture à pente de 45°, et des combles aménagés, offrant ainsi un espace supplémentaire pouvant être personnalisé selon vos besoins et vos envies. Pour répondre aux demandes spécifiques de chacun, la Futura est entièrement personnalisable. Parmi les options les plus prisées, vous pouvez choisir un crépis coloré pour la façade, des menuiseries en aluminium pour une touche moderne et une pergola pour agrémenter votre espace extérieur, créant ainsi un lieu de vie unique qui vous ressemble.Opter pour la Futura, c’est choisir une maison à la fois économique, écologique et confortable, conçue pour s’adapter à votre style de vie et à vos aspirations. Ne manquez pas l’opportunité de construire la maison de vos rêves, une maison où il fait bon vivre, jour après jour.
L’actualité immobilière à Le Lude
27/11/2023
02/11/2023
30/10/2023
20/10/2023
16/10/2023
16/10/2023