Images
Description
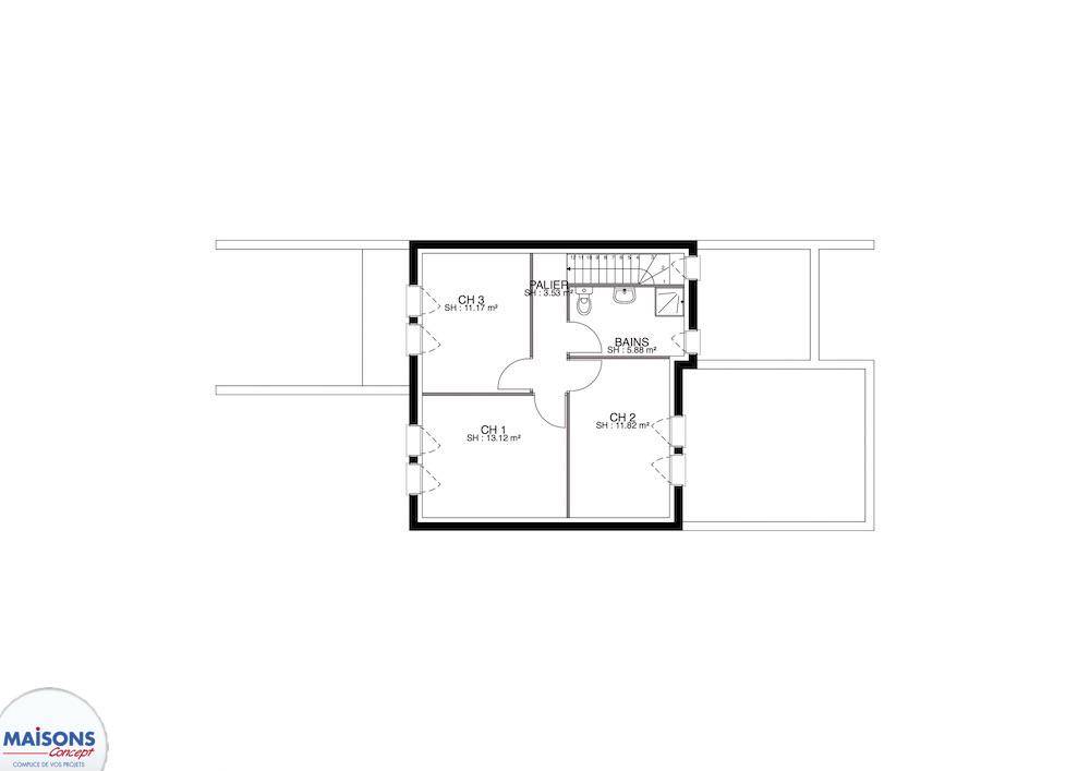
Nous vous proposons cette maison neuve, baptisée ""Symphonie"", une création architecturale qui se distingue par son harmonie et son équilibre, offrant un cadre de vie idéal pour ceux en quête d'innovation et de confort. Avec une surface habitable de 115 m² répartie sur deux niveaux (R+1), cette demeure est conçue pour maximiser l'espace et la lumière, tout en garantissant une basse consommation énergétique conforme à la norme RE2020.
""Symphonie"" se compose de 4 chambres spacieuses et de 4 pièces soigneusement agencées, promettant ainsi un confort optimal pour toute la famille. Le garage accolé, pratique et esthétique avec son enduit bicolore, ajoute une note d'élégance à l'ensemble, tout en offrant un espace supplémentaire très apprécié.
Cette maison est une véritable prouesse technique, intégrant des matériaux de construction modernes tels que le voile béton, garantissant solidité et durabilité. De plus, elle est équipée des dernières innovations en matière de domotique, offrant ainsi une expérience de vie connectée et simplifiée, répondant parfaitement aux attentes des clients les plus exigeants.
L'architecture de ""Symphonie"" est une ode à la modernité et à l'originalité, avec des lignes épurées et des volumes pensés pour créer une ambiance à la fois chaleureuse et contemporaine. L'enduit bicolore, option très prisée, souligne avec finesse les contours du bâtiment, lui conférant une allure unique et une identité visuelle forte.
Construite dans le respect de la réglementation thermique RT2020, cette maison basse consommation est un investissement pérenne pour l'avenir, vous assurant des économies d'énergie significatives tout en contribuant à la protection de l'environnement.
""Symphonie"" est plus qu'une maison, c'est une promesse de bien-être, un espace où chaque détail a été pensé pour répondre à vos attentes de confort, de sécurité et d'esthétique. Une invitation à vivre en harmonie avec son temps, dans un cadre exceptionnel qui fera le bonheur de tou
Logement susceptibles de vous intéresser
Nous vous proposons de découvrir aussi cette sélection de logements situés à moins de 10km de Le Mans et qui seraient susceptibles de vous intéresser.
Neuville-sur-Sarthe
TERRAINSitué dans un environnement calme et recherché de Neuville-sur-Sarthe, découvrez ce terrain à bâtir de 772 m², entièrement viabilisé (eau, électricité, télécom, assainissement) — idéal pour concrétiser rapidement votre projet de construction. Les atouts du terrain :Superficie : 772 m²Terrain plat, facile à aménagerEntièrement viabiliséEnvironnement résidentielAccès rapide aux axes principauxCadre de vie calme et verdoyantUn des derniers terrains disponibles sur ce secteur Avantage majeur : possibilité de vente en VEFACe terrain peut être proposé dans le cadre d’une Vente en l’État Futur d’Achèvement (VEFA), permettant :une sécurisation du projet,un délai de construction optimisé,une livraison rapide clé-en-main,une maîtrise totale du budget.Une solution idéale pour ceux qui souhaitent gagner du temps et bénéficier d’un projet encadré de A à Z. Localisation : Neuville-sur-SartheCommune dynamique et recherchée aux portes du Mans, offrant :proximité des commerces, écoles et services (10min à pied, 3min en voiture),accès rapide au Mans,cadre de vie agréable entre ville et nature. Contactez-moi dès maintenant pour obtenir le dossier complet, les plans possibles et étudier votre projet de construction.Une opportunité rare pour construire rapidement dans un secteur prisé !Cette annonce référence 314195 vous est présentée par votre agent commercial BSK Immobilier THIBAUT FLAHOU (EI) immatriculé au RSAC de LE MANS (72000) sous le numéro 5(Numéro supprimé)024.Prix du bien : 114 400,00 €Les honoraires d’agence sont à la charge du vendeur.Les informations sur les risques auxquels ce bien est exposé sont disponibles sur le site Géorisques : www.georisques.gouv.fr
Le Mans
TERRAIN ET MAISONVENTE d’une maison de 5 pièces (110 m²) au MansPROCHE CENTRE-VILLE – MAISON 5 PIÈCES NEUVEEn vente : proche du centre-ville du Mans (72000), notre agence Maine Construction Le Mans est ravie de vous présenter cette maison de 5 pièces de plain-pied de 110 m².Son intérieur dispose de trois chambres, d’une cuisine et d’une salle de bains. La maison est neuve.Le terrain du bien est de 349 m².Le lycée Institut Technologique Européen des Métiers de la Musique est implanté à moins de 10 minutes à pied, deux structures d’accueil pour la petite enfance, tout comme l’Université du Mans et l’Institut supérieur des matériaux du Mans pour le supérieur. Côté transports en commun, il y a trois gares (Le Mans, Neuville-sur-Sarthe et Arnage) à moins de 10 minutes en voiture. L’autoroute A11 est accessible à 3 km. On trouve deux tennis, trois boulangeries, des commerces, un supermarché et un bureau de poste dans les environs.Elle est proposée à l’achat pour 335 000 €.Prenez contact avec notre constructeur (François HOUDAYER : (Numéro supprimé)) pour obtenir de plus amples renseignements sur la maison ou sur les modalités de vente.
Changé
TERRAIN ET MAISONVENTE : maison T6 (98 m²) à ChangéIDÉALEMENT SITUÉE – MAISON 6 PIÈCES NEUVEÀ vendre : située à quelques kilomètres du Mans, idéalement située dans Changé (72560), Maine Construction Le Mans vous présente cette maison de 6 pièces de plain-pied de 98 m².Conçue de plain-pied, elle se divise en trois chambres, une cuisine et deux salles de bains. La maison est neuve.Le terrain du bien s’étend sur 1 085 m².Cette maison se situe dans un secteur prisé. L’École Élémentaire Publique de l’Epau, le Collège Jacques Peletier et l’École Maternelle Publique de l’Auneau sont implantés à moins de 10 minutes à pied. Côté transports en commun, on trouve quatre gares à moins de 10 minutes en voiture. Les autoroutes A28 et A11 sont accessibles à moins de 7 km. Il y a un tennis, quatre commerces, deux boulangeries, un supermarché, une boucherie-charcuterie et une supérette à quelques minutes à peine.Elle est proposée à l’achat pour 395 000 €.Contactez notre agence (François HOUDAYER : (Numéro supprimé)) pour obtenir de plus amples renseignements sur la maison et sur les démarches à suivre. Maine Construction Le Mans est là pour vous accompagner dans tous vos projets immobiliers.
Changé
TERRAIN ET MAISONVENTE : maison T4 (83 m²) à ChangéIDÉALEMENT SITUÉE – MAISON 4 PIÈCES NEUVEÀ quelques kilomètres du Mans, nous sommes heureux de vous présenter cette maison de 4 pièces de 83 m² et de 1 085 m² de terrain à vendre idéalement située dans Changé (72560).C’est une maison de 2 niveaux. Son intérieur offre trois chambres, une cuisine et une salle de bains. Cette maison est neuve.La maison est située dans un secteur recherché. L’École Élémentaire Publique de l’Epau, le Collège Jacques Peletier et l’École Maternelle Publique de l’Auneau se trouvent à moins de 10 minutes à pied. Côté transports en commun, il y a quatre gares à moins de 10 minutes en voiture. Les autoroutes A28 et A11 sont accessibles à moins de 7 km. On trouve un tennis, quatre commerces, deux boulangeries, un supermarché, un bureau de poste et une boucherie-charcuterie à proximité du bien.Son prix de vente est de 275 000 €.Contactez notre agence (François HOUDAYER : (Numéro supprimé)) pour tout renseignement sur la maison.
Changé
TERRAIN ET MAISONMaison de 5 pièces (77 m²) à vendre à ChangéIDÉALEMENT SITUÉE – MAISON 5 PIÈCES NEUVEÀ vendre : située à deux pas du Mans, Maine Construction Le Mans vous propose, idéalement située dans Changé (72560), cette maison de 5 pièces de plain-pied de 77 m² et de 1 085 m² de terrain.Elle comporte trois chambres, une cuisine et une salle de bains. Cette maison est neuve.Ce bien se trouve dans un quartier prisé. Il y a l’École Élémentaire Publique de l’Epau, le Collège Jacques Peletier et l’École Maternelle Publique de l’Auneau à moins de 10 minutes à pied. Côté transports en commun, on trouve quatre gares à moins de 10 minutes en voiture. Les autoroutes A28 et A11 sont accessibles à moins de 7 km. Il y a un tennis, quatre commerces, deux boulangeries, un supermarché, une supérette et un bureau de poste dans les environs.Il est à vendre pour la somme de 330 000 €.Contactez François HOUDAYER ((Numéro supprimé)) pour toute information sur la maison, sur les démarches à suivre ou sur les modalités de vente. Donnez vie à vos projets immobiliers avec Maine Construction Le Mans.
Le Mans
TERRAIN ET MAISONVENTE : maison F3 (55 m²) au MansPROCHE CENTRE-VILLE – MAISON 3 PIÈCES NEUVEEn vente : nous sommes ravis de vous présenter, proche du centre-ville du Mans (72000), cette maison de 3 pièces de 55 m² et de 349 m² de terrain. Son intérieur se divise en trois chambres, une cuisine et deux salles de bains.Cette maison comporte 2 niveaux. Elle est neuve.Le lycée Institut Technologique Européen des Métiers de la Musique est implanté à moins de 10 minutes à pied, deux crèches, tout comme deux établissements du supérieur juste à côté : l’Université du Mans et l’Institut supérieur des matériaux du Mans. Niveau transports en commun, on trouve les gares Le Mans, Neuville-sur-Sarthe et Arnage à moins de 10 minutes en voiture. Il y a un accès à l’autoroute A11 à 3 km. Il y a deux tennis, trois boulangeries, des commerces, un supermarché et un bureau de poste à quelques minutes à peine.Elle est à vendre pour la somme de 225 000 €.Contactez notre agence (François HOUDAYER : (Numéro supprimé)) pour plus de renseignements sur la maison, sur les démarches à suivre ou sur les modalités de vente. Maine Construction Le Mans vous accompagne à toutes les étapes de l’achat et dans tous vos projets immobiliers.
Le Mans
TERRAIN ET MAISONLe Mans : maison F6 (125 m²) à vendrePROCHE CENTRE-VILLE – MAISON 6 PIÈCES NEUVEÀ vendre : nous vous proposons, proche du centre-ville du Mans (72000), cette maison de 6 pièces de plain-pied de 125 m² et de 349 m² de terrain. Elle comporte trois chambres, une cuisine et une salle de bains.La maison est neuve.Il y a le lycée Institut Technologique Européen des Métiers de la Musique à moins de 10 minutes à pied, deux crèches et deux établissements du supérieur dans les environs : l’Université du Mans et l’Institut supérieur des matériaux du Mans. Côté transports, on trouve trois gares (Le Mans, Neuville-sur-Sarthe et Arnage) à moins de 10 minutes en voiture. L’autoroute A11 est accessible à 3 km. Il y a deux tennis, trois boulangeries, des commerces, un supermarché et un bureau de poste à quelques minutes.Elle est proposée à l’achat pour 372 000 €.N’hésitez pas à prendre contact avec François HOUDAYER (tél : (Numéro supprimé)) pour toute information sur la maison, sur les modalités de vente ou sur les démarches à suivre. Faites de vos projets immobiliers une réalité avec Maine Construction Le Mans.
Changé
TERRAIN ET MAISONVENTE : maison de 4 pièces (69 m²) à ChangéIDÉALEMENT SITUÉE – MAISON 4 PIÈCES NEUVEEn vente : localisée à quelques kilomètres du Mans, Maine Construction Le Mans vous présente cette maison de 4 pièces de plain-pied de 69 m² et de 1 085 m² de terrain idéalement située dans Changé (72560).Conçue de plain-pied, elle dispose de trois chambres, d’une cuisine et d’une salle de bains. Cette maison est neuve.La maison se trouve dans un secteur attractif. L’École Élémentaire Publique de l’Epau, le Collège Jacques Peletier et l’École Maternelle Publique de l’Auneau sont implantés à moins de 10 minutes à pied. Côté transports, il y a quatre gares à moins de 10 minutes en voiture. Les autoroutes A28 et A11 sont accessibles à moins de 7 km. On trouve un tennis, quatre commerces, deux boulangeries, un supermarché, un bureau de poste et une boucherie-charcuterie à quelques minutes.Elle est à vendre pour la somme de 340 000 €.Prenez contact avec notre agence (HOUDAYER François : (Numéro supprimé)) pour obtenir de plus amples informations sur le bien.
Changé
TERRAIN ET MAISONVENTE : maison de 4 pièces (130 m²) à ChangéIDÉALEMENT SITUÉE – MAISON 4 PIÈCES NEUVEEn vente : située à quelques kilomètres du Mans, nous sommes heureux de vous proposer cette maison de 4 pièces de plain-pied de 130 m², idéalement située dans Changé (72560).Elle propose trois chambres, une cuisine et deux salles de bains. Cette maison est neuve.Le terrain de la propriété est de 1 085 m².Cette maison se situe dans un secteur prisé. L’École Élémentaire Publique de l’Epau, le Collège Jacques Peletier et l’École Maternelle Publique de l’Auneau sont implantés à moins de 10 minutes à pied. Niveau transports en commun, il y a quatre gares à moins de 10 minutes en voiture. Les autoroutes A28 et A11 sont accessibles à moins de 7 km. On trouve un tennis, quatre commerces, deux boulangeries, un supermarché, une boucherie-charcuterie et une supérette dans les environs.Elle est proposée à l’achat pour 445 000 €.Contactez notre agence (François HOUDAYER : (Numéro supprimé)) pour toute question sur la maison.
L’actualité immobilière à Le Mans
27/11/2023
02/11/2023
30/10/2023
20/10/2023
16/10/2023
16/10/2023