Maison à construire à Louplande (72210)
Images
Description
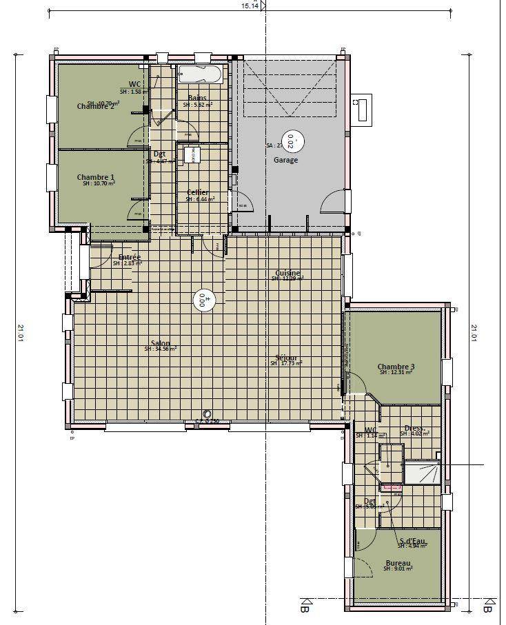
Louplande : maison F4 (143 m²) en vente
EMPLACEMENT PRIVILÉGIÉ - MAISON 4 PIÈCES NEUVE
À 12 km du Mans, venez découvrir cette maison de 4 pièces de plain-pied de 143 m² et de 518 m² de terrain en vente, bénéficiant d'un emplacement d'exception dans Louplande (72210). Elle compte quatre chambres, une cuisine et deux salles de bains.
Cette maison est neuve.
La maison se trouve dans un secteur attractif. Il y a l'École Primaire Publique Mozart à moins de 10 minutes à pied. Côté transports en commun, on trouve deux gares (Voivres-lès-le-Mans et La Suze-sur-Sarthe) à moins de 10 minutes en voiture. Il y a un accès à l'autoroute A11 à 3 km. Il y a un tennis, une bibliothèque, un commerce et deux boulangeries à quelques minutes.
Son prix de vente est de 345 000 €.
Prenez contact avec notre agence (François HOUDAYER : (Numéro supprimé)) pour toute information sur la maison ou sur les démarches à suivre.
Logement susceptibles de vous intéresser
Nous vous proposons de découvrir aussi cette sélection de logements situés à moins de 10km de Louplande et qui seraient susceptibles de vous intéresser.
Louplande
TERRAINLouplande : terrain de 518 m² à vendreEMPLACEMENT PRIVILÉGIÉ – PROCHE DU MANSÀ Louplande (72210) en vente à 12 km du Mans, venez découvrir ce terrain de 518 m². Ce terrain, avec vue sur jardin, est orienté au nord. Dans un quartier prisé, le terrain bénéficiant d’un emplacement privilégié est proche des écoles et des commerces. On trouve l’École Primaire Publique Mozart à moins de 10 minutes à pied. Côté transports en commun, il y a deux gares (Voivres-lès-le-Mans et La Suze-sur-Sarthe) à moins de 10 minutes en voiture. L’autoroute A11 est accessible à 3 km. On trouve un tennis, une bibliothèque, un commerce et deux boulangeries dans les environs.Ce terrain est à vendre pour la somme de 49 100 €. Contactez notre agence (François HOUDAYER : (Numéro supprimé)) pour toute information sur le terrain, sur les démarches à suivre ou sur les modalités de vente. Concrétisez vos projets immobiliers avec Maine Construction Le Mans.
Louplande
TERRAIN ET MAISONVENTE : maison T3 (54 m²) à LouplandeEMPLACEMENT PRIVILÉGIÉ – MAISON 3 PIÈCES NEUVEEn vente à 12 km du Mans, Maine Construction Le Mans vous propose cette maison de 3 pièces de 54 m² et de 518 m² de terrain bénéficiant d’un emplacement privilégié dans Louplande (72210). Son intérieur inclut une chambre, une cuisine et une salle de bains.C’est une maison de 2 niveaux. Elle est neuve.La maison se situe dans un secteur prisé. Il y a l’École Primaire Publique Mozart à moins de 10 minutes à pied. Niveau transports en commun, on trouve les gares Voivres-lès-le-Mans et La Suze-sur-Sarthe à moins de 10 minutes en voiture. L’autoroute A11 est accessible à 3 km. Il y a un tennis, une bibliothèque, un commerce et deux boulangeries à quelques minutes à peine.Elle est à vendre pour la somme de 165 000 €.Contactez notre agence (François HOUDAYER : (Numéro supprimé)) pour toute information sur la maison, sur les démarches à suivre ou sur les modalités de vente. Maine Construction Le Mans vous accompagne dans tous vos projets immobiliers et à toutes les étapes de l’achat.
Louplande
TERRAIN ET MAISONVENTE : maison T3 (83 m²) à LouplandeEMPLACEMENT PRIVILÉGIÉ – MAISON 3 PIÈCES NEUVEEn vente à quelques kilomètres du Mans, nous vous présentons cette maison de 3 pièces de plain-pied de 83 m² bénéficiant d’un emplacement d’exception dans Louplande (72210). Son intérieur propose deux chambres, une cuisine et une salle de bains.Le terrain de la propriété s’étend sur 518 m².La maison est neuve.Cette maison se trouve dans un quartier recherché. Il y a l’École Primaire Publique Mozart à moins de 10 minutes à pied. Niveau transports en commun, on trouve deux gares (Voivres-lès-le-Mans et La Suze-sur-Sarthe) à moins de 10 minutes en voiture. Il y a un accès à l’autoroute A11 à 3 km. Il y a un tennis, une bibliothèque, un commerce et deux boulangeries à quelques minutes du bien.Son prix de vente est de 245 000 €.Contactez François HOUDAYER (tél : (Numéro supprimé)) pour obtenir de plus amples renseignements sur la maison ou sur les modalités de vente. Maine Construction Le Mans est là pour vous accompagner à toutes les étapes de votre projet.
Louplande
TERRAIN ET MAISONMaison F4 (130 m²) en vente à LouplandeEMPLACEMENT PRIVILÉGIÉ – MAISON 4 PIÈCES NEUVEÀ quelques kilomètres du Mans, à vendre bénéficiant d’un emplacement d’exception dans Louplande (72210), votre agence Maine Construction Le Mans est heureuse de vous proposer cette maison de 4 pièces de plain-pied de 130 m².Conçue de plain-pied, elle offre trois chambres, une cuisine et deux salles de bains. Cette maison est neuve.Le terrain du bien s’étend sur 518 m².La maison se situe dans un secteur prisé. L’École Primaire Publique Mozart est implantée à moins de 10 minutes à pied. Niveau transports, il y a deux gares (Voivres-lès-le-Mans et La Suze-sur-Sarthe) à moins de 10 minutes en voiture. L’autoroute A11 est accessible à 3 km. On trouve un tennis, une bibliothèque, un commerce et deux boulangeries à quelques minutes à peine.Elle est à vendre pour la somme de 325 000 €.Prenez contact avec notre constructeur (HOUDAYER François : (Numéro supprimé)) pour toute question sur la propriété, sur les modalités de vente ou sur les démarches à suivre.
Louplande
TERRAIN ET MAISONLouplande : maison F4 (143 m²) en venteEMPLACEMENT PRIVILÉGIÉ – MAISON 4 PIÈCES NEUVEÀ 12 km du Mans, venez découvrir cette maison de 4 pièces de plain-pied de 143 m² et de 518 m² de terrain en vente, bénéficiant d’un emplacement d’exception dans Louplande (72210). Elle compte quatre chambres, une cuisine et deux salles de bains.Cette maison est neuve.La maison se trouve dans un secteur attractif. Il y a l’École Primaire Publique Mozart à moins de 10 minutes à pied. Côté transports en commun, on trouve deux gares (Voivres-lès-le-Mans et La Suze-sur-Sarthe) à moins de 10 minutes en voiture. Il y a un accès à l’autoroute A11 à 3 km. Il y a un tennis, une bibliothèque, un commerce et deux boulangeries à quelques minutes.Son prix de vente est de 345 000 €.Prenez contact avec notre agence (François HOUDAYER : (Numéro supprimé)) pour toute information sur la maison ou sur les démarches à suivre.
Louplande
TERRAIN ET MAISONVENTE d’une maison de 5 pièces (100 m²) à LouplandeEMPLACEMENT PRIVILÉGIÉ – MAISON 5 PIÈCES NEUVEÀ quelques kilomètres du Mans, venez découvrir cette maison de 5 pièces de 100 m² et de 518 m² de terrain en vente bénéficiant d’un emplacement d’exception dans Louplande (72210). Son intérieur dispose de quatre chambres, d’une cuisine et de deux salles de bains.Il s’agit d’une maison de 2 niveaux. Elle est neuve.Cette maison se situe dans un secteur attractif. L’École Primaire Publique Mozart est implantée à moins de 10 minutes à pied. Niveau transports, il y a deux gares (Voivres-lès-le-Mans et La Suze-sur-Sarthe) à moins de 10 minutes en voiture. L’autoroute A11 est accessible à 3 km. On trouve un tennis, une bibliothèque, un commerce et deux boulangeries dans les environs.Elle est proposée à l’achat pour 255 000 €.Contactez notre agence (François HOUDAYER : (Numéro supprimé)) pour tout renseignement sur la propriété ou sur les démarches à suivre. Maine Construction Le Mans vous accompagne à toutes les étapes de votre projet et dans tous vos projets immobiliers.
Louplande
TERRAIN ET MAISONVENTE : maison T4 (93 m²) à LouplandeEMPLACEMENT PRIVILÉGIÉ – MAISON 4 PIÈCES NEUVEÀ deux pas du Mans, notre agence Maine Construction Le Mans est ravie de vous présenter cette maison de 4 pièces de plain-pied de 93 m² bénéficiant d’un emplacement d’exception dans Louplande (72210).Son intérieur est composé de quatre chambres, d’une cuisine et d’une salle de bains. Cette maison est neuve.Le terrain du bien est de 518 m².La maison se situe dans un secteur convoité. L’École Primaire Publique Mozart se trouve à moins de 10 minutes à pied. Niveau transports en commun, il y a deux gares (Voivres-lès-le-Mans et La Suze-sur-Sarthe) à moins de 10 minutes en voiture. L’autoroute A11 est accessible à 3 km. On trouve un tennis, une bibliothèque, un commerce et deux boulangeries à proximité de la maison.Elle est à vendre pour la somme de 239 000 €.Contactez François HOUDAYER (tél : (Numéro supprimé)) pour obtenir de plus amples renseignements sur la maison ou sur les démarches à suivre. Maine Construction Le Mans est là pour vous accompagner à toutes les étapes de votre projet.
Louplande
TERRAIN ET MAISONLouplande : maison T5 (92 m²) en venteEMPLACEMENT PRIVILÉGIÉ – MAISON 5 PIÈCES NEUVEEn vente : à 12 km du Mans, Maine Construction Le Mans vous propose cette maison de 5 pièces de plain-pied de 92 m² et de 518 m² de terrain, bénéficiant d’un emplacement privilégié dans Louplande (72210).Conçue de plain-pied, elle comporte quatre chambres, une cuisine et une salle de bains. Cette maison est neuve.Cette maison est située dans un quartier prisé. L’École Primaire Publique Mozart se trouve à moins de 10 minutes à pied. Côté transports, il y a deux gares (Voivres-lès-le-Mans et La Suze-sur-Sarthe) à moins de 10 minutes en voiture. L’autoroute A11 est accessible à 3 km. On trouve un tennis, une bibliothèque, un commerce et deux boulangeries dans les environs.Elle est proposée à l’achat pour 243 000 €.Prenez contact avec notre agence (HOUDAYER François : (Numéro supprimé)) pour obtenir de plus amples informations sur la maison ou sur les démarches à suivre.
Louplande
TERRAIN ET MAISONMaison de 5 pièces (73 m²) en vente à LouplandeEMPLACEMENT PRIVILÉGIÉ – MAISON 5 PIÈCES NEUVEEn vente à 12 km du Mans, nous vous présentons, bénéficiant d’un emplacement d’exception dans Louplande (72210), cette maison de 5 pièces de plain-pied de 73 m².Elle inclut trois chambres, une cuisine et une salle de bains. Cette maison est neuve.Le terrain du bien s’étend sur 518 m².La maison se trouve dans un quartier convoité. L’École Primaire Publique Mozart est implantée à moins de 10 minutes à pied. Côté transports en commun, on trouve deux gares (Voivres-lès-le-Mans et La Suze-sur-Sarthe) à moins de 10 minutes en voiture. L’autoroute A11 est accessible à 3 km. Il y a un tennis, une bibliothèque, un commerce et deux boulangeries à quelques minutes à peine.Son prix de vente est de 215 000 €.Prenez contact avec notre agence (HOUDAYER François : (Numéro supprimé)) pour tout renseignement sur la maison. Concrétisez vos projets immobiliers avec Maine Construction Le Mans.
L’actualité immobilière à Louplande
27/11/2023
02/11/2023
30/10/2023
20/10/2023
16/10/2023
16/10/2023