Images
Description
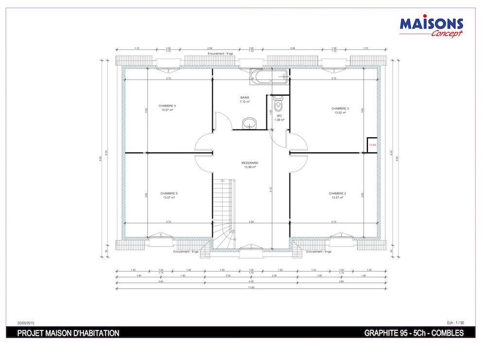
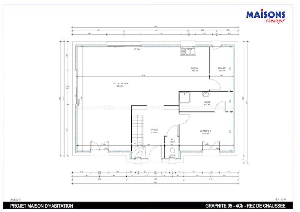
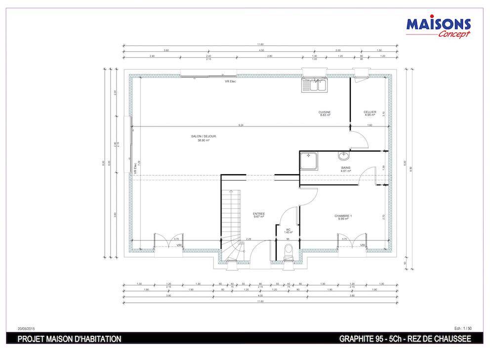
Nous vous proposons cette maison neuve, baptisée ""Graphite"", un modèle à étage qui combine habilement espace et élégance. Avec une surface habitable de 99 m², cette maison est conçue pour répondre aux besoins de confort et de fonctionnalité de ses résidents. Elle se distingue par son architecture soignée, offrant une avancée de façade avec un pignon qui lui confère une originalité remarquable tout en préservant un style traditionnel.
La ""Graphite"" est composée de 4 chambres réparties intelligemment pour garantir l'intimité de chacun, et de 4 pièces conçues pour maximiser l'espace de vie commun. La dalle de l'étage en béton assure une solidité et une isolation phonique de qualité, tandis que les combles aménagés offrent un espace supplémentaire, idéal pour une salle de jeux, un bureau ou une chambre d'amis.
La suite parentale, située au rez-de-chaussée, est pensée pour offrir un espace privé et confortable aux parents, avec un accès direct à la salle de bain et au dressing. Le garage accolé à la maison est un atout supplémentaire, offrant un espace de rangement pratique ou un abri sécurisé pour votre véhicule.
Parmi les options les plus plébiscitées par nos clients, la ""Graphite"" peut être personnalisée avec des lucarnes, apportant plus de lumière et d'espace à l'étage, et des baies coulissantes, pour une ouverture élégante sur l'extérieur et une luminosité accrue dans les pièces de vie.
Cette maison neuve est également conçue pour être basse consommation, conformément à la réglementation environnementale RE2020. Cela signifie que vous bénéficierez non seulement d'un confort optimal été comme hiver, mais aussi d'une réduction significative de vos factures énergétiques.
Choisir la maison ""Graphite"", c'est opter pour une habitation qui allie esthétique, confort et respect de l'environnement. Une maison où il fera bon vivre, conçue pour s'adapter à votre mode de vie et à vos envies.
Logement susceptibles de vous intéresser
Nous vous proposons de découvrir aussi cette sélection de logements situés à moins de 10km de Mareil-sur-Loir et qui seraient susceptibles de vous intéresser.
Mareil-sur-Loir
TERRAINNous vous présentons un terrain exceptionnel à vendre, idéalement situé à Mareil-sur-Loir, d’une superficie généreuse de 2031 m². Ce terrain non viabilisé est une toile vierge prête à accueillir le projet de construction de votre maison de rêve. Profitez d’un cadre champêtre au calme, où la qualité de vie est le mot d’ordre. Ce lieu offre une opportunité unique pour ceux qui recherchent un espace paisible pour élever leur famille ou profiter d’une retraite sereine. Mareil-sur-Loir, un charmant village du département de la Sarthe, en région Pays de la Loire, séduit par son atmosphère conviviale et son environnement naturel préservé. À proximité, vous trouverez des commodités essentielles, ainsi que diverses attractions locales qui rendent cette région unique. Les amoureux de la nature apprécieront les belles balades à pied ou à vélo dans les paysages environnants. Le village bénéficie également d’un accès facile aux principales routes, ce qui le rend stratégique pour rejoindre les villes voisines tout en conservant la tranquillité de la vie de campagne. Ne manquez pas cette opportunité d’acquérir un terrain au potentiel fort où vous pourrez concrétiser vos envies d’habitat. N’hésitez pas à nous contacter pour plus d’informations concernant ce bien rare. À noter qu’en tant que constructeur, nous ne sommes pas mandatés pour réaliser la vente de ce terrain.
Mareil-sur-Loir
TERRAIN ET MAISONNous vous proposons cette maison neuve, baptisée « »Graphite » », un modèle à étage qui combine habilement espace et élégance. Avec une surface habitable de 99 m², cette maison est conçue pour répondre aux besoins de confort et de fonctionnalité de ses résidents. Elle se distingue par son architecture soignée, offrant une avancée de façade avec un pignon qui lui confère une originalité remarquable tout en préservant un style traditionnel.La « »Graphite » » est composée de 4 chambres réparties intelligemment pour garantir l’intimité de chacun, et de 4 pièces conçues pour maximiser l’espace de vie commun. La dalle de l’étage en béton assure une solidité et une isolation phonique de qualité, tandis que les combles aménagés offrent un espace supplémentaire, idéal pour une salle de jeux, un bureau ou une chambre d’amis.La suite parentale, située au rez-de-chaussée, est pensée pour offrir un espace privé et confortable aux parents, avec un accès direct à la salle de bain et au dressing. Le garage accolé à la maison est un atout supplémentaire, offrant un espace de rangement pratique ou un abri sécurisé pour votre véhicule.Parmi les options les plus plébiscitées par nos clients, la « »Graphite » » peut être personnalisée avec des lucarnes, apportant plus de lumière et d’espace à l’étage, et des baies coulissantes, pour une ouverture élégante sur l’extérieur et une luminosité accrue dans les pièces de vie.Cette maison neuve est également conçue pour être basse consommation, conformément à la réglementation environnementale RE2020. Cela signifie que vous bénéficierez non seulement d’un confort optimal été comme hiver, mais aussi d’une réduction significative de vos factures énergétiques.Choisir la maison « »Graphite » », c’est opter pour une habitation qui allie esthétique, confort et respect de l’environnement. Une maison où il fera bon vivre, conçue pour s’adapter à votre mode de vie et à vos envies.
Mareil-sur-Loir
TERRAINDécouvrez ce magnifique terrain à vendre de 5098 m² situé à Mareil-sur-Loir, dans le département de la Sarthe. Ce terrain non-viabilisé présente un emplacement idéal pour un projet de construction de maison, offrant un cadre champêtre unique et une qualité de vie exceptionnelle. La topographie en pente de ce terrain ajoute une dimension esthétique parfaite pour concevoir votre future habitation en harmonie avec les paysages environnants. La belle commune de Mareil-sur-Loir, nichée dans la région des Pays de la Loire, séduit par son charme authentique et ses activités locales. Profitez des paysages verdoyants, des sentiers de randonnée et de la tranquillité des environs tout en étant à proximité des commodités nécessaires pour votre quotidien. La ville est bien desservie, avec des commerces, des écoles et des centres de loisirs qui sauront ravir toute la famille. Ne manquez pas l’opportunité de faire de ce terrain votre futur havre de paix. Ce terrain représente une occasion exceptionnelle d’investir dans un cadre de vie privilégié. N’hésitez pas à envisager cette opportunité d’achat unique pour réaliser vos projets de construction. À noter qu’en tant que constructeur, nous ne sommes pas mandatés pour réaliser la vente de ce terrain.
Mareil-sur-Loir
TERRAIN ET MAISONNous vous proposons cette maison neuve, baptisée Tentation City, une demeure contemporaine à étage qui se distingue par son design unique et son adaptabilité à tous les environnements. Avec une surface habitable de 82 m², cette maison est conçue pour répondre aux besoins de confort et d’espace de ses résidents, offrant 3 chambres réparties dans un agencement de 3 pièces pensé pour maximiser l’espace et la luminosité.Tentation City se caractérise par son garage intégré, une dalle d’étage en béton robuste et des combles aménagés, offrant ainsi un espace supplémentaire qui peut être adapté selon vos besoins. Conforme à la réglementation thermique RT2020, cette maison basse consommation est un choix idéal pour ceux qui cherchent à réduire leur empreinte écologique tout en bénéficiant d’un confort optimal toute l’année.Les options les plus plébiscitées, telles que l’enduit bi-ton et les menuiseries en aluminium, ajoutent une touche d’élégance et de modernité à l’ensemble, permettant à chaque propriétaire de personnaliser sa maison selon ses goûts et préférences. La structure même de Tentation City rompt avec la monotonie des constructions contemporaines standards grâce à son jeu de hauteur et ses différents compartiments, ainsi qu’une galerie en façade qui lui confère une allure à la fois moderne et intemporelle.Cette maison est non seulement modulable et personnalisable à volonté, mais elle est également conçue pour s’intégrer harmonieusement dans son environnement, reflétant ainsi un parfait équilibre entre innovation architecturale et respect de la nature.Opter pour Tentation City, c’est choisir une maison qui allie esthétique, fonctionnalité et performance énergétique, le tout conforme à la nouvelle réglementation environnementale RE2020. C’est l’assurance de vivre dans un espace qui répond non seulement à vos attentes en matière de confort et de design, mais qui contribue également à la préservation de notre planète pour les générations futures.
La Flèche
TERRAINPrix : 42500 €.Sur ce terrain de 500 m² à LA FLECHE, Alliance Construction vous propose de réaliser votre projet de construction de maison individuelle.Avec Alliance Construction, habitez une maison spécialement pensée et conçue pour vous et votre famille, prête à décorer, adaptée à vos modes de vie, personnalisée selon vos goûts grâce à un large choix d'options, de matériaux et d'innovations ! Demandez une étude gratuite et personnalisée de votre projet de construction sur ce terrain à LA FLECHE !Contactez Patrice GIRARD au (Numéro supprimé) (Alliance Construction – Agence d'Angers).Prix hors frais de notaire. Terrain sélectionné par ALLIANCE auprès de nos partenaires fonciers, selon disponibilité, pour la construction d'une maison neuve. Non mandaté pour réaliser la vente (loi du 2 janvier 1970 n°70-9). Visuels non contractuels. Voir détails en agence.Cette annonce a été créée et diffusée avec le logiciel VITAHOME.
La Flèche
TERRAIN ET MAISONA LA FLECHE sur un terrain de 500 m², Alliance Construction vous propose de réaliser votre projet de construction de maison individuelle d'une surface de 87.91 m² habitables avec 3 chambres, à partir de 209057€*Demandez une étude gratuite et personnalisée de votre projet de construction !* Cette offre comprend :- Garanties constructeurs (dommages ouvrage, garantie de prix ferme et définitif, garantie de livraison, responsabilité civile et décennale).- Branchements aux compteurs et accès empierré sur 5m linéaires.Habitez une maison spécialement pensée et conçue pour vous et votre famille, prête à décorer, adaptée à vos modes de vie, personnalisée selon vos goûts grâce à un large choix d'options, de matériaux et d'innovations !Contactez Patrice (Numéro supprimé)*Prix indicatif pour un projet de construction d'une maison individuelle. Ne sont pas inclus les frais de branchements, raccordements aux réseaux publics, frais d'adaptations, aménagements intérieurs et extérieurs et options. terrain viabilisé, frais de notaire non compris, frais divers non compris. Garanties et assurances obligatoires incluses. Terrain sélectionné par ALLIANCE auprès de nos partenaires fonciers, selon disponibilité, pour la construction d'une maison neuve. Non mandaté pour réaliser la vente (loi du 2 janvier 1970 n°70-9). Visuels non contractuels. Voir détails en agence.Cette annonce a été créée et diffusée avec le logiciel VITAHOME.
La Flèche
TERRAIN ET MAISONA LA FLECHE sur un terrain de 500 m², Alliance Construction vous propose de réaliser votre projet de construction de maison individuelle d'une surface de 108.08 m² habitables avec 4 chambres, à partir de 269800€*Demandez une étude gratuite et personnalisée de votre projet de construction !* Cette offre comprend :- Garanties constructeurs (dommages ouvrage, garantie de prix ferme et définitif, garantie de livraison, responsabilité civile et décennale).- Branchements aux compteurs et accès empierré sur 5m linéaires.Habitez une maison spécialement pensée et conçue pour vous et votre famille, prête à décorer, adaptée à vos modes de vie, personnalisée selon vos goûts grâce à un large choix d'options, de matériaux et d'innovations !Contactez Patrice (Numéro supprimé)*Prix indicatif pour un projet de construction d'une maison individuelle. Ne sont pas inclus les frais de branchements, raccordements aux réseaux publics, frais d'adaptations, aménagements intérieurs et extérieurs et options. terrain viabilisé, frais de notaire non compris, frais divers non compris. Garanties et assurances obligatoires incluses. Terrain sélectionné par ALLIANCE auprès de nos partenaires fonciers, selon disponibilité, pour la construction d'une maison neuve. Non mandaté pour réaliser la vente (loi du 2 janvier 1970 n°70-9). Visuels non contractuels. Voir détails en agence.Cette annonce a été créée et diffusée avec le logiciel VITAHOME.
La Flèche
TERRAIN ET MAISONA LA FLECHE sur un terrain de 500 m², Alliance Construction vous propose de réaliser votre projet de construction de maison individuelle d'une surface de 87.91 m² habitables avec 3 chambres, à partir de 200654€*Demandez une étude gratuite et personnalisée de votre projet de construction !* Cette offre comprend :- Garanties constructeurs (dommages ouvrage, garantie de prix ferme et définitif, garantie de livraison, responsabilité civile et décennale).- Branchements aux compteurs et accès empierré sur 5m linéaires.Habitez une maison spécialement pensée et conçue pour vous et votre famille, prête à décorer, adaptée à vos modes de vie, personnalisée selon vos goûts grâce à un large choix d'options, de matériaux et d'innovations !Contactez Patrice (Numéro supprimé)*Prix indicatif pour un projet de construction d'une maison individuelle. Ne sont pas inclus les frais de branchements, raccordements aux réseaux publics, frais d'adaptations, aménagements intérieurs et extérieurs et options. terrain viabilisé, frais de notaire non compris, frais divers non compris. Garanties et assurances obligatoires incluses. Terrain sélectionné par ALLIANCE auprès de nos partenaires fonciers, selon disponibilité, pour la construction d'une maison neuve. Non mandaté pour réaliser la vente (loi du 2 janvier 1970 n°70-9). Visuels non contractuels. Voir détails en agence.Cette annonce a été créée et diffusée avec le logiciel VITAHOME.
La Flèche
TERRAIN ET MAISONVous rêvez de devenir propriétaire ? Ne cherchez plus, cette maison est faite pour vous !Caractéristiques :2 chambres spacieuses pour votre confortGarage pour votre véhicule ou pour du rangement supplémentaireMaison neuve prête à être construite sur un terrain viabiliséEmplacement privilégié, à proximité du bourg et de toutes les commodités nécessaires Cette maison est idéale pour un jeune couple souhaitant poser ses valises dans un cadre agréable et bien desservi. Profitez de l’opportunité de concrétiser votre rêve immobilier dans un environnement calme et pratique !Contactez-moi pour plus d'informations et découvrir les différentes options de personnalisation.Patrice, (Numéro supprimé)Contactez Patrice(Numéro supprimé)*Prix indicatif pour un projet de construction d'une maison individuelle. Ne sont pas inclus les frais de branchements, raccordements aux réseaux publics, frais d'adaptations, aménagements intérieurs et extérieurs et options. terrain viabilisé, frais de notaire non compris, frais divers non compris. Garanties et assurances obligatoires incluses. Terrain sélectionné par ALLIANCE auprès de nos partenaires fonciers, selon disponibilité, pour la construction d'une maison neuve. Non mandaté pour réaliser la vente (loi du 2 janvier 1970 n°70-9). Visuels non contractuels. Voir détails en agence.Cette annonce a été créée et diffusée avec le logiciel VITAHOME.
L’actualité immobilière à Mareil-sur-Loir
27/11/2023
02/11/2023
30/10/2023
20/10/2023
16/10/2023
16/10/2023