Images
Description
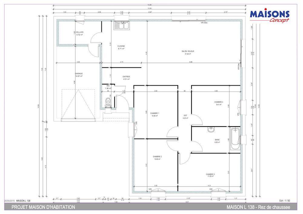
Nous vous proposons cette maison neuve, baptisée ""Élégance"", un modèle qui se distingue par sa forme en L, offrant à la fois style et fonctionnalité. Avec une surface habitable de 93 m², cette maison de plain-pied est conçue pour maximiser l'espace et le confort de ses résidents. Elle comprend un grand salon-séjour lumineux, ouvert sur une cuisine moderne, idéale pour partager des moments conviviaux en famille ou entre amis.
L'architecture en L permet une séparation naturelle entre l'espace de vie et l'espace nuit, ce dernier étant composé de 3 chambres spacieuses, garantissant intimité et tranquillité. La maison dispose également d'un garage intégré, pratique pour sécuriser votre véhicule ou pour du stockage supplémentaire, ainsi qu'un cellier adjacent à la cuisine, parfait pour organiser vos provisions et ustensiles de cuisine.
L'une des caractéristiques les plus appréciées de ce modèle est son enduit bi-ton, qui ajoute une touche d'élégance et de modernité à l'extérieur de la maison, la faisant ressortir dans n'importe quel environnement.
Construite dans le respect des normes de la RE2020, cette maison basse consommation est un choix judicieux pour ceux qui cherchent à réduire leur empreinte écologique tout en bénéficiant d'un confort optimal. Elle est personnalisable selon vos besoins et vos envies, vous permettant de créer un foyer qui vous ressemble, adapté à votre mode de vie.
""Élégance"" est plus qu'une maison, c'est un lieu de vie pensé pour votre bien-être et celui de votre famille, où chaque détail a été conçu pour répondre à vos attentes les plus élevées. Ne manquez pas l'opportunité de construire la maison de vos rêves, un espace où chaque jour sera empreint de confort, de style et d'efficacité énergétique.
Logement susceptibles de vous intéresser
Nous vous proposons de découvrir aussi cette sélection de logements situés à moins de 10km de Montreuil-le-Henri et qui seraient susceptibles de vous intéresser.
Le Grand-Lucé
TERRAINTerrain constructible d’environ 4300 m² proche centre bourg du Grand Lucé.Situé au calme et joliment arboré, il vous permet de construire votre nid à votre goût!Terrain pas viabilisé.Cette annonce référence 274781 vous est présentée par votre agent commercial BSK Immobilier TATIANA BARATTE (EI) immatriculé au RSAC de LE MANS (72000) sous le numéro 9(Numéro supprimé)019.Prix du bien : 130 000,00 €Prix du bien hors honoraires : 122 642,00 €Honoraires TTC : 6,00 %Les honoraires d’agence sont à la charge de l’acquéreur.Les informations sur les risques auxquels ce bien est exposé sont disponibles sur le site Géorisques : www.georisques.gouv.fr
Loir en Vallée
TERRAINVenez découvrir ce magnifique terrain à vendre dans la charmante commune de Loir en Vallée. Avec une superficie de 432 m², ce terrain est idéal pour construire la maison de vos rêves. Situé en plein cœur de ville, ce terrain est proche de toutes les commodités nécessaires telles que des commerces, des écoles, un collège et un lycée. Vous pourrez également profiter d’une vue dégagée et ensoleillée ainsi que d’un cadre champêtre et calme. La région regorge d’attractions locales, allant des magnifiques paysages de la vallée du Loir, en passant par les châteaux et les villages pittoresques à découvrir. Vous pourrez également profiter des nombreux services à proximité, ainsi que des transports en commun faciles d’accès avec un arrêt de bus à proximité. Avec son terrain plat, viabilisé et arboré, ainsi que sa localisation idéale, ce terrain offre un potentiel unique pour construire la maison de vos rêves. Ne manquez pas cette opportunité exceptionnelle, venez visiter ce terrain dès aujourd’hui !
Loir en Vallée
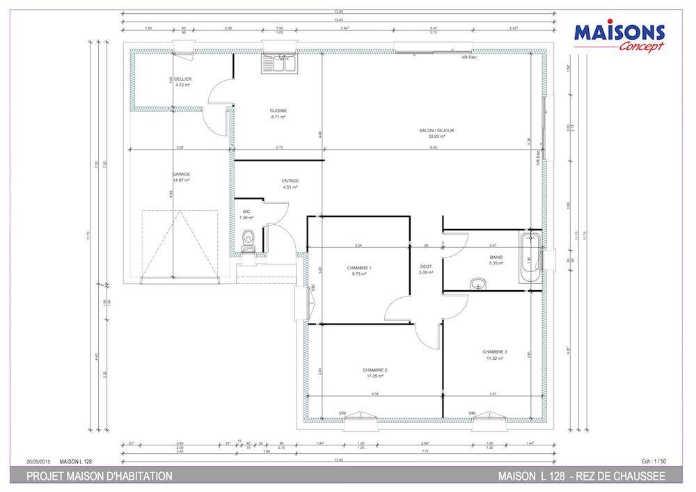
TERRAIN ET MAISONNous vous proposons cette maison neuve, baptisée « »Émeraude » », un modèle de construction qui allie élégance et fonctionnalité dans un design en L, parfait pour ceux qui cherchent à concilier confort de vie et respect de l’environnement. Avec une surface habitable de 72 m², cette maison basse consommation est conçue pour répondre aux exigences de la norme RE2020, garantissant ainsi une efficacité énergétique optimale et un impact environnemental réduit.L’Émeraude se distingue par ses 3 chambres accueillantes et ses 4 pièces bien agencées, offrant un cadre de vie idéal pour une famille. Le plan en L de la maison permet une séparation intelligente entre l’espace jour et l’espace nuit, assurant ainsi intimité et tranquillité. Le séjour, spacieux et lumineux, est le cœur de la maison, un lieu de vie agréable où votre famille pourra se retrouver et partager des moments inoubliables.Cette maison est également équipée d’un cellier pratique et d’un garage intégré, des atouts considérables pour organiser votre espace de vie et sécuriser votre véhicule. La conception de l’Émeraude a été pensée pour offrir un confort maximal tout en restant incroyablement accessible, financièrement parlant.Pour ceux qui souhaitent personnaliser leur maison, l’Émeraude offre une multitude d’options : que vous rêviez d’un garage accolé, de combles aménageables ou aménagés, notre équipe est à votre écoute pour adapter votre maison à vos envies et besoins. Chaque détail compte pour faire de l’Émeraude votre foyer idéal.Investir dans la maison Émeraude, c’est choisir un habitat durable, conçu pour le bien-être de ses occupants et respectueux de l’environnement. Ne manquez pas cette opportunité de construire la maison de vos rêves, une maison qui, au-delà de sa beauté et de son confort, contribuera à un avenir plus vert.
Le Grand-Lucé
TERRAINBienvenue à Le Grand-Lucé, une charmante commune de la Sarthe où se situe ce magnifique terrain à vendre. Avec une surface de 550m² et une situation idéale dans le cœur de ville, ce terrain offre de nombreuses opportunités pour les futurs propriétaires. Situé à seulement quelques pas des commerces et services, vous pourrez profiter de toutes les commodités dont vous avez besoin au quotidien. De plus, les écoles et le collège/lycée se trouvent à proximité, offrant un emplacement idéal pour les familles. Mais ce qui rend ce terrain encore plus attractif, c’est sa proximité avec de nombreuses attractions locales. Vous pourrez admirer la vue dégagée sur le magnifique paysage environnant, avec une exposition ensoleillée et un cadre arboré. De plus, le calme et le charme champêtre de la région en font un lieu idéal pour construire votre maison de rêve sans vis-à-vis. Avec tous ces atouts, ce terrain viabilisé offre un fort potentiel pour devenir votre prochaine résidence. Ne manquez pas cette occasion unique d’acheter un terrain dans une région prisée et en pleine expansion. Contactez-nous dès maintenant pour en savoir plus et planifier une visite sur place !
Le Grand-Lucé
TERRAIN ET MAISONNous vous proposons cette maison neuve, baptisée « »Topaze » », un modèle de charme issu de la gamme Primaciel, qui se distingue par son design élégant en L. Avec une surface habitable de 68 m², cette maison est parfaitement conçue pour répondre aux besoins d’une vie familiale moderne et confortable. Elle comprend 2 chambres spacieuses et un total de 3 pièces, offrant ainsi un cadre de vie intime et accueillant.La Topaze se fait remarquer par son porche d’entrée accueillant et son garage intégré, des caractéristiques qui allient fonctionnalité et esthétique. Son plan en L n’est pas seulement un choix de design; il permet également une séparation naturelle des espaces de vie, créant ainsi une harmonie parfaite entre les différentes zones de la maison.Parmi les options les plus plébiscitées par nos clients, le cellier se distingue. Pratique et astucieux, il offre un espace de rangement supplémentaire très apprécié, facilitant l’organisation du quotidien.Cette maison neuve est également une championne de la basse consommation, conformément à la réglementation environnementale RE2020. Elle est conçue pour minimiser votre empreinte écologique tout en maximisant votre confort, grâce à des matériaux de construction de dernière génération et à des technologies énergétiques avancées.La Topaze est idéale pour ceux qui font leur premier achat immobilier, offrant un excellent rapport qualité-prix sans compromettre la qualité ou le confort. Disponible en versions 2, 3 ou 4 chambres, elle s’adapte à vos besoins et à ceux de votre famille, vous permettant de créer le foyer dont vous avez toujours rêvé.N’attendez plus pour découvrir cette maison qui combine habilement design, confort et respect de l’environnement. La Topaze est une invitation à vivre dans un espace qui vous ressemble, tout en étant tourné vers l’avenir. Contactez-nous pour plus d’informations et laissez-vous séduire par le charme et les nombreuses possibilités qu’offre ce modèle exceptionnel.
Loir en Vallée
TERRAINDécouvrez cette opportunité unique et devenez propriétaire de ce terrain à vendre dans le charmant village de Loir en Vallée. Avec une surface de 910m², ce terrain offre de nombreuses possibilités pour construire la maison de vos rêves. Ne manquez pas cette occasion de devenir propriétaire dans cette région prisée. Situé dans la ville de Loir en Vallée, ce terrain bénéficie d’un emplacement central et pratique. Les environs immédiats comprennent des routes principales et des transports en commun à proximité, vous offrant un accès facile aux villes voisines et au reste de la région. De plus, le terrain est viabilisé, ce qui facilitera grandement la construction de votre future maison. Ce terrain se trouve dans une région aux nombreux attraits. En tant que propriétaire, vous pourrez profiter de la proximité des commerces, des écoles, et de toutes les commodités dont vous avez besoin au quotidien. De plus, vous pourrez admirer la superbe vue dégagée sur les alentours, tout en profitant du calme et de la tranquillité offerts par un cadre champêtre et arboré. Vous ne manquerez pas de divertissements avec les nombreuses attractions locales à découvrir. N’attendez plus et saisissez cette opportunité exceptionnelle pour devenir propriétaire de ce terrain à Loir en Vallée. Avec son emplacement privilégié, ses points forts et son potentiel, ce terrain est idéal pour ceux qui cherchent à construire leur maison dans un environnement agréable et paisible. Faites vite, ce terrain ne restera pas sur le marché très longtemps.
Loir en Vallée
TERRAIN ET MAISONNous vous proposons cette maison neuve, baptisée « »Saphir » », un modèle de notre gamme Primaciel conçu pour être accessible au plus grand nombre et idéal pour une première acquisition. De plain-pied, cette maison à prix maîtrisé bénéficie d’un aménagement optimisé avec son garage intégré, offrant un confort de vie inégalé sur une surface de 68 m².Le modèle Saphir se distingue par ses 4 pièces bien agencées, comprenant 3 chambres accueillantes pour toute la famille ou pour aménager un espace bureau selon vos besoins. La conception de cette maison a été pensée pour maximiser chaque mètre carré disponible, offrant ainsi un espace de vie chaleureux et fonctionnel.Parmi ses caractéristiques principales, le Saphir présente des combles perdus, permettant une isolation optimale et une réduction significative des besoins en chauffage. Le garage intégré offre non seulement un espace de stationnement sécurisé mais aussi un espace de rangement supplémentaire, très apprécié dans une maison de cette taille.Conscients des attentes de nos clients, nous proposons en option l’aménagement des combles, une demande fréquente qui permet d’augmenter l’espace de vie sans empiéter sur le jardin. Cette option transforme les combles perdus en pièces à vivre, idéales pour une salle de jeux, un bureau ou une chambre supplémentaire.Cette maison neuve est également conçue pour être basse consommation et est conforme à la réglementation environnementale RE2020. Cela signifie que le Saphir bénéficie des dernières innovations en matière d’isolation et de systèmes énergétiques, réduisant ainsi les coûts énergétiques tout en respectant l’environnement.Le modèle Saphir est une invitation à vivre dans une maison moderne, économique et confortable, pensée pour répondre aux besoins des familles d’aujourd’hui. Faites le premier pas vers la maison de vos rêves en choisissant Saphir, un modèle qui allie qualité, confort et respect de l’environnement.
Montreuil-le-Henri
TERRAIN ET MAISONNous vous proposons cette maison neuve, baptisée « »Élégance » », un modèle qui se distingue par sa forme en L, offrant à la fois style et fonctionnalité. Avec une surface habitable de 93 m², cette maison de plain-pied est conçue pour maximiser l’espace et le confort de ses résidents. Elle comprend un grand salon-séjour lumineux, ouvert sur une cuisine moderne, idéale pour partager des moments conviviaux en famille ou entre amis. L’architecture en L permet une séparation naturelle entre l’espace de vie et l’espace nuit, ce dernier étant composé de 3 chambres spacieuses, garantissant intimité et tranquillité. La maison dispose également d’un garage intégré, pratique pour sécuriser votre véhicule ou pour du stockage supplémentaire, ainsi qu’un cellier adjacent à la cuisine, parfait pour organiser vos provisions et ustensiles de cuisine.L’une des caractéristiques les plus appréciées de ce modèle est son enduit bi-ton, qui ajoute une touche d’élégance et de modernité à l’extérieur de la maison, la faisant ressortir dans n’importe quel environnement. Construite dans le respect des normes de la RE2020, cette maison basse consommation est un choix judicieux pour ceux qui cherchent à réduire leur empreinte écologique tout en bénéficiant d’un confort optimal. Elle est personnalisable selon vos besoins et vos envies, vous permettant de créer un foyer qui vous ressemble, adapté à votre mode de vie. » »Élégance » » est plus qu’une maison, c’est un lieu de vie pensé pour votre bien-être et celui de votre famille, où chaque détail a été conçu pour répondre à vos attentes les plus élevées. Ne manquez pas l’opportunité de construire la maison de vos rêves, un espace où chaque jour sera empreint de confort, de style et d’efficacité énergétique.
Villaines-sous-Lucé
TERRAINNous vous proposons à la vente un terrain viabilisé d’une surface généreuse de 550 m², idéalement situé à Villaines-sous-Lucé. Avec une largeur de façade de 17 mètres, ce terrain s’impose comme le choix parfait pour concrétiser votre projet de construction de maison. Profitez d’une superbe vue dégagée et d’un cadre champêtre exceptionnel, tout en étant à proximité immédiate des commodités urbaines. Le calme ambiant et l’ensoleillement optimal de ce terrain en font une offre rare sur le marché immobilier. Villaines-sous-Lucé, située dans le département de la Sarthe, est une charmante commune qui allie tranquillité et accessibilité. Vous trouverez à proximité immédiate divers commerces, services essentiels, ainsi que des écoles, garantissant un cadre de vie propice pour les familles. La ville est entourée d’espaces verts et de paysages enchanteurs, favorisant les activités de plein air et les moments de détente. Sa position stratégique permet également un accès facile aux axes routiers, facilitant ainsi vos déplacements vers les villes voisines. Ce terrain représente une opportunité d’achat unique pour réaliser la maison de vos rêves dans un environnement paisible et agréable. Ne laissez pas passer cette chance et contactez-nous dès aujourd’hui pour plus de détails?!
L’actualité immobilière à Montreuil-le-Henri
27/11/2023
02/11/2023
30/10/2023
20/10/2023
16/10/2023
16/10/2023