Images
Description
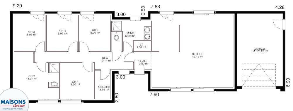
Nous vous proposons cette maison neuve, baptisée ""Hilya"", un modèle d'exception qui allie avec brio charme et modernité. Conçue par un architecte de renom, cette maison en L se distingue par son esthétique contemporaine, ses lignes épurées et son toit plat, offrant un design unique et une intégration harmonieuse dans son environnement.
D'une surface de 85 m², Hilya est judicieusement agencée pour maximiser l'espace et le confort. Elle comprend 4 pièces lumineuses, dont 3 chambres accueillantes, promettant un cadre de vie idéal pour une famille. Le garage accolé, pratique et esthétique, s'intègre parfaitement à l'ensemble, renforçant le caractère fonctionnel de cette demeure.
Les options les plus plébiscitées par nos clients, telles que les menuiseries en aluminium, offrant durabilité et esthétique, la toiture quatre pans, alternative élégante au toit plat, et la domotique, pour une maison connectée et intelligente, sont disponibles pour personnaliser votre Hilya selon vos désirs et besoins.
Cette maison neuve est également un modèle de performance énergétique, basse consommation et conforme à la norme RE2020. Elle est conçue pour réduire significativement votre empreinte carbone tout en assurant un confort optimal en toutes saisons, grâce à une isolation de pointe et à des équipements énergétiques de dernière génération.
Choisir Hilya, c'est opter pour une maison qui respecte à la fois l'environnement et vos exigences de confort et de modernité. Laissez-vous séduire par ce modèle qui marie esthétique contemporaine et fonctionnalité, pour faire de votre rêve de maison idéale une réalité.
Logement susceptibles de vous intéresser
Nous vous proposons de découvrir aussi cette sélection de logements situés à moins de 10km de Neuville-sur-Sarthe et qui seraient susceptibles de vous intéresser.
Aigné
TERRAINVENTE : terrain de 780 m² à AignéIDÉALEMENT SITUÉ – VUE DÉGAGÉEÀ deux pas du Mans à Aigné (72650), grand terrain. Ce terrain, avec vue dégagée, est orienté plein ouest. Dans un secteur convoité, le terrain idéalement situé est proche des commerces et des écoles. Il y a l’École Primaire Publique Roger Bazille à moins de 10 minutes à pied. Niveau transports en commun, on trouve quatre gares à moins de 10 minutes en voiture. On trouve un accès à l’autoroute A11 à 4 km. Il y a un tennis à quelques minutes à peine.Ce terrain est proposé à l’achat pour 52 000 €. Prenez contact avec François HOUDAYER ((Numéro supprimé)) pour toute question sur le terrain, sur les modalités de vente ou sur les démarches à suivre.
Aigné
TERRAIN ET MAISONVENTE : maison T5 (104 m²) à AignéIDÉALEMENT SITUÉE – MAISON 5 PIÈCES NEUVEÀ vendre : à deux pas du Mans, idéalement située dans Aigné (72650), votre agence Maine Construction Le Mans est heureuse de vous présenter cette maison de 5 pièces de plain-pied de 104 m² et de 780 m² de terrain.Conçue de plain-pied, elle propose quatre chambres, une cuisine et une salle de bains. Cette maison est neuve.La maison se trouve dans un secteur attractif. Il y a l’École Primaire Publique Roger Bazille à moins de 10 minutes à pied. Côté transports, on trouve quatre gares à moins de 10 minutes en voiture. On trouve un accès à l’autoroute A11 à 4 km. Il y a un tennis à quelques minutes à peine.Elle est à vendre pour la somme de 265 000 €.N’hésitez pas à prendre contact avec notre constructeur (HOUDAYER François : (Numéro supprimé)) pour obtenir de plus amples informations sur la maison ou sur les modalités de vente. Donnez vie à vos projets immobiliers avec Maine Construction Le Mans.
Aigné
TERRAIN ET MAISONVENTE d’une maison F5 (148 m²) à AignéIDÉALEMENT SITUÉE – MAISON 5 PIÈCES NEUVEÀ vendre à 11 km du Mans, votre agence Maine Construction Le Mans est heureuse de vous présenter cette maison de 5 pièces de 148 m² et de 780 m² de terrain idéalement située dans Aigné (72650). Son intérieur est composé de quatre chambres, d’une cuisine et de deux salles de bains.Il s’agit d’une maison de 2 niveaux. Elle est neuve.La maison se situe dans un secteur prisé. L’École Primaire Publique Roger Bazille se trouve à moins de 10 minutes à pied. Côté transports en commun, il y a quatre gares à moins de 10 minutes en voiture. L’autoroute A11 est accessible à 4 km. On trouve un tennis dans les environs.Elle est à vendre pour la somme de 411 000 €.Prenez contact avec notre constructeur (François HOUDAYER : (Numéro supprimé)) pour obtenir de plus amples renseignements sur la maison. Maine Construction Le Mans est là pour vous accompagner dans tous vos projets immobiliers.
Aigné
TERRAIN ET MAISONAigné : maison T4 (98 m²) à vendreIDÉALEMENT SITUÉE – MAISON 4 PIÈCES NEUVEÀ vendre : située à deux pas du Mans, Maine Construction Le Mans vous présente cette maison de 4 pièces de plain-pied de 98 m² et de 780 m² de terrain, idéalement située dans Aigné (72650). Conçue de plain-pied, elle offre trois chambres, une cuisine et une salle de bains.La maison est neuve.Cette maison se trouve dans un secteur attractif. Il y a l’École Primaire Publique Roger Bazille à moins de 10 minutes à pied. Côté transports en commun, on trouve quatre gares à moins de 10 minutes en voiture. Il y a un accès à l’autoroute A11 à 4 km. Il y a un tennis à proximité.Elle est proposée à l’achat pour 269 000 €.Prenez contact avec notre agence (HOUDAYER François : (Numéro supprimé)) pour obtenir de plus amples renseignements sur la propriété, sur les démarches à suivre ou sur les modalités de vente.
Aigné
TERRAIN ET MAISONVENTE : maison F4 (54 m²) à AignéIDÉALEMENT SITUÉE – MAISON 4 PIÈCES NEUVEÀ vendre : à 11 km du Mans, nous vous proposons cette maison de 4 pièces de plain-pied de 54 m², idéalement située dans Aigné (72650).Son intérieur comporte deux chambres, une cuisine et une salle de bains. La maison est neuve.Le terrain de la propriété est de 780 m².Cette maison se trouve dans un secteur recherché. Il y a l’École Primaire Publique Roger Bazille à moins de 10 minutes à pied. Côté transports en commun, on trouve quatre gares à moins de 10 minutes en voiture. Il y a un accès à l’autoroute A11 à 4 km. Il y a un tennis à quelques minutes.Elle est proposée à l’achat pour 169 000 €.Contactez notre agence (HOUDAYER François : (Numéro supprimé)) pour obtenir de plus amples renseignements sur la maison.
Aigné
TERRAIN ET MAISONVENTE : maison de 4 pièces (76 m²) à AignéIDÉALEMENT SITUÉE – MAISON 4 PIÈCES NEUVEÀ deux pas du Mans, nous sommes ravis de vous présenter cette maison de 4 pièces de plain-pied de 76 m² idéalement située dans Aigné (72650). Elle est composée de deux chambres, d’une cuisine et d’une salle de bains.Le terrain du bien est de 780 m².Cette maison est neuve.La maison est située dans un secteur prisé. L’École Primaire Publique Roger Bazille est implantée à moins de 10 minutes à pied. Niveau transports en commun, il y a quatre gares à moins de 10 minutes en voiture. L’autoroute A11 est accessible à 4 km. On trouve un tennis dans les environs.Elle est à vendre pour la somme de 225 000 €.Prenez contact avec notre agence (HOUDAYER François : (Numéro supprimé)) pour plus de renseignements sur la maison, sur les démarches à suivre ou sur les modalités de vente. Maine Construction Le Mans est là pour vous accompagner dans tous vos projets immobiliers.
Aigné
TERRAIN ET MAISONVENTE d’une maison de 3 pièces (83 m²) à AignéIDÉALEMENT SITUÉE – MAISON 3 PIÈCES NEUVEÀ vendre : localisée à deux pas du Mans, découvrez cette maison de 3 pièces de plain-pied de 83 m² et de 780 m² de terrain idéalement située dans Aigné (72650). Conçue de plain-pied, elle dispose de deux chambres, d’une cuisine et d’une salle de bains.La maison est neuve.Cette maison se trouve dans un secteur convoité. L’École Primaire Publique Roger Bazille est implantée à moins de 10 minutes à pied. Niveau transports, on trouve quatre gares à moins de 10 minutes en voiture. L’autoroute A11 est accessible à 4 km. Il y a un tennis à proximité du bien.Son prix de vente est de 239 000 €.Prenez contact avec François HOUDAYER (tél : (Numéro supprimé)) pour tout renseignement sur la maison.
Aigné
TERRAIN ET MAISONVENTE d’une maison de 6 pièces (99 m²) à AignéIDÉALEMENT SITUÉE – MAISON 6 PIÈCES NEUVEÀ vendre à quelques kilomètres du Mans, idéalement située dans Aigné (72650), Maine Construction Le Mans vous présente cette maison de 6 pièces de plain-pied de 99 m². Conçue de plain-pied, elle se divise en trois chambres, une cuisine et une salle de bains.Le terrain de la maison s’étend sur 780 m².La maison est neuve.Ce bien se trouve dans un quartier convoité. L’École Primaire Publique Roger Bazille est implantée à moins de 10 minutes à pied. Côté transports, on trouve quatre gares à moins de 10 minutes en voiture. Il y a un accès à l’autoroute A11 à 4 km. Il y a un tennis dans les environs.Il est proposé à l’achat pour 265 000 €.N’hésitez pas à prendre contact avec François HOUDAYER ((Numéro supprimé)) pour toute information sur la maison et sur les modalités de vente.
Aigné
TERRAIN ET MAISONVENTE : maison de 4 pièces (90 m²) à AignéIDÉALEMENT SITUÉE – MAISON 4 PIÈCES NEUVEÀ vendre : située à quelques kilomètres du Mans, nous sommes heureux de vous présenter, idéalement située dans Aigné (72650), cette maison de 4 pièces de plain-pied de 90 m². Elle propose trois chambres, une cuisine et une salle de bains.Le terrain de la propriété s’étend sur 780 m².La maison est neuve.Cette maison se trouve dans un quartier prisé. Il y a l’École Primaire Publique Roger Bazille à moins de 10 minutes à pied. Niveau transports, on trouve quatre gares à moins de 10 minutes en voiture. On trouve un accès à l’autoroute A11 à 4 km. Il y a un tennis à quelques minutes à peine.Elle est proposée à l’achat pour 249 000 €.Contactez François HOUDAYER ((Numéro supprimé)) pour tout renseignement sur la propriété ou sur les démarches à suivre.
L’actualité immobilière à Neuville-sur-Sarthe
27/11/2023
02/11/2023
30/10/2023
20/10/2023
16/10/2023
16/10/2023