Images
Description
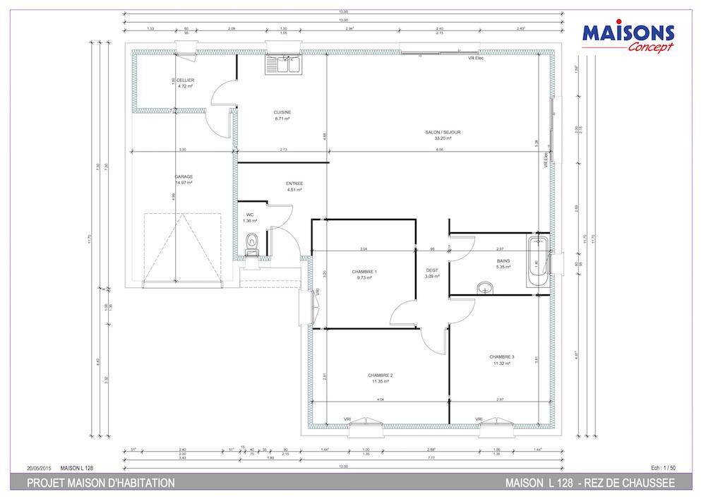
Nous vous proposons cette maison neuve, baptisée ""Élégance"", un modèle qui se distingue par sa forme architecturale en L, offrant à la fois style et fonctionnalité sur une surface habitable de 103 m². Conçue pour répondre aux attentes des plus exigeants, cette maison de plain-pied combine harmonieusement espace et confort, avec un total de 4 pièces, dont 4 chambres spacieuses, promettant ainsi un cadre de vie idéal pour toute la famille.
L'entrée s'ouvre sur un vaste salon-séjour baigné de lumière, grâce à sa conception ouverte qui s'étend jusqu'à la cuisine, créant un espace de vie convivial et accueillant. L'intégration d'un garage attenant et d'un cellier pratique souligne la pensée méticuleuse mise dans la conception de cette maison, visant à allier esthétique et fonctionnalité.
L'une des caractéristiques les plus appréciées de ce modèle est son enduit bi-ton, qui ajoute une touche de modernité et d'élégance à l'extérieur, reflétant le nom même de la maison. De plus, cette maison est entièrement personnalisable, vous permettant d'adapter chaque espace à votre mode de vie et à vos préférences, assurant ainsi que votre futur foyer réponde parfaitement à vos attentes.
Au-delà de son design attrayant, ""Élégance"" est une maison basse consommation, rigoureusement conçue pour respecter les normes de la RE2020. Cette caractéristique garantit non seulement un confort optimal tout au long de l'année mais aussi des économies significatives sur les factures d'énergie, soulignant notre engagement envers la durabilité et le respect de l'environnement.
En choisissant ""Élégance"", vous optez pour une maison qui allie beauté, confort et responsabilité environnementale. Une opportunité à ne pas manquer pour ceux qui cherchent à construire leur nid familial dans un cadre de vie à la fois moderne et économe en énergie.
Logement susceptibles de vous intéresser
Nous vous proposons de découvrir aussi cette sélection de logements situés à moins de 10km de Saint-Paterne - Le Chevain et qui seraient susceptibles de vous intéresser.
Béthon
TERRAINVENTE : terrain de 1 464 m² à BéthonEMPLACEMENT PRIVILÉGIÉ – PROCHE D’ALENÇONGrand terrain à 7 km d’Alençon. De 1 464 m², ce terrain se situe bénéficiant d’un emplacement d’exception dans Béthon (72610). Il est exposé au sud-ouest. Ce terrain se trouve dans un secteur prisé. Côté transports en commun, il y a les gares La Hutte Coulombiers et Alençon à moins de 10 minutes en voiture. L’autoroute A28 et la nationale N12 sont accessibles à moins de 10 km. On trouve un commerce dans les environs.Son prix de vente est de 29 280 €. Contactez notre agence (RODRIGUES MORAIS Elisa : (Numéro supprimé)) pour obtenir de plus amples renseignements sur le terrain ou sur les modalités de vente. Maisons France Confort Alençon vous accompagne à toutes les étapes de votre projet et dans tous vos projets immobiliers.
Béthon
TERRAIN ET MAISONBéthon : maison T7 (110 m²) à vendreEMPLACEMENT PRIVILÉGIÉ – MAISON 7 PIÈCES NEUVEÀ vendre : située à deux pas d’Alençon, Maisons France Confort Alençon vous propose, bénéficiant d’un emplacement d’exception dans Béthon (72610), cette maison de 7 pièces de 110 m² et de 1 464 m² de terrain. Son intérieur propose quatre chambres, une cuisine et deux salles de bains.Cette maison compte 2 niveaux. Elle est neuve.Cette maison se trouve dans un secteur attractif. Niveau transports, il y a les gares La Hutte Coulombiers et Alençon à moins de 10 minutes en voiture. L’autoroute A28 et la nationale N12 sont accessibles à moins de 10 km. On trouve un commerce à proximité du logement.Son prix de vente est de 250 000 €.Contactez Elisa RODRIGUES MORAIS ((Numéro supprimé)) pour obtenir de plus amples renseignements sur la maison ou sur les démarches à suivre. Maisons France Confort Alençon est là pour vous accompagner dans tous vos projets immobiliers.
Béthon
TERRAIN ET MAISONVENTE d’une maison de 5 pièces (90 m²) à BéthonQUARTIER RECHERCHÉ – MAISON 5 PIÈCES NEUVEÀ vendre : à quelques kilomètres d’Alençon, venez découvrir, dans un secteur recherché de Béthon (72610), cette maison de 5 pièces de 90 m². Elle inclut trois chambres, une cuisine et une salle de bains.Le terrain de la maison est de 1 316 m².Il s’agit d’une maison de 2 niveaux. Elle est neuve.Cette maison se situe dans un quartier convoité. Côté transports, il y a les gares La Hutte Coulombiers et Alençon à moins de 10 minutes en voiture. L’autoroute A28 et la nationale N12 sont accessibles à moins de 10 km. On trouve un commerce à proximité de la maison.Elle est proposée à l’achat pour 208 000 €.Contactez Elisa RODRIGUES MORAIS ((Numéro supprimé)) pour tout renseignement sur la maison et sur les démarches à suivre.
Béthon
TERRAIN ET MAISONBéthon : maison T4 (92 m²) en venteIDÉALEMENT SITUÉE – MAISON 4 PIÈCES NEUVEÀ vendre : à 7 km d’Alençon, ayez le coup de coeur pour cette maison de 4 pièces de plain-pied de 92 m², idéalement située dans Béthon (72610). Elle offre trois chambres, une cuisine et une salle de bains.Le terrain de la maison est de 1 557 m².Cette maison est neuve.La maison se trouve dans un quartier prisé. Côté transports en commun, il y a les gares La Hutte Coulombiers et Alençon à moins de 10 minutes en voiture. L’autoroute A28 et la nationale N12 sont accessibles à moins de 10 km. On trouve un commerce dans les environs.Son prix de vente est de 198 000 €.Prenez contact avec notre agence (RODRIGUES MORAIS Elisa : (Numéro supprimé)) pour obtenir de plus amples informations sur la maison et sur les démarches à suivre. Maisons France Confort Alençon vous accompagne dans tous vos projets immobiliers et à toutes les étapes de votre projet.
Béthon
TERRAIN ET MAISONMaison F4 (70 m²) en vente à BéthonIDÉALEMENT SITUÉE – MAISON 4 PIÈCES NEUVEÀ vendre : à deux pas d’Alençon, nous vous présentons cette maison de 4 pièces de plain-pied de 70 m² et de 1 557 m² de terrain idéalement située dans Béthon (72610).Son intérieur comporte deux chambres, une cuisine et une salle de bains. La maison est neuve.La maison est située dans un secteur convoité. Niveau transports en commun, il y a les gares La Hutte Coulombiers et Alençon à moins de 10 minutes en voiture. L’autoroute A28 et la nationale N12 sont accessibles à moins de 10 km. On trouve un commerce à quelques minutes du bien.Elle est à vendre pour la somme de 189 000 €.Contactez Elisa RODRIGUES MORAIS (tél : (Numéro supprimé)) pour toute information sur la maison ou sur les démarches à suivre.
Béthon
TERRAIN ET MAISONVENTE d’une maison de 4 pièces (82 m²) à BéthonEMPLACEMENT PRIVILÉGIÉ – MAISON 4 PIÈCES NEUVEÀ quelques kilomètres d’Alençon, nous sommes ravis de vous présenter cette maison de 4 pièces de 82 m² et de 1 464 m² de terrain à vendre bénéficiant d’un emplacement privilégié dans Béthon (72610).Cette maison possède 2 niveaux. Elle offre trois chambres, une cuisine et une salle de bains. La maison est neuve.Cette maison se trouve dans un quartier convoité. Côté transports, il y a les gares La Hutte Coulombiers et Alençon à moins de 10 minutes en voiture. L’autoroute A28 et la nationale N12 sont accessibles à moins de 10 km. On trouve un commerce dans les environs.Son prix de vente est de 184 000 €.Contactez notre agence (Elisa RODRIGUES MORAIS : (Numéro supprimé)) pour obtenir de plus amples renseignements sur la maison, sur les modalités de vente ou sur les démarches à suivre. Faites de vos projets immobiliers une réalité avec Maisons France Confort Alençon.
Béthon
TERRAIN ET MAISONVENTE d’une maison de 6 pièces (106 m²) à BéthonQUARTIER RECHERCHÉ – MAISON 6 PIÈCES NEUVEÀ vendre : localisée à deux pas d’Alençon, située dans un quartier recherché de Béthon (72610), nous sommes ravis de vous présenter cette maison de 6 pièces de plain-pied de 106 m².Conçue de plain-pied, elle dispose de quatre chambres, d’une cuisine et de deux salles de bains. La maison est neuve.Le terrain du bien est de 1 316 m².Cette maison se trouve dans un secteur convoité. Niveau transports en commun, il y a deux gares (La Hutte Coulombiers et Alençon) à moins de 10 minutes en voiture. L’autoroute A28 et la nationale N12 sont accessibles à moins de 10 km. On trouve un commerce dans les environs.Son prix de vente est de 238 000 €.N’hésitez pas à prendre contact avec Elisa RODRIGUES MORAIS (tél : (Numéro supprimé)) pour toute information sur le bien ou sur les modalités de vente. Maisons France Confort Alençon vous accompagne dans tous vos projets immobiliers et à toutes les étapes de votre projet.
Béthon
TERRAINVENTE d’un terrain de 1 557 m² à BéthonIDÉALEMENT SITUÉ – PROCHE D’ALENÇONÀ quelques kilomètres d’Alençon à Béthon (72610), grand terrain. Il est prêt à accueillir la maison de vos rêves pour toute la famille. Il bénéficie d’une exposition sud-ouest. Ce terrain se situe dans un secteur recherché. Côté transports, il y a les gares La Hutte Coulombiers et Alençon à moins de 10 minutes en voiture. L’autoroute A28 et la nationale N12 sont accessibles à moins de 10 km. On trouve un commerce à quelques minutes.Il est proposé à l’achat pour 31 140 €. N’hésitez pas à prendre contact avec Elisa RODRIGUES MORAIS (tél : (Numéro supprimé)) pour toute question sur ce terrain et sur les démarches à suivre. Maisons France Confort Alençon vous accompagne à toutes les étapes de votre projet et dans tous vos projets immobiliers.
Béthon
TERRAIN ET MAISONBéthon : maison de 3 pièces (71 m²) à vendreQUARTIER RECHERCHÉ – MAISON 3 PIÈCES NEUVEÀ vendre : à deux pas d’Alençon, construite dans un quartier prisé de Béthon (72610), Maisons France Confort Alençon vous propose cette maison de 3 pièces de plain-pied de 71 m². Elle est composée de deux chambres, d’une cuisine et d’une salle de bains.Le terrain de la propriété s’étend sur 1 316 m².Cette maison est neuve.La maison se situe dans un secteur recherché. Niveau transports en commun, on trouve deux gares (La Hutte Coulombiers et Alençon) à moins de 10 minutes en voiture. L’autoroute A28 et la nationale N12 sont accessibles à moins de 10 km. Il y a un commerce à quelques minutes du bien.Elle est à vendre pour la somme de 149 200 €.N’hésitez pas à prendre contact avec Elisa RODRIGUES MORAIS (tél : (Numéro supprimé)) pour obtenir de plus amples informations sur la maison. Maisons France Confort Alençon est là pour vous accompagner dans tous vos projets immobiliers.
L’actualité immobilière à Saint-Paterne - Le Chevain
27/11/2023
02/11/2023
30/10/2023
20/10/2023
16/10/2023
16/10/2023