Images
Description
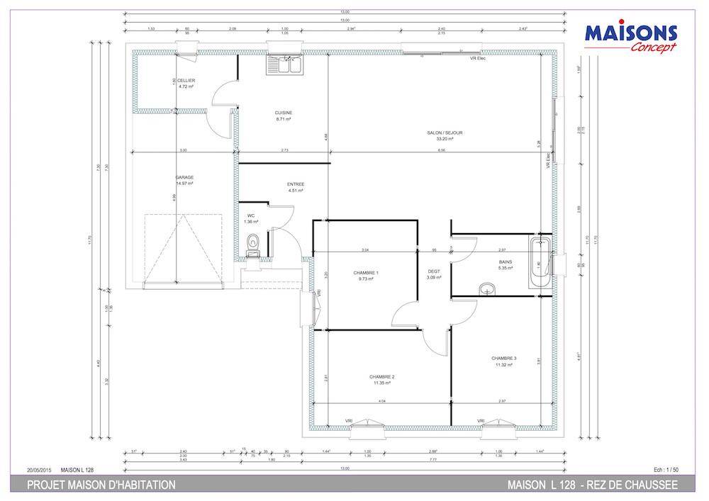
Nous vous proposons cette maison neuve, baptisée ""Élégance"", un modèle qui se distingue par sa forme en L, offrant à la fois style et fonctionnalité. Avec une surface habitable de 93 m², cette maison de plain-pied est conçue pour maximiser l'espace et le confort de ses résidents. Elle comprend un grand salon-séjour lumineux, ouvert sur une cuisine moderne, idéale pour partager des moments conviviaux en famille ou entre amis.
L'architecture en L permet une séparation naturelle entre l'espace de vie et l'espace nuit, ce dernier étant composé de 3 chambres spacieuses, garantissant intimité et tranquillité. La maison dispose également d'un garage intégré, pratique pour sécuriser votre véhicule ou pour du stockage supplémentaire, ainsi qu'un cellier adjacent à la cuisine, parfait pour organiser vos provisions et ustensiles de cuisine.
L'une des caractéristiques les plus appréciées de ce modèle est son enduit bi-ton, qui ajoute une touche d'élégance et de modernité à l'extérieur de la maison, la faisant ressortir dans n'importe quel environnement.
Construite dans le respect des normes de la RE2020, cette maison basse consommation est un choix judicieux pour ceux qui cherchent à réduire leur empreinte écologique tout en bénéficiant d'un confort optimal. Elle est personnalisable selon vos besoins et vos envies, vous permettant de créer un foyer qui vous ressemble, adapté à votre mode de vie.
""Élégance"" est plus qu'une maison, c'est un lieu de vie pensé pour votre bien-être et celui de votre famille, où chaque détail a été conçu pour répondre à vos attentes les plus élevées. Ne manquez pas l'opportunité de construire la maison de vos rêves, un espace où chaque jour sera empreint de confort, de style et d'efficacité énergétique.
Logement susceptibles de vous intéresser
Nous vous proposons de découvrir aussi cette sélection de logements situés à moins de 10km de Soulitré et qui seraient susceptibles de vous intéresser.
Lombron
TERRAINNous avons le plaisir de vous présenter un terrain exceptionnel, d’une superficie généreuse de 518 m², idéalement situé au cœur de Lombron dans le département de la Sarthe. Ce terrain viabilisé vous offre une toile blanche parfaite pour réaliser le projet de vos rêves, que ce soit la construction d’une maison familiale, d’un refuge paisible ou d’un espace de vie moderne. Son environnement arboré et ensoleillé saura répondre à vos attentes en matière de qualité de vie. Lombron, charmante commune des Pays de la Loire, se distingue par sa sécurité et son atmosphère conviviale. Vous bénéficierez d’une proximité immédiate avec le centre-ville, offrant un accès facile à toutes les commodités telles que les écoles, les commerces et les services locaux. Les habitants peuvent également profiter d’attractions locales, telles que des espaces verts et des activités communautaires, qui contribuent à une vie agréable et dynamique. Ce terrain représente non seulement une opportunité rare d’acquérir un bien foncier exceptionnel, mais également un cadre de vie privilégié. Ne laissez pas passer cette opportunité unique d’investir dans un terrain au potentiel illimité. Contactez-nous dès maintenant pour en savoir plus sur ce bien rare à Lombron. À noter qu’en tant que constructeur, nous ne sommes pas mandatés pour réaliser la vente de ce terrain.
Lombron
TERRAIN ET MAISONNous vous proposons cette maison neuve, baptisée « »Jade » », un modèle d’habitation qui allie confort, modernité et respect de l’environnement. Conçue pour répondre aux besoins d’une famille moderne, la maison Jade offre une surface habitable de 97 m², répartie sur deux niveaux, avec un total de 4 pièces dont 3 chambres spacieuses, permettant d’accueillir confortablement une famille de 4 à 5 personnes.Le rez-de-chaussée se distingue par un vaste espace de vie de 36 m² comprenant une cuisine ouverte, idéale pour partager des moments conviviaux en famille ou entre amis. Cette pièce est baignée de lumière grâce à de grandes ouvertures qui apportent une luminosité naturelle tout au long de la journée. Un garage intégré de près de 17 m² assure un espace supplémentaire pour votre véhicule ou pour du rangement. Une chambre de 11,2 m² peut également servir d’espace de vie supplémentaire, offrant ainsi la possibilité d’agrandir l’espace commun à près de 50 m².L’étage, construit sur une dalle en béton, garantit solidité et isolation phonique. Il se compose de trois chambres confortables, d’une salle de bains supplémentaire et de toilettes séparées, répondant ainsi aux besoins d’intimité et de confort de chaque membre de la famille.La maison Jade est conçue pour être à la fois moderne et écologique. Elle est conforme à la réglementation environnementale RE2020, assurant une basse consommation énergétique. Cela se traduit par des coûts d’entretien et de fonctionnement nettement réduits, faisant de cette maison un investissement durable pour votre avenir.Les options les plus plébiscitées, telles que l’enduit bi-ton et les menuiseries en aluminium, sont disponibles pour personnaliser votre maison et la rendre unique. Ces finitions haut de gamme non seulement embellissent votre habitation mais contribuent également à son efficacité énergétique.En choisissant la maison Jade, vous optez pour une habitation familiale accessible, conçue pour offrir un cadre de vie exceptionnel
Soulitré
TERRAINSoulitré : terrain viabilisé de 510 m² à vendreIDÉALEMENT SITUÉ – VUE DÉGAGÉEÀ Soulitré (72370) à vendre à 19 km du Mans, donnez vie à votre résidence principale ou secondaire sur ce terrain de 510 m². Il profite d »une vue dégagée et bénéficie d »une exposition ouest. Il se situe dans un secteur prisé. On trouve l »École Maternelle Publique à moins de 10 minutes à pied. Niveau transports en commun, il y a quatre gares à moins de 10 minutes en voiture. Les autoroutes A28 et A11 sont accessibles à moins de 13 km. On trouve un commerce dans les environs.Son prix de vente est de 39 000 €. N »hésitez pas à prendre contact avec Luc LIVET (tél : (Numéro supprimé))Maine Construction Saint-Saturnin pour toute question sur le terrain, sur les démarches à suivre ou sur les modalités de vente.
Soulitré
TERRAIN ET MAISONVENTE : maison de 5 pièces (81 m²) à SoulitréIDÉALEMENT SITUÉE – MAISON 5 PIÈCES NEUVEÀ 19 km du Mans, votre agence Maine Construction Saint-Saturnin est ravie de vous présenter à vendre, idéalement située dans Soulitré (72370), cette maison de 5 pièces de plain-pied de 81 m² et de 510 m² de terrain. Conçue de plain-pied, elle dispose de trois chambres, d’une cuisine et d’une salle de bains.La maison est neuve.Cette maison se situe dans un secteur recherché. Il y a l’École Maternelle Publique à moins de 10 minutes à pied. Côté transports, on trouve quatre gares à moins de 10 minutes en voiture. Les autoroutes A28 et A11 sont accessibles à moins de 13 km. Il y a un commerce à proximité de la maison.Elle est à vendre pour la somme de 199 000 €.Contactez Luc LIVET (tél : (Numéro supprimé))Maine Construction Saint-Saturnin pour toute question sur la maison.
Soulitré
TERRAIN ET MAISONSoulitré : maison T5 (86 m²) à vendre :Idéal Investisseur Normes PMRIDÉALEMENT SITUÉE – MAISON 5 PIÈCES NEUVEÀ 19 km du Mans, Maine Construction Saint-Saturnin vous propose cette maison de 5 pièces de plain-pied de 86 m² idéalement située dans Soulitré (72370). Son intérieur inclut trois chambres, une cuisine et une salle de bains.Le terrain du bien est de 510 m².La maison est neuve.Cette maison se situe dans un secteur convoité. L’École Maternelle Publique est implantée à moins de 10 minutes à pied. Niveau transports en commun, il y a quatre gares à moins de 10 minutes en voiture. Les autoroutes A28 et A11 sont accessibles à moins de 13 km. On trouve un commerce à quelques minutes de la maison.Elle est proposée à l’achat pour 195 000 €.Contactez notre agence (LIVET Luc : (Numéro supprimé)) pour obtenir de plus amples informations sur la maison, sur les démarches à suivre ou sur les modalités de vente. Maine Construction Saint-Saturnin est là pour vous accompagner à toutes les étapes de votre projet.
Soulitré
TERRAIN ET MAISONVENTE d’une maison de 4 pièces (90 m²) à SoulitréIDÉALEMENT SITUÉE – MAISON 4 PIÈCES NEUVEEn vente : localisée à deux pas du Mans, nous sommes heureux de vous proposer cette maison de 4 pièces de plain-pied de 90 m² et de 510 m² de terrain, idéalement située dans Soulitré (72370).Son intérieur offre trois chambres, une cuisine et une salle de bains. Cette maison est neuve.La maison se situe dans un secteur recherché. L’École Maternelle Publique est implantée à moins de 10 minutes à pied. Niveau transports, on trouve quatre gares à moins de 10 minutes en voiture. Les autoroutes A28 et A11 sont accessibles à moins de 13 km. Il y a un commerce à proximité du bien.Son prix de vente est de 209 000 €.Contactez notre agence (Luc LIVET : (Numéro supprimé)) pour toute question sur la maison ou sur les démarches à suivre. Maine Construction Saint-Saturnin est là pour vous accompagner à toutes les étapes de l’achat.
Soulitré
TERRAIN ET MAISONMaison F4 (54 m²) à vendre à SoulitréIDÉALEMENT SITUÉE – MAISON 4 PIÈCES NEUVEÀ vendre à quelques kilomètres du Mans, idéalement située dans Soulitré (72370), nous vous proposons cette maison de 4 pièces de plain-pied de 54 m² et de 510 m² de terrain. Elle offre deux chambres, une cuisine et une salle de bains.La maison est neuve.Cette maison se trouve dans un quartier attractif. L’École Maternelle Publique est implantée à moins de 10 minutes à pied. Côté transports en commun, il y a quatre gares à moins de 10 minutes en voiture. Les autoroutes A28 et A11 sont accessibles à moins de 13 km. On trouve un commerce à proximité du logement.Elle est proposée à l’achat pour 157 000 €.N’hésitez pas à prendre contact avec Luc LIVET (tél : (Numéro supprimé))Maine Construction Saint-Saturnin pour tout renseignement sur la maison.
Soulitré
TERRAIN ET MAISONVENTE d’une maison de 4 pièces (73 m²) à SoulitréIDÉALEMENT SITUÉE – MAISON 4 PIÈCES NEUVEÀ 19 km du Mans, nous vous présentons cette maison de 4 pièces de plain-pied de 73 m² et de 510 m² de terrain idéalement située dans Soulitré (72370).Elle comporte trois chambres, une cuisine et une salle de bains. La maison est neuve.Cette maison se trouve dans un quartier attractif. Il y a l’École Maternelle Publique à moins de 10 minutes à pied. Niveau transports en commun, on trouve quatre gares à moins de 10 minutes en voiture. Les autoroutes A28 et A11 sont accessibles à moins de 13 km. Il y a un commerce à proximité.Elle est proposée à l’achat pour 183 000 €.Contactez notre agence (LIVET Luc : (Numéro supprimé))Maine Construction Saint-Saturnin pour toute information sur la maison.
Soulitré
TERRAIN ET MAISONVENTE : maison de 5 pièces (81 m²) à SoulitréIDÉALEMENT SITUÉE – MAISON 5 PIÈCES NEUVEÀ 19 km du Mans, votre agence Maine Construction Saint-Saturnin est ravie de vous présenter à vendre, idéalement située dans Soulitré (72370), cette maison de 5 pièces de plain-pied de 81 m² et de 510 m² de terrain. Conçue de plain-pied, elle dispose de trois chambres, d’une cuisine et d’une salle de bains.La maison est neuve.Cette maison se situe dans un secteur recherché. Il y a l’École Maternelle Publique à moins de 10 minutes à pied. Côté transports, on trouve quatre gares à moins de 10 minutes en voiture. Les autoroutes A28 et A11 sont accessibles à moins de 13 km. Il y a un commerce à proximité de la maison.Elle est à vendre pour la somme de 199 000 €.Contactez Luc LIVET (tél : (Numéro supprimé))Maine Construction Saint-Saturnin pour toute question sur la maison.
L’actualité immobilière à Soulitré
27/11/2023
02/11/2023
30/10/2023
20/10/2023
16/10/2023
16/10/2023