Images
Description
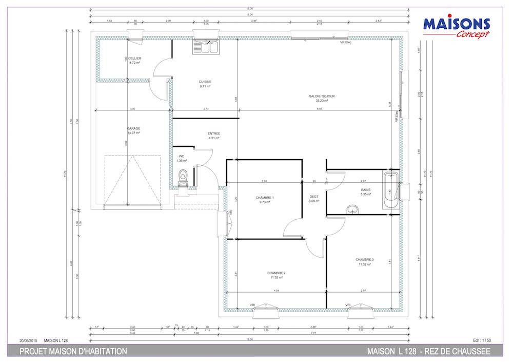
Nous vous proposons cette maison neuve, baptisée ""Élégance"", un modèle qui se distingue par sa forme en L, offrant à la fois style et fonctionnalité. Avec une surface habitable de 93 m², cette maison de plain-pied est conçue pour maximiser l'espace et le confort de ses résidents. Elle comprend un grand salon-séjour lumineux, ouvert sur une cuisine moderne, idéale pour partager des moments conviviaux en famille ou entre amis.
L'architecture en L permet une séparation naturelle entre l'espace de vie et l'espace nuit, ce dernier étant composé de 3 chambres spacieuses, garantissant intimité et tranquillité. La maison dispose également d'un garage intégré, pratique pour sécuriser votre véhicule ou pour du stockage supplémentaire, ainsi qu'un cellier adjacent à la cuisine, parfait pour organiser vos provisions et ustensiles de cuisine.
L'une des caractéristiques les plus appréciées de ce modèle est son enduit bi-ton, qui ajoute une touche d'élégance et de modernité à l'extérieur de la maison, la faisant ressortir dans n'importe quel environnement.
Construite dans le respect des normes de la RE2020, cette maison basse consommation est un choix judicieux pour ceux qui cherchent à réduire leur empreinte écologique tout en bénéficiant d'un confort optimal. Elle est personnalisable selon vos besoins et vos envies, vous permettant de créer un foyer qui vous ressemble, adapté à votre mode de vie.
""Élégance"" est plus qu'une maison, c'est un lieu de vie pensé pour votre bien-être et celui de votre famille, où chaque détail a été conçu pour répondre à vos attentes les plus élevées. Ne manquez pas l'opportunité de construire la maison de vos rêves, un espace où chaque jour sera empreint de confort, de style et d'efficacité énergétique.
Logement susceptibles de vous intéresser
Nous vous proposons de découvrir aussi cette sélection de logements situés à moins de 10km de Saint-Calais et qui seraient susceptibles de vous intéresser.
Montaillé
TERRAINDécouvrez ce terrain d’une surface généreuse de 500 m², situé au cœur de Montaillé, une charmante commune de Sarthe. Ce terrain viabilisé représente une occasion unique pour concrétiser votre projet de construction de maison dans une ambiance paisible et conviviale. Avec ses caractéristiques exceptionnelles et son prix attractif de 9 000 €, cette parcelle est idéale pour ceux qui souhaitent bâtir leur rêve dans un environnement de qualité, propice à la vie familiale et au bien-être. Montaillé, nichée dans le département de la Sarthe (72120), bénéficie d’une localisation stratégique et d’une richesse culturelle indéniable. La commune se trouve à proximité immédiate de toutes les commodités nécessaires au quotidien : commerces, écoles et services de santé sont facilement accessibles, vous offrant ainsi un confort de vie inégalé. De plus, la région est parsemée d’attractions locales, comme des espaces verts qui invitent à la flânerie et des événements festifs qui rythment la vie de la ville. Ce dernier lot à saisir dans un secteur aussi prisé est une opportunité rare qui mérite toute votre attention. Ne laissez pas passer cette chance inestimable d’investir dans un terrain de qualité, idéalement situé dans un environnement dynamique et agréable. Contactez-nous dès aujourd’hui pour découvrir le potentiel de cette parcelle et envisager de faire de votre projet de vie, une réalité ! À noter qu’en tant que constructeur, nous ne sommes pas mandatés pour réaliser la vente de ce terrain.
Montaillé
TERRAIN ET MAISONNous vous proposons cette maison neuve, baptisée « »Neptune » », un modèle de résidence qui allie avec brio fonctionnalité et esthétique, spécialement conçue pour s’intégrer harmonieusement en milieu urbain. Avec une surface habitable de 88 m² répartie sur deux niveaux, cette maison est l’incarnation même du confort moderne pour toute famille à la recherche d’un foyer chaleureux et accueillant.Neptune se distingue par ses combles aménagés, offrant ainsi un espace supplémentaire qui peut être transformé en bureau, salle de jeux, ou encore en une chambre d’amis, selon vos besoins et envies. Le garage intégré est un atout majeur, garantissant non seulement la sécurité de votre véhicule mais aussi une optimisation de l’espace extérieur de votre propriété.L’architecture de Neptune est pensée pour maximiser la lumière naturelle au sein de votre foyer, grâce à de grandes baies coulissantes qui ouvrent votre espace de vie sur l’extérieur, permettant ainsi une transition fluide entre votre jardin et votre intérieur. Cette maison à étage offre un cadre de vie des plus agréables, avec une vaste pièce à vivre au rez-de-chaussée et trois chambres à l’étage, conçues pour garantir l’intimité et le confort de chacun.Conforme à la norme RE2020, Neptune est une maison basse consommation, conçue avec des matériaux et des technologies de pointe pour réduire votre empreinte carbone tout en optimisant votre confort thermique tout au long de l’année. Ce modèle répond aux attentes les plus exigeantes en matière d’économie d’énergie et de respect de l’environnement, vous assurant ainsi des économies substantielles sur vos factures énergétiques.Choisir Neptune, c’est opter pour une maison qui combine esthétique, confort et performance énergétique, le tout dans un cadre de vie idéalement pensé pour le bien-être de toute la famille. Ne manquez pas l’opportunité de construire la maison de vos rêves, une demeure où chaque détail a été conçu pour répondre à vos attentes les plus élevées.
Savigny-sur-Braye
TERRAIN41360 – SAVIGNY-SUR-BRAYE – PROCHE CENTRE-VILLE – 645.0 m² à 866m2 – OPPORTUNITE À SAISIRefficity, l’agence qui estime votre bien en ligne, vous propose plusieurs lots de terrains viabilisés et bornés. Commune dynamique à proximité immédiate de la gare TGV Tous commerces et services accessibles à piedDans un environnement calme et résidentiel, venez découvrir ce nouveau lotissement idéalement situé sur une commune en plein essor ! 9 lots encore disponibles Surfaces de 645 à 866 m² Terrains viabilisés et bornés Raccordement au gaz de ville Profitez d’un cadre de vie agréable à deux pas des commodités, écoles, infrastructures sportives et transports. Accès rapide à la gare TGV pour un quotidien facilité.Vous souhaitez visiter ou avoir plus d’informations ? Contactez-moi au (Numéro supprimé) Egalement disponible pour étudier la vente de votre bien Les informations sur les risques auxquels ce bien est exposé sont disponibles sur le site Georisque : georisques. gouv. fr Tony Charneau – EI – est Agent Commercial mandataire en immobilier, immatriculé au Registre Spécial des Agents Commerciaux du Tribunal de Commerce de Blois sous le n(Numéro supprimé).Siège social du mandant : effiCity, 48 avenue de Villiers – 75017 PARIS – Société par Actions Simplifiée, société au capital de 132 373,05 euros, immatriculée au RCS Paris 497 617 746 et titulaire de la Carte professionnelle CPI 7501 2015 000 002 025 – CCI Paris IDF – Caisse de Garantie : GALIAN Assurances 89 rue de la Boétie 75008 Paris
Saint-Calais
TERRAINTerrain de Loisir avec Bois, Verger, Pâture et Grand Hangar avec Boxesefficity, l’agence qui estime votre bien en ligne, vous propose ce terrain de loisir exceptionnel offre une combinaison parfaite de nature, de tranquillité et de potentiel commercial. Avec ses caractéristiques uniques, cette propriété est une opportunité rare pour les amoureux de la nature, les passionnés d’agriculture ou ceux cherchant un investissement polyvalent.Caractéristiques du terrain :Pâture : Une grande prairie verdoyante, idéale pour l’élevage, les activités équestres ou simplement profiter de vastes espaces ouverts.Hangar : Un vaste hangar offrant de multiples possibilités d’utilisation, que ce soit pour le stockage, l’élevage ou des projets agricoles. Les boxes intégrés sont un atout pour les passionnés d’animaux.Informations supplémentaires :Superficie totale du terrain : 2 hectares environs………….Vous souhaitez visiter ou avoir plus d’informations ? Contactez-moi au (Numéro supprimé)Tony CHARNEAU – votre conseiller immobilier sur Montoire-sur-le-Loir et les alentours……………………………….. Les informations sur les risques auxquels ce bien est exposé sont disponibles sur le site Georisque : georisques. gouv. fr Tony Charneau – EI – est Agent Commercial mandataire en immobilier, immatriculé au Registre Spécial des Agents Commerciaux du Tribunal de Commerce de Blois sous le n(Numéro supprimé).Siège social du mandant : effiCity, 48 avenue de Villiers – 75017 PARIS – Société par Actions Simplifiée, société au capital de 132 373,05 euros, immatriculée au RCS Paris 497 617 746 et titulaire de la Carte professionnelle CPI 7501 2015 000 002 025 – CCI Paris IDF – Caisse de Garantie : GALIAN Assurances 89 rue de la Boétie 75008 Paris
Montaillé
TERRAINDécouvrez ce terrain d’une surface généreuse de 489 m², situé au cœur de Montaillé, une charmante commune de Sarthe. Ce terrain viabilisé représente une occasion unique pour concrétiser votre projet de construction de maison dans une ambiance paisible et conviviale. Avec ses caractéristiques exceptionnelles et son prix attractif de 9 000 €, cette parcelle est idéale pour ceux qui souhaitent bâtir leur rêve dans un environnement de qualité, propice à la vie familiale et au bien-être. Montaillé, nichée dans le département de la Sarthe (72120), bénéficie d’une localisation stratégique et d’une richesse culturelle indéniable. La commune se trouve à proximité immédiate de toutes les commodités nécessaires au quotidien : commerces, écoles et services de santé sont facilement accessibles, vous offrant ainsi un confort de vie inégalé. De plus, la région est parsemée d’attractions locales, comme des espaces verts qui invitent à la flânerie et des événements festifs qui rythment la vie de la ville. Ce dernier lot à saisir dans un secteur aussi prisé est une opportunité rare qui mérite toute votre attention. Ne laissez pas passer cette chance inestimable d’investir dans un terrain de qualité, idéalement situé dans un environnement dynamique et agréable. Contactez-nous dès aujourd’hui pour découvrir le potentiel de cette parcelle et envisager de faire de votre projet de vie, une réalité ! À noter qu’en tant que constructeur, nous ne sommes pas mandatés pour réaliser la vente de ce terrain.
Montaillé
TERRAIN ET MAISONNous vous proposons cette maison neuve, baptisée « »Privilège » », une demeure qui allie élégance et fonctionnalité sur une surface habitable de 72 m². Conçue pour répondre aux attentes des plus exigeants, elle offre un cadre de vie idéal avec ses 3 chambres et un total de 4 pièces, agencées de manière à optimiser chaque espace.Le modèle « »Privilège » » se distingue par son excellent rapport qualité/prix, vous garantissant ainsi un investissement judicieux. Dotée de combles aménageables, cette maison vous offre la liberté de personnaliser et d’agrandir votre espace de vie selon vos désirs et besoins futurs, une flexibilité rare qui s’adapte à l’évolution de votre famille.Construite dans le respect de la norme RT2020, la maison « »Privilège » » est synonyme de basse consommation énergétique. Elle est conforme à la réglementation environnementale RE2020, vous assurant ainsi des économies significatives sur vos factures d’énergie tout en contribuant à la protection de l’environnement. Ce modèle intègre également un garage, un atout non négligeable qui ajoute une valeur supplémentaire à votre propriété.Les options les plus plébiscitées par nos clients, telles que la basse consommation et la conformité à la RE2020, sont des caractéristiques centrales de ce modèle. « »Privilège » » est donc la maison idéale pour ceux qui recherchent un habitat neuf, moderne et respectueux de l’environnement.Avec « »Privilège » », vous faites le choix d’une maison qui combine harmonieusement esthétique et fonctionnalité. Les pièces de vie, situées au cœur de la maison, offrent un espace accueillant pour vos moments en famille ou entre amis. Le coin nuit, pensé pour le confort de chacun, peut accueillir confortablement jusqu’à 4 chambres.Opter pour le modèle « »Privilège » », c’est choisir une maison évolutive qui grandit avec vous, tout en bénéficiant dès aujourd’hui d’un confort et d’une qualité de vie exceptionnels. N’attendez plus pour faire de cette maison le foyer de vos rêves.
Saint-Calais
TERRAINÀ vendre : superbe terrain viabilisé de 497 m² situé en plein cœur de Saint-Calais, dans la Sarthe. Ce terrain plat, idéal pour la construction d’une maison, se distingue par sa situation privilégiée au centre-ville, garantissant un accès facile aux commerces et services locaux. Profitez d’une exclusivité rare dans un environnement calme et sécurisé, parfait pour accueillir votre projet de vie. Saint-Calais, réputée pour son ambiance conviviale et sa richesse historique, offre une multitude d’attractions locales, notamment des marchés artisanaux, des événements culturels tout au long de l’année et des espaces verts propices à la détente. Les commodités comme des écoles, des commerces et des activités de loisirs à proximité rendent ce projet immobilier encore plus attractif. Le territoire de la Sarthe est également reconnu pour la qualité de vie qu’il offre, avec des infrastructures fluides et dynamiques, parfait pour les familles et les professionnels. Ce terrain constitue une opportunité unique pour concrétiser votre rêve de construction dans une ville où il fait bon vivre. N’hésitez pas à vous renseigner davantage et à envisager ce projet enthousiasmant ! À noter qu’en tant que constructeur, nous ne sommes pas mandatés pour réaliser la vente de ce terrain.
Saint-Calais
TERRAIN ET MAISONNous vous proposons cette maison neuve, modèle « »Access » », une perle de notre gamme Primaciel, spécialement conçue pour les primo-accédants à la recherche d’un habitat à la fois économique et innovant. Avec son incroyable rapport qualité/prix, l’Access se distingue par sa conception astucieuse et son engagement envers une isolation conforme aux dernières normes, le tout à un prix maîtrisé. Cette maison de plain-pied s’étend sur 73 m² et est judicieusement agencée pour maximiser le confort et l’espace de vie. Elle se compose de 4 pièces, dont 3 chambres spacieuses de plus de 9 m² chacune, promettant intimité et tranquillité pour tous les membres de la famille. Le cœur de cette maison est sans doute son espace de vie lumineux de près de 35 m², comprenant un séjour et une cuisine ouverte, idéal pour partager des moments conviviaux. Un cellier attenant de 3.5 m² offre un espace de rangement supplémentaire très pratique, tandis qu’une salle de bain fonctionnelle de près de 5 m² et des WC séparés viennent compléter l’ensemble.L’Access est également conçu pour évoluer avec vos besoins, grâce à ses combles perdus et ses combles aménageables, vous offrant la possibilité d’agrandir votre espace de vie selon vos envies. Les options les plus plébiscitées, telles qu’un Car Port ou un garage accolé, sont disponibles pour répondre à toutes vos attentes en matière de stationnement et de stockage.Mais ce qui distingue véritablement l’Access, c’est son engagement envers la durabilité et l’économie d’énergie. Cette maison est basse consommation et strictement conforme à la réglementation environnementale RE2020, vous assurant ainsi des économies significatives sur vos factures d’énergie tout en contribuant à la protection de l’environnement.En choisissant le modèle Access, vous optez pour une maison à prix malin, sans compromis sur la qualité et le confort, tout en étant assuré de vivre dans un logement respectueux de l’environnement. Une opportunité à ne pas manquer pour réal
Saint-Calais
TERRAINÀ vendre : superbe terrain viabilisé de 523 m² situé en plein cœur de Saint-Calais, dans la Sarthe. Ce terrain plat, idéal pour la construction d’une maison, se distingue par sa situation privilégiée au centre-ville, garantissant un accès facile aux commerces et services locaux. Profitez d’une exclusivité rare dans un environnement calme et sécurisé, parfait pour accueillir votre projet de vie. Saint-Calais, réputée pour son ambiance conviviale et sa richesse historique, offre une multitude d’attractions locales, notamment des marchés artisanaux, des événements culturels tout au long de l’année, et des espaces verts propices à la détente. Les commodités comme des écoles, des commerces, et des activités de loisirs à proximité rendent ce projet immobilier encore plus attractif. Le territoire de la Sarthe est également reconnu pour la qualité de vie qu’il offre, avec des infrastructures fluides et dynamiques, parfait pour les familles et les professionnels. Ce terrain constitue une opportunité unique pour concrétiser votre rêve de construction dans une ville où il fait bon vivre. N’hésitez pas à vous renseigner davantage et à envisager ce projet enthousiasmant ! À noter qu’en tant que constructeur, nous ne sommes pas mandatés pour réaliser la vente de ce terrain.
L’actualité immobilière à Saint-Calais
27/11/2023
02/11/2023
30/10/2023
20/10/2023
16/10/2023
16/10/2023