Images
Description
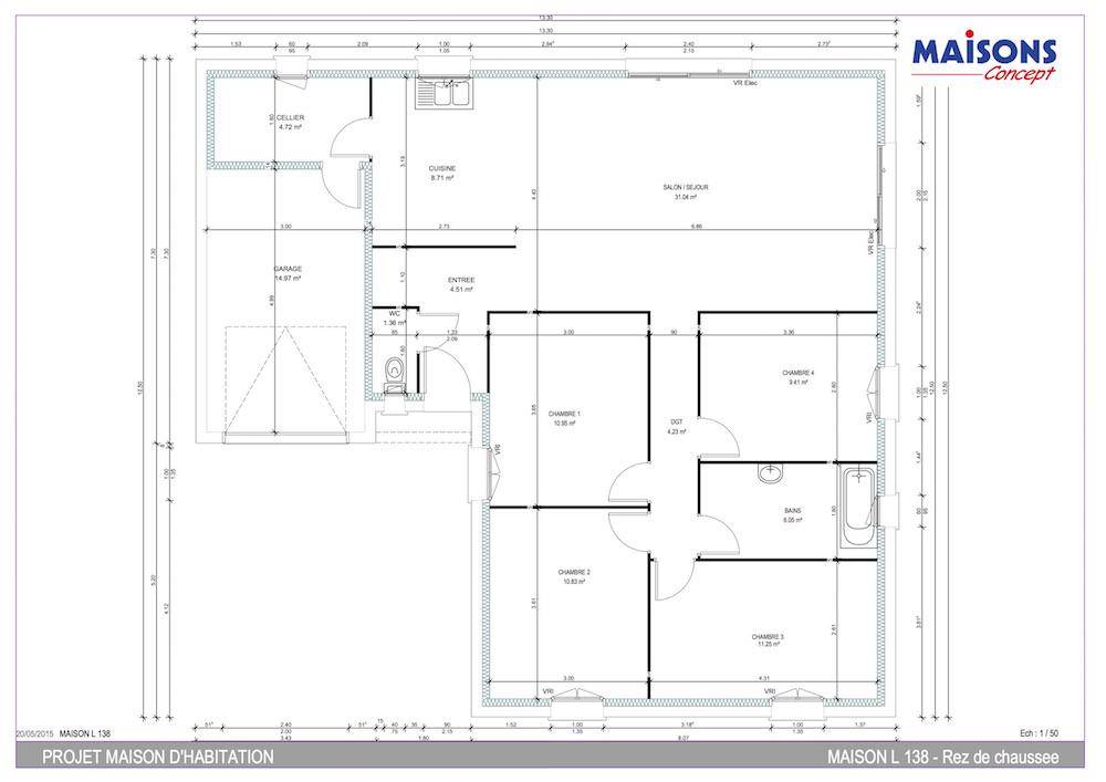
Nous vous proposons cette maison neuve, baptisée ""Élégance"", un modèle qui se distingue par sa forme architecturale en L, offrant à la fois style et fonctionnalité sur une surface habitable de 103 m². Conçue pour répondre aux attentes des plus exigeants, cette maison de plain-pied combine harmonieusement espace et confort, avec un total de 4 pièces, dont 4 chambres spacieuses, promettant ainsi un cadre de vie idéal pour toute la famille.
L'entrée s'ouvre sur un vaste salon-séjour baigné de lumière, grâce à sa conception ouverte qui s'étend jusqu'à la cuisine, créant un espace de vie convivial et accueillant. L'intégration d'un garage attenant et d'un cellier pratique souligne la pensée méticuleuse mise dans la conception de cette maison, visant à allier esthétique et fonctionnalité.
L'une des caractéristiques les plus appréciées de ce modèle est son enduit bi-ton, qui ajoute une touche de modernité et d'élégance à l'extérieur, reflétant le nom même de la maison. De plus, cette maison est entièrement personnalisable, vous permettant d'adapter chaque espace à votre mode de vie et à vos préférences, assurant ainsi que votre futur foyer réponde parfaitement à vos attentes.
Au-delà de son design attrayant, ""Élégance"" est une maison basse consommation, rigoureusement conçue pour respecter les normes de la RE2020. Cette caractéristique garantit non seulement un confort optimal tout au long de l'année mais aussi des économies significatives sur les factures d'énergie, soulignant notre engagement envers la durabilité et le respect de l'environnement.
En choisissant ""Élégance"", vous optez pour une maison qui allie beauté, confort et responsabilité environnementale. Une opportunité à ne pas manquer pour ceux qui cherchent à construire leur nid familial dans un cadre de vie à la fois moderne et économe en énergie.
Logement susceptibles de vous intéresser
Nous vous proposons de découvrir aussi cette sélection de logements situés à moins de 10km de Saint-Georges-du-Bois et qui seraient susceptibles de vous intéresser.
Le Mans
TERRAIN ET MAISONVENTE d’une maison de 5 pièces (110 m²) au MansPROCHE CENTRE-VILLE – MAISON 5 PIÈCES NEUVEEn vente : proche du centre-ville du Mans (72000), notre agence Maine Construction Le Mans est ravie de vous présenter cette maison de 5 pièces de plain-pied de 110 m².Son intérieur dispose de trois chambres, d’une cuisine et d’une salle de bains. La maison est neuve.Le terrain du bien est de 349 m².Le lycée Institut Technologique Européen des Métiers de la Musique est implanté à moins de 10 minutes à pied, deux structures d’accueil pour la petite enfance, tout comme l’Université du Mans et l’Institut supérieur des matériaux du Mans pour le supérieur. Côté transports en commun, il y a trois gares (Le Mans, Neuville-sur-Sarthe et Arnage) à moins de 10 minutes en voiture. L’autoroute A11 est accessible à 3 km. On trouve deux tennis, trois boulangeries, des commerces, un supermarché et un bureau de poste dans les environs.Elle est proposée à l’achat pour 335 000 €.Prenez contact avec notre constructeur (François HOUDAYER : (Numéro supprimé)) pour obtenir de plus amples renseignements sur la maison ou sur les modalités de vente.
Le Mans
TERRAIN ET MAISONVENTE : maison F3 (55 m²) au MansPROCHE CENTRE-VILLE – MAISON 3 PIÈCES NEUVEEn vente : nous sommes ravis de vous présenter, proche du centre-ville du Mans (72000), cette maison de 3 pièces de 55 m² et de 349 m² de terrain. Son intérieur se divise en trois chambres, une cuisine et deux salles de bains.Cette maison comporte 2 niveaux. Elle est neuve.Le lycée Institut Technologique Européen des Métiers de la Musique est implanté à moins de 10 minutes à pied, deux crèches, tout comme deux établissements du supérieur juste à côté : l’Université du Mans et l’Institut supérieur des matériaux du Mans. Niveau transports en commun, on trouve les gares Le Mans, Neuville-sur-Sarthe et Arnage à moins de 10 minutes en voiture. Il y a un accès à l’autoroute A11 à 3 km. Il y a deux tennis, trois boulangeries, des commerces, un supermarché et un bureau de poste à quelques minutes à peine.Elle est à vendre pour la somme de 225 000 €.Contactez notre agence (François HOUDAYER : (Numéro supprimé)) pour plus de renseignements sur la maison, sur les démarches à suivre ou sur les modalités de vente. Maine Construction Le Mans vous accompagne à toutes les étapes de l’achat et dans tous vos projets immobiliers.
Le Mans
TERRAIN ET MAISONLe Mans : maison F6 (125 m²) à vendrePROCHE CENTRE-VILLE – MAISON 6 PIÈCES NEUVEÀ vendre : nous vous proposons, proche du centre-ville du Mans (72000), cette maison de 6 pièces de plain-pied de 125 m² et de 349 m² de terrain. Elle comporte trois chambres, une cuisine et une salle de bains.La maison est neuve.Il y a le lycée Institut Technologique Européen des Métiers de la Musique à moins de 10 minutes à pied, deux crèches et deux établissements du supérieur dans les environs : l’Université du Mans et l’Institut supérieur des matériaux du Mans. Côté transports, on trouve trois gares (Le Mans, Neuville-sur-Sarthe et Arnage) à moins de 10 minutes en voiture. L’autoroute A11 est accessible à 3 km. Il y a deux tennis, trois boulangeries, des commerces, un supermarché et un bureau de poste à quelques minutes.Elle est proposée à l’achat pour 372 000 €.N’hésitez pas à prendre contact avec François HOUDAYER (tél : (Numéro supprimé)) pour toute information sur la maison, sur les modalités de vente ou sur les démarches à suivre. Faites de vos projets immobiliers une réalité avec Maine Construction Le Mans.
Le Mans
TERRAINVENTE : terrain de 349 m² au MansPROCHE CENTRE-VILLEProche du centre-ville du Mans (72000), terrain de 349 m². Il est prêt à accueillir votre résidence principale ou secondaire pour toute la famille. Ce terrain, exposé ouest, donne sur un jardin. Ce terrain est proche des écoles et des commerces. Il y a le lycée Institut Technologique Européen des Métiers de la Musique à moins de 10 minutes à pied, deux crèches et deux établissements du supérieur dans un rayon de 1 km : l’Université du Mans et l’Institut supérieur des matériaux du Mans. Niveau transports, on trouve trois gares (Le Mans, Neuville-sur-Sarthe et Arnage) à moins de 10 minutes en voiture. L’autoroute A11 est accessible à 3 km. Il y a deux tennis, trois boulangeries, des commerces, un supermarché et un bureau de poste à quelques minutes.Il est à vendre pour la somme de 95 000 €. Contactez François HOUDAYER (tél : (Numéro supprimé)) pour tout renseignement sur le terrain, sur les démarches à suivre ou sur les modalités de vente. Maine Construction Le Mans est là pour vous accompagner à toutes les étapes de votre projet.
Le Mans
TERRAIN ET MAISONLe Mans : maison de 5 pièces (140 m²) en ventePROCHE CENTRE-VILLE – MAISON 5 PIÈCES NEUVEÀ vendre : laissez vous charmer par cette maison de 5 pièces de 140 m² proche du centre-ville du Mans (72000). Elle se divise en quatre chambres, une cuisine et deux salles de bains.Le terrain de la propriété s’étend sur 349 m².C’est une maison de 2 niveaux. Elle est neuve.Le lycée Institut Technologique Européen des Métiers de la Musique est implanté à moins de 10 minutes à pied, deux crèches, tout comme deux établissements du supérieur à quelques pas de la maison : l’Université du Mans et l’Institut supérieur des matériaux du Mans. Côté transports en commun, il y a les gares Le Mans, Neuville-sur-Sarthe et Arnage à moins de 10 minutes en voiture. On trouve un accès à l’autoroute A11 à 3 km. On trouve deux tennis, trois boulangeries, des commerces, un supermarché et un bureau de poste dans les environs.Elle est proposée à l’achat pour 399 000 €.Prenez contact avec François HOUDAYER (tél : (Numéro supprimé)) pour toute question sur la maison et sur les démarches à suivre. Donnez vie à vos projets immobiliers avec Maine Construction Le Mans.
Le Mans
TERRAIN ET MAISONMaison T4 (76 m²) en vente au MansPROCHE CENTRE-VILLE – MAISON 4 PIÈCES NEUVEÀ vendre : venez découvrir, proche du centre-ville du Mans (72000), cette maison de 4 pièces de plain-pied de 76 m² et de 349 m² de terrain.Son intérieur est composé de trois chambres, d’une cuisine et d’une salle de bains. La maison est neuve.Le lycée Institut Technologique Européen des Métiers de la Musique se trouve à moins de 10 minutes à pied, deux crèches, tout comme deux établissements du supérieur à proximité : l’Université du Mans et l’Institut supérieur des matériaux du Mans. Niveau transports, il y a trois gares (Le Mans, Neuville-sur-Sarthe et Arnage) à moins de 10 minutes en voiture. L’autoroute A11 est accessible à 3 km. On trouve deux tennis, trois boulangeries, des commerces, un supermarché et un bureau de poste à quelques minutes du logement.Elle est à vendre pour la somme de 268 000 €.Prenez contact avec François HOUDAYER (tél : (Numéro supprimé)) pour toute information sur le bien.
Le Mans
TERRAIN ET MAISONVENTE : maison de 5 pièces (93 m²) au MansPROCHE CENTRE-VILLE – MAISON 5 PIÈCES NEUVEMaine Construction Le Mans vous propose à vendre, proche du centre-ville du Mans (72000), cette maison de 5 pièces de plain-pied de 93 m² et de 349 m² de terrain. Son intérieur offre quatre chambres, une cuisine et une salle de bains.Cette maison est neuve.Le lycée Institut Technologique Européen des Métiers de la Musique se trouve à moins de 10 minutes à pied, deux structures d’accueil pour la petite enfance, tout comme l’Université du Mans et l’Institut supérieur des matériaux du Mans pour le supérieur. Côté transports en commun, il y a trois gares (Le Mans, Neuville-sur-Sarthe et Arnage) à moins de 10 minutes en voiture. Il y a un accès à l’autoroute A11 à 3 km. On trouve deux tennis, trois boulangeries, des commerces, un supermarché et un bureau de poste dans les environs.Elle est à vendre pour la somme de 295 000 €.Contactez notre agence (HOUDAYER François : (Numéro supprimé)) pour toute information sur la maison ou sur les modalités de vente. Maine Construction Le Mans vous accompagne dans tous vos projets immobiliers et dans toutes vos démarches.
Le Mans
TERRAIN ET MAISONVENTE d’une maison de 4 pièces (107 m²) au MansPROCHE CENTRE-VILLE – MAISON 4 PIÈCES NEUVEEn vente : découvrez cette maison de 4 pièces de plain-pied de 107 m² et de 349 m² de terrain proche du centre-ville du Mans (72000).Conçue de plain-pied, elle est composée de trois chambres, d’une cuisine et de deux salles de bains. Cette maison est neuve.Il y a le lycée Institut Technologique Européen des Métiers de la Musique à moins de 10 minutes à pied, deux structures d’accueil pour la petite enfance et l’Université du Mans et l’Institut supérieur des matériaux du Mans pour le supérieur. Niveau transports en commun, on trouve les gares Le Mans, Neuville-sur-Sarthe et Arnage à moins de 10 minutes en voiture. Il y a un accès à l’autoroute A11 à 3 km. Il y a deux tennis, trois boulangeries, des commerces, un supermarché et un bureau de poste à quelques minutes.Elle est à vendre pour la somme de 329 000 €.Contactez François HOUDAYER ((Numéro supprimé)) pour plus de renseignements sur la maison ou sur les modalités de vente. Faites de vos projets immobiliers une réalité avec Maine Construction Le Mans.
Le Mans
TERRAIN ET MAISONVENTE : maison de 4 pièces (90 m²) au MansPROCHE CENTRE-VILLE – MAISON 4 PIÈCES NEUVEÀ vendre : votre agence Maine Construction Le Mans est ravie de vous présenter cette maison de 4 pièces de plain-pied de 90 m² proche du centre-ville du Mans (72000). Conçue de plain-pied, elle est composée de trois chambres, d’une cuisine et d’une salle de bains.Le terrain du bien est de 349 m².Cette maison est neuve.Le lycée Institut Technologique Européen des Métiers de la Musique est implanté à moins de 10 minutes à pied, deux crèches, tout comme deux établissements du supérieur dans les environs : l’Université du Mans et l’Institut supérieur des matériaux du Mans. Niveau transports, il y a les gares Le Mans, Neuville-sur-Sarthe et Arnage à moins de 10 minutes en voiture. L’autoroute A11 est accessible à 3 km. On trouve deux tennis, trois boulangeries, des commerces, un supermarché et un bureau de poste à quelques minutes.Elle est à vendre pour la somme de 295 000 €.N’hésitez pas à prendre contact avec notre constructeur (François HOUDAYER : (Numéro supprimé)) pour toute information sur le bien, sur les modalités de vente et sur les démarches à suivre. Maine Construction Le Mans est là pour vous accompagner à toutes les étapes de votre projet.
L’actualité immobilière à Saint-Georges-du-Bois
27/11/2023
02/11/2023
30/10/2023
20/10/2023
16/10/2023
16/10/2023