Maison à construire à Saint-Ouen-en-Belin (72220)
Images
Description
VENTE : maison de 4 pièces (138 m²) à Saint-Ouen-en-Belin
IDÉALEMENT SITUÉE - MAISON 4 PIÈCES NEUVE
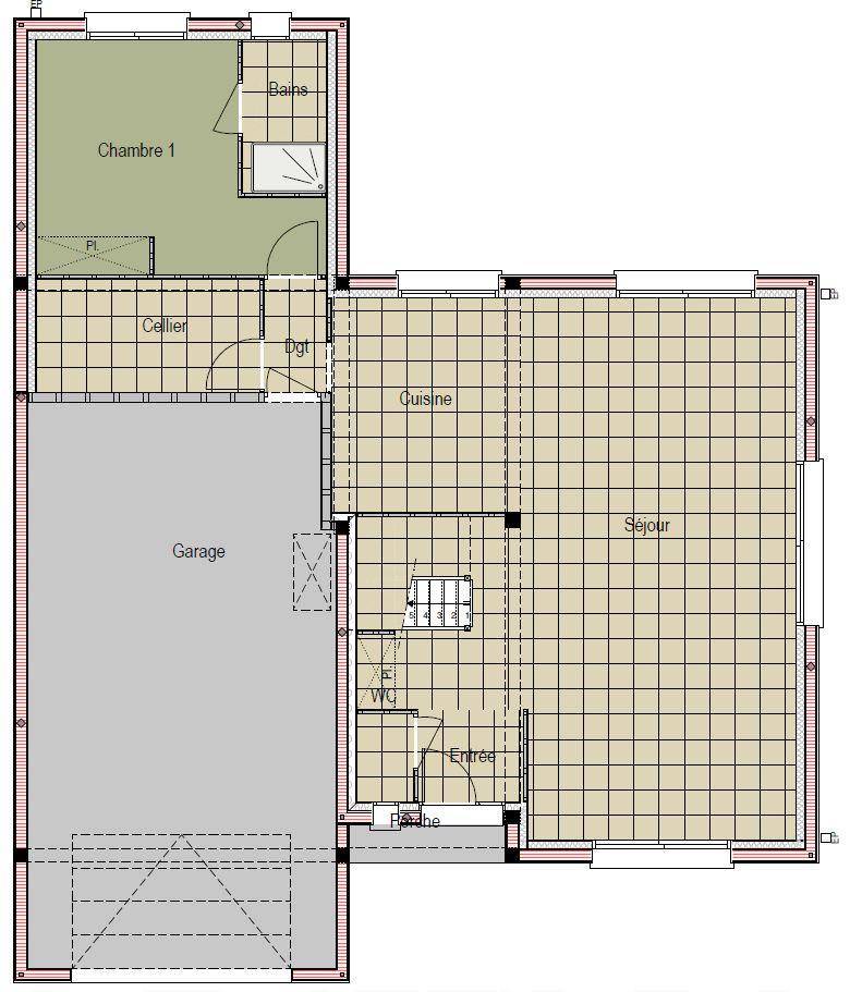
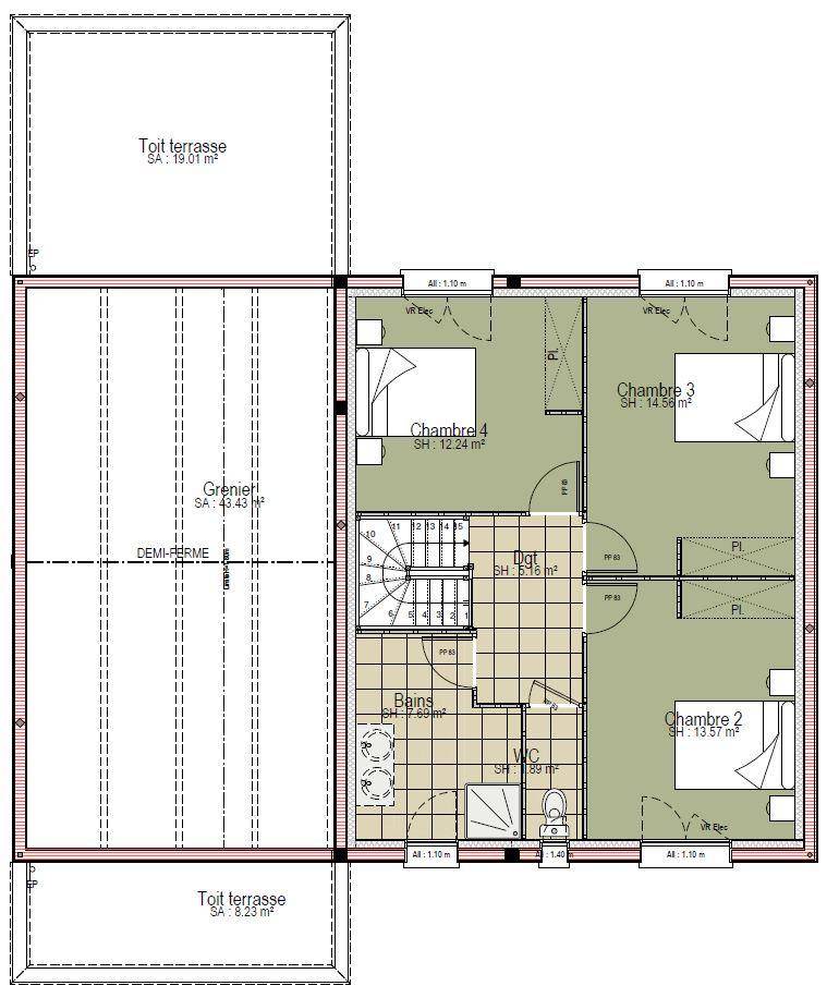
En vente : localisée à 17 km du Mans, Maine Construction Le Mans vous propose cette maison de 4 pièces de 138 m² et de 660 m² de terrain idéalement située dans Saint-Ouen-en-Belin (72220). Son intérieur est composé de quatre chambres, d'une cuisine et de deux salles de bains.
C'est une maison de 2 niveaux. Elle est neuve.
Cette maison se trouve dans un secteur attractif. L'École Primaire Publique Claire Fontaine est implantée à moins de 10 minutes à pied. Côté transports en commun, on trouve trois gares (Écommoy, Laigné-Saint-Gervais et Mayet) à moins de 10 minutes en voiture. L'autoroute A28 est accessible à 7 km. Il y a un tennis et deux boulangeries à proximité du logement.
Elle est à vendre pour la somme de 340 000 €.
Contactez François HOUDAYER (tél : (Numéro supprimé)) pour tout renseignement sur la maison.
Logement susceptibles de vous intéresser
Nous vous proposons de découvrir aussi cette sélection de logements situés à moins de 10km de Saint-Ouen-en-Belin et qui seraient susceptibles de vous intéresser.
Saint-Ouen-en-Belin
TERRAIN ET MAISONVENTE d’une maison de 3 pièces (65 m²) à Saint-Ouen-en-BelinIDÉALEMENT SITUÉE – MAISON 3 PIÈCES NEUVEÀ vendre : située à 17 km du Mans, nous sommes ravis de vous proposer cette maison de 3 pièces de plain-pied de 65 m² et de 660 m² de terrain, idéalement située dans Saint-Ouen-en-Belin (72220). Conçue de plain-pied, elle inclut deux chambres, une cuisine et une salle de bains.La maison est neuve.Cette maison est située dans un secteur recherché. L’École Primaire Publique Claire Fontaine se trouve à moins de 10 minutes à pied. Niveau transports en commun, il y a les gares Écommoy, Laigné-Saint-Gervais et Mayet à moins de 10 minutes en voiture. On trouve un accès à l’autoroute A28 à 7 km. On trouve un tennis et deux boulangeries à quelques minutes du logement.Son prix de vente est de 180 000 €.Prenez contact avec François HOUDAYER ((Numéro supprimé)) pour toute question sur la maison, sur les modalités de vente ou sur les démarches à suivre. Maine Construction Le Mans vous accompagne dans tous vos projets immobiliers et dans toutes vos démarches.
Saint-Ouen-en-Belin
TERRAIN ET MAISONVENTE d’une maison de 5 pièces (77 m²) à Saint-Ouen-en-BelinIDÉALEMENT SITUÉE – MAISON 5 PIÈCES NEUVEÀ vendre : située à deux pas du Mans, nous sommes heureux de vous présenter, idéalement située dans Saint-Ouen-en-Belin (72220), cette maison de 5 pièces de plain-pied de 77 m² et de 660 m² de terrain.Elle propose trois chambres, une cuisine et une salle de bains. La maison est neuve.La maison se trouve dans un quartier recherché. Il y a l’École Primaire Publique Claire Fontaine à moins de 10 minutes à pied. Niveau transports en commun, on trouve les gares Écommoy, Laigné-Saint-Gervais et Mayet à moins de 10 minutes en voiture. L’autoroute A28 est accessible à 7 km. Il y a un tennis et deux boulangeries à proximité.Son prix de vente est de 211 000 €.Contactez François HOUDAYER (tél : (Numéro supprimé)) pour obtenir de plus amples renseignements sur le bien, sur les démarches à suivre ou sur les modalités de vente. Maine Construction Le Mans est là pour vous accompagner à toutes les étapes de l’achat.
Guécélard
TERRAIN ET MAISONGuécélard : maison de 5 pièces (85 m²) en venteIDÉALEMENT SITUÉE – MAISON 5 PIÈCES NEUVEEn vente à 12 km du Mans, idéalement située dans Guécélard (72230), nous sommes heureux de vous présenter cette maison de 5 pièces de 85 m² et de 474 m² de terrain. Son intérieur compte trois chambres, une cuisine et deux salles de bains.C’est une maison de 2 niveaux. Elle est neuve.Cette maison est située dans un secteur prisé. L’École Primaire Publique René Cassin est implantée à moins de 10 minutes à pied. Niveau transports en commun, on trouve quatre gares à moins de 10 minutes en voiture. Il y a un accès à l’autoroute A11 à 10 km. Il y a un tennis, deux boulangeries, un commerce et un supermarché dans les environs.Elle est à vendre pour la somme de 254 500 €.Contactez Stéphane MAGNE (tél : (Numéro supprimé)) pour tout renseignement sur la propriété. Maisons France Confort Saint-Saturnin vous accompagne à toutes les étapes de l’achat et dans toutes vos démarches.
Saint-Ouen-en-Belin
TERRAINTerrain de 660 m² en vente à Saint-Ouen-en-BelinIDÉALEMENT SITUÉ – PROCHE DU MANSEn vente à 17 km du Mans à Saint-Ouen-en-Belin (72220), grand terrain. Il est prêt à accueillir votre projet immobilier pour toute la famille. Il donne sur un espace vert et est exposé plein est. Dans un quartier prisé, ce terrain idéalement situé est proche des commerces et des écoles. Il y a l’École Primaire Publique Claire Fontaine à moins de 10 minutes à pied. Niveau transports, on trouve trois gares (Écommoy, Laigné-Saint-Gervais et Mayet) à moins de 10 minutes en voiture. Il y a un accès à l’autoroute A28 à 7 km. Il y a un tennis et deux boulangeries dans les environs.Il est à vendre pour la somme de 43 000 €. N’hésitez pas à prendre contact avec François HOUDAYER ((Numéro supprimé)) pour toute question sur ce terrain ou sur les démarches à suivre.
Guécélard
TERRAIN ET MAISONVENTE d’une maison de 4 pièces (92 m²) à GuécélardIDÉALEMENT SITUÉE – MAISON 4 PIÈCES NEUVEÀ vendre à 12 km du Mans, Maisons France Confort Saint-Saturnin vous présente cette maison de 4 pièces de plain-pied de 92 m² et de 474 m² de terrain, idéalement située dans Guécélard (72230).Elle comporte trois chambres, une cuisine et une salle de bains. La maison est neuve.Cette propriété se situe dans un quartier attractif. L’École Primaire Publique René Cassin se trouve à moins de 10 minutes à pied. Niveau transports, il y a quatre gares à moins de 10 minutes en voiture. Il y a un accès à l’autoroute A11 à 10 km. On trouve un tennis, deux boulangeries, un commerce et un supermarché dans les environs.Elle est proposée à l’achat pour 221 500 €.Contactez Stéphane MAGNE (tél : (Numéro supprimé)) pour toute information sur la maison. Maisons France Confort Saint-Saturnin est là pour vous accompagner dans toutes vos démarches.
Guécélard
TERRAIN ET MAISONVENTE d’une maison F4 (85 m²) à GuécélardIDÉALEMENT SITUÉE – MAISON 4 PIÈCES NEUVEEn vente à quelques kilomètres du Mans, Maisons France Confort Saint-Saturnin vous présente cette maison de 4 pièces de plain-pied de 85 m², idéalement située dans Guécélard (72230). Conçue de plain-pied, elle compte trois chambres, une cuisine et une salle de bains.Le terrain du bien s’étend sur 474 m².La maison est neuve.Cette propriété est située dans un secteur recherché. Il y a l’École Primaire Publique René Cassin à moins de 10 minutes à pied. Niveau transports en commun, on trouve quatre gares à moins de 10 minutes en voiture. L’autoroute A11 est accessible à 10 km. Il y a un tennis, deux boulangeries, un commerce et un supermarché à quelques minutes du logement.Elle est proposée à l’achat pour 193 400 €.Prenez contact avec notre agence (MAGNE Stéphane : (Numéro supprimé)) pour toute information sur la maison ou sur les démarches à suivre. Donnez vie à vos projets immobiliers avec Maisons France Confort Saint-Saturnin.
Saint-Ouen-en-Belin
TERRAIN ET MAISONVENTE d’une maison de 5 pièces (104 m²) à Saint-Ouen-en-BelinIDÉALEMENT SITUÉE – MAISON 5 PIÈCES NEUVEEn vente à quelques kilomètres du Mans, nous vous proposons cette maison de 5 pièces de plain-pied de 104 m², idéalement située dans Saint-Ouen-en-Belin (72220).Son intérieur compte quatre chambres, une cuisine et une salle de bains. Cette maison est neuve.Le terrain de la propriété s’étend sur 660 m².La maison est située dans un secteur attractif. L’École Primaire Publique Claire Fontaine se trouve à moins de 10 minutes à pied. Niveau transports en commun, il y a trois gares (Écommoy, Laigné-Saint-Gervais et Mayet) à moins de 10 minutes en voiture. L’autoroute A28 est accessible à 7 km. On trouve un tennis et deux boulangeries à proximité.Son prix de vente est de 263 000 €.Contactez notre agence (HOUDAYER François : (Numéro supprimé)) pour tout renseignement sur le bien ou sur les modalités de vente.
Saint-Ouen-en-Belin
TERRAIN ET MAISONMaison de 5 pièces (87 m²) en vente à Saint-Ouen-en-BelinIDÉALEMENT SITUÉE – MAISON 5 PIÈCES NEUVEÀ 17 km du Mans, en vente idéalement située dans Saint-Ouen-en-Belin (72220), Maine Construction Le Mans vous présente cette maison de 5 pièces de plain-pied de 87 m².Elle offre quatre chambres, une cuisine et une salle de bains. La maison est neuve.Le terrain du bien s’étend sur 660 m².Cette maison se trouve dans un secteur convoité. Il y a l’École Primaire Publique Claire Fontaine à moins de 10 minutes à pied. Côté transports en commun, on trouve les gares Écommoy, Laigné-Saint-Gervais et Mayet à moins de 10 minutes en voiture. L’autoroute A28 est accessible à 7 km. Il y a un tennis et deux boulangeries à proximité.Son prix de vente est de 225 000 €.Contactez François HOUDAYER ((Numéro supprimé)) pour toute question sur la maison. Concrétisez vos projets immobiliers avec Maine Construction Le Mans.
Guécélard
TERRAIN ET MAISONMaison de 6 pièces (125 m²) à vendre à GuécélardIDÉALEMENT SITUÉE – MAISON 6 PIÈCES NEUVEÀ quelques kilomètres du Mans, Maisons France Confort Saint-Saturnin vous propose en vente, idéalement située dans Guécélard (72230), cette maison de 6 pièces de 125 m² et de 474 m² de terrain.Cette maison compte 2 niveaux. Elle inclut quatre chambres, une cuisine et deux salles de bains. Cette maison est neuve.Cette maison se trouve dans un secteur convoité. Il y a l’École Primaire Publique René Cassin à moins de 10 minutes à pied. Niveau transports, on trouve quatre gares à moins de 10 minutes en voiture. L’autoroute A11 est accessible à 10 km. Il y a un tennis, deux boulangeries, un commerce et un supermarché à proximité.Son prix de vente est de 303 500 €.Prenez contact avec Stéphane MAGNE (tél : (Numéro supprimé)) pour tout renseignement sur la maison. Maisons France Confort Saint-Saturnin vous accompagne dans toutes vos démarches et à toutes les étapes de votre projet.
L’actualité immobilière à Saint-Ouen-en-Belin
27/11/2023
02/11/2023
30/10/2023
20/10/2023
16/10/2023
16/10/2023