Terrain et maison à vendre à Saint-Rémy-du-Val (72600)
Saint-Rémy-du-Val
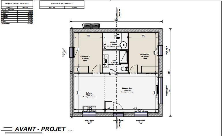
TERRAIN ET MAISONNous vous proposons cette maison neuve, modèle « »Access » », une perle de notre gamme Primaciel, spécialement conçue pour les primo-accédants à la recherche d’un habitat à la fois économique et innovant. Avec son incroyable rapport qualité/prix, l’Access se distingue par sa conception astucieuse et son engagement envers une isolation conforme aux dernières normes, le tout à un prix maîtrisé. Cette maison de plain-pied s’étend sur 73 m² et est judicieusement agencée pour maximiser le confort et l’espace de vie. Elle se compose de 4 pièces, dont 3 chambres spacieuses de plus de 9 m² chacune, promettant intimité et tranquillité pour tous les membres de la famille. Le cœur de cette maison est sans doute son espace de vie lumineux de près de 35 m², comprenant un séjour et une cuisine ouverte, idéal pour partager des moments conviviaux. Un cellier attenant de 3.5 m² offre un espace de rangement supplémentaire très pratique, tandis qu’une salle de bain fonctionnelle de près de 5 m² et des WC séparés viennent compléter l’ensemble.L’Access est également conçu pour évoluer avec vos besoins, grâce à ses combles perdus et ses combles aménageables, vous offrant la possibilité d’agrandir votre espace de vie selon vos envies. Les options les plus plébiscitées, telles qu’un Car Port ou un garage accolé, sont disponibles pour répondre à toutes vos attentes en matière de stationnement et de stockage.Mais ce qui distingue véritablement l’Access, c’est son engagement envers la durabilité et l’économie d’énergie. Cette maison est basse consommation et strictement conforme à la réglementation environnementale RE2020, vous assurant ainsi des économies significatives sur vos factures d’énergie tout en contribuant à la protection de l’environnement.En choisissant le modèle Access, vous optez pour une maison à prix malin, sans compromis sur la qualité et le confort, tout en étant assuré de vivre dans un logement respectueux de l’environnement. Une opportunité à ne pas manquer pour réal
Saint-Rémy-du-Val
TERRAIN ET MAISONSaint-Rémy-du-Val : maison F2 (50 m²) en venteIDÉALEMENT SITUÉE – MAISON 2 PIÈCES NEUVEEn vente : située à 15 km d’Alençon, Maisons France Confort Alençon vous présente cette maison de 2 pièces de plain-pied de 50 m², idéalement située dans Saint-Rémy-du-Val (72600). Conçue de plain-pied, elle inclut deux chambres, une cuisine et une salle de bains.Le terrain de la maison s’étend sur 599 m².Cette maison est neuve.Cette maison est située dans un quartier convoité. L’autoroute A28 est accessible à 10 km. Il y a un tennis, une boulangerie et une supérette à proximité.Son prix de vente est de 133 000 €.Contactez notre agence (RODRIGUES MORAIS Elisa : (Numéro supprimé)) pour plus de renseignements sur la maison, sur les modalités de vente et sur les démarches à suivre. Maisons France Confort Alençon est là pour vous accompagner à toutes les étapes de votre projet.
Saint-Rémy-du-Val
TERRAIN ET MAISONSaint-Rémy-du-Val : maison F4 (85 m²) en venteIDÉALEMENT SITUÉE – MAISON 4 PIÈCES NEUVEEn vente : située à 15 km d’Alençon, notre agence Maisons France Confort Alençon est ravie de vous présenter cette maison de 4 pièces de plain-pied de 85 m² et de 599 m² de terrain, idéalement située dans Saint-Rémy-du-Val (72600). Conçue de plain-pied, elle compte trois chambres, une cuisine et une salle de bains.La maison est neuve.Cette maison se trouve dans un secteur prisé. L’autoroute A28 est accessible à 10 km. Il y a un tennis, une boulangerie et une supérette à quelques minutes du bien.Elle est proposée à l’achat pour 155 000 €.N’hésitez pas à prendre contact avec Elisa RODRIGUES MORAIS ((Numéro supprimé)) pour plus de renseignements sur la maison, sur les démarches à suivre ou sur les modalités de vente. Donnez vie à vos projets immobiliers avec Maisons France Confort Alençon.
Saint-Rémy-du-Val
TERRAIN ET MAISONVENTE d’une maison de 5 pièces (90 m²) à Saint-Rémy-du-ValIDÉALEMENT SITUÉE – MAISON 5 PIÈCES NEUVEEn vente à 15 km d’Alençon, votre agence Maisons France Confort Alençon est ravie de vous proposer cette maison de 5 pièces de plain-pied de 90 m² et de 599 m² de terrain idéalement située dans Saint-Rémy-du-Val (72600). Son intérieur est composé de trois chambres, d’une cuisine et d’une salle de bains.Cette maison est neuve.La maison se trouve dans un secteur recherché. On trouve un accès à l’autoroute A28 à 10 km. Il y a un tennis, une boulangerie et une supérette à quelques minutes du bien.Son prix de vente est de 194 000 €.N’hésitez pas à prendre contact avec Elisa RODRIGUES MORAIS (tél : (Numéro supprimé)) pour obtenir de plus amples renseignements sur la propriété ou sur les modalités de vente. Maisons France Confort Alençon est là pour vous accompagner dans toutes vos démarches.
Saint-Rémy-du-Val
TERRAIN ET MAISONVENTE d’une maison de 5 pièces (90 m²) à Saint-Rémy-du-ValIDÉALEMENT SITUÉE – MAISON 5 PIÈCES NEUVEÀ deux pas d’Alençon, à vendre idéalement située dans Saint-Rémy-du-Val (72600), nous vous présentons cette maison de 5 pièces de plain-pied de 90 m² et de 599 m² de terrain.Elle compte trois chambres, une cuisine et deux salles de bains. Cette maison est neuve.Cette maison est située dans un secteur attractif. Il y a un accès à l’autoroute A28 à 10 km. Il y a un tennis, une boulangerie et une supérette dans les environs.Elle est à vendre pour la somme de 199 000 €.Contactez Elisa RODRIGUES MORAIS (tél : (Numéro supprimé)) pour plus de renseignements sur la propriété, sur les modalités de vente ou sur les démarches à suivre. Faites de vos projets immobiliers une réalité avec Maisons France Confort Alençon.
Saint-Rémy-du-Val
TERRAIN ET MAISONVENTE d’une maison T6 (140 m²) à Saint-Rémy-du-ValIDÉALEMENT SITUÉE – MAISON 6 PIÈCES NEUVEÀ vendre : à quelques kilomètres d’Alençon, Maisons France Confort Alençon vous présente, idéalement située dans Saint-Rémy-du-Val (72600), cette maison de 6 pièces de plain-pied de 140 m² et de 599 m² de terrain.Conçue de plain-pied, elle offre cinq chambres, une cuisine et deux salles de bains. Cette maison est neuve.La maison se situe dans un secteur convoité. Il y a un accès à l’autoroute A28 à 10 km. On trouve un tennis, une boulangerie et une supérette à quelques minutes à peine.Son prix de vente est de 265 000 €.Prenez contact avec notre agence (RODRIGUES MORAIS Elisa : (Numéro supprimé)) pour obtenir de plus amples renseignements sur la maison ou sur les modalités de vente. Maisons France Confort Alençon vous accompagne dans tous vos projets immobiliers et à toutes les étapes de l’achat.
Saint-Rémy-du-Val
TERRAIN ET MAISONVENTE : maison T6 (115 m²) à Saint-Rémy-du-ValIDÉALEMENT SITUÉE – MAISON 6 PIÈCES NEUVEÀ vendre : à deux pas d’Alençon, nous vous proposons cette maison de 6 pièces de 115 m² idéalement située dans Saint-Rémy-du-Val (72600).Cette maison compte 2 niveaux. Elle offre quatre chambres, une cuisine et deux salles de bains. La maison est neuve.Le terrain du bien est de 599 m².La maison est située dans un quartier recherché. On trouve un accès à l’autoroute A28 à 10 km. On trouve un tennis, une boulangerie et une supérette dans les environs.Elle est proposée à l’achat pour 246 000 €.Contactez notre agence (RODRIGUES MORAIS Elisa : (Numéro supprimé)) pour tout renseignement sur la maison.
Saint-Rémy-du-Val
TERRAIN ET MAISONSaint-Rémy-du-Val : maison F5 (80 m²) en venteIDÉALEMENT SITUÉE – MAISON 5 PIÈCES NEUVEEn vente : localisée à deux pas d’Alençon, Maisons France Confort Alençon vous présente, idéalement située dans Saint-Rémy-du-Val (72600), cette maison de 5 pièces de 80 m² et de 599 m² de terrain. Elle propose trois chambres, une cuisine et une salle de bains.C’est une maison de 2 niveaux. Elle est neuve.Cette maison se trouve dans un quartier prisé. L’autoroute A28 est accessible à 10 km. Il y a un tennis, une boulangerie et une supérette à quelques minutes à peine.Son prix de vente est de 207 000 €.Prenez contact avec notre agence (Elisa RODRIGUES MORAIS : (Numéro supprimé)) pour toute information sur la maison ou sur les démarches à suivre.
Saint-Rémy-du-Val
TERRAIN ET MAISONVENTE d’une maison T3 (60 m²) à Saint-Rémy-du-ValIDÉALEMENT SITUÉE – MAISON 3 PIÈCES NEUVEÀ quelques kilomètres d’Alençon, à vendre idéalement située dans Saint-Rémy-du-Val (72600), nous sommes ravis de vous présenter cette maison de 3 pièces de plain-pied de 60 m² et de 597 m² de terrain.Son intérieur comporte une chambre, une cuisine et une salle de bains. La maison est neuve.La maison se trouve dans un secteur attractif. Il y a un accès à l’autoroute A28 à 10 km. Il y a un tennis, une boulangerie et une supérette dans les environs.Elle est proposée à l’achat pour 165 000 €.Contactez Elisa RODRIGUES MORAIS (tél : (Numéro supprimé)) pour toute information sur la maison ou sur les modalités de vente.
Saint-Rémy-du-Val
TERRAIN ET MAISONVENTE d’une maison F5 (80 m²) à Saint-Rémy-du-ValIDÉALEMENT SITUÉE – MAISON 5 PIÈCES NEUVEÀ vendre : à deux pas d’Alençon, idéalement située dans Saint-Rémy-du-Val (72600), nous sommes heureux de vous présenter cette maison de 5 pièces de plain-pied de 80 m². Son intérieur compte trois chambres, une cuisine et une salle de bains.Le terrain de la maison est de 597 m².La maison est neuve.Ce bien se situe dans un quartier attractif. L’autoroute A28 est accessible à 10 km. On trouve un tennis, une boulangerie et une supérette dans les environs.Il est à vendre pour la somme de 172 000 €.Contactez notre agence (Elisa RODRIGUES MORAIS : (Numéro supprimé)) pour tout renseignement sur la maison. Maisons France Confort Alençon est là pour vous accompagner à toutes les étapes de l’achat.
Saint-Rémy-du-Val
TERRAIN ET MAISONVENTE : maison T3 (55 m²) à Saint-Rémy-du-ValIDÉALEMENT SITUÉE – MAISON 3 PIÈCES NEUVEÀ quelques kilomètres d’Alençon, notre agence Maisons France Confort Alençon est heureuse de vous proposer cette maison de 3 pièces de plain-pied de 55 m² idéalement située dans Saint-Rémy-du-Val (72600).Elle propose deux chambres, une cuisine et une salle de bains. La maison est neuve.Le terrain du bien est de 597 m².Cette maison est située dans un secteur recherché. L’autoroute A28 est accessible à 10 km. On trouve un tennis, une boulangerie et une supérette à proximité.Elle est proposée à l’achat pour 123 500 €.Prenez contact avec notre constructeur (Elisa RODRIGUES MORAIS : (Numéro supprimé)) pour toute information sur la maison.
Saint-Rémy-du-Val
TERRAIN ET MAISONSaint-Rémy-du-Val : maison T4 (78 m²) à vendreIDÉALEMENT SITUÉE – MAISON 4 PIÈCES NEUVEÀ vendre : située à 15 km d’Alençon, Maisons France Confort Alençon vous présente cette maison de 4 pièces de 78 m² et de 597 m² de terrain idéalement située dans Saint-Rémy-du-Val (72600).Il s’agit d’une maison de 2 niveaux. Elle est composée de trois chambres, d’une cuisine et d’une salle de bains. Cette maison est neuve.Cette maison se trouve dans un quartier prisé. L’autoroute A28 est accessible à 10 km. Il y a un tennis, une boulangerie et une supérette à quelques minutes.Son prix de vente est de 175 000 €.Prenez contact avec notre agence (RODRIGUES MORAIS Elisa : (Numéro supprimé)) pour toute information sur la maison. Maisons France Confort Alençon est là pour vous accompagner dans tous vos projets immobiliers.
Saint-Rémy-du-Val
TERRAIN ET MAISONVENTE : maison de 5 pièces (85 m²) à Saint-Rémy-du-ValIDÉALEMENT SITUÉE – MAISON 5 PIÈCES NEUVEÀ vendre : à 15 km d’Alençon, laissez vous charmer par cette maison de 5 pièces de plain-pied de 85 m², idéalement située dans Saint-Rémy-du-Val (72600). Elle propose trois chambres, une cuisine et une salle de bains.Le terrain du bien s’étend sur 597 m².Cette maison est neuve.La maison est située dans un secteur convoité. L’autoroute A28 est accessible à 10 km. On trouve un tennis, une boulangerie et une supérette à quelques minutes du logement.Son prix de vente est de 195 000 €.Contactez Elisa RODRIGUES MORAIS ((Numéro supprimé)) pour toute question sur le bien et sur les démarches à suivre. Donnez vie à vos projets immobiliers avec Maisons France Confort Alençon.
Saint-Rémy-du-Val
TERRAIN ET MAISONSaint-Rémy-du-Val : maison F2 (50 m²) à vendreIDÉALEMENT SITUÉE – MAISON 2 PIÈCES NEUVEÀ 15 km d’Alençon, votre agence Maisons France Confort Alençon est heureuse de vous présenter en vente, idéalement située dans Saint-Rémy-du-Val (72600), cette maison de 2 pièces de plain-pied de 50 m². Son intérieur inclut deux chambres, une cuisine et une salle de bains.Le terrain de la propriété est de 590 m².Cette maison est neuve.La maison se trouve dans un quartier recherché. On trouve un accès à l’autoroute A28 à 10 km. Il y a un tennis, une boulangerie et une supérette à proximité.Elle est proposée à l’achat pour 131 300 €.Prenez contact avec notre constructeur (RODRIGUES MORAIS Elisa : (Numéro supprimé)) pour tout renseignement sur la maison et sur les modalités de vente. Donnez vie à vos projets immobiliers avec Maisons France Confort Alençon.
Saint-Rémy-du-Val
TERRAIN ET MAISONVENTE d’une maison de 3 pièces (55 m²) à Saint-Rémy-du-ValIDÉALEMENT SITUÉE – MAISON 3 PIÈCES NEUVEÀ vendre : à quelques kilomètres d’Alençon, Maisons France Confort Alençon vous présente, idéalement située dans Saint-Rémy-du-Val (72600), cette maison de 3 pièces de plain-pied de 55 m².Elle offre deux chambres, une cuisine et une salle de bains. La maison est neuve.Le terrain du bien s’étend sur 590 m².Cette maison est située dans un secteur attractif. L’autoroute A28 est accessible à 10 km. Il y a un tennis, une boulangerie et une supérette dans les environs.Elle est proposée à l’achat pour 123 300 €.Contactez Elisa RODRIGUES MORAIS (tél : (Numéro supprimé)) pour obtenir de plus amples informations sur la maison, sur les démarches à suivre ou sur les modalités de vente. Concrétisez vos projets immobiliers avec Maisons France Confort Alençon.
Saint-Rémy-du-Val
TERRAIN ET MAISONVENTE d’une maison de 3 pièces (69 m²) à Saint-Rémy-du-ValIDÉALEMENT SITUÉE – MAISON 3 PIÈCES NEUVEÀ vendre : située à 15 km d’Alençon, découvrez, idéalement située dans Saint-Rémy-du-Val (72600), cette maison de 3 pièces de plain-pied de 69 m² et de 590 m² de terrain. Son intérieur inclut deux chambres, une cuisine et une salle de bains.La maison est neuve.Cette maison est située dans un secteur prisé. L’autoroute A28 est accessible à 10 km. Il y a un tennis, une boulangerie et une supérette à proximité.Son prix de vente est de 145 000 €.N’hésitez pas à prendre contact avec notre agence (Elisa RODRIGUES MORAIS : (Numéro supprimé)) pour toute question sur la maison ou sur les démarches à suivre. Maisons France Confort Alençon vous accompagne à toutes les étapes de l’achat et dans tous vos projets immobiliers.
Saint-Rémy-du-Val
TERRAIN ET MAISONSaint-Rémy-du-Val : maison F8 (140 m²) en venteIDÉALEMENT SITUÉE – MAISON 8 PIÈCES NEUVEEn vente : localisée à quelques kilomètres d’Alençon, ayez le coup de coeur pour, idéalement située dans Saint-Rémy-du-Val (72600), cette maison de 8 pièces de 140 m² et de 590 m² de terrain.Il s’agit d’une maison de 2 niveaux. Son intérieur compte cinq chambres, une cuisine et deux salles de bains. La maison est neuve.Cette propriété est située dans un secteur prisé. L’autoroute A28 est accessible à 10 km. On trouve un tennis, une boulangerie et une supérette dans les environs.Son prix de vente est de 268 000 €.Contactez Elisa RODRIGUES MORAIS ((Numéro supprimé)) pour plus d’informations sur la maison.
Saint-Rémy-du-Val
TERRAIN ET MAISONVENTE : maison de 5 pièces (101 m²) à Saint-Rémy-du-ValIDÉALEMENT SITUÉE – MAISON 5 PIÈCES NEUVEEn vente : à 15 km d’Alençon, Maisons France Confort Alençon vous présente, idéalement située dans Saint-Rémy-du-Val (72600), cette maison de 5 pièces de plain-pied de 101 m² et de 590 m² de terrain. Conçue de plain-pied, elle offre quatre chambres, une cuisine et une salle de bains.Cette maison est neuve.La maison se situe dans un secteur recherché. Il y a un accès à l’autoroute A28 à 10 km. Il y a un tennis, une boulangerie et une supérette dans les environs.Elle est proposée à l’achat pour 178 700 €.Contactez Elisa RODRIGUES MORAIS ((Numéro supprimé)) pour toute question sur la maison. Maisons France Confort Alençon vous accompagne dans toutes vos démarches et à toutes les étapes de l’achat.
De 0 à 18 parmi 30 résultats
En savoir plus sur Saint-Rémy-du-Val
Vous trouverez 30 terrain et maison disponibles à l’achat dans la ville de Saint-Rémy-du-Val.
Les prix varient de 123 300€ à 280 000€. Le prix moyen constaté pour une annonce est de 184 528€.
Nos articles concernant Saint-Rémy-du-Val
27/11/2023
02/11/2023
30/10/2023
20/10/2023
16/10/2023
16/10/2023