Maison à construire à Trangé (72650)
Images
Description
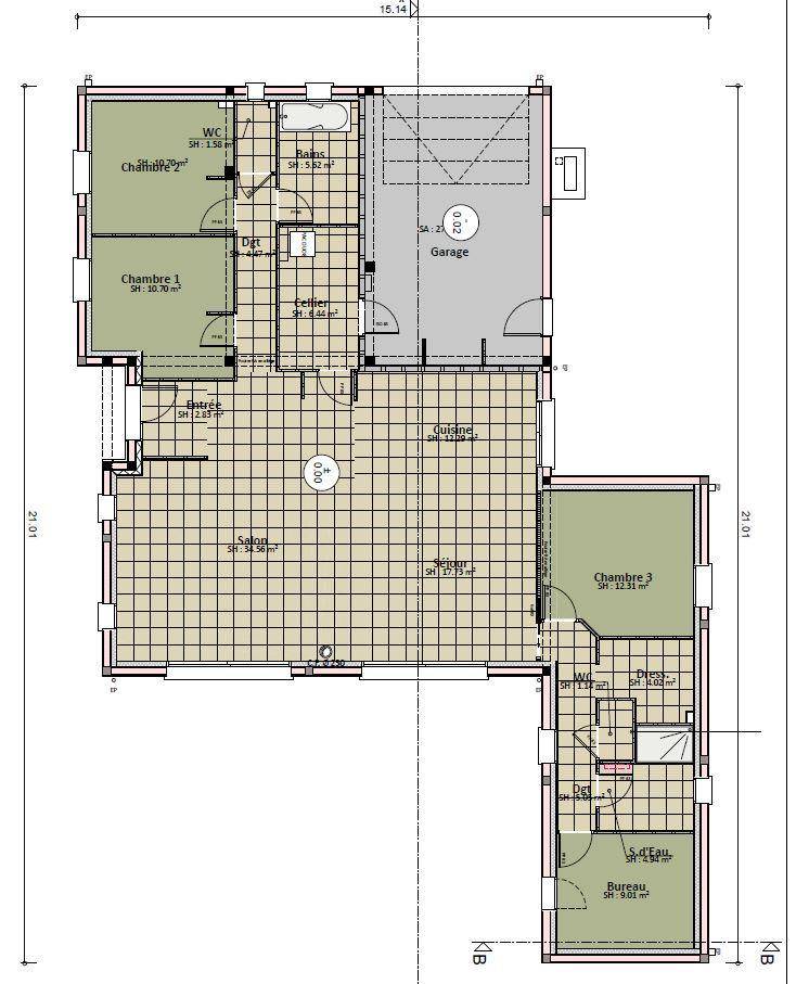
VENTE d'une maison T4 (143 m²) à Trangé
QUARTIER RECHERCHÉ - MAISON 4 PIÈCES NEUVE
En vente : localisée à quelques kilomètres du Mans, nous sommes heureux de vous proposer, nichée dans un quartier attractif de Trangé (72650), cette maison de 4 pièces de plain-pied de 143 m². Conçue de plain-pied, elle dispose de quatre chambres, d'une cuisine et de deux salles de bains.
Le terrain du bien s'étend sur 300 m².
Cette maison est neuve.
La maison se trouve dans un secteur recherché. L'École Primaire Publique les Happelières est implantée à moins de 10 minutes à pied. Niveau transports, on trouve les gares Le Mans et Neuville-sur-Sarthe à moins de 10 minutes en voiture. L'autoroute A11 est accessible à 2 km. Il y a une bibliothèque, deux commerces, une boulangerie et une épicerie à proximité du logement.
Son prix de vente est de 349 000 €.
Contactez notre agence (HOUDAYER François : (Numéro supprimé)) pour tout renseignement sur la propriété ou sur les démarches à suivre. Faites de vos projets immobiliers une réalité avec Maine Construction Le Mans.
Logement susceptibles de vous intéresser
Nous vous proposons de découvrir aussi cette sélection de logements situés à moins de 10km de Trangé et qui seraient susceptibles de vous intéresser.
Aigné
TERRAINVENTE d »un terrain de 780 m² à AignéQUARTIER RECHERCHÉ – PROCHE DU MANSÀ Aigné (72650) en vente à 11 km du Mans, découvrez ce terrain de 780 m². Il donne sur un jardin et bénéficie d »une exposition nord-ouest. Dans un quartier attractif, le terrain construit dans un quartier prisé est proche des écoles et des commerces. L »École Primaire Publique Roger Bazille est implantée à moins de 10 minutes à pied. Niveau transports en commun, on trouve quatre gares à moins de 10 minutes en voiture. On trouve un accès à l »autoroute A11 à 4 km. Il y a un tennis à quelques minutes à peine.Ce terrain est proposé à l »achat pour 59 000 €. Contactez François HOUDAYER (tél : (Numéro supprimé)) pour tout renseignement sur le terrain, sur les modalités de vente ou sur les démarches à suivre. Faites de vos projets immobiliers une réalité avec Maine Construction Saint-Saturnin.
Aigné
TERRAIN ET MAISONAigné : maison de 3 pièces (92 m²) à vendreQUARTIER RECHERCHÉ – MAISON 3 PIÈCES NEUVEÀ 11 km du Mans, nous vous proposons cette maison de 3 pièces de 92 m² et de 780 m² de terrain nichée dans un quartier convoité d’Aigné (72650).C’est une maison de 2 niveaux. Elle compte trois chambres, une cuisine et une salle de bains. La maison est neuve.Ce bien est situé dans un secteur attractif. L’École Primaire Publique Roger Bazille est implantée à moins de 10 minutes à pied. Niveau transports en commun, on trouve quatre gares à moins de 10 minutes en voiture. On trouve un accès à l’autoroute A11 à 4 km. Il y a un tennis à proximité du logement.Il est à vendre pour la somme de 278 000 €.Contactez notre agence (François HOUDAYER : (Numéro supprimé)) pour toute question sur la maison ou sur les modalités de vente. Maine Construction Saint-Saturnin est là pour vous accompagner dans tous vos projets immobiliers.
Aigné
TERRAIN ET MAISONAigné : maison de 3 pièces (92 m²) à vendreQUARTIER RECHERCHÉ – MAISON 3 PIÈCES NEUVEÀ 11 km du Mans, nous vous proposons cette maison de 3 pièces de 92 m² et de 780 m² de terrain nichée dans un quartier convoité d’Aigné (72650).C’est une maison de 2 niveaux. Elle compte trois chambres, une cuisine et une salle de bains. La maison est neuve.Ce bien est situé dans un secteur attractif. L’École Primaire Publique Roger Bazille est implantée à moins de 10 minutes à pied. Niveau transports en commun, on trouve quatre gares à moins de 10 minutes en voiture. On trouve un accès à l’autoroute A11 à 4 km. Il y a un tennis à proximité du logement.Il est à vendre pour la somme de 278 000 €.Contactez notre agence (François HOUDAYER : (Numéro supprimé)) pour toute question sur la maison ou sur les modalités de vente. Maine Construction Saint-Saturnin est là pour vous accompagner dans tous vos projets immobiliers.
Aigné
TERRAINVENTE d’un terrain de 780 m² à AignéPROCHE CENTRE-VILLE – PROCHE DU MANSEn vente à deux pas du Mans à Aigné (72650), grand terrain. Il donne sur un jardin et est orienté au nord. Non loin du centre-ville, le terrain est proche des commerces et des écoles. Il y a l’École Primaire Publique Roger Bazille à moins de 10 minutes à pied. Côté transports, on trouve quatre gares à moins de 10 minutes en voiture. L’autoroute A11 est accessible à 4 km. Il y a un tennis à proximité du terrain.Son prix de vente est de 52 000 €. N’hésitez pas à prendre contact avec François HOUDAYER (tél : (Numéro supprimé)) pour plus de renseignements sur le terrain ou sur les démarches à suivre.
Aigné
TERRAIN ET MAISONVENTE : maison de 4 pièces (73 m²) à AignéPROCHE CENTRE-VILLE – MAISON 4 PIÈCES NEUVEÀ deux pas du Mans, à vendre proche du centre-ville d’Aigné (72650), notre agence Maine Construction Le Mans est heureuse de vous proposer cette maison de 4 pièces de plain-pied de 73 m² et de 780 m² de terrain. Conçue de plain-pied, elle propose trois chambres, une cuisine et une salle de bains.La maison est neuve.L’École Primaire Publique Roger Bazille se trouve à moins de 10 minutes à pied. Niveau transports, il y a quatre gares à moins de 10 minutes en voiture. L’autoroute A11 est accessible à 4 km. On trouve un tennis dans les environs.Elle est à vendre pour la somme de 215 000 €.Contactez notre constructeur (François HOUDAYER : (Numéro supprimé)) pour plus d’informations sur la maison, sur les modalités de vente ou sur les démarches à suivre. Donnez vie à vos projets immobiliers avec Maine Construction Le Mans.
Aigné
TERRAIN ET MAISONVENTE : maison de 4 pièces (90 m²) à AignéPROCHE CENTRE-VILLE – MAISON 4 PIÈCES NEUVEÀ vendre : à deux pas du Mans, Maine Construction Le Mans vous présente, proche du centre-ville d’Aigné (72650), cette maison de 4 pièces de plain-pied de 90 m² et de 780 m² de terrain.Son intérieur propose trois chambres, une cuisine et une salle de bains. Cette maison est neuve.L’École Primaire Publique Roger Bazille se trouve à moins de 10 minutes à pied. Niveau transports, il y a quatre gares à moins de 10 minutes en voiture. L’autoroute A11 est accessible à 4 km. On trouve un tennis dans les environs.Elle est à vendre pour la somme de 239 000 €.Contactez François HOUDAYER (tél : (Numéro supprimé)) pour obtenir de plus amples renseignements sur la propriété ou sur les démarches à suivre.
Aigné
TERRAIN ET MAISONMaison de 7 pièces (134 m²) à vendre à AignéPROCHE CENTRE-VILLE – MAISON 7 PIÈCES NEUVEEn vente : à quelques kilomètres du Mans, proche du centre-ville d’Aigné (72650), Maine Construction Le Mans vous propose cette maison de 7 pièces de plain-pied de 134 m² et de 780 m² de terrain. Son intérieur dispose de trois chambres, d’une cuisine et de deux salles de bains.La maison est neuve.L’École Primaire Publique Roger Bazille se trouve à moins de 10 minutes à pied. Côté transports, il y a quatre gares à moins de 10 minutes en voiture. L’autoroute A11 est accessible à 4 km. On trouve un tennis dans les environs.Elle est à vendre pour la somme de 315 000 €.Contactez notre agence (HOUDAYER François : (Numéro supprimé)) pour tout renseignement sur le bien. Faites de vos projets immobiliers une réalité avec Maine Construction Le Mans.
Aigné
TERRAIN ET MAISONMaison F5 (110 m²) à vendre à AignéPROCHE CENTRE-VILLE – MAISON 5 PIÈCES NEUVEEn vente : située à quelques kilomètres du Mans, laissez vous charmer par, proche du centre-ville d’Aigné (72650), cette maison de 5 pièces de plain-pied de 110 m² et de 780 m² de terrain. Elle est composée de trois chambres, d’une cuisine et d’une salle de bains.La maison est neuve.Il y a l’École Primaire Publique Roger Bazille à moins de 10 minutes à pied. Niveau transports, on trouve quatre gares à moins de 10 minutes en voiture. Il y a un accès à l’autoroute A11 à 4 km. Il y a un tennis à quelques minutes à peine.Elle est proposée à l’achat pour 295 000 €.Contactez notre agence (HOUDAYER François : (Numéro supprimé)) pour toute question sur la maison.
Aigné
TERRAIN ET MAISONVENTE d’une maison T4 (105 m²) à AignéPROCHE CENTRE-VILLE – MAISON 4 PIÈCES NEUVEÀ 11 km du Mans, Maine Construction Le Mans vous présente cette maison de 4 pièces de plain-pied de 105 m² à vendre, proche du centre-ville d’Aigné (72650). Conçue de plain-pied, elle dispose de trois chambres, d’une cuisine et d’une salle de bains.Le terrain de la propriété s’étend sur 780 m².Cette maison est neuve.L’École Primaire Publique Roger Bazille est implantée à moins de 10 minutes à pied. Niveau transports en commun, il y a quatre gares à moins de 10 minutes en voiture. On trouve un accès à l’autoroute A11 à 4 km. On trouve un tennis à quelques minutes.Elle est proposée à l’achat pour 265 000 €.Contactez François HOUDAYER (tél : (Numéro supprimé)) pour obtenir de plus amples renseignements sur la propriété et sur les démarches à suivre. Donnez vie à vos projets immobiliers avec Maine Construction Le Mans.
L’actualité immobilière à Trangé
27/11/2023
02/11/2023
30/10/2023
20/10/2023
16/10/2023
16/10/2023