Maison à construire à Venthon (73200)
Images
Description
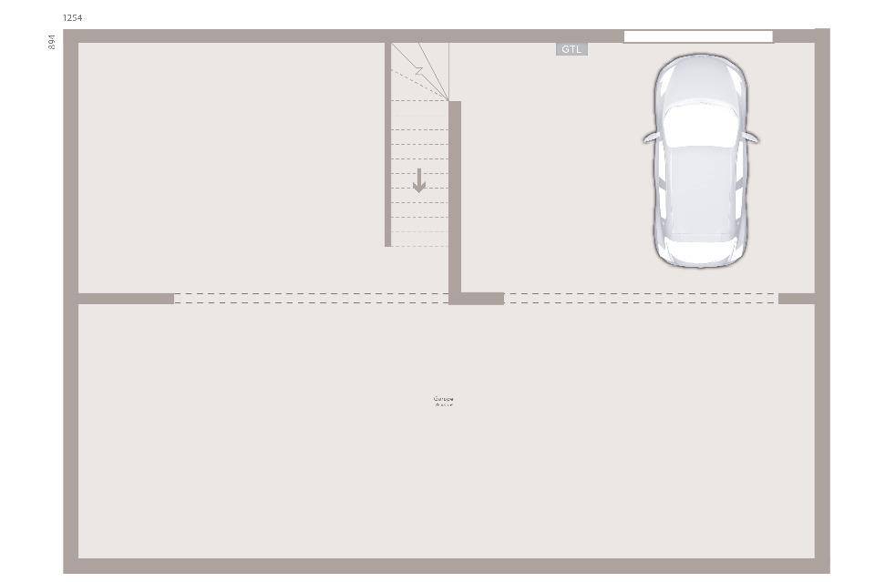
A Venthon, tout proche d'Albertville, découvrez ce projet de maison de plain-pied moderne, conçu pour offrir confort, fonctionnalité et performance énergétique. Avec une surface habitable d'environ 90 m², cette maison est idéale pour une famille recherchant un cadre de vie pratique et agréable.
Ce modèle propose :
Un vaste espace de vie lumineux, pensé pour accueillir un salon, une salle à manger et une cuisine ouverte, créant une atmosphère conviviale et chaleureuse.
Trois chambres bien agencées, parfaites pour une famille ou pour aménager un bureau ou une chambre d'amis.
Une salle de bains fonctionnelle, pouvant être personnalisée selon vos besoins.
Un sous-sol complet, offrant un espace supplémentaire précieux : garage, atelier, buanderie, stockage ou aménagement futur selon vos envies.
Construite selon les normes RE2020, cette maison garantit :
Une excellente isolation thermique,
Une consommation énergétique réduite,
Un confort optimal été comme hiver,
Une conception respectueuse de l'environnement.
Le prix comprend également les frais de notaire, l'assurance dommages ouvrage, les branchements et les travaux de VRD, pour un projet maîtrisé et sans surprise.
Un projet idéal pour celles et ceux qui souhaitent une maison moderne, économique, durable et clé en main, dans un cadre adapté à un mode de vie serein et confortable.
Annonce proposée par un Agent Commercial Partenaire.
Logement susceptibles de vous intéresser
Nous vous proposons de découvrir aussi cette sélection de logements situés à moins de 10km de Venthon et qui seraient susceptibles de vous intéresser.
Monthion
TERRAINLaissez-vous charmer par ce terrain viabilisé de 644 m², idéalement situé sur la commune recherchée de La Plaine de Monthion, à seulement quelques minutes d’Albertville.Vous profiterez d’un environnement paisible et parfaitement ensoleillé, ainsi que d’une vue dégagée sur les sommets alentour, offrant un cadre privilégié pour concrétiser votre projet de vie.Maisons France Confort vous accompagnera pour concevoir et réaliser votre future construction sur cette parcelle.Annonce proposée par un Agent Commercial Partenaire.
La Bâthie
TERRAIN ET MAISONSur ce terrain, nous vous proposons cette maison neuve : la maison Camelia, un modèle de 91 m² conçu par Maisons et Chalets des Alpes, le constructeur avec les meilleurs avis clients de la région. Cette maison compacte et économique offre un rapport qualité/prix exceptionnel, idéale pour les familles souhaitant une habitation de qualité avec un budget maîtrisé. La maison Camelia se distingue par sa conformité à la réglementation RE2020, garantissant une basse consommation énergétique et un respect de l’environnement.### Une maison généreuse à petit prixLa maison Camelia de 91 m² propose un agencement optimisé pour votre confort. Elle dispose de 4 chambres spacieuses, parfaites pour que chaque membre de la famille puisse bénéficier de son propre espace. La pièce de vie principale est lumineuse et accueillante, avec une cuisine ouverte qui favorise la convivialité. Un cellier attenant, une salle de bain avec baignoire et des toilettes séparées complètent cet espace de vie fonctionnel.### Un agencement optimisé pour votre confortCette maison de plain-pied est parfaitement agencée pour offrir un espace de vie confortable à chaque membre de votre famille. La version 91 m² propose un plan en 4 chambres, permettant à chacun de disposer de son propre espace. La pièce de vie principale est spacieuse et lumineuse, avec une cuisine ouverte. Vous trouverez également un cellier attenant, ainsi qu’une salle de bain avec baignoire et des toilettes séparées. Pour ajouter une touche d’originalité, vous avez la possibilité de personnaliser l’extérieur de la maison avec un enduit bicolore sur la façade avant ou arrière.### Options les plus demandéesPour répondre aux attentes des clients, la maison Camelia peut être équipée d’un garage intégré, d’un enduit bi-ton pour une façade élégante, et de systèmes de domotique pour un confort moderne et connecté.Ne manquez pas cette opportunité unique d’acquérir une maison neuve, basse consommation et conforme à la RE2020, avec un
Val de Chaise
TERRAIN ET MAISONSur ce terrain, nous vous proposons cette maison neuve : la Primevère. Conçue par Maisons et Chalets des Alpes, le constructeur avec les meilleurs avis clients de la région, cette maison de 85 m² saura vous séduire par son charme et sa fonctionnalité.La Primevère dispose de 4 pièces, dont 3 chambres, offrant ainsi un espace de vie confortable et bien pensé pour toute la famille. Son crépis coloré lui confère une allure moderne et élégante, s’intégrant parfaitement dans n’importe quel environnement.Cette maison neuve est basse consommation et conforme à la RE2020, garantissant ainsi des performances énergétiques optimales et un respect de l’environnement. Vous pourrez également personnaliser votre maison selon vos envies grâce aux options les plus demandées par nos clients : une maison évolutive, un garage accolé, ou encore une suite parentale.Imaginez-vous dans cette maison, évolutive et adaptable à vos besoins futurs, avec un garage accolé pour plus de praticité, et une suite parentale pour un confort optimal. La Primevère est la maison idéale pour ceux qui recherchent une habitation moderne, économique et respectueuse de l’environnement.Ne manquez pas cette opportunité unique de devenir propriétaire d’une maison neuve, fonctionnelle et personnalisée, construite par le constructeur le plus apprécié de la région. Contactez-nous dès maintenant pour plus d’informations et pour découvrir toutes les possibilités qu’offre la Primevère.
Mercury
TERRAIN ET MAISONSur ce terrain, nous vous proposons cette maison neuve : la Pivoine. Conçue par Maisons et Chalets des Alpes, le constructeur avec les meilleurs avis clients de la région, cette maison de 90 m² est idéale pour les familles souhaitant allier confort et économie d’espace.La Pivoine est une maison à étage qui se distingue par ses combles aménagés, offrant ainsi un espace de vie optimisé et chaleureux. Avec ses 3 chambres et ses 4 pièces, elle s’adapte parfaitement aux besoins de votre famille, qu’il s’agisse d’un couple sans enfants ou d’une petite tribu.Les grandes ouvertures de la Pivoine illuminent son intérieur sur les deux niveaux, créant une atmosphère lumineuse et accueillante. Parmi les options les plus demandées par nos clients, vous trouverez le plancher chauffant, les volets roulants motorisés, le crépis coloré, les baies coulissantes et une suite parentale, pour un confort optimal.Cette maison neuve est également basse consommation et conforme à la RE2020, garantissant ainsi des performances énergétiques exceptionnelles et un respect de l’environnement.En choisissant la Pivoine, vous optez pour une maison moderne, fonctionnelle et économe en énergie, parfaitement adaptée à un petit terrain. N’attendez plus pour découvrir cette maison qui saura répondre à toutes vos attentes et bien plus encore.
Mercury
TERRAIN ET MAISONSur ce terrain, nous vous proposons cette maison neuve : la GENTIANE, un modèle signé Maisons et Chalets des Alpes, le constructeur avec les meilleurs avis clients de la région.### Modèle Gentiane, une fleur des Alpes sur votre terrainQui peut résister à cette belle plante montagnarde, déclinée en une version de 105 m² ? C’est le modèle familial par excellence. Elle en impose autant par sa beauté que par ses qualités intérieures et extérieures. Cette maison à étage évolutive, déjà customisée et full options, est très compacte pour s’adapter aux petits terrains. Elle offre quatre confortables chambres pour toute la famille, ainsi qu’une vaste pièce de vie avec cuisine ouverte.### Une très belle maison à l’architecture attractiveLa Gentiane possède une belle toiture à 4 pans avec avant-toits de 50 centimètres et une pente de 40 %. Son débord garage est un détail moderne qui n’échappe à personne. L’auvent sur entrée et la charreterie dont elle est équipée lui permettent de se démarquer avec chic. Ses belles ouvertures aux dimensions originales et généreuses sont aussi pratiques qu’éclairantes. Vous aussi, craquez pour elle, vous ne le regretterez pas?!### Caractéristiques principales :- **Surface** : 105 m²- **Chambres** : 4- **Pièces** : 5- **Baies coulissantes**- **Auvent**- **Garage intégré**- **Pompe à chaleur**- **Toit terrasse sur garage**Cette maison neuve est basse consommation et conforme à la RE2020, garantissant ainsi une performance énergétique optimale et un respect de l’environnement.Ne manquez pas cette opportunité unique d’acquérir une maison alliant modernité, confort et respect des normes environnementales. Contactez-nous dès aujourd’hui pour plus d’informations et pour planifier une visite de ce modèle exceptionnel.
Marthod
TERRAIN ET MAISONSur ce terrain, nous vous proposons cette maison neuve : la Lys, un modèle de la gamme Maisons et Chalets des Alpes, le constructeur avec les meilleurs avis clients de la région.La Lys, avec ses 98 m², est une maison à étage qui allie confort et fonctionnalité. Elle dispose de 4 chambres et de 4 pièces, offrant ainsi un espace de vie idéal pour toute la famille. La charpente traditionnelle et la dalle étage en béton garantissent une solidité et une durabilité exceptionnelles, tandis que les combles aménagés ajoutent une touche de charme et d’espace supplémentaire.Cette maison neuve est basse consommation et conforme à la RE2020, ce qui vous assure des économies d’énergie et un respect de l’environnement. Parmi les options les plus demandées par nos clients, vous pouvez choisir d’ajouter un garage accolé, un plancher chauffant pour un confort optimal, un crépis coloré pour une touche esthétique personnalisée, des baies coulissantes pour une luminosité maximale, et une suite parentale pour un espace privé et luxueux.La Lys s’intègre parfaitement dans son environnement grâce à ses formes de chalet et ses nombreuses variantes. Que vous optiez pour un garage accolé avec ou sans pergola, ou un carport avec ou sans pergola, vous trouverez la configuration qui correspond le mieux à vos besoins et à vos envies. L’intérieur de votre future demeure est également modulable, vous permettant de créer un véritable petit paradis sur mesure.Ne manquez pas cette opportunité de construire la maison de vos rêves avec Maisons et Chalets des Alpes. Craquez pour la Lys et profitez d’un confort absolu dans une maison neuve, économe en énergie et parfaitement adaptée à votre style de vie.
Val de Chaise
TERRAIN ET MAISONSur ce terrain, nous vous proposons cette maison neuve : la maison Camelia, un modèle de 80 m² + garage conçu par Maisons et Chalets des Alpes.Cette maison compacte et économique offre un rapport qualité/prix exceptionnel, idéale pour les familles souhaitant une habitation de qualité avec un budget maîtrisé. La maison Camelia se distingue par sa conformité à la réglementation RE2020, garantissant une basse consommation énergétique et un respect de l’environnement.### Un agencement optimisé pour votre confortCette maison de plain-pied est parfaitement agencée pour offrir un espace de vie confortable à chaque membre de votre famille. La version 80 m² propose un plan en 3 chambres, permettant à chacun de disposer de son propre espace. La pièce de vie principale est spacieuse et lumineuse, avec une cuisine ouverte. Vous trouverez également un cellier attenant, ainsi qu’une salle de bain avec baignoire et des toilettes séparées. Pour ajouter une touche d’originalité, vous avez la possibilité de personnaliser l’extérieur de la maison avec un enduit bicolore sur la façade avant ou arrière.### Options les plus demandéesPour répondre aux attentes des clients, la maison Camelia peut être équipée d’un garage intégré, d’un enduit bi-ton pour une façade élégante, et de systèmes de domotique pour un confort moderne et connecté.Ne manquez pas cette opportunité unique d’acquérir une maison neuve, basse consommation et conforme à la RE2020, avec un constructeur reconnu pour la qualité de ses réalisations et la satisfaction de ses clients. Contactez-nous dès aujourd’hui pour plus d’informations.
Venthon
TERRAIN ET MAISONSur ce terrain, nous vous proposons cette maison neuve : la Primevère. Conçue par Maisons et Chalets des Alpes, le constructeur avec les meilleurs avis clients de la région, cette maison de 85 m² saura vous séduire par son charme et sa fonctionnalité.La Primevère dispose de 4 pièces, dont 3 chambres, offrant ainsi un espace de vie confortable et bien pensé pour toute la famille. Son crépis coloré lui confère une allure moderne et élégante, s’intégrant parfaitement dans n’importe quel environnement.Cette maison neuve est basse consommation et conforme à la RE2020, garantissant ainsi des performances énergétiques optimales et un respect de l’environnement. Vous pourrez également personnaliser votre maison selon vos envies grâce aux options les plus demandées par nos clients : une maison évolutive, un garage accolé, ou encore une suite parentale.Imaginez-vous dans cette maison, évolutive et adaptable à vos besoins futurs, avec un garage accolé pour plus de praticité, et une suite parentale pour un confort optimal. La Primevère est la maison idéale pour ceux qui recherchent une habitation moderne, économique et respectueuse de l’environnement.Ne manquez pas cette opportunité unique de devenir propriétaire d’une maison neuve, fonctionnelle et personnalisée, construite par le constructeur le plus apprécié de la région. Contactez-nous dès maintenant pour plus d’informations et pour découvrir toutes les possibilités qu’offre la Primevère.
Venthon
TERRAIN ET MAISONA Venthon, tout proche d’Albertville, découvrez ce projet de maison de plain-pied moderne, conçu pour offrir confort, fonctionnalité et performance énergétique. Avec une surface habitable d’environ 90 m², cette maison est idéale pour une famille recherchant un cadre de vie pratique et agréable.Ce modèle propose :Un vaste espace de vie lumineux, pensé pour accueillir un salon, une salle à manger et une cuisine ouverte, créant une atmosphère conviviale et chaleureuse.Trois chambres bien agencées, parfaites pour une famille ou pour aménager un bureau ou une chambre d’amis.Une salle de bains fonctionnelle, pouvant être personnalisée selon vos besoins.Un sous-sol complet, offrant un espace supplémentaire précieux : garage, atelier, buanderie, stockage ou aménagement futur selon vos envies.Construite selon les normes RE2020, cette maison garantit :Une excellente isolation thermique,Une consommation énergétique réduite,Un confort optimal été comme hiver,Une conception respectueuse de l’environnement.Le prix comprend également les frais de notaire, l’assurance dommages ouvrage, les branchements et les travaux de VRD, pour un projet maîtrisé et sans surprise.Un projet idéal pour celles et ceux qui souhaitent une maison moderne, économique, durable et clé en main, dans un cadre adapté à un mode de vie serein et confortable.Annonce proposée par un Agent Commercial Partenaire.
L’actualité immobilière à Venthon
27/11/2023
02/11/2023
30/10/2023
20/10/2023
16/10/2023
16/10/2023