Images
Description
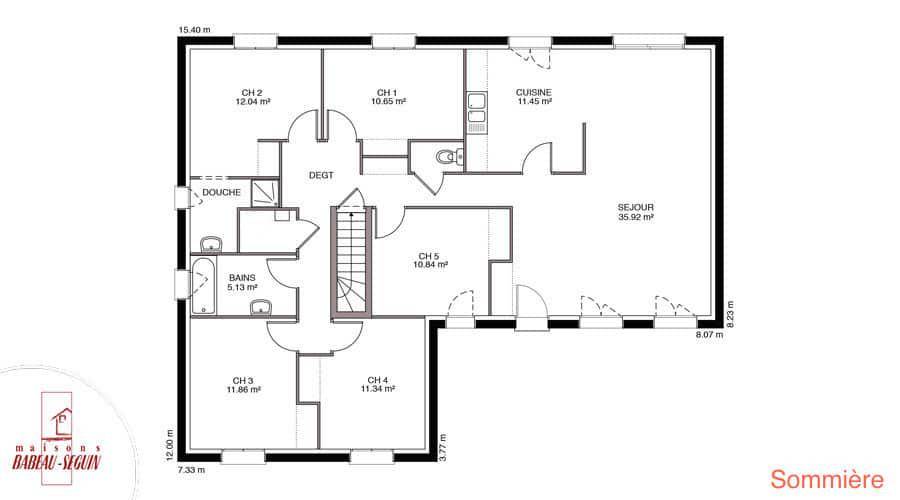
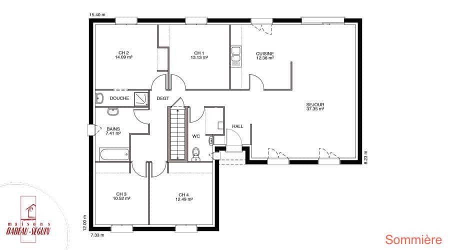
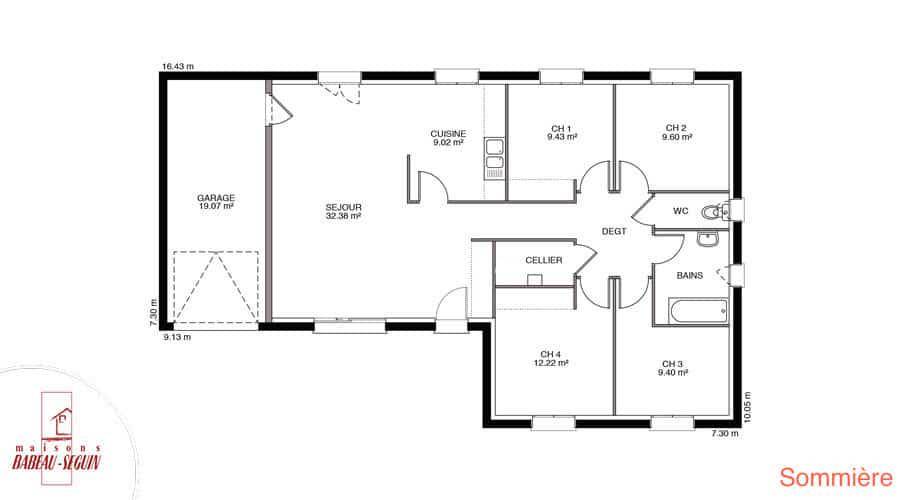
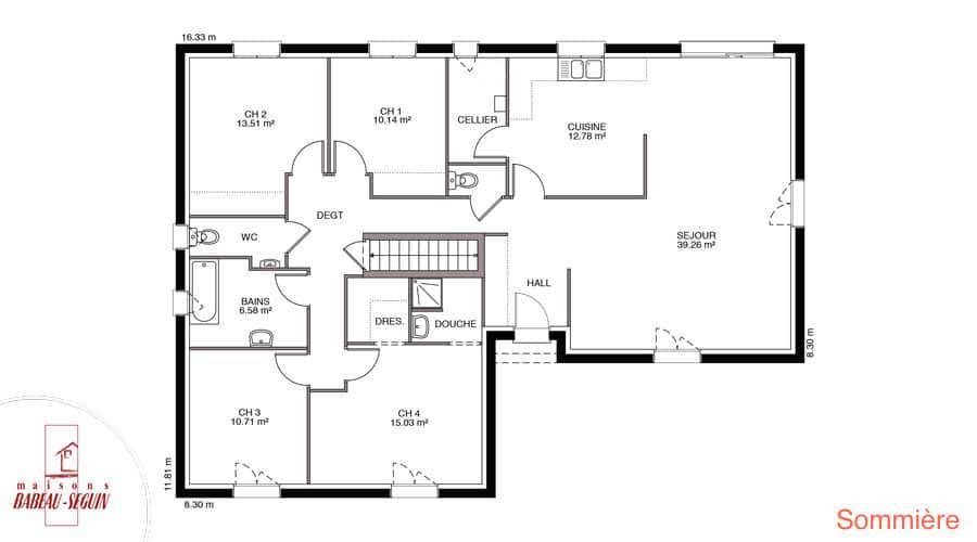
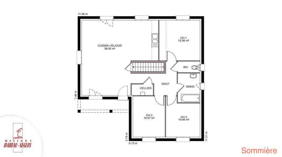
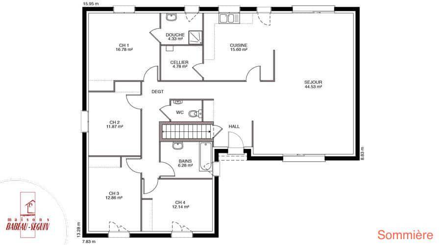
Sur ce terrain, nous vous proposons cette maison neuve, la Sommière, conçue par Babeau-Seguin, constructeur offrant le meilleur rapport qualité/prix du marché. Avec une surface de 107 m², cette maison moderne en L se distingue par son design élégant et ses nombreuses options de personnalisation.
La Sommière dispose de 4 chambres spacieuses et de 4 pièces, offrant un espace de vie confortable et fonctionnel pour toute la famille. Vous avez la possibilité de choisir entre un toit à 2 pans ou à 4 pans, selon vos préférences esthétiques et architecturales. De plus, cette maison peut être équipée d'un garage ou d'un sous-sol, selon vos besoins spécifiques.
Cette maison neuve est basse consommation et conforme à la RE2020, garantissant une performance énergétique optimale et des économies sur vos factures d'énergie. La Sommière est disponible en plus de 10 versions, allant d'une surface de 78 m² à 148 m², ce qui en fait la maison plain-pied la plus déclinée de toute notre gamme.
Avec ou sans garage intégré, avec ou sans galerie, la Sommière s’adapte parfaitement aux besoins et aux attentes de chacun. Nous lui décernons sans hésitation le prix de la maison sur mesure !
Ne manquez pas cette opportunité unique de faire construire une maison qui répondra à toutes vos attentes et vous offrira un cadre de vie exceptionnel. Contactez-nous dès maintenant pour plus d'informations et pour découvrir toutes les options disponibles pour personnaliser votre future maison Sommière.
Logement susceptibles de vous intéresser
Nous vous proposons de découvrir aussi cette sélection de logements situés à moins de 10km de Amillis et qui seraient susceptibles de vous intéresser.
Chailly-en-Brie
TERRAIN ET MAISONChailly-en-Brie : maison de 6 pièces (100 m²) à vendreIDÉALEMENT SITUÉE – MAISON 6 PIÈCES NEUVEAu pied du Transilien P (gare de Coulommiers, 1 h de Paris), notre agence Maisons France Confort Magny-le-Hongre est heureuse de vous proposer cette maison de 6 pièces de 100 m² et de 884 m² de terrain en vente idéalement située dans Chailly-en-Brie (77120). Son intérieur offre quatre chambres, une cuisine et une salle de bains.Cette maison compte 2 niveaux. Elle est neuve.La maison est située dans un secteur prisé. L’École Primaire Geoffroy Saint-Hilaire est implantée à moins de 10 minutes à pied. Niveau transports en commun, il y a les gares Coulommiers, Mouroux et Faremoutiers-Pommeuse à moins de 10 minutes en voiture. On trouve un tennis à proximité.Son prix de vente est de 257 000 €.Contactez notre agence (RUBAL Alan : (Numéro supprimé)) pour toute information sur la maison ou sur les modalités de vente.Annonce proposée par un Agent Commercial Partenaire.
Chailly-en-Brie
TERRAIN ET MAISONVENTE : maison de 7 pièces (120 m²) à Chailly-en-BrieIDÉALEMENT SITUÉE – MAISON 7 PIÈCES NEUVEÀ proximité du Transilien P (gare de Coulommiers, 1 h de Paris), Maisons France Confort Magny-le-Hongre vous présente en vente, idéalement située dans Chailly-en-Brie (77120), cette maison de 7 pièces de 120 m². Son intérieur est composé de quatre chambres, d’une cuisine et de deux salles de bains.Le terrain de cette maison s’étend sur 884 m².Cette maison compte 2 niveaux. Elle est neuve.La maison se trouve dans un secteur recherché. Il y a l’École Primaire Geoffroy Saint-Hilaire à moins de 10 minutes à pied. Côté transports, on trouve les gares Coulommiers, Mouroux et Faremoutiers-Pommeuse à moins de 10 minutes en voiture. Il y a un tennis dans les environs.Elle est à vendre pour la somme de 293 000 €.Prenez contact avec notre agence (RUBAL Alan : (Numéro supprimé)) pour toute information sur la maison, sur les modalités de vente ou sur les démarches à suivre.Annonce proposée par un Agent Commercial Partenaire.
Chailly-en-Brie
TERRAIN ET MAISONChailly-en-Brie : maison de 7 pièces (110 m²) à vendreIDÉALEMENT SITUÉE – MAISON 7 PIÈCES NEUVEEn vente : proche du Transilien P (gare de Coulommiers, 1 h de Paris), idéalement située dans Chailly-en-Brie (77120), nous sommes ravis de vous présenter cette maison de 7 pièces de 110 m² et de 884 m² de terrain.C’est une maison de 2 niveaux. Son intérieur compte quatre chambres, une cuisine et deux salles de bains. La maison est neuve.Cette propriété est située dans un secteur attractif. L’École Primaire Geoffroy Saint-Hilaire est implantée à moins de 10 minutes à pied. Niveau transports en commun, on trouve trois gares (Coulommiers, Mouroux et Faremoutiers-Pommeuse) à moins de 10 minutes en voiture. Il y a un tennis dans les environs.Elle est proposée à l’achat pour 275 000 €.Contactez Alan RUBAL ((Numéro supprimé)) pour toute question sur la maison ou sur les modalités de vente. Maisons France Confort Magny-le-Hongre est là pour vous accompagner dans toutes vos démarches.Annonce proposée par un Agent Commercial Partenaire.
Chailly-en-Brie
TERRAIN ET MAISONMaison T6 (105 m²) à vendre à Chailly-en-BrieIDÉALEMENT SITUÉE – MAISON 6 PIÈCES NEUVEEn vente : au pied du Transilien P (gare de Coulommiers, 1 h de Paris), idéalement située dans Chailly-en-Brie (77120), nous vous présentons cette maison de 6 pièces de 105 m² et de 884 m² de terrain.C’est une maison de 2 niveaux. Son intérieur offre trois chambres, une cuisine et deux salles de bains. Cette maison est neuve.La maison se trouve dans un secteur attractif. Il y a l’École Primaire Geoffroy Saint-Hilaire à moins de 10 minutes à pied. Côté transports en commun, on trouve trois gares (Coulommiers, Mouroux et Faremoutiers-Pommeuse) à moins de 10 minutes en voiture. Il y a un tennis à proximité du logement.Elle est à vendre pour la somme de 266 000 €.Prenez contact avec notre agence (Alan RUBAL : (Numéro supprimé)) pour plus d’informations sur la maison, sur les modalités de vente ou sur les démarches à suivre. Concrétisez vos projets immobiliers avec Maisons France Confort Magny-le-Hongre.Annonce proposée par un Agent Commercial Partenaire.
Coulommiers
TERRAIN ET MAISONMaison F6 (105 m²) à vendre à CoulommiersIDÉALEMENT SITUÉE – MAISON 6 PIÈCES NEUVEÀ côté du Transilien P (1 h de Paris), laissez vous charmer par cette maison de 6 pièces de 105 m² en vente idéalement située dans Coulommiers (77120).Il s’agit d’une maison de 2 niveaux. Elle est composée de quatre chambres, d’une cuisine et de deux salles de bains. Cette maison est neuve.Le terrain de la propriété est de 425 m².La maison se situe dans un secteur prisé. Plusieurs écoles (maternelle, élémentaire, primaire et collège) se trouvent à moins de 10 minutes à pied. Niveau transports en commun, il y a la gare Coulommiers à proximité. On trouve un bassin de natation, une bibliothèque, un tennis, des boulangeries, des commerces, un supermarché, des épiceries et des boucheries-charcuteries à quelques minutes à peine. Enfin, le marché Place du marché anime le quartier.Son prix de vente est de 270 030 €.Prenez contact avec Alan RUBAL ((Numéro supprimé)) pour toute question sur la maison, sur les démarches à suivre ou sur les modalités de vente. Concrétisez vos projets immobiliers avec Maisons France Confort Magny-le-Hongre.Annonce proposée par un Agent Commercial Partenaire.
Vaudoy-en-Brie
TERRAINVaudoy-en-Brie : terrain de 459 m² à vendreEMPLACEMENT PRIVILÉGIÉ – PROCHE DE BUSSY-SAINT-GEORGESÀ Vaudoy-en-Brie (77141) à quelques kilomètres de Bussy-Saint-Georges, venez découvrir ce terrain de 459 m². Dans un quartier prisé, ce terrain bénéficiant d’un emplacement privilégié est proche des écoles et des commerces. Il y a cinq établissements scolaires à moins de 10 minutes en voiture. On trouve des tennis, trois bibliothèques, des commerces, des boulangeries, un supermarché, deux poissonneries et trois bureaux de poste à quelques minutes de la propriété.Il est à vendre pour la somme de 102 000 €. N’hésitez pas à prendre contact avec Alan RUBAL (tél : (Numéro supprimé)) pour toute question sur ce terrain, sur les modalités de vente ou sur les démarches à suivre.Annonce proposée par un Agent Commercial Partenaire.
Vaudoy-en-Brie
TERRAIN ET MAISONMaison F8 (140 m²) à vendre à Vaudoy-en-BrieEMPLACEMENT PRIVILÉGIÉ – MAISON 8 PIÈCES NEUVEÀ quelques kilomètres de Bussy-Saint-Georges, nous sommes ravis de vous proposer cette maison de 8 pièces de 140 m² et de 459 m² de terrain à vendre bénéficiant d’un emplacement privilégié dans Vaudoy-en-Brie (77141).Cette maison possède 2 niveaux. Son intérieur offre cinq chambres, une cuisine et deux salles de bains. Cette maison est neuve.Cette maison est située dans un quartier prisé. Cinq établissements scolaires se trouvent à moins de 10 minutes en voiture. Il y a des tennis, trois bibliothèques, des commerces, des boulangeries, un supermarché, une boucherie-charcuterie et deux poissonneries dans les environs.Elle est proposée à l’achat pour 354 000 €.Prenez contact avec notre agence (RUBAL Alan : (Numéro supprimé)) pour obtenir de plus amples informations sur la maison ou sur les modalités de vente. Maisons France Confort Magny-le-Hongre vous accompagne à toutes les étapes de l’achat et dans tous vos projets immobiliers.Annonce proposée par un Agent Commercial Partenaire.
Vaudoy-en-Brie
TERRAIN ET MAISONMaison T7 (120 m²) en vente à Vaudoy-en-BrieEMPLACEMENT PRIVILÉGIÉ – MAISON 7 PIÈCES NEUVEÀ 29 km de Bussy-Saint-Georges, nous sommes heureux de vous proposer cette maison de 7 pièces de 120 m² en vente bénéficiant d’un emplacement d’exception dans Vaudoy-en-Brie (77141). Elle compte quatre chambres, une cuisine et deux salles de bains.Le terrain du bien s’étend sur 459 m².C’est une maison de 2 niveaux. Elle est neuve.Cette maison se trouve dans un quartier prisé. Cinq établissements scolaires sont implantés à moins de 10 minutes en voiture. Il y a des tennis, trois bibliothèques, des commerces, des boulangeries, un supermarché, une boucherie-charcuterie et trois bureaux de poste dans les environs.Elle est à vendre pour la somme de 318 000 €.Contactez Alan RUBAL (tél : (Numéro supprimé)) pour obtenir de plus amples informations sur la maison. Donnez vie à vos projets immobiliers avec Maisons France Confort Magny-le-Hongre.Annonce proposée par un Agent Commercial Partenaire.
Vaudoy-en-Brie
TERRAIN ET MAISONVaudoy-en-Brie : maison T5 (105 m²) en venteEMPLACEMENT PRIVILÉGIÉ – MAISON 5 PIÈCES NEUVEEn vente : à quelques kilomètres de Bussy-Saint-Georges, bénéficiant d’un emplacement d’exception dans Vaudoy-en-Brie (77141), nous sommes ravis de vous présenter cette maison de 5 pièces de plain-pied de 105 m².Son intérieur est composé de quatre chambres, d’une cuisine et de deux salles de bains. La maison est neuve.Le terrain du bien s’étend sur 459 m².La maison se trouve dans un quartier recherché. Cinq établissements scolaires sont implantés à moins de 10 minutes en voiture. Il y a des tennis, trois bibliothèques, des commerces, des boulangeries, un supermarché, une boucherie-charcuterie et deux poissonneries dans les environs.Elle est proposée à l’achat pour 291 000 €.N’hésitez pas à prendre contact avec notre agence (RUBAL Alan : (Numéro supprimé)) pour plus d’informations sur la propriété.Annonce proposée par un Agent Commercial Partenaire.
L’actualité immobilière à Amillis
27/11/2023
02/11/2023
30/10/2023
20/10/2023
16/10/2023
16/10/2023