Maison à construire à Amillis (77120)
Images
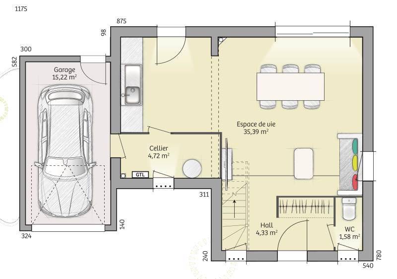
Description
VENTE : maison de 5 pièces (90 m²) à Amillis
MAISON 5 PIÈCES NEUVE - PROCHE DE MEAUX
À quelques minutes de la gare de Coulommiers (Paris à 1 h avec le Transilien P), ayez le coup de coeur pour cette maison de 5 pièces de 90 m² en vente à Amillis (77120).
Cette maison compte 2 niveaux. Son intérieur dispose de trois chambres, d'une cuisine et d'une salle de bains. Cette maison est neuve.
Le terrain du bien s'étend sur 300 m².
Il y a une école primaire dans le quartier. Niveau transports en commun, on trouve la gare Coulommiers à moins de 10 minutes en voiture.
Elle est proposée à l'achat pour 360 000 €.
Contactez Teddy MELES (tél : (Numéro supprimé)) pour plus d'informations sur la maison ou sur les modalités de vente. Concrétisez vos projets immobiliers avec Maisons France Confort Magny-le-Hongre.
Annonce proposée par un Agent Commercial Partenaire.
Logement susceptibles de vous intéresser
Nous vous proposons de découvrir aussi cette sélection de logements situés à moins de 10km de Amillis et qui seraient susceptibles de vous intéresser.
Amillis
TERRAIN ET MAISONVENTE : maison de 5 pièces (90 m²) à AmillisMAISON 5 PIÈCES NEUVE – PROCHE DE MEAUXÀ quelques minutes de la gare de Coulommiers (Paris à 1 h avec le Transilien P), ayez le coup de coeur pour cette maison de 5 pièces de 90 m² en vente à Amillis (77120).Cette maison compte 2 niveaux. Son intérieur dispose de trois chambres, d’une cuisine et d’une salle de bains. Cette maison est neuve.Le terrain du bien s’étend sur 300 m².Il y a une école primaire dans le quartier. Niveau transports en commun, on trouve la gare Coulommiers à moins de 10 minutes en voiture.Elle est proposée à l’achat pour 360 000 €.Contactez Teddy MELES (tél : (Numéro supprimé)) pour plus d’informations sur la maison ou sur les modalités de vente. Concrétisez vos projets immobiliers avec Maisons France Confort Magny-le-Hongre.Annonce proposée par un Agent Commercial Partenaire.
Amillis
TERRAIN ET MAISONAmillis : maison de 5 pièces (90 m²) à vendrePROCHE DE MEAUX – MAISON 5 PIÈCES NEUVEEn vente : à proximité de la gare de Coulommiers (Paris à 1 h par le Transilien P), à Amillis (77120), nous sommes ravis de vous proposer cette maison de 5 pièces de 90 m² et de 300 m² de terrain.Il s’agit d’une maison de 2 niveaux. Son intérieur est composé de trois chambres, d’une cuisine et d’une salle de bains. La maison est neuve.Une école primaire est implantée dans le quartier. Côté transports, il y a la gare Coulommiers à moins de 10 minutes en voiture.Elle est à vendre pour la somme de 330 000 €.N’hésitez pas à prendre contact avec notre agence (Teddy MELES : (Numéro supprimé)) pour plus de renseignements sur cette maison. Maisons France Confort Magny-le-Hongre vous accompagne à toutes les étapes de l’achat et dans toutes vos démarches.Annonce proposée par un Agent Commercial Partenaire.
Amillis
TERRAIN ET MAISONAmillis : maison F5 (90 m²) en ventePROCHE DE MEAUX – MAISON 5 PIÈCES NEUVEÀ proximité du Transilien P (gare de Coulommiers, 1 h de Paris), nous sommes heureux de vous proposer cette maison de 5 pièces de plain-pied de 90 m² et de 300 m² de terrain en vente à Amillis (77120).Conçue de plain-pied, elle est composée de trois chambres, d’une cuisine et d’une salle de bains. La maison est neuve.On trouve une école primaire dans le quartier. Côté transports, il y a la gare Coulommiers à moins de 10 minutes en voiture.Son prix de vente est de 360 000 €.Prenez contact avec Teddy MELES ((Numéro supprimé)) pour toute question sur la maison, sur les modalités de vente ou sur les démarches à suivre. Maisons France Confort Magny-le-Hongre vous accompagne dans tous vos projets immobiliers et à toutes les étapes de votre projet.Annonce proposée par un Agent Commercial Partenaire.
Amillis
TERRAIN ET MAISONVENTE : maison T6 (114 m²) à AmillisMAISON 6 PIÈCES NEUVE – PROCHE DE MEAUXÀ deux pas de la gare de Coulommiers (Paris à 1 h avec le Transilien P), nous sommes heureux de vous présenter cette maison de 6 pièces de 114 m² en vente à Amillis (77120).Cette maison compte 2 niveaux. Son intérieur est composé de cinq chambres, d’une cuisine et de deux salles de bains. Cette maison est neuve.Le terrain du bien est de 300 m².Il y a une école primaire dans le quartier. Niveau transports, on trouve la gare Coulommiers à moins de 10 minutes en voiture.Elle est proposée à l’achat pour 450 000 €.N’hésitez pas à prendre contact avec Teddy MELES (tél : (Numéro supprimé)) pour toute information sur le bien.Annonce proposée par un Agent Commercial Partenaire.
Amillis
TERRAIN ET MAISONVENTE : maison T4 (94 m²) à AmillisPROCHE DE MEAUX – MAISON 4 PIÈCES NEUVEÀ vendre : proche de la gare de Coulommiers (Paris à 1 h par le Transilien P), nous vous proposons cette maison de 4 pièces de plain-pied de 94 m² et de 300 m² de terrain à Amillis (77120).Elle propose trois chambres, une cuisine et deux salles de bains. Cette maison est neuve.Il y a une école primaire dans le quartier. Côté transports, on trouve la gare Coulommiers à moins de 10 minutes en voiture.Elle est à vendre pour la somme de 460 000 €.Prenez contact avec notre agence (MELES Teddy : (Numéro supprimé)) pour toute question sur le bien ou sur les démarches à suivre. Faites de vos projets immobiliers une réalité avec Maisons France Confort Magny-le-Hongre.Annonce proposée par un Agent Commercial Partenaire.
Amillis
TERRAIN ET MAISONVENTE : maison de 7 pièces (104 m²) à AmillisPROCHE DE MEAUX – MAISON 7 PIÈCES NEUVEÀ quelques minutes du Transilien P (gare de Coulommiers, 1 h de Paris), venez découvrir cette maison de 7 pièces de 104 m² en vente à Amillis (77120).Cette maison compte 2 niveaux. Son intérieur offre six chambres, une cuisine et deux salles de bains. Cette maison est neuve.Le terrain de la propriété est de 300 m².Il y a une école primaire dans le quartier. Niveau transports en commun, on trouve la gare Coulommiers à moins de 10 minutes en voiture.Son prix de vente est de 460 000 €.Contactez Teddy MELES ((Numéro supprimé)) pour tout renseignement sur la maison ou sur les démarches à suivre.Annonce proposée par un Agent Commercial Partenaire.
Amillis
TERRAIN ET MAISONMaison T6 (100 m²) à vendre à AmillisMAISON 6 PIÈCES NEUVE – PROCHE DE MEAUXÀ vendre : à quelques minutes de la gare de Coulommiers (Paris à 1 h par le Transilien P), Maisons France Confort Magny-le-Hongre vous propose cette maison de 6 pièces de 100 m² et de 300 m² de terrain à Amillis (77120). Elle compte quatre chambres, une cuisine et une salle de bains.Cette maison possède 2 niveaux. Elle est neuve.On trouve une école primaire dans le quartier. Niveau transports en commun, il y a la gare Coulommiers à moins de 10 minutes en voiture.Son prix de vente est de 460 000 €.Contactez Teddy MELES (tél : (Numéro supprimé)) pour plus d’informations sur la maison, sur les modalités de vente ou sur les démarches à suivre. Maisons France Confort Magny-le-Hongre vous accompagne à toutes les étapes de votre projet et dans tous vos projets immobiliers.Annonce proposée par un Agent Commercial Partenaire.
Amillis
TERRAIN ET MAISONMaison F6 (115 m²) en vente à AmillisPROCHE DE MEAUX – MAISON 6 PIÈCES NEUVEEn vente : à quelques minutes du Transilien P (gare de Coulommiers, 1 h de Paris), votre agence Maisons France Confort Magny-le-Hongre est heureuse de vous présenter à Amillis (77120), cette maison de 6 pièces de plain-pied de 115 m² et de 300 m² de terrain.Conçue de plain-pied, elle se divise en trois chambres, une cuisine et trois salles de bains. Cette maison est neuve.Une école primaire est implantée dans le quartier. Niveau transports, il y a la gare Coulommiers à moins de 10 minutes en voiture.Elle est à vendre pour la somme de 590 000 €.Contactez notre constructeur (Teddy MELES : (Numéro supprimé)) pour toute question sur la propriété ou sur les démarches à suivre. Donnez vie à vos projets immobiliers avec Maisons France Confort Magny-le-Hongre.Annonce proposée par un Agent Commercial Partenaire.
Amillis
TERRAIN ET MAISONAmillis : maison F5 (100 m²) en venteMAISON 5 PIÈCES NEUVE – PROCHE DE MEAUXEn vente : à deux pas de la gare de Coulommiers (Paris à 1 h par le Transilien P), nous sommes heureux de vous proposer cette maison de 5 pièces de 100 m² à Amillis (77120).Il s’agit d’une maison de 2 niveaux. Son intérieur compte trois chambres, une cuisine et une salle de bains. Cette maison est neuve.Le terrain du bien est de 300 m².Une école primaire est implantée dans le quartier. Côté transports en commun, il y a la gare Coulommiers à moins de 10 minutes en voiture.Elle est proposée à l’achat pour 360 000 €.Contactez Teddy MELES ((Numéro supprimé)) pour plus de renseignements sur la maison ou sur les démarches à suivre. Faites de vos projets immobiliers une réalité avec Maisons France Confort Magny-le-Hongre.Annonce proposée par un Agent Commercial Partenaire.
L’actualité immobilière à Amillis
27/11/2023
02/11/2023
30/10/2023
20/10/2023
16/10/2023
16/10/2023