Maison à construire à Aufferville (77570)
Images
Description
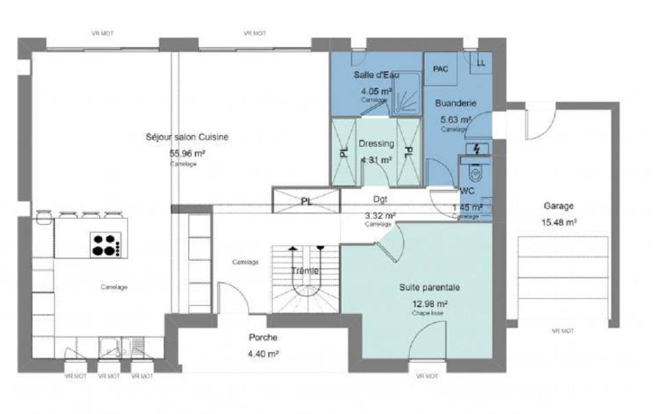
Votre Maison Design de 6 pièces à Aufferville (77570) constructible à partir de 352 000 €
150 m² habitables sur un terrain de 764 m² offrant 18 mètres de façade.
Maisons Balency, du Groupe Hexaôm, 1er constructeur de maisons individuelles en France, vous propose de bâtir votre future maison contemporaine de 150 m² sur un beau terrain idéalement situé à Aufferville, charmante commune du sud de la Seine-et-Marne.
Concevez une habitation à votre image : nous réalisons aussi bien du sur-mesure que des adaptations de nos modèles issus de nos catalogues, afin de répondre à toutes vos envies. Chaque projet est construit dans le respect de la réglementation environnementale RE2020, garantissant un DPE A ou B, gage de confort et de performance énergétique.
La commune bénéficie d'un cadre paisible et verdoyant, à proximité immédiate des écoles, d'une boulangerie artisanale, d'une épicerie locale et d'un terrain de sport, accessibles en quelques minutes. La gare de Nemours - Saint-Pierre, située à une quinzaine de minutes, permet de rejoindre Paris Gare de Lyon en environ une heure via la ligne R. Les villes de Nemours et Fontainebleau sont accessibles en moins de 25 minutes, offrant un large choix de commerces, de services et d'activités culturelles.
Confiez votre projet à Maisons Balency - Agence d'Ormoy, 23 chemin de Tournenfils, 91540 Ormoy, (Numéro supprimé) : une équipe experte à vos côtés pour donner vie à votre maison contemporaine dans un environnement privilégié.
Annonce proposée par un Agent Commercial Partenaire.
Logement susceptibles de vous intéresser
Nous vous proposons de découvrir aussi cette sélection de logements situés à moins de 10km de Aufferville et qui seraient susceptibles de vous intéresser.
Château-Landon
TERRAINMohammed – Agence Pavillons d'Île-de-FranceVotre expert en maisons sur-mesure depuis plus de 50 ans à Mareuil-lès-MeauxTransformez votre rêve en réalité !Situé dans un écrin de verdure, ce terrain de 400 m² vous offre l'opportunité rare de construire la maison de vos rêves dans un cadre calme et agréable. À deux pas des commerces, écoles et transports, vous bénéficierez de la tranquillité de la campagne sans renoncer à la proximité de la vie urbaine.Imaginez votre futur chez-vous, parfaitement adapté à vos envies et à vos besoins. Ce terrain est prêt à accueillir votre projet et à vous offrir un cadre de vie exceptionnel.Prix : 35 000 €Ne laissez pas passer cette chance unique ! Contactez-nous dès maintenant au (Numéro supprimé) pour planifier une étude de faisabilité.Prix : 35000 €.Sur ce terrain, réalisez votre projet de construction de maison RE 2020 avec PAVILLONS D'ÎLE-DE-FRANCE (constructeur de maisons de gamme et sur-mesure depuis plus de 50 ans) :- Plan sur-mesure et personnalisé de 2 à 5 chambres- Mode de chauffage au choix- Grands choix d'équipements et de prestations- Matériaux de qualité selon les normes en vigueur- Accompagnement dans le choix et l’acquisition du terrainDemandez une étude gratuite et personnalisée de votre projet de construction sur ce terrain !Contactez Mohammed HAMDAOUI au (Numéro supprimé) ou au (Numéro supprimé) (Pavillons d'Île-de-France – Agence de Meaux).Prix hors frais de notaire. Terrain sélectionné et vu pour vous sous réserve de disponibilité et au prix indiqué par notre partenaire foncier. Visuels non contractuels.Cette annonce a été créée et diffusée avec le logiciel VITAHOME.
Château-Landon
TERRAIN ET MAISONRéalisez votre projet de construction de maison RE 2020 avec PAVILLONS D'ÎLE-DE-FRANCE (constructeur de maisons de gamme et sur-mesure depuis plus de 50 ans) :- Plan sur-mesure et personnalisé de 2 à 5 chambres- Mode de chauffage au choix- Grands choix d'équipements et de prestations- Matériaux de qualité selon les normes en vigueur- Accompagnement dans le choix et l’acquisition du terrainInformations du terrain : Mohammed – Agence Pavillons d'Île-de-FranceVotre expert en maisons sur-mesure depuis plus de 50 ans à Mareuil-lès-MeauxTransformez votre rêve en réalité !Situé dans un écrin de verdure, ce terrain de 400 m² vous offre l'opportunité rare de construire la maison de vos rêves dans un cadre calme et agréable. À deux pas des commerces, écoles et transports, vous bénéficierez de la tranquillité de la campagne sans renoncer à la proximité de la vie urbaine.Imaginez votre futur chez-vous, parfaitement adapté à vos envies et à vos besoins. Ce terrain est prêt à accueillir votre projet et à vous offrir un cadre de vie exceptionnel.Prix : 35 000 €Ne laissez pas passer cette chance unique ! Contactez-nous dès maintenant au (Numéro supprimé) pour planifier une étude de faisabilité.Demandez une étude gratuite et personnalisée de votre projet de construction !Contactez Mohammed HAMDAOUI au (Numéro supprimé) ou au (Numéro supprimé) (Pavillons d'Île-de-France – Agence de Meaux).Prix avec assurance dommages-ouvrage comprise, hors VRD, terrain non viabilisé, assainissement non compris, frais de notaire non compris, taxes non comprises, frais divers non compris. Terrain sélectionné et vu pour vous sous réserve de disponibilité et au prix indiqué par notre partenaire foncier. Visuels non contractuels.Cette annonce a été créée et diffusée avec le logiciel VITAHOME.
Château-Landon
TERRAIN ET MAISONRéalisez votre projet de construction de maison RE 2020 avec PAVILLONS D'ÎLE-DE-FRANCE (constructeur de maisons de gamme et sur-mesure depuis plus de 50 ans) :- Plan sur-mesure et personnalisé de 2 à 5 chambres- Mode de chauffage au choix- Grands choix d'équipements et de prestations- Matériaux de qualité selon les normes en vigueur- Accompagnement dans le choix et l’acquisition du terrainInformations du terrain : Mohammed – Agence Pavillons d'Île-de-FranceVotre expert en maisons sur-mesure depuis plus de 50 ans à Mareuil-lès-MeauxTransformez votre rêve en réalité !Situé dans un écrin de verdure, ce terrain de 400 m² vous offre l'opportunité rare de construire la maison de vos rêves dans un cadre calme et agréable. À deux pas des commerces, écoles et transports, vous bénéficierez de la tranquillité de la campagne sans renoncer à la proximité de la vie urbaine.Imaginez votre futur chez-vous, parfaitement adapté à vos envies et à vos besoins. Ce terrain est prêt à accueillir votre projet et à vous offrir un cadre de vie exceptionnel.Prix : 35 000 €Ne laissez pas passer cette chance unique ! Contactez-nous dès maintenant au (Numéro supprimé) pour planifier une étude de faisabilité.Demandez une étude gratuite et personnalisée de votre projet de construction !Contactez Mohammed HAMDAOUI au (Numéro supprimé) ou au (Numéro supprimé) (Pavillons d'Île-de-France – Agence de Meaux).Prix avec assurance dommages-ouvrage comprise, hors VRD, terrain non viabilisé, assainissement non compris, frais de notaire non compris, taxes non comprises, frais divers non compris. Terrain sélectionné et vu pour vous sous réserve de disponibilité et au prix indiqué par notre partenaire foncier. Visuels non contractuels.Cette annonce a été créée et diffusée avec le logiciel VITAHOME.
Château-Landon
TERRAIN ET MAISONRéalisez votre projet de construction de maison RE 2020 avec PAVILLONS D'ÎLE-DE-FRANCE (constructeur de maisons de gamme et sur-mesure depuis plus de 50 ans) :- Plan sur-mesure et personnalisé de 2 à 5 chambres- Mode de chauffage au choix- Grands choix d'équipements et de prestations- Matériaux de qualité selon les normes en vigueur- Accompagnement dans le choix et l’acquisition du terrainInformations du terrain : Mohammed – Agence Pavillons d'Île-de-FranceVotre expert en maisons sur-mesure depuis plus de 50 ans à Mareuil-lès-MeauxTransformez votre rêve en réalité !Situé dans un écrin de verdure, ce terrain de 400 m² vous offre l'opportunité rare de construire la maison de vos rêves dans un cadre calme et agréable. À deux pas des commerces, écoles et transports, vous bénéficierez de la tranquillité de la campagne sans renoncer à la proximité de la vie urbaine.Imaginez votre futur chez-vous, parfaitement adapté à vos envies et à vos besoins. Ce terrain est prêt à accueillir votre projet et à vous offrir un cadre de vie exceptionnel.Prix : 35 000 €Ne laissez pas passer cette chance unique ! Contactez-nous dès maintenant au (Numéro supprimé) pour planifier une étude de faisabilité.Demandez une étude gratuite et personnalisée de votre projet de construction !Contactez Mohammed HAMDAOUI au (Numéro supprimé) ou au (Numéro supprimé) (Pavillons d'Île-de-France – Agence de Meaux).Prix avec assurance dommages-ouvrage comprise, hors VRD, terrain non viabilisé, assainissement non compris, frais de notaire non compris, taxes non comprises, frais divers non compris. Terrain sélectionné et vu pour vous sous réserve de disponibilité et au prix indiqué par notre partenaire foncier. Visuels non contractuels.Cette annonce a été créée et diffusée avec le logiciel VITAHOME.
Château-Landon
TERRAIN ET MAISONMohammed – Agence Pavillons d'Île-de-FranceVotre expert en maisons sur-mesure depuis plus de 50 ans à Mareuil-lès-MeauxTransformez votre rêve en réalité !Projet de Construction : Maison Neuve Sur-Mesure à ConstruireDécouvrez ce projet de construction unique, une maison sur mesure pensée pour répondre à toutes vos attentes. Profitez d’un design moderne, d'une conception personnalisée et de matériaux haut de gamme.Caractéristiques principales :•Surface : 100 m² habitables•Chambres : 5 chambres, dont une suite parentale avec salle de bains privative•Cuisine : Ouverte et équipée, idéale pour les amateurs de gastronomie•Séjour : Grand espace lumineux avec baie vitrée donnant sur le jardin•Terrains : Terrain de 400 m² avec jardin paysager et possibilité d'ajouter une piscine et une terrasseEmplacement :Dans un quartier calme et recherché, à proximité des commodités et transports, ce projet offre un cadre de vie idéal alliant tranquillité et praticité.Le projet vous ressemble : chaque détail est personnalisable selon vos envies.Ne laissez pas passer cette chance unique ! Contactez-nous dès maintenant au (Numéro supprimé) pour planifier une étude de faisabilité.Contactez Mohammed HAMDAOUI au (Numéro supprimé) ou au (Numéro supprimé) (Pavillons d'Île-de-France – Agence de Meaux).Prix avec assurance dommages-ouvrage comprise, hors VRD, terrain non viabilisé, assainissement non compris, frais de notaire non compris, taxes non comprises, frais divers non compris. Terrain sélectionné et vu pour vous sous réserve de disponibilité et au prix indiqué par notre partenaire foncier. Visuels non contractuels.Cette annonce a été créée et diffusée avec le logiciel VITAHOME.
Château-Landon
TERRAINTerrain de 395 m² en vente à Château-LandonTerrain de 395 m² à quelques minutes du Transilien R (gare de Souppes-Château-Landon, 1 h de Paris). Ce terrain se situe dans Château-Landon (77570). Il y a trois établissements scolaires à moins de 10 minutes à pied et, comme le Collège Pierre Roux ou l’École Maternelle André Robin. Niveau transports en commun, on trouve quatre gares à moins de 10 minutes en voiture. Il y a un tennis, trois commerces, deux boulangeries, un supermarché, un bureau de poste et une boucherie-charcuterie à proximité.Son prix de vente est de 37 000 €. Prenez contact avec notre agence (DELOHEN Anne : (Numéro supprimé)) pour plus d’informations sur ce terrain, sur les modalités de vente et sur les démarches à suivre.Annonce proposée par un Agent Commercial Partenaire.
Château-Landon
TERRAIN ET MAISONVENTE d’une maison de 5 pièces (90 m²) à Château-LandonMAISON 5 PIÈCES NEUVEÀ quelques minutes de la gare de Souppes-Château-Landon (Paris à 1 h par le Transilien R), nous vous présentons cette maison de 5 pièces de plain-pied de 90 m² en vente à Château-Landon (77570). Son intérieur est composé de trois chambres, d’une cuisine et d’une salle de bains.Le terrain de la maison s’étend sur 395 m².Cette maison est neuve.Il y a trois établissements scolaires à moins de 10 minutes à pied et dont le Collège Pierre Roux et l’École Maternelle André Robin. Côté transports, on trouve quatre gares à moins de 10 minutes en voiture. Il y a un tennis, trois commerces, deux boulangeries, un supermarché, une épicerie et une boucherie-charcuterie à quelques minutes à peine.Elle est à vendre pour la somme de 215 400 €.Prenez contact avec Anne DELOHEN ((Numéro supprimé)) pour plus d’informations sur cette propriété, sur les démarches à suivre ou sur les modalités de vente. Maisons France Confort Nemours vous accompagne à toutes les étapes de l’achat et dans tous vos projets immobiliers.Annonce proposée par un Agent Commercial Partenaire.
Château-Landon
TERRAINBeau terrain a voir écoles et commerces sur place . // Réf. : T209975. Prix terrain : 35 000 €, hors frais d'agence et de notaire à la charge de l'acquéreur. Ce terrain vous est proposé, par nos partenaires fonciers, dans le cadre d'un projet de construction avec nous. Les informations sur les risques auxquels ce bien est exposé sont disponibles sur le site Géorisques (www.georisques.gouv.fr).
Château-Landon
TERRAIN ET MAISONBeau terrain a voir écoles et commerces sur place . Un espace de vie idéal pour toute la famille ! Cette maison moderne et fonctionnelle a été conçue pour s’adapter à votre quotidien tout en offrant confort et convivialité. Dès l’entrée, une grande pièce de vie ouverte vous invite à la détente avec son séjour lumineux et sa cuisine spacieuse, parfaite pour partager des moments en famille ou entre amis. Un cellier attenant vient compléter cet espace en apportant une solution de rangement astucieuse. Au rez-de-chaussée, une suite parentale intime et confortable vous offre un espace privé avec sa propre salle d’eau, garantissant tranquillité et bien-être. À l’étage, trois belles chambres lumineuses permettent à chacun de disposer de son propre cocon. Une grande salle de bain familiale et un palier bien agencé viennent compléter cet étage, offrant un confort optimal pour toute la famille. Avec son architecture contemporaine, ses espaces bien répartis et ses finitions soignées, cette maison est le cadre parfait pour construire votre avenir. Pour vous assurer un confort de vie optimal et en conformité avec la RE2025, nous avons opté pour un système de chauffage par pompe à chaleur (PAC) avec plancher chauffant au rez-de-chaussée et radiateurs à l’étage. Le logement est également équipé de volets roulants électriques. Prix hors fourniture et pose : des appareils sanitaires (sauf système de chauffage et d'eau chaude sanitaire), du carrelage et de la faïence, des revêtements de sol dans les chambres. Hors décoration et aménagement intérieur et peinture. Hors raccordements, frais de notaire et dommage ouvrage. // Réf. : 2468-209975-CHL. Prix terrain : 35 000 €, hors frais d'agence à la charge de l'acquéreur. Ce terrain vous est proposé, par nos partenaires fonciers, dans le cadre d'un projet de construction avec nous. Les informations sur les risques auxquels ce bien est exposé sont disponibles sur le site Géorisques (www.georisques.gouv.fr). Prix maison : 168 035 €.
L’actualité immobilière à Aufferville
27/11/2023
02/11/2023
30/10/2023
20/10/2023
16/10/2023
16/10/2023