Maison à construire à Bazoches-lès-Bray (77118)
Images
Description
Maison de 7 pièces (150 m²) à vendre à Bazoches-lès-Bray
MAISON 7 PIÈCES NEUVE
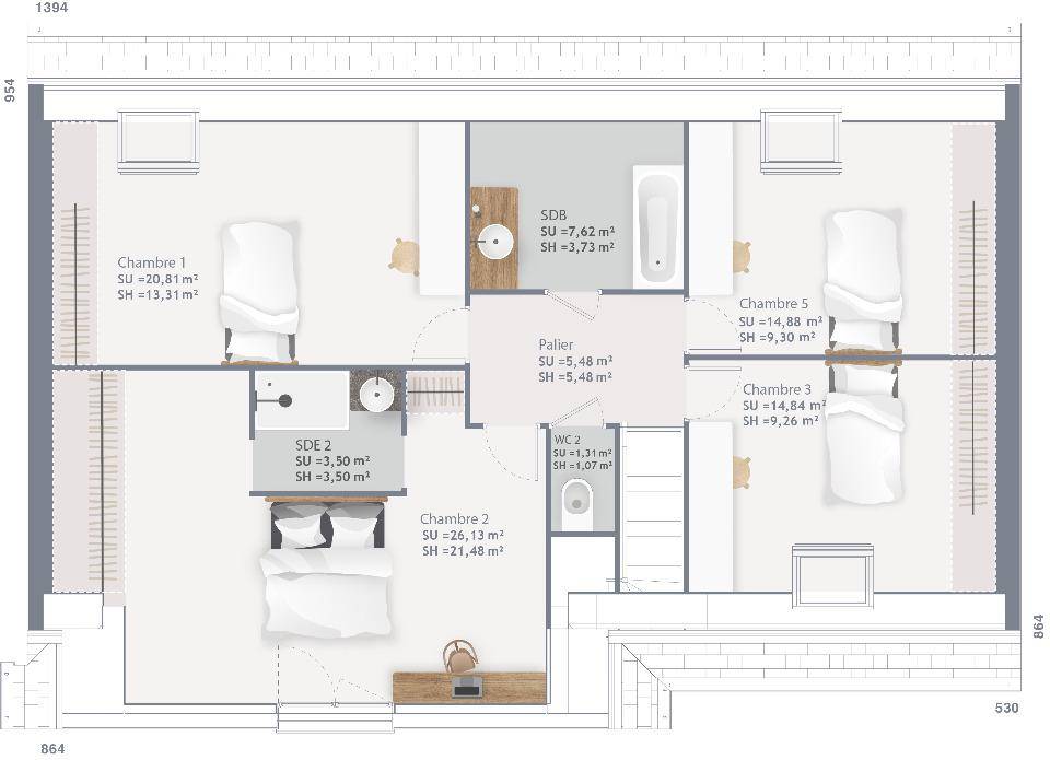
À 24 km de Sens, Maisons France Confort Nemours vous présente à vendre à Bazoches-lès-Bray (77118), cette maison de 7 pièces de 150 m².
Il s'agit d'une maison de 2 niveaux. Elle comporte cinq chambres, une cuisine et deux salles de bains. La maison est neuve.
Le terrain de la propriété est de 675 m².
Il y a une école primaire dans le quartier et une crèche. Côté transports en commun, on trouve la gare Champigny sur Yonne à moins de 10 minutes en voiture. Il y a un tennis et une boulangerie dans les environs.
Son prix de vente est de 343 278 €.
Prenez contact avec notre agence (Anne DELOHEN : (Numéro supprimé)) pour obtenir de plus amples renseignements sur cette maison ou sur les démarches à suivre. Maisons France Confort Nemours est là pour vous accompagner à toutes les étapes de l'achat.
Annonce proposée par un Agent Commercial Partenaire.
Logement susceptibles de vous intéresser
Nous vous proposons de découvrir aussi cette sélection de logements situés à moins de 10km de Bazoches-lès-Bray et qui seraient susceptibles de vous intéresser.
Bray-sur-Seine
TERRAIN ET MAISONBray-sur-Seine : maison T4 (94 m²) à vendreMAISON 4 PIÈCES NEUVE À quelques kilomètres de Sens, nous sommes heureux de vous proposer cette maison de 4 pièces de plain-pied de 94 m² à Bray-sur-Seine (77480). Conçue de plain-pied, elle se divise en trois chambres, une cuisine et deux salles de bains.Le terrain de la maison est de 480 m².Cette maison est neuve.Le Collège Jean Rostand et l’École Primaire Jehan de Brie sont implantés à moins de 10 minutes à pied. On trouve une bibliothèque, un bassin de natation, un tennis, trois boulangeries, des commerces, quatre supermarchés, une épicerie et deux boucheries-charcuteries à quelques minutes à peine. Le marché Place de la Halle a lieu chaque vendredi matin.Il est proposé à l’achat pour 288 300 €.Contactez notre agence (DELOHEN Anne : (Numéro supprimé)) pour tout renseignement sur la maison ou sur les démarches à suivre. Maisons France Confort Nemours vous accompagne dans tous vos projets immobiliers et à toutes les étapes de l’achat.Annonce proposée par un Agent Commercial Partenaire.
Bazoches-lès-Bray
TERRAIN ET MAISONVENTE d’une maison de 5 pièces (101 m²) à Bazoches-lès-BrayMAISON 5 PIÈCES NEUVEÀ quelques kilomètres de Sens, à vendre à Bazoches-lès-Bray (77118), nous vous présentons cette maison de 5 pièces de plain-pied de 101 m².Son intérieur est composé de quatre chambres, d’une cuisine et d’une salle de bains. Cette maison est neuve.Le terrain du bien s’étend sur 520 m².Une école primaire est implantée dans le quartier et une crèche. Niveau transports, il y a la gare Champigny sur Yonne à moins de 10 minutes en voiture. On trouve un tennis et une boulangerie dans les environs.Elle est proposée à l’achat pour 235 181 €.Contactez notre agence (DELOHEN Anne : (Numéro supprimé)) pour toute information sur la maison, sur les démarches à suivre ou sur les modalités de vente. Maisons France Confort Nemours est là pour vous accompagner dans tous vos projets immobiliers.Annonce proposée par un Agent Commercial Partenaire.
Bazoches-lès-Bray
TERRAIN ET MAISONMaison F4 (85 m²) à vendre à Bazoches-lès-BrayMAISON 4 PIÈCES NEUVEEn vente à deux pas de Sens, Maisons France Confort Nemours vous propose cette maison de 4 pièces de plain-pied de 85 m² à Bazoches-lès-Bray (77118). Son intérieur dispose de trois chambres, d’une cuisine et d’une salle de bains.Le terrain de la propriété est de 675 m².Cette maison est neuve.Il y a une école primaire dans le quartier et une crèche. Niveau transports, on trouve la gare Champigny sur Yonne à moins de 10 minutes en voiture. Il y a un tennis et une boulangerie à quelques minutes de la maison.Elle est proposée à l’achat pour 211 810 €.Prenez contact avec notre agence (DELOHEN Anne : (Numéro supprimé)) pour toute information sur cette maison. Maisons France Confort Nemours vous accompagne dans tous vos projets immobiliers et à toutes les étapes de votre projet.Annonce proposée par un Agent Commercial Partenaire.
Everly
TERRAIN ET MAISONVENTE d’une maison de 6 pièces (95 m²) à EverlyMAISON 6 PIÈCES NEUVEEn vente : au pied de la gare de Longueville (Paris à 1 h par le Transilien P), à Everly (77157), ayez le coup de coeur pour cette maison de 6 pièces de plain-pied de 95 m². Elle offre trois chambres, une cuisine et deux salles de bains.Le terrain du bien est de 800 m².La maison est neuve.Il y a une école élémentaire dans le quartier. Niveau transports, on trouve les gares Longueville, Sainte-Colombe Septveilles et Champbenoist-Poigny à moins de 10 minutes en voiture. Il y a un tennis et une boulangerie à quelques minutes.Elle est proposée à l’achat pour 322 574 €.Prenez contact avec Anne DELOHEN ((Numéro supprimé)) pour toute information sur la propriété ou sur les modalités de vente. Concrétisez vos projets immobiliers avec Maisons France Confort Nemours.Annonce proposée par un Agent Commercial Partenaire.
Everly
TERRAIN ET MAISONMaison F5 (75 m²) en vente à EverlyMAISON 5 PIÈCES NEUVEÀ deux pas de la gare de Longueville (Paris à 1 h par le Transilien P), nous vous proposons à vendre à Everly (77157), cette maison de 5 pièces de plain-pied de 75 m² et de 800 m² de terrain. Elle comporte trois chambres, une cuisine et une salle de bains.Cette maison est neuve.Une école élémentaire est implantée dans le quartier. Niveau transports en commun, il y a trois gares (Longueville, Sainte-Colombe Septveilles et Champbenoist-Poigny) à moins de 10 minutes en voiture. On trouve un tennis et une boulangerie à proximité.Elle est proposée à l’achat pour 227 243 €.Contactez notre agence (Anne DELOHEN : (Numéro supprimé)) pour tout renseignement sur la maison.Annonce proposée par un Agent Commercial Partenaire.
Everly
TERRAIN ET MAISONMaison F5 (120 m²) en vente à EverlyMAISON 5 PIÈCES NEUVEEn vente : à côté du Transilien P (gare de Longueville, 1 h de Paris), nous sommes ravis de vous présenter à Everly (77157), cette maison de 5 pièces de plain-pied de 120 m².Son intérieur inclut quatre chambres, une cuisine et deux salles de bains. Cette maison est neuve.Le terrain du bien s’étend sur 815 m².Il y a une école élémentaire dans le quartier. Niveau transports, on trouve les gares Longueville, Sainte-Colombe Septveilles et Champbenoist-Poigny à moins de 10 minutes en voiture. On trouve un tennis et une boulangerie dans les environs.Son prix de vente est de 294 331 €.Contactez notre agence (DELOHEN Anne : (Numéro supprimé)) pour toute information sur la propriété. Maisons France Confort Nemours est là pour vous accompagner dans toutes vos démarches.Annonce proposée par un Agent Commercial Partenaire.
Mouy-sur-Seine
TERRAIN ET MAISONVENTE d’une maison de 4 pièces (60 m²) à Mouy-sur-SeineMAISON 4 PIÈCES NEUVE En vente : à quelques kilomètres de Sens, nous sommes heureux de vous proposer cette maison de 4 pièces de plain-pied de 60 m² à Mouy-sur-Seine (77480).Son intérieur dispose de deux chambres, d’une cuisine et d’une salle de bains. Cette maison est neuve.Le terrain de la propriété s’étend sur 1 228 m².Deux établissements scolaires sont implantés à moins de 10 minutes à pied, tout comme dont le Collège Jean Rostand. Il y a une bibliothèque, un bassin de natation, un tennis, des commerces, trois boulangeries, deux supermarchés, une boucherie-charcuterie et un bureau de poste à quelques minutes du bien. Enfin, le marché Place de la Halle anime les environs tous les vendredis matin.Elle est proposée à l’achat pour 171 884 €.Contactez Anne DELOHEN (tél : (Numéro supprimé)) pour tout renseignement sur la maison. Concrétisez vos projets immobiliers avec Maisons France Confort Nemours.Annonce proposée par un Agent Commercial Partenaire.
Mouy-sur-Seine
TERRAIN ET MAISONMouy-sur-Seine : maison F8 (140 m²) en venteMAISON 8 PIÈCES NEUVE À vendre : à deux pas de Sens, Maisons France Confort Nemours vous propose cette maison de 8 pièces de 140 m² à Mouy-sur-Seine (77480). Son intérieur est composé de cinq chambres, d’une cuisine et de deux salles de bains.Le terrain de la propriété s’étend sur 1 125 m².C’est une maison de 2 niveaux. Elle est neuve.Il y a deux établissements scolaires à moins de 10 minutes à pied et dont le Collège Jean Rostand. On trouve une bibliothèque, un bassin de natation, un tennis, des commerces, trois boulangeries, deux supermarchés, un bureau de poste et une épicerie dans les environs. Enfin, le marché Place de la Halle anime les environs chaque vendredi matin.Elle est proposée à l’achat pour 309 821 €.N’hésitez pas à prendre contact avec Anne DELOHEN ((Numéro supprimé)) pour obtenir de plus amples renseignements sur la maison. Maisons France Confort Nemours est là pour vous accompagner dans tous vos projets immobiliers.Annonce proposée par un Agent Commercial Partenaire.
Bray-sur-Seine
TERRAIN ET MAISONBray-sur-Seine : maison de 5 pièces (105 m²) en venteMAISON 5 PIÈCES NEUVE À vendre à 25 km de Sens, venez découvrir à Bray-sur-Seine (77480), cette maison de 5 pièces de plain-pied de 105 m². Son intérieur est composé de quatre chambres, d’une cuisine et de deux salles de bains.Le terrain de cette maison s’étend sur 480 m².La maison est neuve.Le Collège Jean Rostand et l’École Primaire Jehan de Brie sont implantés à moins de 10 minutes à pied. Il y a une bibliothèque, un bassin de natation, un tennis, trois boulangeries, des commerces, quatre supermarchés, une épicerie et deux boucheries-charcuteries dans les environs. Ne manquez pas le marché Place de la Halle tous les vendredis matin.Son prix de vente est de 272 996 €.Contactez notre agence (Anne DELOHEN : (Numéro supprimé)) pour toute information sur la maison et sur les démarches à suivre.Annonce proposée par un Agent Commercial Partenaire.
L’actualité immobilière à Bazoches-lès-Bray
27/11/2023
02/11/2023
30/10/2023
20/10/2023
16/10/2023
16/10/2023