Maison à construire à Bernay-Vilbert (77540)
Images
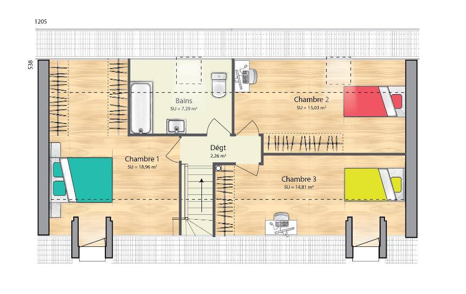
Description
🏡 À SAISIR : Maison neuve haut de gamme - Situé à Bernay-Vilbert à seulement 10 minutes de Fontenay-Trésigny.
Découvrez cette maison d'exception, pensée pour allier design moderne, confort absolu et équipements de pointe.
📍 Emplacement privilégié
🏡 Quartier résidentiel calme
🚆 Proche des écoles, commerces et transports
✨ Prestations premium pour un confort inégalé
✔ Architecture contemporaine avec grandes ouvertures
✔ Matériaux haut de gamme et finitions personnalisables
✔ Chauffage au sol et domotique avancée (gestion à distance)
✔ Pompe à chaleur performante & isolation RE 2020 (éco-énergie)
✔ Possibilité de panneaux solaires pour plus d'autonomie
🛋️ Un intérieur raffiné et spacieux
✔ Séjour lumineux avec grandes baies vitrées et cuisine ouverte
✔ Jusqu'à 4 chambres dont une suite parentale au RDC
✔ Salles de bains élégantes (douche à l'italienne, baignoire, double vasque)
🌿 Extérieur à la hauteur de vos envies
✔ Terrain de 950 m², idéal pour jardin paysager, terrasse ou piscine
🛠️ Maisons Balency - Groupe HEXAOM
✅ Constructeur reconnu avec +100 ans d'expérience
✅ Matériaux de qualité et accompagnement sur-mesure
✅ Sécurité et solidité financière garanties
💰 Prix à partir de 331000 €
📞 Contactez Alexis au (Numéro supprimé) pour plus d'infos et personnaliser votre projet !
Logement susceptibles de vous intéresser
Nous vous proposons de découvrir aussi cette sélection de logements situés à moins de 10km de Bernay-Vilbert et qui seraient susceptibles de vous intéresser.
Châtres
TERRAIN ET MAISONContactez Stéphanie SEBAG de l’agence Maisons Evolution de Mareuil-lès-Meaux au (Numéro supprimé) pour avoir plus d’informations sur ce projet.Très jolie maison à étage de 124 m² habitables avec garage accolé idéalement située sur la commune de CHATRESElle est composée de 5 chambres au total dont une grande suite parentale avec salle d’eau, de 3 salles de bains au total, de deux WC séparés et d’un grand salon-séjour lumineux avec cuisine ouverte donnant sur un cellier puis sur le garage.Les plans sont entièrement modifiables selon vos souhaits, en agence ou visioconférence. Nous vous proposons un véritable accompagnement de qualité tout au long de votre projet.Dessinons ensemble votre future maison !Tel : (Numéro supprimé)Annonce proposée par un Agent Commercial Partenaire.
Rozay-en-Brie
TERRAIN ET MAISONModèle sur mesure de 110 m2 , 4 chambres et séjour lumineux, avec des façades aux styles architecturaux variés et par leur confort inégalé, été comme hiver, grâce aux labels RE 2020. Avec une isolation et une qualité d'air intérieur optimales, vos charges de chauffage sont réduites au minimum. Choisissez celle qui vous ressemble !Informations du terrain : Terrain situé en plein cœur de Rozay en Brie avec tous commerces et écoles sur place.Accès rapide RN4Demandez une étude gratuite et personnalisée de votre projet de construction !Contactez Olivier SAMSON au (Numéro supprimé) ou au (Numéro supprimé) (Pavillons d'Île-de-France – Agence de Meaux).Prix avec assurance dommages-ouvrage comprise, hors VRD, terrain non viabilisé, assainissement non compris, frais de notaire non compris, taxes non comprises, frais divers non compris. Terrain sélectionné et vu pour vous sous réserve de disponibilité et au prix indiqué par notre partenaire foncier. Visuels non contractuels.Cette annonce a été créée et diffusée avec le logiciel VITAHOME.
Rozay-en-Brie
TERRAIN ET MAISONRéalisez votre projet de construction de maison RE 2020 avec PAVILLONS D'ÎLE-DE-FRANCE (constructeur de maisons de gamme et sur-mesure depuis plus de 50 ans) :- Plan sur-mesure et personnalisé de 2 à 5 chambres- Mode de chauffage au choix- Grands choix d'équipements et de prestations- Matériaux de qualité selon les normes en vigueur- Accompagnement dans le choix et l’acquisition du terrainDemandez une étude gratuite et personnalisée de votre projet de construction !Contactez Stéphane VERHAUVEN au (Numéro supprimé) ou au (Numéro supprimé) (Pavillons d'Île-de-France – Agence de Meaux).Prix avec assurance dommages-ouvrage comprise, hors VRD, terrain viabilisé, assainissement non compris, frais de notaire non compris, taxes non comprises, frais divers non compris. Terrain sélectionné et vu pour vous sous réserve de disponibilité et au prix indiqué par notre partenaire foncier. Visuels non contractuels.Cette annonce a été créée et diffusée avec le logiciel VITAHOME.
Châtres
TERRAIN ET MAISONVENTE : maison F4 (70 m²) à ChâtresPROCHE DE CRÉTEIL – MAISON 4 PIÈCES NEUVEÀ vendre : au pied de la station Tournan (Paris à 40 min par le RER E), nous vous présentons cette maison de 4 pièces de plain-pied de 70 m² et de 600 m² de terrain à Châtres (77610).Son intérieur dispose de deux chambres, d’une cuisine et d’une salle de bains. Cette maison est neuve.Il y a l’École Primaire Robert Fery à moins de 10 minutes à pied. Côté transports, on trouve la ligne de RER E (Tournan) ainsi que quatre gares à moins de 10 minutes en voiture.Elle est proposée à l’achat pour 360 000 €.Contactez Jerome RAOUX (tél : (Numéro supprimé)) pour toute information sur la maison ou sur les modalités de vente. Maisons France Confort Nemours vous accompagne dans toutes vos démarches et dans tous vos projets immobiliers.Annonce proposée par un Agent Commercial Partenaire.
Verneuil-l'Étang
TERRAINTerrain viabilisé et plat avec écoles et gare à pieds ( 35 minutes de Paris).Prix : 135000 €.Sur ce terrain, réalisez votre projet de construction de maison RE 2020 avec PAVILLONS D'ÎLE-DE-FRANCE (constructeur de maisons de gamme et sur-mesure depuis plus de 50 ans) :- Plan sur-mesure et personnalisé de 2 à 5 chambres- Mode de chauffage au choix- Grands choix d'équipements et de prestations- Matériaux de qualité selon les normes en vigueur- Accompagnement dans le choix et l’acquisition du terrainDemandez une étude gratuite et personnalisée de votre projet de construction sur ce terrain !Contactez Olivier SAMSON au (Numéro supprimé) ou au (Numéro supprimé) (Pavillons d'Île-de-France – Agence de Meaux).Prix hors frais de notaire. Terrain sélectionné et vu pour vous sous réserve de disponibilité et au prix indiqué par notre partenaire foncier. Visuels non contractuels.Cette annonce a été créée et diffusée avec le logiciel VITAHOME.
Rozay-en-Brie
TERRAINTerrain situé en plein cœur de Rozay en Brie avec tous commerces et écoles sur place.Accès rapide RN4Prix : 110000 €.Sur ce terrain, réalisez votre projet de construction de maison RE 2020 avec PAVILLONS D'ÎLE-DE-FRANCE (constructeur de maisons de gamme et sur-mesure depuis plus de 50 ans) :- Plan sur-mesure et personnalisé de 2 à 5 chambres- Mode de chauffage au choix- Grands choix d'équipements et de prestations- Matériaux de qualité selon les normes en vigueur- Accompagnement dans le choix et l’acquisition du terrainDemandez une étude gratuite et personnalisée de votre projet de construction sur ce terrain !Contactez Olivier SAMSON au (Numéro supprimé) ou au (Numéro supprimé) (Pavillons d'Île-de-France – Agence de Meaux).Prix hors frais de notaire. Terrain sélectionné et vu pour vous sous réserve de disponibilité et au prix indiqué par notre partenaire foncier. Visuels non contractuels.Cette annonce a été créée et diffusée avec le logiciel VITAHOME.
Rozay-en-Brie
TERRAIN ET MAISONRéalisez votre projet de construction de maison RE 2020 avec PAVILLONS D'ÎLE-DE-FRANCE (constructeur de maisons de gamme et sur-mesure depuis plus de 50 ans) :- Plan sur-mesure et personnalisé de 2 à 5 chambres- Mode de chauffage au choix- Grands choix d'équipements et de prestations- Matériaux de qualité selon les normes en vigueur- Accompagnement dans le choix et l’acquisition du terrainInformations du terrain : Situé dans un cadre paisible à Rozay-en-Brie, ce terrain de 433 m² offre une opportunité rare de construire la maison de vos rêves. Bénéficiez d'un environnement privilégié, à proximité des commerces, écoles et transports, tout en profitant du calme de la campagne. ce terrain est prêt à accueillir votre projet. Prix :109000 €. Contact: Olivier au (Numéro supprimé)Demandez une étude gratuite et personnalisée de votre projet de construction !Contactez Olivier SAMSON au (Numéro supprimé) ou au (Numéro supprimé) (Pavillons d'Île-de-France – Agence de Meaux).Prix avec assurance dommages-ouvrage comprise, hors VRD, terrain non viabilisé, assainissement non compris, frais de notaire non compris, taxes non comprises, frais divers non compris. Terrain sélectionné et vu pour vous sous réserve de disponibilité et au prix indiqué par notre partenaire foncier. Visuels non contractuels.Cette annonce a été créée et diffusée avec le logiciel VITAHOME.
Rozay-en-Brie
TERRAIN ET MAISONMaison F5 (90 m²) à vendre proche Rozay-en-Brie – MAISON 5 PIÈCES NEUVEEn vente : à côté de la gare de Marles-en-Brie (Paris à 35 min avec le Transilien P), découvrez cette maison de 5 pièces de 90 m² et de 450 m² de terrain proche Rozay-en-Brie (77540).Cette maison comporte 2 niveaux. Elle comporte trois chambres, une cuisine et une salle de bains. Cette maison est neuve.L’École Élémentaire la Fayette, le Collège des Remparts, l’École Maternelle Moquesouris et le Lycée Polyvalent la Tour des Dames sont implantés à moins de 10 minutes à pied. Niveau transports en commun, il y a deux gares (Marles-en-Brie et Mormant) à moins de 10 minutes en voiture. On trouve un tennis, deux boulangeries, trois commerces, un supermarché, un bureau de poste et deux épiceries dans les environs.Il est à vendre pour la somme de 285 000 €.Contactez notre agence (RAOUX Jerome : (Numéro supprimé)) pour toute information sur la maison.Annonce proposée par un Agent Commercial Partenaire.
Verneuil-l'Étang
TERRAINTerrain idéalement situé avec écoles, commerces et gare reliant Paris en 36 minutes.Prix : 85000 €.Sur ce terrain, réalisez votre projet de construction de maison RE 2020 avec PAVILLONS D'ÎLE-DE-FRANCE (constructeur de maisons de gamme et sur-mesure depuis plus de 50 ans) :- Plan sur-mesure et personnalisé de 2 à 5 chambres- Mode de chauffage au choix- Grands choix d'équipements et de prestations- Matériaux de qualité selon les normes en vigueur- Accompagnement dans le choix et l’acquisition du terrainDemandez une étude gratuite et personnalisée de votre projet de construction sur ce terrain !Contactez Olivier SAMSON au (Numéro supprimé) ou au (Numéro supprimé) (Pavillons d'Île-de-France – Agence de Meaux).Prix hors frais de notaire. Terrain sélectionné et vu pour vous sous réserve de disponibilité et au prix indiqué par notre partenaire foncier. Visuels non contractuels.Cette annonce a été créée et diffusée avec le logiciel VITAHOME.
L’actualité immobilière à Bernay-Vilbert
27/11/2023
02/11/2023
30/10/2023
20/10/2023
16/10/2023
16/10/2023