Maison à construire à Blandy (77115)
Images
Description
Contactez Stéphanie SEBAG de l'agence Maisons Evolution de Mareuil-lès-Meaux au (Numéro supprimé) pour avoir plus d'informations sur ce projet
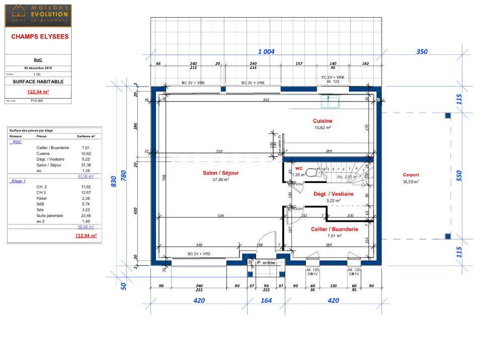
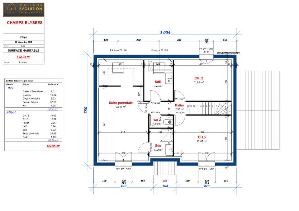
Découvrez cette très jolie maison moderne de 122 m² habitables, aux dernières normes énergétiques, idéalement située sur la commune de BLANDY 77
Elle est composée de 3 grandes chambres dont une grande suite parentale avec salle d'eau, d'une seconde salle de bains, de deux WC séparés et d'un grand salon-séjour lumineux avec cuisine ouverte donnant sur un vaste cellier/buanderie. Il est possible d'y ajouter un garage ou un carport.
Les plans sont entièrement modifiables selon vos souhaits, en agence ou visioconférence. Nous vous proposons un véritable accompagnement de qualité tout au long de votre projet.
Dessinons ensemble votre future maison !
Tel : (Numéro supprimé)
Annonce proposée par un Agent Commercial Partenaire.
Logement susceptibles de vous intéresser
Nous vous proposons de découvrir aussi cette sélection de logements situés à moins de 10km de Blandy et qui seraient susceptibles de vous intéresser.
Verneuil-l'Étang
TERRAIN ET MAISONVENTE d’une maison de 5 pièces (90 m²) à Verneuil-l’ÉtangParis à 30 min (Transilien P) – À découvrir proche de la gare de Verneuil-l’Étang (77390) : maison neuve 5 pièces en vente, 90 m² de surface et 280 m² de terrain. Son intérieur comporte trois chambres, une cuisine et une salle de bains.Proche gare (Verneuil-l’Étang), établissements scolaires, tennis, bibliothèque, boulangeries, commerces, supermarché et bureau de poste. Champigny-sur-Marne à 30 km.Cette maison de 5 pièces est à vendre pour la somme de 238 000 €.Contactez Stephanie SEBAG ((Numéro supprimé)) pour toute information sur la maison. Maisons Evolution Mareuil-lès-Meaux est là pour vous accompagner dans toutes vos démarches.Annonce proposée par un Agent Commercial Partenaire.
Guignes
TERRAIN ET MAISONContactez Stéphanie SEBAG de l’agence Maisons Evolution de Mareuil-lès-Meaux au (Numéro supprimé) pour avoir plus d’informations sur ce projet.Jolie maison à combles aménagés d’une superficie de 90 m² habitables avec garage accolé en option idéalement située sur la commune de GUIGNESElle est composée de 4 chambres dont une au rez-de-chaussée (pouvant faire office de bureau), d’une salle de bains, de deux WC, et d’un grand salon-séjour lumineux avec cuisine ouverte, cellier et garage.Les plans sont modifiables selon vos souhaits, en agence ou visioconférence. Nous vous proposons un véritable accompagnement de qualité tout au long de votre projet.Dessinons ensemble votre future maison !Tel: (Numéro supprimé)Annonce proposée par un Agent Commercial Partenaire.
Verneuil-l'Étang
TERRAIN ET MAISONVENTE d’une maison de 4 pièces (78 m²) à Verneuil-l’ÉtangParis à 30 min (Transilien P) – À découvrir dans Verneuil-l’Étang (77390), proche de la gare : maison neuve 4 pièces en vente. 2 niveaux, surface de 78 m² sur 280 m² de terrain. Son intérieur propose trois chambres, une cuisine et une salle de bains.Proche gare (Verneuil-l’Étang), établissements scolaires, tennis, bibliothèque, boulangeries, commerces, supermarché et bureau de poste. Champigny-sur-Marne à 30 km.Cette maison de 4 pièces est à vendre pour la somme de 233 500 €.Prenez contact avec Stephanie SEBAG (tél : (Numéro supprimé)) pour tout renseignement sur la maison ou sur les modalités de vente. Maisons Evolution Mareuil-lès-Meaux vous accompagne dans tous vos projets immobiliers et à toutes les étapes de l’achat.Annonce proposée par un Agent Commercial Partenaire.
Guignes
TERRAIN ET MAISONMaison T5 (145 m²) à vendre à GuignesParis à 30 min (Transilien P, Verneuil-l’Étang) – À découvrir bénéficiant d’un emplacement privilégié dans Guignes (77390) : maison neuve 5 pièces en vente, 2 niveaux, 145 m² de surface sur 748 m² de terrain. Elle inclut quatre chambres, une cuisine et deux salles de bains.Proche gares (Verneuil-l’Étang et Mormant), écoles, boulangeries, commerces, épiceries et bureau de poste. Créteil à 30 km.Cette maison de 5 pièces est proposée à l’achat pour 384 900 €.Prenez contact avec notre agence (SEBAG Stephanie : (Numéro supprimé)) pour toute information sur la maison. Maisons Evolution Mareuil-lès-Meaux est là pour vous accompagner dans toutes vos démarches.Annonce proposée par un Agent Commercial Partenaire.
Blandy
TERRAIN ET MAISONContactez Stéphanie SEBAG de l’agence Maisons Evolution de Mareuil-lès-Meaux au (Numéro supprimé) pour avoir plus d’informations sur ce projet Découvrez cette très jolie maison moderne de 122 m² habitables, aux dernières normes énergétiques, idéalement située sur la commune de BLANDY 77Elle est composée de 3 grandes chambres dont une grande suite parentale avec salle d’eau, d’une seconde salle de bains, de deux WC séparés et d’un grand salon-séjour lumineux avec cuisine ouverte donnant sur un vaste cellier/buanderie. Il est possible d’y ajouter un garage ou un carport.Les plans sont entièrement modifiables selon vos souhaits, en agence ou visioconférence. Nous vous proposons un véritable accompagnement de qualité tout au long de votre projet.Dessinons ensemble votre future maison !Tel : (Numéro supprimé)Annonce proposée par un Agent Commercial Partenaire.
Yèbles
TERRAIN ET MAISONYèbles : maison T4 (82 m²) en venteParis à 30 min (Transilien P, Verneuil-l’Étang) – Idéalement située dans Yèbles (77390), maison neuve en vente de 4 pièces, 2 niveaux, 82 m² de surface sur 661 m² de terrain. Son intérieur propose trois chambres, une cuisine et une salle de bains.Proche gares (Verneuil-l’Étang et Mormant), écoles. Créteil à 29 km.Le prix de vente de cette maison de 4 pièces est de 273 000 €.Contactez notre agence (Stephanie SEBAG : (Numéro supprimé)) pour plus de renseignements sur la maison. Maisons Evolution Mareuil-lès-Meaux est là pour vous accompagner dans toutes vos démarches.Annonce proposée par un Agent Commercial Partenaire.
Blandy
TERRAIN ET MAISONContactez Stéphanie SEBAG de l’agence Maisons Evolution de Mareuil-lès-Meaux au (Numéro supprimé) pour avoir plus d’informations sur ce projet.Découvrez cette grande et belle maison à étage de 96 m² habitables idéalement située sur la commune de Elle est composée de 4 chambres dont une suite parentale avec salle d’eau et dressing au rez-de-chaussée, d’une seconde salle de bains, de deux WC séparés, d’un cellier, et d’un grand salon-séjour lumineux avec cuisine ouverte. Vous y trouverez également une véritable entrée avec placard. De plus, cette maison dispose d’un garage intégré.Les plans sont entièrement modifiables selon vos souhaits, en agence ou visioconférence. Nous vous proposons un véritable accompagnement de qualité tout au long de votre projet.Dessinons ensemble votre future maison !Tel : (Numéro supprimé)Annonce proposée par un Agent Commercial Partenaire.
Verneuil-l'Étang
TERRAINVotre agence Maisons Evolution vous propose ce terrain de 280 m² avec une façade de 10.65ml et une profondeur de 29.22m sur la commune de RéauViabilisation sur rue EMPLACEMENT PRIVILÉGIÉ près des grands axes routiersProche gare (Verneuil-l’Étang), établissements scolaires, tennis, bibliothèque, boulangeries, commerces, supermarché et bureau de poste. Champigny-sur-Marne à 30 km.Son prix de vente est de 83000 €. Contactez notre agence (SEBAG Stephanie : (Numéro supprimé)) pour plus de renseignements sur le terrain. Donnez vie à vos projets immobiliers avec Maisons Evolution.Annonce proposée par un Agent Commercial Partenaire.
Blandy
TERRAINVotre agence Maisons Evolutions vous propose ce magnifique Terrain de 437 m² sur la commune de BLANDY 77Façade de 19.98ml sur une profondeur de 23.74m, viabilisation sur rueIDÉALEMENT SITUÉ au coeur d’un village médiévale, dans un secteur très recherchéProche de la gare de Melun (Paris à 30 min avec le Transilien R) à Sivry-Courtry (77115),RER Melun (ligne D) ainsi que cinq gares à moins de 10 minutes en voiture. Son prix de vente est de 109 900 €. Contactez Stephanie SEBAG ((Numéro supprimé)) pour toute question sur ce terrain. Maisons Evolution Mareuil-lès-Meaux est là pour vous accompagner à toutes les étapes de votre projet.Annonce proposée par un Agent Commercial Partenaire.
L’actualité immobilière à Blandy
27/11/2023
02/11/2023
30/10/2023
20/10/2023
16/10/2023
16/10/2023