Terrain à vendre

Maison à construire à Boissise-le-Roi (77310)

336000 €
122 m²
Boissise-le-Roi
Seine-et-Marne (77)
TERRAIN ET MAISON
Réf externe: 3601162
Annonce publiée le 14 décembre 2025

Images

Description

Contactez Stéphanie SEBAG de l'agence Maisons Evolution de Mareuil-lès-Meaux au (Numéro supprimé) pour avoir plus d'informations sur ce projet
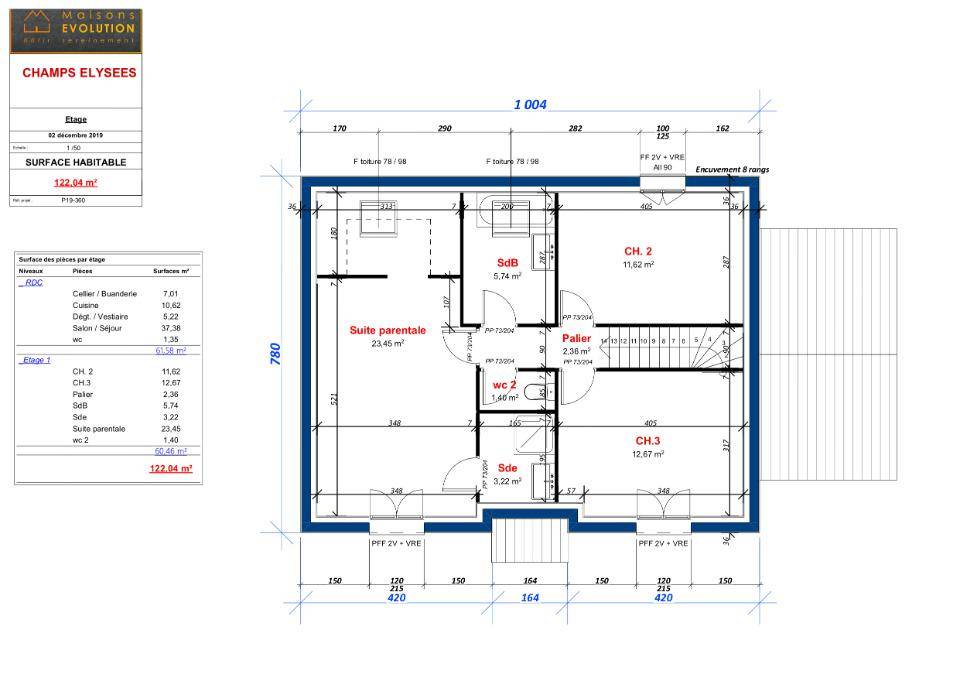
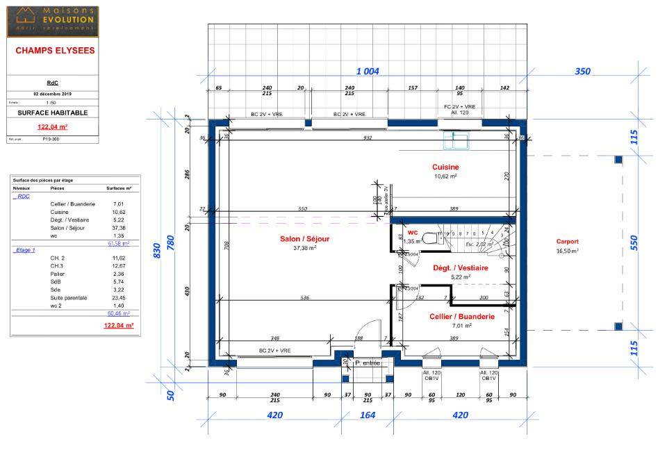
Découvrez cette très jolie maison moderne de 122 m² habitables, aux dernières normes énergétiques, idéalement située sur la commune de BOISSISE-LE-ROI
Elle est composée de 3 grandes chambres dont une grande suite parentale avec salle d'eau, d'une seconde salle de bains, de deux WC séparés et d'un grand salon-séjour lumineux avec cuisine ouverte donnant sur un vaste cellier/buanderie. Il est possible d'y ajouter un garage ou un carport.
Les plans sont entièrement modifiables selon vos souhaits, en agence ou visioconférence. Nous vous proposons un véritable accompagnement de qualité tout au long de votre projet.
Dessinons ensemble votre future maison !
Tel : (Numéro supprimé)

Annonce proposée par un Agent Commercial Partenaire.

CONTACTER

Logement susceptibles de vous intéresser

118 000 € 378 €/m²
312 m²

Le Coudray-Montceaux

TERRAIN

Opportunité foncière rare : bâtissez votre futur foyer dans un écrin de verdure préservéSitué dans un secteur privilégié PROCHE DU COUDRAY MONTCEAUX ce hameau recherché offre un cadre de vie d’exception alliant sérénité et commodités urbaines. Maisons Balency, premier constructeur de maisons individuelles en France, depuis plus de 100 ans vous accompagne dans la réalisation de votre projet de construction sur-mesure.Un emplacement stratégiqueLe secteur bénéficie d’une accessibilité remarquable, idéale pour les actifs cherchant à concilier vie professionnelle et calme résidentiel :Accès direct et rapide aux axes A6 et N104.Gare du RER D à proximité (Paris en environ 50 minutes).Lignes de bus (3631, 3421) assurant la liaison vers Melun.La vie de famille au coeur du projetL’atout majeur de ce hameau réside dans la proximité immédiate de l’éducation : l’école maternelle et élémentaire Joaquim de Château Villard est située directement au sein du hameau. Un avantage « coup de coeur » permettant aux enfants d’étudier en toute sécurité à deux pas de la maison. Les collèges et lycées sont desservis par des transports scolaires réguliers.Un quotidien facilité par les servicesProfitez d’une offre commerciale complète à moins de 10 minutes :Centres commerciaux de Villiers-en-Bière (Carrefour) et Grand Frais.Proximité immédiate des pôles d’excellence de Bois Sénart et Carré Sénart.Des conditions financières et techniques exceptionnellesRéaliser votre projet dans ce secteur, c’est bénéficier d’avantages économiques rares pour optimiser votre budget :Éligibilité PTZ (Zone A) : Profitez de conditions de financement avantageuses.Fiscalité réduite : Frais de notaire réduits, exonération totale de la part communale de la taxe d’aménagement et de la taxe de raccordement à l’égout (PFAC).Prêt à bâtir : Terrains entièrement viabilisés (y compris la fibre optique) avec les clôtures sur rue déjà réalisées.Votre projet de vie avec l’expertise Maisons BalencyEn

125 000 € 282 €/m²
443 m²

Barbizon

TERRAIN

Opportunité foncière rare : bâtissez votre futur foyer dans un écrin de verdure préservéSitué dans un secteur privilégié PROCHE DE BARBIZON ce hameau recherché offre un cadre de vie d’exception alliant sérénité et commodités urbaines. Maisons Balency, premier constructeur de maisons individuelles en France, depuis plus de 100 ans vous accompagne dans la réalisation de votre projet de construction sur-mesure.Un emplacement stratégiqueLe secteur bénéficie d’une accessibilité remarquable, idéale pour les actifs cherchant à concilier vie professionnelle et calme résidentiel :Accès direct et rapide aux axes A6 et N104.Gare du RER D à proximité (Paris en environ 50 minutes).Lignes de bus (3631, 3421) assurant la liaison vers Melun.La vie de famille au coeur du projetL’atout majeur de ce hameau réside dans la proximité immédiate de l’éducation : l’école maternelle et élémentaire Joaquim de Château Villard est située directement au sein du hameau. Un avantage « coup de coeur » permettant aux enfants d’étudier en toute sécurité à deux pas de la maison. Les collèges et lycées sont desservis par des transports scolaires réguliers.Un quotidien facilité par les servicesProfitez d’une offre commerciale complète à moins de 10 minutes :Centres commerciaux de Villiers-en-Bière (Carrefour) et Grand Frais.Proximité immédiate des pôles d’excellence de Bois Sénart et Carré Sénart.Des conditions financières et techniques exceptionnellesRéaliser votre projet dans ce secteur, c’est bénéficier d’avantages économiques rares pour optimiser votre budget :Éligibilité PTZ (Zone A) : Profitez de conditions de financement avantageuses.Fiscalité réduite : Frais de notaire réduits, exonération totale de la part communale de la taxe d’aménagement et de la taxe de raccordement à l’égout (PFAC).Prêt à bâtir : Terrains entièrement viabilisés (y compris la fibre optique) avec les clôtures sur rue déjà réalisées.Votre projet de vie avec l’expertise Maisons BalencyEntre Seine

119 000 € 335 €/m²
355 m²

Le Coudray-Montceaux

TERRAIN

Opportunité foncière rare : bâtissez votre futur foyer dans un écrin de verdure préservéSitué dans un secteur privilégié PROCHE DU COUDRAY MONTCEAUX ce hameau recherché offre un cadre de vie d’exception alliant sérénité et commodités urbaines. Maisons Balency, premier constructeur de maisons individuelles en France, depuis plus de 100 ans vous accompagne dans la réalisation de votre projet de construction sur-mesure.Un emplacement stratégiqueLe secteur bénéficie d’une accessibilité remarquable, idéale pour les actifs cherchant à concilier vie professionnelle et calme résidentiel :Accès direct et rapide aux axes A6 et N104.Gare du RER D à proximité (Paris en environ 50 minutes).Lignes de bus (3631, 3421) assurant la liaison vers Melun.La vie de famille au coeur du projetL’atout majeur de ce hameau réside dans la proximité immédiate de l’éducation : l’école maternelle et élémentaire Joaquim de Château Villard est située directement au sein du hameau. Un avantage « coup de coeur » permettant aux enfants d’étudier en toute sécurité à deux pas de la maison. Les collèges et lycées sont desservis par des transports scolaires réguliers.Un quotidien facilité par les servicesProfitez d’une offre commerciale complète à moins de 10 minutes :Centres commerciaux de Villiers-en-Bière (Carrefour) et Grand Frais.Proximité immédiate des pôles d’excellence de Bois Sénart et Carré Sénart.Des conditions financières et techniques exceptionnellesRéaliser votre projet dans ce secteur, c’est bénéficier d’avantages économiques rares pour optimiser votre budget :Éligibilité PTZ (Zone A) : Profitez de conditions de financement avantageuses.Fiscalité réduite : Frais de notaire réduits, exonération totale de la part communale de la taxe d’aménagement et de la taxe de raccordement à l’égout (PFAC).Prêt à bâtir : Terrains entièrement viabilisés (y compris la fibre optique) avec les clôtures sur rue déjà réalisées.Votre projet de vie avec l’expertise Maisons BalencyEn

114 000 € 437 €/m²
261 m²

Le Coudray-Montceaux

TERRAIN

Opportunité foncière rare : bâtissez votre futur foyer dans un écrin de verdure préservéSitué dans un secteur privilégié PROCHE DU COUDRAY MONTCEAUX ce hameau recherché offre un cadre de vie d’exception alliant sérénité et commodités urbaines. Maisons Balency, premier constructeur de maisons individuelles en France, depuis plus de 100 ans vous accompagne dans la réalisation de votre projet de construction sur-mesure.Un emplacement stratégiqueLe secteur bénéficie d’une accessibilité remarquable, idéale pour les actifs cherchant à concilier vie professionnelle et calme résidentiel :Accès direct et rapide aux axes A6 et N104.Gare du RER D à proximité (Paris en environ 50 minutes).Lignes de bus (3631, 3421) assurant la liaison vers Melun.La vie de famille au coeur du projetL’atout majeur de ce hameau réside dans la proximité immédiate de l’éducation : l’école maternelle et élémentaire Joaquim de Château Villard est située directement au sein du hameau. Un avantage « coup de coeur » permettant aux enfants d’étudier en toute sécurité à deux pas de la maison. Les collèges et lycées sont desservis par des transports scolaires réguliers.Un quotidien facilité par les servicesProfitez d’une offre commerciale complète à moins de 10 minutes :Centres commerciaux de Villiers-en-Bière (Carrefour) et Grand Frais.Proximité immédiate des pôles d’excellence de Bois Sénart et Carré Sénart.Des conditions financières et techniques exceptionnellesRéaliser votre projet dans ce secteur, c’est bénéficier d’avantages économiques rares pour optimiser votre budget :Éligibilité PTZ (Zone A) : Profitez de conditions de financement avantageuses.Fiscalité réduite : Frais de notaire réduits, exonération totale de la part communale de la taxe d’aménagement et de la taxe de raccordement à l’égout (PFAC).Prêt à bâtir : Terrains entièrement viabilisés (y compris la fibre optique) avec les clôtures sur rue déjà réalisées.Votre projet de vie avec l’expertise Maisons BalencyEn

128 000 € 234 €/m²
548 m²

Dammarie-les-Lys

TERRAIN

Opportunité foncière rare : bâtissez votre futur foyer dans un écrin de verdure préservéSitué dans un secteur privilégié PROCHE DE DAMMARIE LES LYS ce hameau recherché offre un cadre de vie d’exception alliant sérénité et commodités urbaines. Maisons Balency, premier constructeur de maisons individuelles en France, depuis plus de 100 ans vous accompagne dans la réalisation de votre projet de construction sur-mesure.Un emplacement stratégiqueLe secteur bénéficie d’une accessibilité remarquable, idéale pour les actifs cherchant à concilier vie professionnelle et calme résidentiel :Accès direct et rapide aux axes A6 et N104.Gare du RER D à proximité (Paris en environ 50 minutes).Lignes de bus (3631, 3421) assurant la liaison vers Melun.La vie de famille au coeur du projetL’atout majeur de ce hameau réside dans la proximité immédiate de l’éducation : l’école maternelle et élémentaire Joaquim de Château Villard est située directement au sein du hameau. Un avantage « coup de coeur » permettant aux enfants d’étudier en toute sécurité à deux pas de la maison. Les collèges et lycées sont desservis par des transports scolaires réguliers.Un quotidien facilité par les servicesProfitez d’une offre commerciale complète à moins de 10 minutes :Centres commerciaux de Villiers-en-Bière (Carrefour) et Grand Frais.Proximité immédiate des pôles d’excellence de Bois Sénart et Carré Sénart.Des conditions financières et techniques exceptionnellesRéaliser votre projet dans ce secteur, c’est bénéficier d’avantages économiques rares pour optimiser votre budget :Éligibilité PTZ (Zone A) : Profitez de conditions de financement avantageuses.Fiscalité réduite : Frais de notaire réduits, exonération totale de la part communale de la taxe d’aménagement et de la taxe de raccordement à l’égout (PFAC).Prêt à bâtir : Terrains entièrement viabilisés (y compris la fibre optique) avec les clôtures sur rue déjà réalisées.Votre projet de vie avec l’expertise Maisons BalencyEn

550 000 €
160 m²

Dammarie-les-Lys

TERRAIN ET MAISON

Opportunité foncière rare : bâtissez votre futur foyer dans un écrin de verdure préservéPROPOSTION TERRAIN + CONSTRUCTION RE2020 ECONOME EN ENERGIE MAISONS BALENCY Situé dans un secteur privilégié PROCHE DE DAMMARIE LES LYS ce hameau recherché offre un cadre de vie d’exception alliant sérénité et commodités urbaines. Maisons Balency, premier constructeur de maisons individuelles en France, depuis plus de 100 ans vous accompagne dans la réalisation de votre projet de construction sur-mesure.Un emplacement stratégiqueLe secteur bénéficie d’une accessibilité remarquable, idéale pour les actifs cherchant à concilier vie professionnelle et calme résidentiel :Accès direct et rapide aux axes A6 et N104.Gare du RER D à proximité (Paris en environ 50 minutes).Lignes de bus (3631, 3421) assurant la liaison vers Melun.La vie de famille au coeur du projetL’atout majeur de ce hameau réside dans la proximité immédiate de l’éducation : l’école maternelle et élémentaire Joaquim de Château Villard est située directement au sein du hameau. Un avantage « coup de coeur » permettant aux enfants d’étudier en toute sécurité à deux pas de la maison. Les collèges et lycées sont desservis par des transports scolaires réguliers.Un quotidien facilité par les servicesProfitez d’une offre commerciale complète à moins de 10 minutes :Centres commerciaux de Villiers-en-Bière (Carrefour) et Grand Frais.Proximité immédiate des pôles d’excellence de Bois Sénart et Carré Sénart.Des conditions financières et techniques exceptionnellesRéaliser votre projet dans ce secteur, c’est bénéficier d’avantages économiques rares pour optimiser votre budget :Éligibilité PTZ (Zone A) : Profitez de conditions de financement avantageuses.Fiscalité réduite : Frais de notaire réduits, exonération totale de la part communale de la taxe d’aménagement et de la taxe de raccordement à l’égout (PFAC).Prêt à bâtir : Terrains entièrement viabilisés (y compris la fibre optique) avec les clôtures

112 000 € 455 €/m²
246 m²

Le Coudray-Montceaux

TERRAIN

Opportunité foncière rare : bâtissez votre futur foyer dans un écrin de verdure préservéSitué dans un secteur privilégié PROCHE DU COUDRAY MONTCEAUX ce hameau recherché offre un cadre de vie d’exception alliant sérénité et commodités urbaines. Maisons Balency, premier constructeur de maisons individuelles en France, depuis plus de 100 ans vous accompagne dans la réalisation de votre projet de construction sur-mesure.Un emplacement stratégiqueLe secteur bénéficie d’une accessibilité remarquable, idéale pour les actifs cherchant à concilier vie professionnelle et calme résidentiel :Accès direct et rapide aux axes A6 et N104.Gare du RER D à proximité (Paris en environ 50 minutes).Lignes de bus (3631, 3421) assurant la liaison vers Melun.La vie de famille au coeur du projetL’atout majeur de ce hameau réside dans la proximité immédiate de l’éducation : l’école maternelle et élémentaire Joaquim de Château Villard est située directement au sein du hameau. Un avantage « coup de coeur » permettant aux enfants d’étudier en toute sécurité à deux pas de la maison. Les collèges et lycées sont desservis par des transports scolaires réguliers.Un quotidien facilité par les servicesProfitez d’une offre commerciale complète à moins de 10 minutes :Centres commerciaux de Villiers-en-Bière (Carrefour) et Grand Frais.Proximité immédiate des pôles d’excellence de Bois Sénart et Carré Sénart.Des conditions financières et techniques exceptionnellesRéaliser votre projet dans ce secteur, c’est bénéficier d’avantages économiques rares pour optimiser votre budget :Éligibilité PTZ (Zone A) : Profitez de conditions de financement avantageuses.Fiscalité réduite : Frais de notaire réduits, exonération totale de la part communale de la taxe d’aménagement et de la taxe de raccordement à l’égout (PFAC).Prêt à bâtir : Terrains entièrement viabilisés (y compris la fibre optique) avec les clôtures sur rue déjà réalisées.Votre projet de vie avec l’expertise Maisons BalencyEn

430 000 €
150 m²

Barbizon

TERRAIN ET MAISON

Opportunité foncière rare : bâtissez votre futur foyer dans un écrin de verdure préservéPROPOSTION TERRAIN + CONSTRUCTION RE2020 ECONOME EN ENERGIE MAISONS BALENCY Situé dans un secteur privilégié PROCHE DE BARBIZON ce hameau recherché offre un cadre de vie d’exception alliant sérénité et commodités urbaines. Maisons Balency, premier constructeur de maisons individuelles en France, depuis plus de 100 ans vous accompagne dans la réalisation de votre projet de construction sur-mesure.Un emplacement stratégiqueLe secteur bénéficie d’une accessibilité remarquable, idéale pour les actifs cherchant à concilier vie professionnelle et calme résidentiel :Accès direct et rapide aux axes A6 et N104.Gare du RER D à proximité (Paris en environ 50 minutes).Lignes de bus (3631, 3421) assurant la liaison vers Melun.La vie de famille au coeur du projetL’atout majeur de ce hameau réside dans la proximité immédiate de l’éducation : l’école maternelle et élémentaire Joaquim de Château Villard est située directement au sein du hameau. Un avantage « coup de coeur » permettant aux enfants d’étudier en toute sécurité à deux pas de la maison. Les collèges et lycées sont desservis par des transports scolaires réguliers.Un quotidien facilité par les servicesProfitez d’une offre commerciale complète à moins de 10 minutes :Centres commerciaux de Villiers-en-Bière (Carrefour) et Grand Frais.Proximité immédiate des pôles d’excellence de Bois Sénart et Carré Sénart.Des conditions financières et techniques exceptionnellesRéaliser votre projet dans ce secteur, c’est bénéficier d’avantages économiques rares pour optimiser votre budget :Éligibilité PTZ (Zone A) : Profitez de conditions de financement avantageuses.Fiscalité réduite : Frais de notaire réduits, exonération totale de la part communale de la taxe d’aménagement et de la taxe de raccordement à l’égout (PFAC).Prêt à bâtir : Terrains entièrement viabilisés (y compris la fibre optique) avec les clôtures sur rue d

L’actualité immobilière à Boissise-le-Roi

Image du post Pourquoi acheter un terrain en lotissement ? 27/11/2023
Lire l’article
Pourquoi acheter un terrain en lotissement ?
Image du post Vendre son terrain à un promoteur : comment procéder ? 02/11/2023
Lire l’article
Vendre son terrain à un promoteur : comment procéder ?
Image du post Diviser le terrain de sa maison pour le vendre : pourquoi et comment ? 30/10/2023
Lire l’article
Diviser le terrain de sa maison pour le vendre : pourquoi et comment ?
Image du post Acheter un terrain viabilisé : quels avantages ? 20/10/2023
Lire l’article
Acheter un terrain viabilisé : quels avantages ?
Image du post Les 7 étapes incontournables pour bien vendre votre terrain constructible 16/10/2023
Lire l’article
Les 7 étapes incontournables pour bien vendre votre terrain constructible
Image du post 5 points clés à vérifier pour l’achat d’un terrain constructible  16/10/2023
Lire l’article
5 points clés à vérifier pour l’achat d’un terrain constructible