Maison à construire à Brie-Comte-Robert (77170)
Images
Description
VENTE d'une maison de 5 pièces (90 m²) à Brie-Comte-Robert
IDÉALEMENT SITUÉE - MAISON 5 PIÈCES NEUVE
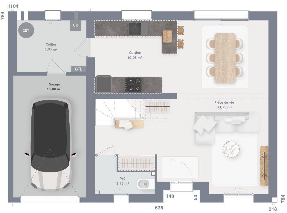
À vendre : au pied de la station Combs-la-Ville-Quincy (Paris à 30 min avec le RER D), idéalement située dans Brie-Comte-Robert (77170), notre agence Maisons France Confort Magny-le-Hongre est heureuse de vous présenter cette maison de 5 pièces de 90 m² et de 320 m² de terrain. Elle inclut trois chambres, une cuisine et une salle de bains.
C'est une maison de 2 niveaux. Elle est neuve.
Cette maison se situe dans un secteur prisé. Il y a cinq établissements scolaires à moins de 10 minutes à pied. Niveau transports en commun, on trouve les lignes de RER D, E et A ainsi que sept gares à moins de 10 minutes en voiture. Il y a une bibliothèque, des boulangeries, des commerces, trois supermarchés, une boucherie-charcuterie et trois épiceries à proximité du logement.
Elle est à vendre pour la somme de 409 000 €.
Contactez Hugo NGUYEN (tél : (Numéro supprimé)) pour plus d'informations sur la maison ou sur les démarches à suivre.
Annonce proposée par un Agent Commercial Partenaire.
Logement susceptibles de vous intéresser
Nous vous proposons de découvrir aussi cette sélection de logements situés à moins de 10km de Brie-Comte-Robert et qui seraient susceptibles de vous intéresser.
Soignolles-en-Brie
TERRAIN ET MAISONRéalisez votre projet de construction de maison RE 2020 avec PAVILLONS D'ÎLE-DE-FRANCE (constructeur de maisons de gamme et sur-mesure depuis plus de 50 ans) :- Plan sur-mesure et personnalisé de 2 à 5 chambres- Mode de chauffage au choix- Grands choix d'équipements et de prestations- Matériaux de qualité selon les normes en vigueur- Accompagnement dans le choix et l’acquisition du terrainInformations du terrain : Terrain entièrement viabilisé situé à 2 minutes de Coubert et 12 minutes RER MOISSY-CRAMAYEL,Demandez une étude gratuite et personnalisée de votre projet de construction !Contactez Olivier SAMSON au (Numéro supprimé) ou au (Numéro supprimé) (Pavillons d'Île-de-France – Agence de Meaux).Prix avec assurance dommages-ouvrage comprise, hors VRD, terrain viabilisé, assainissement compris, frais de notaire non compris, taxes non comprises, frais divers non compris. Terrain sélectionné et vu pour vous sous réserve de disponibilité et au prix indiqué par notre partenaire foncier. Visuels non contractuels.Cette annonce a été créée et diffusée avec le logiciel VITAHOME.
Villecresnes
TERRAIN ET MAISONRéalisez votre projet de construction de maison RE 2020 avec PAVILLONS D'ÎLE-DE-FRANCE (constructeur de maisons de gamme et sur-mesure depuis plus de 50 ans) :- Plan sur-mesure et personnalisé de 2 à 5 chambres- Mode de chauffage au choix- Grands choix d'équipements et de prestations- Matériaux de qualité selon les normes en vigueur- Accompagnement dans le choix et l’acquisition du terrainDemandez une étude gratuite et personnalisée de votre projet de construction !Contactez Stéphane VERHAUVEN au (Numéro supprimé) ou au (Numéro supprimé) (Pavillons d'Île-de-France – Agence de Meaux).Prix avec assurance dommages-ouvrage comprise, hors VRD, terrain viabilisé, assainissement compris, frais de notaire non compris, taxes non comprises, frais divers non compris. Terrain sélectionné et vu pour vous sous réserve de disponibilité et au prix indiqué par notre partenaire foncier. Visuels non contractuels.Cette annonce a été créée et diffusée avec le logiciel VITAHOME.
Grisy-Suisnes
TERRAIN ET MAISONVENTE d’une maison de 4 pièces (78 m²) à Grisy-SuisnesMAISON 4 PIÈCES NEUVEAu pied de la station Gretz-Armainvilliers du RER E (35 min de Paris), nous vous présentons cette maison de 4 pièces de 78 m² à Grisy-Suisnes (77166).Cette maison comporte 2 niveaux. Son intérieur se divise en trois chambres, une cuisine et une salle de bains. La maison est neuve.Le terrain de la propriété s’étend sur 447 m².L’École Élémentaire Champ Fleuri et l’École Maternelle la Ruche sont implantées à moins de 10 minutes à pied. Niveau transports en commun, il y a les lignes de RER E et D ainsi que cinq gares à moins de 10 minutes en voiture. On trouve un tennis, une bibliothèque, deux commerces, une boulangerie, un bureau de poste et deux épiceries à proximité du bien.Elle est proposée à l’achat pour 316 875 €.Prenez contact avec notre agence (DELOHEN Anne : (Numéro supprimé)) pour plus d’informations sur ce bien ou sur les modalités de vente. Maisons France Confort Nemours est là pour vous accompagner à toutes les étapes de l’achat.Annonce proposée par un Agent Commercial Partenaire.
Grisy-Suisnes
TERRAIN ET MAISONVENTE : maison F7 (104 m²) à Grisy-SuisnesMAISON 7 PIÈCES NEUVEÀ proximité de la station Gretz-Armainvilliers (Paris à 35 min avec le RER E), à vendre à Grisy-Suisnes (77166), nous vous présentons cette maison de 7 pièces de 104 m².C’est une maison de 2 niveaux. Son intérieur compte six chambres, une cuisine et deux salles de bains. Cette maison est neuve.Le terrain du bien est de 559 m².Il y a l’École Élémentaire Champ Fleuri et l’École Maternelle la Ruche à moins de 10 minutes à pied. Côté transports en commun, on trouve deux lignes de RER (E et D) ainsi que cinq gares à moins de 10 minutes en voiture. Il y a un tennis, une bibliothèque, deux commerces, une boulangerie, un bureau de poste et deux épiceries dans les environs.Il est à vendre pour la somme de 410 400 €.Contactez notre agence (Anne DELOHEN : (Numéro supprimé)) pour obtenir de plus amples informations sur la maison, sur les démarches à suivre ou sur les modalités de vente. Donnez vie à vos projets immobiliers avec Maisons France Confort Nemours.Annonce proposée par un Agent Commercial Partenaire.
Grisy-Suisnes
TERRAIN ET MAISONMaison de 3 pièces (65 m²) en vente à Grisy-SuisnesMAISON 3 PIÈCES NEUVEÀ côté du RER E (station Gretz-Armainvilliers, 35 min de Paris), en vente à Grisy-Suisnes (77166), découvrez cette maison de 3 pièces de plain-pied de 65 m².Son intérieur dispose de deux chambres, d’une cuisine et d’une salle de bains. La maison est neuve.Le terrain du bien est de 456 m².L’École Élémentaire Champ Fleuri et l’École Maternelle la Ruche sont implantées à moins de 10 minutes à pied. Niveau transports en commun, on trouve deux lignes de RER (E et D) ainsi que cinq gares à moins de 10 minutes en voiture. Il y a un tennis, une bibliothèque, deux commerces, une boulangerie, un bureau de poste et deux épiceries à proximité.Elle est proposée à l’achat pour 313 000 €.Contactez Anne DELOHEN ((Numéro supprimé)) pour toute question sur ce bien ou sur les modalités de vente. Maisons France Confort Nemours est là pour vous accompagner à toutes les étapes de votre projet.Annonce proposée par un Agent Commercial Partenaire.
Grisy-Suisnes
TERRAIN ET MAISONMaison T6 (122 m²) à vendre à Grisy-SuisnesMAISON 6 PIÈCES NEUVEÀ deux pas de la station Gretz-Armainvilliers du RER E (35 min de Paris), ayez le coup de coeur pour cette maison de 6 pièces de 122 m² à vendre à Grisy-Suisnes (77166).Il s’agit d’une maison de 2 niveaux. Son intérieur compte quatre chambres, une cuisine et deux salles de bains. Cette maison est neuve.Le terrain du bien est de 529 m².L’École Élémentaire Champ Fleuri et l’École Maternelle la Ruche sont implantées à moins de 10 minutes à pied. Côté transports en commun, il y a les lignes E et D du RER ainsi que cinq gares à moins de 10 minutes en voiture. On trouve un tennis, une bibliothèque, deux commerces, une boulangerie, deux épiceries et un bureau de poste à proximité.Elle est à vendre pour la somme de 406 097 €.Prenez contact avec notre agence (DELOHEN Anne : (Numéro supprimé)) pour toute question sur le bien. Maisons France Confort Nemours est là pour vous accompagner à toutes les étapes de l’achat.Annonce proposée par un Agent Commercial Partenaire.
Brie-Comte-Robert
TERRAIN ET MAISONVENTE d’une maison F6 (89 m²) proche Brie-Comte-RobertMAISON 6 PIÈCES NEUVE – À vendre : proche de la station Combs-la-Ville-Quincy (Paris à 30 min avec le RER D), notre agence Maisons France Confort Nemours est ravie de vous proposer cette maison de 6 pièces de 89 m² proche Brie-Comte-Robert (77170). Elle inclut quatre chambres, une cuisine et une salle de bains.Le terrain de la propriété s’étend sur 400 m².Cette maison comporte 2 niveaux. Elle est neuve.Cinq établissements scolaires sont implantés à moins de 10 minutes à pied. Côté transports, il y a le RER D, E et A ainsi que sept gares à moins de 10 minutes en voiture. On trouve une bibliothèque, des boulangeries, des commerces, trois supermarchés, un bureau de poste et une boucherie-charcuterie à quelques minutes du bien.Elle est proposée à l’achat pour 340 000 €.Contactez notre agence (Jerome RAOUX : (Numéro supprimé)) pour plus de renseignements sur la maison, sur les modalités de vente ou sur les démarches à suivre. Maisons France Confort Nemours vous accompagne à toutes les étapes de votre projet et dans tous vos projets immobiliers.Annonce proposée par un Agent Commercial Partenaire.
Villecresnes
TERRAIN ET MAISONRéalisez votre projet de construction de maison RE 2020 avec PAVILLONS D'ÎLE-DE-FRANCE (constructeur de maisons de gamme et sur-mesure depuis plus de 50 ans) :- Plan sur-mesure et personnalisé de 2 à 5 chambres- Mode de chauffage au choix- Grands choix d'équipements et de prestations- Matériaux de qualité selon les normes en vigueur- Accompagnement dans le choix et l’acquisition du terrainDemandez une étude gratuite et personnalisée de votre projet de construction !Contactez Stéphane VERHAUVEN au (Numéro supprimé) ou au (Numéro supprimé) (Pavillons d'Île-de-France – Agence de Meaux).Prix avec assurance dommages-ouvrage comprise, hors VRD, terrain viabilisé, assainissement compris, frais de notaire non compris, taxes non comprises, frais divers non compris. Terrain sélectionné et vu pour vous sous réserve de disponibilité et au prix indiqué par notre partenaire foncier. Visuels non contractuels.Cette annonce a été créée et diffusée avec le logiciel VITAHOME.
Quincy-sous-Sénart
TERRAINMuriel GARNIER vous présente, ce beau terrain plat de 405m2 situé dans la charmante commune de Quincy sous Sénart.Situé à moins de 10min à pied de la gare, et de toutes les commodités (écoles et commerces)Les axes routiers N6, N104, A5 et A6 sont accessibles en moins de 10min.Le terrain est plat et borné.En proximité de voie ferrée.La façade mesure un peu plus de 18m et dispose d’une profondeur de 22m environ, permettant ainsi la construction d’une maison de plus de 100m².Prévoir viabilité des réseaux eau, électricité et tout à l’égout sur ruePrix : 158.000 euros FAI Honoraires charge vendeur.Pour visiter et vous accompagner dans votre projet, contactez Muriel GARNIER, au (Numéro supprimé) ou, par courriel à (Email supprimé).Selon l’article L.561.5 du Code Monétaire et Financier, pour l’organisation de la visite, la présentation d’une pièce d’identité vous sera demandée.Cette présente annonce a été rédigée sous la responsabilité éditoriale de Muriel GARNIER agissant sous le statut d’agent commercial immatriculé au RSAC EVRY 981 209 620 auprès de SAS PROPRIETES PRIVEES, au capital de 44 920 euros, ZAC LE CHÊNE FERRÉ – 44 ALLÉE DES CINQ CONTINENTS 44120 VERTOU; SIRET 487 624 777 00040, RCS Nantes. Carte Professionnelle Transactions sur immeubles et fonds de commerce (T) et Gestion immobilière (G) n°CPI 4401 2016 000 010 388 délivrée par la CCI Nantes – Saint Nazaire. Compte séquestre n(Numéro supprimé)67 BPA SAINT-SEBASTIEN-SUR-LOIRE (44230). Garantie GALIAN-SMABTP – 89 rue de la Boétie, 75008 Paris – n°28137 J pour 2 000 000 euros pour T et 120 000 euros pour G. Assurance responsabilité civile professionnelle par GALIAN-SMABTP n° de police 28137.JMandat réf : 422652 – Le professionnel garantit et sécurise votre projet immobilier. Muriel GARNIER (EI) Agent Commercial – Numéro RSAC : EVRY 981 209 620 – .Les informations sur les risques auxquels ce bien est exposé sont disponibles sur le site Géorisques : www. georisques. gouv. fr
L’actualité immobilière à Brie-Comte-Robert
27/11/2023
02/11/2023
30/10/2023
20/10/2023
16/10/2023
16/10/2023