Maison à construire à Chalifert (77144)
Images
Description
VENTE : maison de 7 pièces (102 m²) à Chalifert
MAISON 7 PIÈCES NEUVE - PROCHE DE SAINT-DENIS
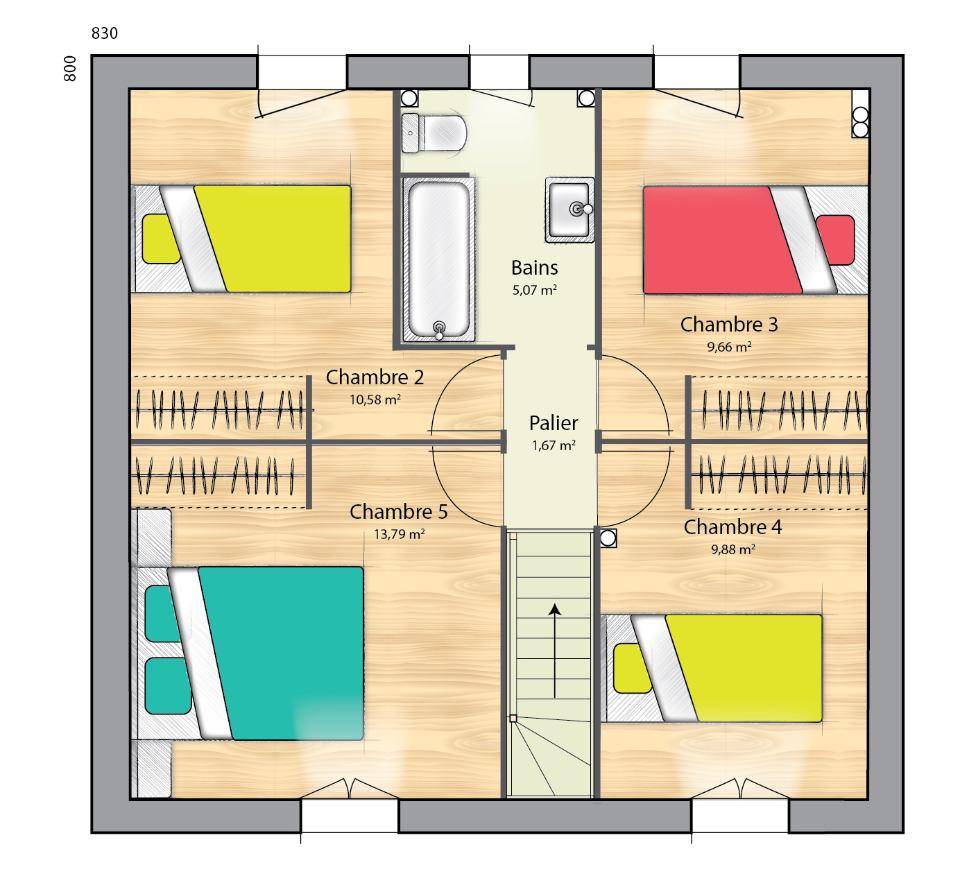
En vente : proche du Transilien P (gare d'Esbly, 30 min de Paris), à Chalifert (77144), nous sommes ravis de vous proposer cette maison de 7 pièces de 102 m² et de 410 m² de terrain. Son intérieur compte cinq chambres, une cuisine et deux salles de bains.
Cette maison possède 2 niveaux. Elle est neuve.
L'École Primaire Clos de la Fontaine se trouve à moins de 10 minutes à pied. Côté transports, il y a la ligne de RER A (Chessy-Marne-La-Vallée) ainsi que sept gares à moins de 10 minutes en voiture. On trouve plusieurs commerces à proximité du bien.
Elle est proposée à l'achat pour 450 000 €.
Prenez contact avec notre agence (FLIPPE Antoine : (Numéro supprimé)) pour plus d'informations sur la maison, sur les démarches à suivre ou sur les modalités de vente.
Annonce proposée par un Agent Commercial Partenaire.
Logement susceptibles de vous intéresser
Nous vous proposons de découvrir aussi cette sélection de logements situés à moins de 10km de Chalifert et qui seraient susceptibles de vous intéresser.
Quincy-Voisins
TERRAINTERRAIN BIEN SITUE NON ACCOLE, BONNE ORIENTATION TOUTES COMMODITES SUR PLACEPROCHE DISNEYLAND..Prix : 141000 €.Sur ce terrain, réalisez votre projet de construction de maison RE 2020 avec PAVILLONS D'ÎLE-DE-FRANCE (constructeur de maisons de gamme et sur-mesure depuis plus de 50 ans) :- Plan sur-mesure et personnalisé de 2 à 5 chambres- Mode de chauffage au choix- Grands choix d'équipements et de prestations- Matériaux de qualité selon les normes en vigueur- Accompagnement dans le choix et l’acquisition du terrainDemandez une étude gratuite et personnalisée de votre projet de construction sur ce terrain !Contactez Kamel SELMI au (Numéro supprimé) ou au (Numéro supprimé) (Pavillons d'Île-de-France – Agence de Cauffry).Prix hors frais de notaire. Terrain sélectionné et vu pour vous sous réserve de disponibilité et au prix indiqué par notre partenaire foncier. Visuels non contractuels.Cette annonce a été créée et diffusée avec le logiciel VITAHOME.
Quincy-Voisins
TERRAINMohammed – Agence Pavillons d'Île-de-FranceVotre expert en maisons sur-mesure depuis plus de 50 ans à Mareuil-lès-MeauxTransformez votre rêve en réalité !Situé dans un écrin de verdure, ce terrain de 400 m² vous offre l'opportunité rare de construire la maison de vos rêves dans un cadre calme et agréable. À deux pas des commerces, écoles et transports, vous bénéficierez de la tranquillité de la campagne sans renoncer à la proximité de la vie urbaine.Imaginez votre futur chez-vous, parfaitement adapté à vos envies et à vos besoins. Ce terrain est prêt à accueillir votre projet et à vous offrir un cadre de vie exceptionnel.Prix : 125 000 €Ne laissez pas passer cette chance unique ! Contactez-nous dès maintenant au (Numéro supprimé) pour planifier une étude de faisabilité.Prix : 125000 €.Sur ce terrain, réalisez votre projet de construction de maison RE 2020 avec PAVILLONS D'ÎLE-DE-FRANCE (constructeur de maisons de gamme et sur-mesure depuis plus de 50 ans) :- Plan sur-mesure et personnalisé de 2 à 5 chambres- Mode de chauffage au choix- Grands choix d'équipements et de prestations- Matériaux de qualité selon les normes en vigueur- Accompagnement dans le choix et l’acquisition du terrainDemandez une étude gratuite et personnalisée de votre projet de construction sur ce terrain !Contactez Mohammed HAMDAOUI au (Numéro supprimé) ou au (Numéro supprimé) (Pavillons d'Île-de-France – Agence de Meaux).Prix hors frais de notaire. Terrain sélectionné et vu pour vous sous réserve de disponibilité et au prix indiqué par notre partenaire foncier. Visuels non contractuels.Cette annonce a été créée et diffusée avec le logiciel VITAHOME.
Chessy
TERRAIN ET MAISONMaison de 7 pièces (124 m²) à vendre à ChessyMAISON 7 PIÈCES NEUVE – PROCHE DE PARISÀ vendre : à côté du RER A (station Val d’Europe, 30 min de Paris), à Chessy (77700), nous sommes heureux de vous proposer cette maison de 7 pièces de 124 m² et de 420 m² de terrain. Elle comporte cinq chambres, une cuisine et trois salles de bains.Cette maison compte 2 niveaux. Elle est neuve.L’École Primaire Cornelius et l’École Primaire Gaius sont implantées à moins de 10 minutes à pied, tout comme une crèche. Niveau transports en commun, on trouve la ligne de RER A (Chessy-Marne-La-Vallée) ainsi que sept gares à moins de 10 minutes en voiture. Il y a deux tennis, des commerces, une boulangerie, une boucherie-charcuterie et deux épiceries à quelques minutes à peine.Son prix de vente est de 474 000 €.N’hésitez pas à prendre contact avec Antoine FLIPPE (tél : (Numéro supprimé)) pour toute question sur la maison ou sur les démarches à suivre.Annonce proposée par un Agent Commercial Partenaire.
Charny
TERRAIN ET MAISONCharny : maison T5 (98 m²) en venteMAISON 5 PIÈCES NEUVE – PROCHE DE SAINT-DENISEn vente : au pied de la gare de Thieux-Nantouillet (Paris à 30 min avec le Transilien K), Maisons Balency Pierrelaye vous propose cette maison de 5 pièces de 98 m² et de 320 m² de terrain à Charny (77410).Cette maison compte 2 niveaux. Son intérieur comporte quatre chambres, une cuisine et une salle de bains. Cette maison est neuve.Deux établissements scolaires se trouvent à moins de 10 minutes à pied, tout comme dont le Collège Marthe Gautier. Côté transports en commun, il y a la station de RER Mitry-Claye (ligne B) ainsi que six gares à moins de 10 minutes en voiture. On trouve un tennis, un commerce, une boulangerie, deux épiceries et une boucherie-charcuterie à quelques minutes de la maison.Elle est à vendre pour la somme de 312 000 €.Contactez notre agence (FLIPPE Antoine : (Numéro supprimé)) pour plus de renseignements sur la maison ou sur les démarches à suivre.Annonce proposée par un Agent Commercial Partenaire.
Chessy
TERRAINChessy : terrain de 420 m² à vendrePROCHE DE PARISTerrain de 420 m² à quelques minutes de la station Val d »Europe (Paris à 30 min avec le RER A). Ce terrain se situe dans Chessy (77700). Le terrain est proche des écoles et des commerces. Il y a l »École Primaire Cornelius et l »École Primaire Gaius à moins de 10 minutes à pied et une structure d »accueil pour la petite enfance. Côté transports en commun, on trouve la ligne de RER A (Chessy-Marne-La-Vallée) ainsi que sept gares à moins de 10 minutes en voiture. Il y a deux tennis, des commerces, une boulangerie, deux épiceries et une boucherie-charcuterie dans les environs.Ce terrain est à vendre pour la somme de 278 000 €. N »hésitez pas à prendre contact avec notre agence (Antoine FLIPPE : (Numéro supprimé)) pour tout renseignement sur le terrain, sur les démarches à suivre ou sur les modalités de vente.Annonce proposée par un Agent Commercial Partenaire.
Charny
TERRAINTerrain de 320 m² en vente à CharnyPROCHE DE SAINT-DENISÀ Charny (77410) à quelques minutes du Transilien K (gare de Thieux-Nantouillet, 30 min de Paris), projetez la maison de vos rêves sur ce terrain de 320 m². Le terrain est proche des commerces et des écoles. Il y a deux établissements scolaires à moins de 10 minutes à pied et dont le Collège Marthe Gautier. Niveau transports, on trouve la station de RER Mitry-Claye (ligne B) ainsi que six gares à moins de 10 minutes en voiture. Il y a un tennis, un commerce, une boulangerie, deux épiceries et une boucherie-charcuterie dans les environs.Son prix de vente est de 127 000 €. N’hésitez pas à prendre contact avec notre agence (FLIPPE Antoine : (Numéro supprimé)) pour obtenir de plus amples renseignements sur ce terrain. Maisons Balency Pierrelaye vous accompagne à toutes les étapes de l’achat et dans toutes vos démarches.Annonce proposée par un Agent Commercial Partenaire.
Coutevroult
TERRAINTerrain de 1 014 m² en vente à CoutevroultPROCHE DE MONTREUILÀ Coutevroult (77580) à quelques minutes du Transilien P (gare d’Esbly, 30 min de Paris), projetez la maison de vos rêves sur ce terrain de 1 014 m². L’École Primaire Pierre Falke est implantée à moins de 10 minutes à pied. Niveau transports en commun, on trouve la ligne de RER A (Chessy-Marne-La-Vallée) ainsi que huit gares à moins de 10 minutes en voiture. Il y a deux commerces dans les environs.Il est proposé à l’achat pour 265 000 €. Contactez Thomas ROUSSEL TOUATI ((Numéro supprimé)) pour obtenir de plus amples renseignements sur le terrain ou sur les modalités de vente. Maisons France Confort Magny-le-Hongre est là pour vous accompagner dans toutes vos démarches.Annonce proposée par un Agent Commercial Partenaire.
Quincy-Voisins
TERRAINPrix : 170000 €.Sur ce terrain, réalisez votre projet de construction de maison RE 2020 avec PAVILLONS D'ÎLE-DE-FRANCE (constructeur de maisons de gamme et sur-mesure depuis plus de 50 ans) :- Plan sur-mesure et personnalisé de 2 à 5 chambres- Mode de chauffage au choix- Grands choix d'équipements et de prestations- Matériaux de qualité selon les normes en vigueur- Accompagnement dans le choix et l’acquisition du terrainDemandez une étude gratuite et personnalisée de votre projet de construction sur ce terrain !Contactez Stéphane VERHAUVEN au (Numéro supprimé) ou au (Numéro supprimé) (Pavillons d'Île-de-France – Agence de Meaux).Prix hors frais de notaire. Terrain sélectionné et vu pour vous sous réserve de disponibilité et au prix indiqué par notre partenaire foncier. Visuels non contractuels.Cette annonce a été créée et diffusée avec le logiciel VITAHOME.
Quincy-Voisins
TERRAIN ET MAISONRéalisez votre projet de construction de maison RE 2020 avec PAVILLONS D'ÎLE-DE-FRANCE (constructeur de maisons de gamme et sur-mesure depuis plus de 50 ans) et Modèle sur mesure de 100 m2, 3 chambres et séjour lumineux, avec des façades aux styles architecturaux variés et par leur confort inégalé, été comme hiver, grâce aux labels RE 2020. Avec une isolation et une qualité d'air intérieur optimales, vos charges de chauffage sont réduites au minimum. Choisissez celle qui vous ressemble !Informations du terrain : Beau terrain à bâtir, idéal pour construction de plain pied, hameau de Ségy, avec toutes commodités sur place, transports pour gare de Meaux et RER A CHESSY.Demandez une étude gratuite et personnalisée de votre projet de construction !Contactez Olivier SAMSON au (Numéro supprimé) ou au (Numéro supprimé) (Pavillons d'Île-de-France – Agence de Meaux).Prix avec assurance dommages-ouvrage comprise, hors VRD, terrain non viabilisé, assainissement non compris, frais de notaire non compris, taxes non comprises, frais divers non compris. Terrain sélectionné et vu pour vous sous réserve de disponibilité et au prix indiqué par notre partenaire foncier. Visuels non contractuels.Cette annonce a été créée et diffusée avec le logiciel VITAHOME.
L’actualité immobilière à Chalifert
27/11/2023
02/11/2023
30/10/2023
20/10/2023
16/10/2023
16/10/2023