Maison à construire à Chamigny (77260)
Images
Description
Contactez Stéphanie SEBAG de l'agence Maisons Evolution de Mareuil-lès-Meaux au (Numéro supprimé) pour avoir plus d'informations sur ce projet.
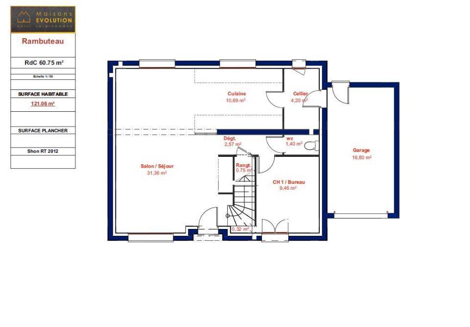
Très jolie maison à étage de 124 m² habitables avec garage accolé idéalement située sur la commune de CHAMIGNY
Elle est composée de 5 chambres au total dont une grande suite parentale avec salle d'eau, de 3 salles de bains au total, de deux WC séparés et d'un grand salon-séjour lumineux avec cuisine ouverte donnant sur un cellier puis sur le garage.
Les plans sont entièrement modifiables selon vos souhaits, en agence ou visioconférence. Nous vous proposons un véritable accompagnement de qualité tout au long de votre projet.
Dessinons ensemble votre future maison !
Tel : (Numéro supprimé)
Annonce proposée par un Agent Commercial Partenaire.
Logement susceptibles de vous intéresser
Nous vous proposons de découvrir aussi cette sélection de logements situés à moins de 10km de Chamigny et qui seraient susceptibles de vous intéresser.
La Ferté-sous-Jouarre
TERRAIN ET MAISONSigny-Signets : maison F6 (100 m²) à vendreEMPLACEMENT PRIVILÉGIÉ – MAISON 6 PIÈCES NEUVEEn vente : à proximité de la gare de Changis-Saint-Jean (Paris à 35 min avec le Transilien P), bénéficiant d’un emplacement d’exception dans Signy-Signets (77640), nous sommes heureux de vous présenter cette maison de 6 pièces de 100 m² et de 487 m² de terrain. Son intérieur offre quatre chambres, une cuisine et une salle de bains.Cette maison comporte 2 niveaux. Elle est neuve.Cette maison se situe dans un secteur attractif. On y trouve une école élémentaire. Niveau transports, il y a quatre gares à moins de 10 minutes en voiture. Il y a un tennis dans les environs.Elle est proposée à l’achat pour 268 000 €.Contactez notre agence (Alan RUBAL : (Numéro supprimé)) pour toute information sur la maison ou sur les démarches à suivre.Annonce proposée par un Agent Commercial Partenaire.
La Ferté-sous-Jouarre
TERRAIN ET MAISONVENTE d’une maison F7 (160 m²) à Signy-SignetsEMPLACEMENT PRIVILÉGIÉ – MAISON 7 PIÈCES NEUVEProche de la gare de Changis-Saint-Jean (Paris à 35 min avec le Transilien P), nous sommes ravis de vous présenter à vendre, bénéficiant d’un emplacement privilégié dans Signy-Signets (77640), cette maison de 7 pièces de 160 m².C’est une maison de 2 niveaux. Son intérieur offre cinq chambres, une cuisine et deux salles de bains. La maison est neuve.Le terrain de la propriété s’étend sur 487 m².Cette maison se trouve dans un secteur prisé. Une école élémentaire y est implantée. Niveau transports, il y a quatre gares à moins de 10 minutes en voiture. On trouve un tennis dans les environs.Elle est proposée à l’achat pour 376 000 €.Contactez Alan RUBAL ((Numéro supprimé)) pour tout renseignement sur la maison ou sur les démarches à suivre. Maisons France Confort Magny-le-Hongre vous accompagne à toutes les étapes de l’achat et dans tous vos projets immobiliers.Annonce proposée par un Agent Commercial Partenaire.
La Ferté-sous-Jouarre
TERRAIN ET MAISONVENTE d’une maison de 7 pièces (120 m²) à Signy-SignetsEMPLACEMENT PRIVILÉGIÉ – MAISON 7 PIÈCES NEUVEÀ côté du Transilien P (gare de Changis-Saint-Jean, 35 min de Paris), nous vous proposons cette maison de 7 pièces de 120 m² en vente bénéficiant d’un emplacement privilégié dans Signy-Signets (77640).Cette maison possède 2 niveaux. Elle offre quatre chambres, une cuisine et deux salles de bains. Cette maison est neuve.Le terrain de la propriété s’étend sur 487 m².La propriété se situe dans un quartier convoité. On y trouve une école élémentaire. Niveau transports, on trouve quatre gares à moins de 10 minutes en voiture. Il y a un tennis dans les environs.Elle est proposée à l’achat pour 304 000 €.N’hésitez pas à prendre contact avec Alan RUBAL ((Numéro supprimé)) pour obtenir de plus amples renseignements sur la maison ou sur les démarches à suivre.Annonce proposée par un Agent Commercial Partenaire.
Mary-sur-Marne
TERRAIN ET MAISONVENTE d’une maison F6 (100 m²) à Mary-sur-MarnePROCHE DE MEAUX – MAISON 6 PIÈCES NEUVEÀ vendre : à côté du Transilien P (gare de Lizy-sur-Ourcq, 45 min de Paris), à Mary-sur-Marne (77440), laissez vous charmer par cette maison de 6 pièces de 100 m² et de 446 m² de terrain.Cette maison compte 2 niveaux. Son intérieur dispose de quatre chambres, d’une cuisine et d’une salle de bains. Cette maison est neuve.L’École Primaire Joseph Kessel se trouve à moins de 10 minutes à pied. Niveau transports en commun, il y a six gares à moins de 10 minutes en voiture. On trouve un tennis et un supermarché à quelques minutes à peine.Elle est à vendre pour la somme de 280 000 €.Prenez contact avec Alan RUBAL ((Numéro supprimé)) pour obtenir de plus amples renseignements sur la maison ou sur les modalités de vente. Maisons France Confort Magny-le-Hongre est là pour vous accompagner dans toutes vos démarches.Annonce proposée par un Agent Commercial Partenaire.
Mary-sur-Marne
TERRAIN ET MAISONMary-sur-Marne : maison de 5 pièces (90 m²) à vendrePROCHE DE MEAUX – MAISON 5 PIÈCES NEUVEÀ deux pas du Transilien P (gare de Lizy-sur-Ourcq, 45 min de Paris), nous sommes heureux de vous présenter à vendre à Mary-sur-Marne (77440), cette maison de 5 pièces de plain-pied de 90 m² et de 446 m² de terrain.Elle propose trois chambres, une cuisine et deux salles de bains. La maison est neuve.L’École Primaire Joseph Kessel est implantée à moins de 10 minutes à pied. Niveau transports, il y a six gares à moins de 10 minutes en voiture. On trouve un tennis et un supermarché dans les environs.Son prix de vente est de 261 000 €.Contactez notre agence (RUBAL Alan : (Numéro supprimé)) pour tout renseignement sur cette maison, sur les démarches à suivre ou sur les modalités de vente.Annonce proposée par un Agent Commercial Partenaire.
Mary-sur-Marne
TERRAIN ET MAISONMary-sur-Marne : maison de 5 pièces (85 m²) à vendreMAISON 5 PIÈCES NEUVE – PROCHE DE MEAUXEn vente : proche de la gare de Lizy-sur-Ourcq (Paris à 45 min par le Transilien P), ayez le coup de coeur pour à Mary-sur-Marne (77440), cette maison de 5 pièces de 85 m² et de 446 m² de terrain.Cette maison comporte 2 niveaux. Son intérieur propose trois chambres, une cuisine et deux salles de bains. Cette maison est neuve.L’École Primaire Joseph Kessel est implantée à moins de 10 minutes à pied. Niveau transports en commun, il y a six gares à moins de 10 minutes en voiture. On trouve un tennis et un supermarché dans les environs.Elle est proposée à l’achat pour 252 000 €.Prenez contact avec notre agence (RUBAL Alan : (Numéro supprimé)) pour tout renseignement sur la maison. Maisons France Confort Magny-le-Hongre est là pour vous accompagner à toutes les étapes de l’achat.Annonce proposée par un Agent Commercial Partenaire.
Mary-sur-Marne
TERRAIN ET MAISONMary-sur-Marne : maison de 7 pièces (160 m²) en venteMAISON 7 PIÈCES NEUVE – PROCHE DE MEAUXÀ vendre : à 800 m de la gare de Lizy-sur-Ourcq (Paris à 45 min avec le Transilien P), nous sommes heureux de vous proposer à Mary-sur-Marne (77440), cette maison de 7 pièces de 160 m² et de 446 m² de terrain. Son intérieur inclut cinq chambres, une cuisine et deux salles de bains.C’est une maison de 2 niveaux. Elle est neuve.Il y a l’École Primaire Joseph Kessel à moins de 10 minutes à pied. Côté transports, on trouve six gares à moins de 10 minutes en voiture. Il y a un tennis et un supermarché à quelques minutes.Son prix de vente est de 387 000 €.Prenez contact avec notre agence (RUBAL Alan : (Numéro supprimé)) pour obtenir de plus amples renseignements sur la maison.Annonce proposée par un Agent Commercial Partenaire.
La Ferté-sous-Jouarre
TERRAIN ET MAISONVENTE : maison de 8 pièces (140 m²) à La Ferté-sous-JouarreEMPLACEMENT PRIVILÉGIÉ – MAISON 8 PIÈCES NEUVEProche de la gare (Paris à 40 min avec le Transilien P), nous vous proposons cette maison de 8 pièces de 140 m² et de 682 m² de terrain à vendre bénéficiant d’un emplacement d’exception dans La Ferté-sous-Jouarre (77260). Son intérieur est composé de cinq chambres, d’une cuisine et de deux salles de bains.Cette maison comporte 2 niveaux. Elle est neuve.La maison se trouve dans un quartier convoité. Il y a des établissements scolaires de tous types (de la maternelle au lycée) à moins de 10 minutes à pied, tout comme une structure d’accueil pour les tout-petits. Niveau transports, on trouve la gare La Ferté-sous-Jouarre à quelques pas du bien. Il y a une bibliothèque, un tennis, des commerces, des boulangeries, trois supermarchés, une poissonnerie et des épiceries à proximité. Enfin, le marché Boulevard de Turenne anime les environs.Elle est proposée à l’achat pour 320 000 €.N’hésitez pas à prendre contact avec notre agence (Alan RUBAL : (Numéro supprimé)) pour toute question sur la maison ou sur les modalités de vente. Maisons France Confort Magny-le-Hongre vous accompagne dans toutes vos démarches et à toutes les étapes de l’achat.Annonce proposée par un Agent Commercial Partenaire.
La Ferté-sous-Jouarre
TERRAIN ET MAISONVENTE : maison F7 (120 m²) à La Ferté-sous-JouarreEMPLACEMENT PRIVILÉGIÉ – MAISON 7 PIÈCES NEUVEÀ quelques minutes de la gare (Paris à 40 min par le Transilien P), notre agence Maisons France Confort Magny-le-Hongre est ravie de vous présenter cette maison de 7 pièces de 120 m² et de 682 m² de terrain bénéficiant d’un emplacement d’exception dans La Ferté-sous-Jouarre (77260). Son intérieur se divise en quatre chambres, une cuisine et deux salles de bains.Cette maison compte 2 niveaux. Elle est neuve.La maison est située dans un secteur prisé. Il y a des écoles de tous types à moins de 10 minutes à pied, tout comme une structure d’accueil pour les enfants en bas âge. Niveau transports, on trouve la gare La Ferté-sous-Jouarre à proximité. On trouve une bibliothèque, un tennis, des commerces, des boulangeries, trois supermarchés, des épiceries et une poissonnerie dans les environs. Le marché Boulevard de Turenne anime le quartier.Elle est proposée à l’achat pour 284 000 €.Prenez contact avec notre constructeur (RUBAL Alan : (Numéro supprimé)) pour plus d’informations sur la maison.Annonce proposée par un Agent Commercial Partenaire.
L’actualité immobilière à Chamigny
27/11/2023
02/11/2023
30/10/2023
20/10/2023
16/10/2023
16/10/2023