Maison à construire à Châtres (77610)
Images
Description
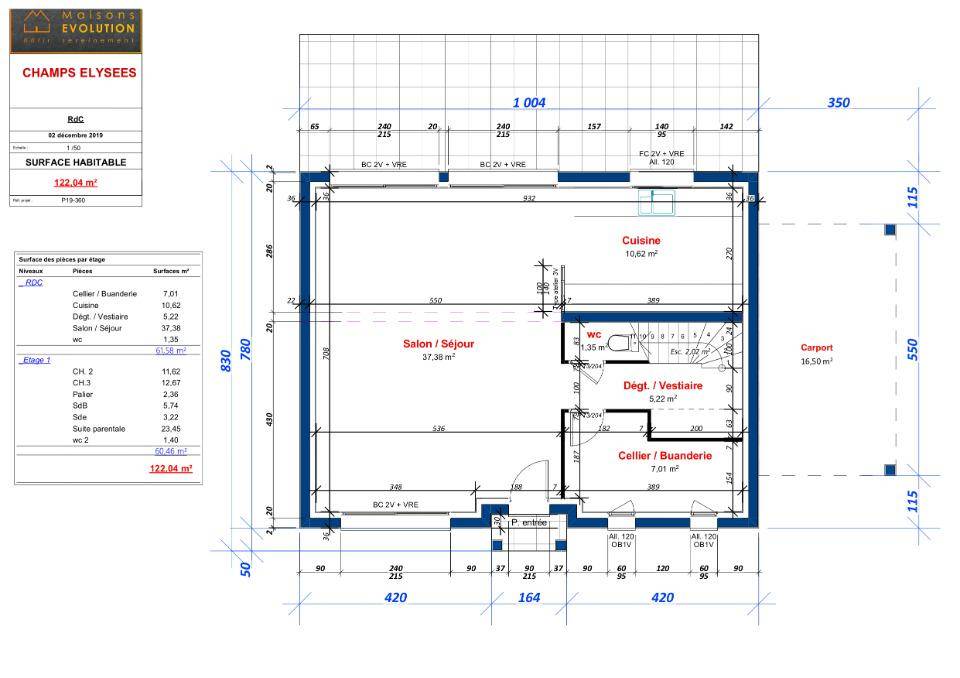
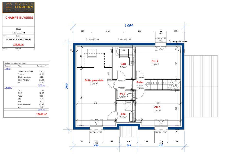
Châtres : maison F6 (122 m²) à vendre
EMPLACEMENT PRIVILÉGIÉ - MAISON 6 PIÈCES NEUVE
Au pied de la station Tournan du RER E (40 min de Paris), nous sommes heureux de vous proposer cette maison de 6 pièces de 122 m² et de 585 m² de terrain en vente bénéficiant d'un emplacement d'exception dans Châtres (77610).
C'est une maison de 2 niveaux. Son intérieur compte quatre chambres, une cuisine et deux salles de bains. La maison est neuve.
La maison se situe dans un quartier attractif. Il y a l'École Primaire Robert Fery à moins de 10 minutes à pied. Côté transports en commun, on trouve la ligne de RER E (Tournan) ainsi que quatre gares à moins de 10 minutes en voiture.
Elle est proposée à l'achat pour 389 000 €.
Contactez notre agence (Stephanie SEBAG : (Numéro supprimé)) pour plus de renseignements sur le bien. Donnez vie à vos projets immobiliers avec Maisons Evolution Mareuil-lès-Meaux.
Annonce proposée par un Agent Commercial Partenaire.
Logement susceptibles de vous intéresser
Nous vous proposons de découvrir aussi cette sélection de logements situés à moins de 10km de Châtres et qui seraient susceptibles de vous intéresser.
Guignes
TERRAINGuignes : terrain de 748 m² en venteEMPLACEMENT PRIVILÉGIÉ – PROCHE DE CRÉTEILÀ côté de la gare de Verneuil-l’Étang (Paris à 30 min avec le Transilien P) à Guignes (77390), grand terrain. Réalisez-y la maison de vos rêves. Il bénéficie d’une exposition sud-ouest. Dans un quartier attractif, ce terrain bénéficiant d’un emplacement privilégié est proche des écoles et des commerces. On trouve l’École Élémentaire André Siméon et l’École Maternelle André Siméon dans la commune. Niveau transports en commun, il y a deux gares (Verneuil-l’Étang et Mormant) à moins de 10 minutes en voiture. Il y a deux boulangeries, quatre commerces, un bureau de poste et deux épiceries à proximité.Son prix de vente est de 129 000 €. Prenez contact avec Alan RUBAL ((Numéro supprimé)) pour plus d’informations sur le terrain ou sur les modalités de vente. Maisons France Confort Magny-le-Hongre vous accompagne dans toutes vos démarches et dans tous vos projets immobiliers.Annonce proposée par un Agent Commercial Partenaire.
Guignes
TERRAIN ET MAISONVENTE d’une maison T7 (120 m²) à GuignesEMPLACEMENT PRIVILÉGIÉ – MAISON 7 PIÈCES NEUVEAu pied du Transilien P (gare de Verneuil-l’Étang, 30 min de Paris), votre agence Maisons France Confort Magny-le-Hongre est heureuse de vous présenter en vente, bénéficiant d’un emplacement privilégié dans Guignes (77390), cette maison de 7 pièces de 120 m². Elle comporte cinq chambres, une cuisine et deux salles de bains.Le terrain du bien s’étend sur 748 m².Il s’agit d’une maison de 2 niveaux. Elle est neuve.La maison est située dans un quartier convoité. On y trouve l’École Élémentaire André Siméon et l’École Maternelle André Siméon. Niveau transports en commun, on trouve les gares Verneuil-l’Étang et Mormant à moins de 10 minutes en voiture. Il y a deux boulangeries, quatre commerces, deux épiceries et un bureau de poste à quelques minutes à peine.Son prix de vente est de 345 000 €.Contactez Alan RUBAL ((Numéro supprimé)) pour tout renseignement sur la maison, sur les modalités de vente ou sur les démarches à suivre.Annonce proposée par un Agent Commercial Partenaire.
Guignes
TERRAIN ET MAISONVENTE d’une maison de 5 pièces (105 m²) à GuignesEMPLACEMENT PRIVILÉGIÉ – MAISON 5 PIÈCES NEUVEEn vente : à proximité du Transilien P (gare de Verneuil-l’Étang, 30 min de Paris), bénéficiant d’un emplacement d’exception dans Guignes (77390), Maisons France Confort Magny-le-Hongre vous propose cette maison de 5 pièces de plain-pied de 105 m².Son intérieur inclut quatre chambres, une cuisine et deux salles de bains. Cette maison est neuve.Le terrain de la propriété s’étend sur 748 m².La maison se situe dans un secteur attractif. On y trouve l’École Élémentaire André Siméon et l’École Maternelle André Siméon. Côté transports, on trouve les gares Verneuil-l’Étang et Mormant à moins de 10 minutes en voiture. Il y a deux boulangeries, quatre commerces, deux épiceries et un bureau de poste à proximité de la maison.Elle est à vendre pour la somme de 318 000 €.Contactez Alan RUBAL (tél : (Numéro supprimé)) pour tout renseignement sur la propriété. Concrétisez vos projets immobiliers avec Maisons France Confort Magny-le-Hongre.Annonce proposée par un Agent Commercial Partenaire.
Guignes
TERRAIN ET MAISONVENTE : maison de 8 pièces (145 m²) à GuignesEMPLACEMENT PRIVILÉGIÉ – MAISON 8 PIÈCES NEUVEÀ proximité du Transilien P (gare de Verneuil-l’Étang, 30 min de Paris), à vendre bénéficiant d’un emplacement privilégié dans Guignes (77390), nous vous proposons cette maison de 8 pièces de 145 m² et de 748 m² de terrain. Elle comporte six chambres, une cuisine et deux salles de bains.Cette maison possède 2 niveaux. Elle est neuve.Cette maison se situe dans un secteur convoité. L’École Élémentaire André Siméon et l’École Maternelle André Siméon y sont implantées. Côté transports, il y a deux gares (Verneuil-l’Étang et Mormant) à moins de 10 minutes en voiture. On trouve deux boulangeries, quatre commerces, deux épiceries et un bureau de poste dans les environs.Elle est à vendre pour la somme de 390 000 €.Prenez contact avec Alan RUBAL ((Numéro supprimé)) pour toute information sur la maison ou sur les démarches à suivre. Donnez vie à vos projets immobiliers avec Maisons France Confort Magny-le-Hongre.Annonce proposée par un Agent Commercial Partenaire.
Guignes
TERRAIN ET MAISONVENTE : maison F5 (90 m²) à GuignesEMPLACEMENT PRIVILÉGIÉ – MAISON 5 PIÈCES NEUVEProche de la gare de Verneuil-l’Étang (Paris à 30 min avec le Transilien P), votre agence Maisons France Confort Magny-le-Hongre est ravie de vous proposer cette maison de 5 pièces de plain-pied de 90 m² à vendre, bénéficiant d’un emplacement privilégié dans Guignes (77390). Elle inclut trois chambres, une cuisine et deux salles de bains.Le terrain de la maison s’étend sur 748 m².Cette maison est neuve.Cette maison se trouve dans un secteur convoité. L’École Élémentaire André Siméon et l’École Maternelle André Siméon y sont implantées. Niveau transports, il y a deux gares (Verneuil-l’Étang et Mormant) à moins de 10 minutes en voiture. On trouve deux boulangeries, quatre commerces, un bureau de poste et deux épiceries à quelques minutes.Elle est à vendre pour la somme de 291 000 €.N’hésitez pas à prendre contact avec notre constructeur (RUBAL Alan : (Numéro supprimé)) pour toute information sur la maison. Concrétisez vos projets immobiliers avec Maisons France Confort Magny-le-Hongre.Annonce proposée par un Agent Commercial Partenaire.
Guignes
TERRAIN ET MAISONGuignes : maison F6 (122 m²) à vendreEMPLACEMENT PRIVILÉGIÉ – MAISON 6 PIÈCES NEUVEÀ côté du Transilien P (gare de Verneuil-l’Étang, 30 min de Paris), laissez vous charmer par à vendre, bénéficiant d’un emplacement d’exception dans Guignes (77390), cette maison de 6 pièces de 122 m² et de 748 m² de terrain. Son intérieur dispose de quatre chambres, d’une cuisine et de deux salles de bains.C’est une maison de 2 niveaux. Elle est neuve.La maison se trouve dans un quartier convoité. L’École Élémentaire André Siméon et l’École Maternelle André Siméon y sont implantées. Niveau transports en commun, il y a les gares Verneuil-l’Étang et Mormant à moins de 10 minutes en voiture. On trouve deux boulangeries, quatre commerces, deux épiceries et un bureau de poste à proximité du logement.Elle est à vendre pour la somme de 348 600 €.Prenez contact avec Alan RUBAL (tél : (Numéro supprimé)) pour toute question sur la maison ou sur les démarches à suivre. Maisons France Confort Magny-le-Hongre vous accompagne à toutes les étapes de l’achat et dans tous vos projets immobiliers.Annonce proposée par un Agent Commercial Partenaire.
Tournan-en-Brie
TERRAINVENTE : terrain de 503 m² à Tournan-en-BrieEMPLACEMENT PRIVILÉGIÉ – PROCHE DE MONTREUILÀ Tournan-en-Brie (77220) à proximité du RER E (station Tournan, 40 min de Paris), donnez vie à la maison de vos rêves sur ce terrain de 503 m². Il est orienté au sud-ouest. Dans un quartier convoité, le terrain bénéficiant d’un emplacement d’exception est proche des commerces et des écoles. Il y a des établissements scolaires maternelles et élémentaires à moins de 10 minutes à pied, tout comme trois crèches. Niveau transports, on trouve la station de RER Tournan (ligne E) ainsi que la gare Tournan-en-Brie juste à côté. On trouve une bibliothèque, un tennis, des commerces, trois boulangeries, un supermarché, un bureau de poste et une boucherie-charcuterie à quelques minutes. Le marché Place du marché a lieu chaque samedi matin.Son prix de vente est de 190 000 €. Contactez notre agence (RUBAL Alan : (Numéro supprimé)) pour obtenir de plus amples renseignements sur le terrain.Annonce proposée par un Agent Commercial Partenaire.
Tournan-en-Brie
TERRAIN ET MAISONVENTE : maison de 7 pièces (120 m²) à Tournan-en-BrieEMPLACEMENT PRIVILÉGIÉ – MAISON 7 PIÈCES NEUVEÀ quelques minutes de la station Tournan du RER E (40 min de Paris), ayez le coup de coeur pour cette maison de 7 pièces de 120 m² à vendre bénéficiant d’un emplacement d’exception dans Tournan-en-Brie (77220).Cette maison possède 2 niveaux. Elle comporte cinq chambres, une cuisine et deux salles de bains. La maison est neuve.Le terrain du bien s’étend sur 503 m².Cette maison se trouve dans un quartier recherché. Il y a des écoles maternelles et élémentaires à moins de 10 minutes à pied, tout comme trois crèches. Côté transports, on trouve la station de RER Tournan (ligne E) ainsi que la gare Tournan-en-Brie dans les environs. Il y a une bibliothèque, un tennis, des commerces, trois boulangeries, un supermarché, deux épiceries et une boucherie-charcuterie à quelques minutes du logement. Ne manquez pas le marché Place du marché chaque samedi matin.Son prix de vente est de 406 000 €.N’hésitez pas à prendre contact avec notre agence (Alan RUBAL : (Numéro supprimé)) pour obtenir de plus amples renseignements sur la maison, sur les démarches à suivre ou sur les modalités de vente. Maisons France Confort Magny-le-Hongre vous accompagne dans tous vos projets immobiliers et à toutes les étapes de l’achat.Annonce proposée par un Agent Commercial Partenaire.
Tournan-en-Brie
TERRAIN ET MAISONVENTE d’une maison T7 (120 m²) à Tournan-en-BrieEMPLACEMENT PRIVILÉGIÉ – MAISON 7 PIÈCES NEUVEÀ deux pas du RER E (station Tournan, 40 min de Paris), votre agence Maisons France Confort Magny-le-Hongre est ravie de vous proposer cette maison de 7 pièces de 120 m² et de 503 m² de terrain bénéficiant d’un emplacement d’exception dans Tournan-en-Brie (77220).Cette maison comporte 2 niveaux. Son intérieur compte quatre chambres, une cuisine et deux salles de bains. La maison est neuve.La maison se situe dans un quartier attractif. Il y a des écoles maternelles et élémentaires à moins de 10 minutes à pied, tout comme trois structures d’accueil pour les enfants en bas âge. Niveau transports, on trouve la station de RER Tournan (ligne E) ainsi que la gare Tournan-en-Brie à quelques pas du bien. Il y a une bibliothèque, un tennis, des commerces, trois boulangeries, un supermarché, une boucherie-charcuterie et un bureau de poste à proximité du logement. Enfin, le marché Place du marché anime le quartier chaque samedi matin.Elle est à vendre pour la somme de 406 000 €.N’hésitez pas à prendre contact avec Alan RUBAL ((Numéro supprimé)) pour obtenir de plus amples renseignements sur la maison, sur les démarches à suivre ou sur les modalités de vente. Maisons France Confort Magny-le-Hongre vous accompagne à toutes les étapes de l’achat et dans tous vos projets immobiliers.Annonce proposée par un Agent Commercial Partenaire.
L’actualité immobilière à Châtres
27/11/2023
02/11/2023
30/10/2023
20/10/2023
16/10/2023
16/10/2023