Maison à construire à Chelles (77500)
Images
Description
Contactez Stéphanie SEBAG de l'agence Maisons Evolution de Mareuil-lès-Meaux au (Numéro supprimé) pour avoir plus d'informations sur ce projet.
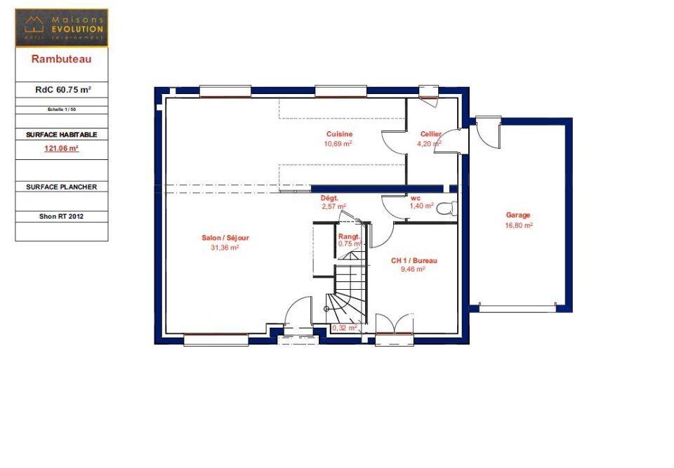
Très jolie maison à étage de 124 m² habitables avec garage accolé idéalement située sur la commune de CHELLES
Elle est composée de 5 chambres au total dont une grande suite parentale avec salle d'eau, de 3 salles de bains au total, de deux WC séparés et d'un grand salon-séjour lumineux avec cuisine ouverte donnant sur un cellier puis sur le garage.
Les plans sont entièrement modifiables selon vos souhaits, en agence ou visioconférence. Nous vous proposons un véritable accompagnement de qualité tout au long de votre projet.
Dessinons ensemble votre future maison !
Tel : (Numéro supprimé)
Annonce proposée par un Agent Commercial Partenaire.
Logement susceptibles de vous intéresser
Nous vous proposons de découvrir aussi cette sélection de logements situés à moins de 10km de Chelles et qui seraient susceptibles de vous intéresser.
Lagny-sur-Marne
TERRAINConches sur Gondoire 77600 – En exclusivité – Terrain à bâtir d’une superficie de 4000 m² environ avec vue sur la vallée, dont 1000 m² constructibles (Façade de 23 mètres, possibilité de construction au sol jusqu’à 50% de la superficie du terrain , possibilité de faire une double maison et 11 mètre de haut).Prix de vente : 360 000 euros honoraires charge vendeur. Vous profitez d’un environnement privilégié.Pour visiter et vous accompagner dans votre projet, contactez Christophe PESENTI, au (Numéro supprimé) ou, par courriel à (Email supprimé).Selon l’article L.561.5 du Code Monétaire et Financier, pour l’organisation de la visite, la présentation d’une pièce d’identité vous sera demandée.Cette présente annonce a été rédigée sous la responsabilité éditoriale de Christophe PESENTI agissant en qualité de conseiller immobilier indépendant sous portage salarial auprès de SAS PROPRIETES PRIVEES, au capital de 44 920 euros, ZAC LE CHÊNE FERRÉ – 44 ALLÉE DES CINQ CONTINENTS 44120 VERTOU; SIRET 487 624 777 00040, RCS Nantes. Carte Professionnelle Transactions sur immeubles et fonds de commerce (T) et Gestion immobilière (G) n°CPI 4401 2016 000 010 388 délivrée par la CCI Nantes – Saint Nazaire. Compte séquestre n(Numéro supprimé)67 BPA SAINT-SEBASTIEN-SUR-LOIRE (44230). Garantie GALIAN-SMABTP – 89 rue de la Boétie, 75008 Paris – n°28137 J pour 2 000 000 euros pour T et 120 000 euros pour G. Assurance responsabilité civile professionnelle par GALIAN-SMABTP n° de police 28137.JMandat réf : 413165 – Le professionnel garantit et sécurise votre projet immobilier.
Claye-Souilly
TERRAINVENTE d’un terrain de 441 m² à Fresnes-sur-MarneIDÉALEMENT SITUÉ – VUE SANS VIS-À-VISÀ proximité de la gare d’Esbly (Paris à 30 min par le Transilien P) à Fresnes-sur-Marne (77410), terrain de 441 m². Il est prêt à accueillir la maison de vos rêves pour toute la famille. Il profite d’une vue sans vis-à-vis. Dans un secteur attractif, ce terrain idéalement situé est proche des commerces et des écoles. L’École Primaire Gabin Chambost est implantée à moins de 10 minutes à pied. Niveau transports, on trouve trois stations de RER (Chessy-Marne-La-Vallée – ligne A, Mitry-Claye – ligne B – et Val-D’Europe – ligne A) ainsi que sept gares à moins de 10 minutes en voiture. Il y a un tennis, une bibliothèque, une boulangerie et un bureau de poste à proximité.Il est proposé à l’achat pour 210 000 €. Prenez contact avec Alan RUBAL ((Numéro supprimé)) pour plus de renseignements sur le terrain ou sur les démarches à suivre. Maisons France Confort Magny-le-Hongre est là pour vous accompagner dans tous vos projets immobiliers.Annonce proposée par un Agent Commercial Partenaire.
Claye-Souilly
TERRAIN ET MAISONFresnes-sur-Marne : maison de 7 pièces (120 m²) à vendreIDÉALEMENT SITUÉE – MAISON 7 PIÈCES NEUVEÀ côté du Transilien P (gare d’Esbly, 30 min de Paris), Maisons France Confort Magny-le-Hongre vous présente à vendre, idéalement située dans Fresnes-sur-Marne (77410), cette maison de 7 pièces de 120 m². Son intérieur inclut cinq chambres, une cuisine et deux salles de bains.Le terrain de la maison s’étend sur 441 m².Il s’agit d’une maison de 2 niveaux. Elle est neuve.La maison est située dans un secteur recherché. L’École Primaire Gabin Chambost est implantée à moins de 10 minutes à pied. Niveau transports en commun, on trouve trois stations de RER (Chessy-Marne-La-Vallée – ligne A, Mitry-Claye – ligne B – et Val-D’Europe – ligne A) ainsi que sept gares à moins de 10 minutes en voiture. Il y a un tennis, une bibliothèque, une boulangerie et un bureau de poste à proximité.Son prix de vente est de 426 000 €.N’hésitez pas à prendre contact avec Alan RUBAL (tél : (Numéro supprimé)) pour toute question sur la maison ou sur les modalités de vente.Annonce proposée par un Agent Commercial Partenaire.
Claye-Souilly
TERRAIN ET MAISONVENTE : maison de 5 pièces (90 m²) à Fresnes-sur-MarneIDÉALEMENT SITUÉE – MAISON 5 PIÈCES NEUVEÀ côté du Transilien P (gare d’Esbly, 30 min de Paris), nous vous présentons cette maison de 5 pièces de 90 m² et de 441 m² de terrain à vendre idéalement située dans Fresnes-sur-Marne (77410).Cette maison compte 2 niveaux. Son intérieur comporte trois chambres, une cuisine et une salle de bains. Cette maison est neuve.La maison se situe dans un quartier attractif. Il y a l’École Primaire Gabin Chambost à moins de 10 minutes à pied. Niveau transports en commun, on trouve les stations de RER Chessy-Marne-La-Vallée (ligne A), Mitry-Claye (ligne B) et Val-D’Europe (ligne A) ainsi que sept gares à moins de 10 minutes en voiture. On trouve un tennis, une bibliothèque, une boulangerie et un bureau de poste à proximité.Son prix de vente est de 372 000 €.N’hésitez pas à prendre contact avec Alan RUBAL ((Numéro supprimé)) pour obtenir de plus amples informations sur la maison ou sur les modalités de vente. Maisons France Confort Magny-le-Hongre vous accompagne à toutes les étapes de votre projet et dans toutes vos démarches.Annonce proposée par un Agent Commercial Partenaire.
Claye-Souilly
TERRAIN ET MAISONVENTE : maison T5 (80 m²) à Fresnes-sur-MarneIDÉALEMENT SITUÉE – MAISON 5 PIÈCES NEUVEÀ côté du Transilien P (gare d’Esbly, 30 min de Paris), ayez le coup de coeur pour en vente, idéalement située dans Fresnes-sur-Marne (77410), cette maison de 5 pièces de plain-pied de 80 m² et de 441 m² de terrain.Conçue de plain-pied, elle inclut trois chambres, une cuisine et une salle de bains. Cette maison est neuve.La maison se situe dans un quartier convoité. Il y a l’École Primaire Gabin Chambost à moins de 10 minutes à pied. Niveau transports en commun, on trouve trois stations de RER (Chessy-Marne-La-Vallée – ligne A, Mitry-Claye – ligne B – et Val-D’Europe – ligne A) ainsi que sept gares à moins de 10 minutes en voiture. On trouve un tennis, une bibliothèque, une boulangerie et un bureau de poste à quelques minutes du logement.Elle est à vendre pour la somme de 354 000 €.Contactez Alan RUBAL (tél : (Numéro supprimé)) pour tout renseignement sur le bien, sur les modalités de vente ou sur les démarches à suivre.Annonce proposée par un Agent Commercial Partenaire.
Thorigny-sur-Marne
TERRAIN ET MAISONThorigny-sur-Marne : maison F7 (120 m²) à vendreMAISON 7 PIÈCES NEUVE – PROCHE DE PARISEn vente : au pied de la gare de Lagny-Thorigny (Paris à 25 min avec le Transilien P), à Thorigny-sur-Marne (77400), Maisons France Confort Magny-le-Hongre vous propose cette maison de 7 pièces de 120 m².Cette maison comporte 2 niveaux. Elle est composée de cinq chambres, d’une cuisine et de deux salles de bains. La maison est neuve.Le terrain du bien est de 400 m².Il y a plusieurs établissements scolaires (maternelle, élémentaire et collège) à moins de 10 minutes à pied, tout comme trois structures d’accueil pour la petite enfance. Côté transports, on trouve la gare Lagny-Thorigny à quelques pas du bien. Il y a une bibliothèque, un tennis, des commerces, des boulangeries, un supermarché, des boucheries-charcuteries et deux bureaux de poste dans les environs.Elle est proposée à l’achat pour 415 000 €.Contactez notre agence (Alan RUBAL : (Numéro supprimé)) pour obtenir de plus amples renseignements sur la maison ou sur les modalités de vente. Maisons France Confort Magny-le-Hongre vous accompagne dans tous vos projets immobiliers et dans toutes vos démarches.Annonce proposée par un Agent Commercial Partenaire.
Thorigny-sur-Marne
TERRAIN ET MAISONVENTE : maison F6 (115 m²) à Thorigny-sur-MarnePROCHE DE PARIS – MAISON 6 PIÈCES NEUVEÀ quelques minutes de la gare de Lagny-Thorigny (Paris à 25 min par le Transilien P), en vente à Thorigny-sur-Marne (77400), Maisons France Confort Magny-le-Hongre vous propose cette maison de 6 pièces de 115 m².Il s’agit d’une maison de 2 niveaux. Son intérieur propose quatre chambres, une cuisine et deux salles de bains. Cette maison est neuve.Le terrain du bien s’étend sur 400 m².Plusieurs établissements scolaires (maternelle, élémentaire et collège) se trouvent à moins de 10 minutes à pied, tout comme trois structures d’accueil pour les tout-petits. Niveau transports en commun, il y a la gare Lagny-Thorigny dans les environs. On trouve une bibliothèque, un tennis, des commerces, des boulangeries, un supermarché, deux bureaux de poste et des boucheries-charcuteries à quelques minutes de la maison.Son prix de vente est de 406 000 €.Contactez notre agence (Alan RUBAL : (Numéro supprimé)) pour toute question sur le bien. Maisons France Confort Magny-le-Hongre est là pour vous accompagner dans toutes vos démarches.Annonce proposée par un Agent Commercial Partenaire.
Thorigny-sur-Marne
TERRAIN ET MAISONVENTE : maison de 4 pièces (70 m²) à Thorigny-sur-MarnePROCHE DE PARIS – MAISON 4 PIÈCES NEUVEEn vente : proche de la gare de Lagny-Thorigny (Paris à 25 min par le Transilien P), Maisons France Confort Magny-le-Hongre vous présente cette maison de 4 pièces de plain-pied de 70 m² à Thorigny-sur-Marne (77400).Elle propose deux chambres, une cuisine et une salle de bains. Cette maison est neuve.Le terrain du bien s’étend sur 400 m².Il y a plusieurs établissements scolaires (maternelle, élémentaire et collège) à moins de 10 minutes à pied, tout comme trois structures d’accueil pour les tout-petits. Niveau transports, on trouve la gare Lagny-Thorigny à proximité. On trouve une bibliothèque, un tennis, des commerces, des boulangeries, un supermarché, des épiceries et des boucheries-charcuteries à quelques minutes de la maison.Elle est proposée à l’achat pour 325 000 €.N’hésitez pas à prendre contact avec Alan RUBAL ((Numéro supprimé)) pour tout renseignement sur la propriété, sur les modalités de vente ou sur les démarches à suivre.Annonce proposée par un Agent Commercial Partenaire.
Thorigny-sur-Marne
TERRAIN ET MAISONMaison T8 (145 m²) en vente à Thorigny-sur-MarneMAISON 8 PIÈCES NEUVE – PROCHE DE PARISÀ 635 m de la gare de Lagny-Thorigny (Paris à 25 min avec le Transilien P), votre agence Maisons France Confort Magny-le-Hongre est ravie de vous présenter cette maison de 8 pièces de 145 m² et de 400 m² de terrain à vendre à Thorigny-sur-Marne (77400).Il s’agit d’une maison de 2 niveaux. Son intérieur comporte six chambres, une cuisine et deux salles de bains. La maison est neuve.Il y a plusieurs écoles (maternelle, élémentaire et collège) à moins de 10 minutes à pied, tout comme trois structures d’accueil pour les tout-petits. Côté transports, on trouve la gare Lagny-Thorigny dans les environs. On trouve une bibliothèque, un tennis, des commerces, des boulangeries, un supermarché, des épiceries et des boucheries-charcuteries à proximité.Elle est à vendre pour la somme de 460 000 €.Contactez Alan RUBAL (tél : (Numéro supprimé)) pour toute question sur cette maison ou sur les modalités de vente.Annonce proposée par un Agent Commercial Partenaire.
L’actualité immobilière à Chelles
27/11/2023
02/11/2023
30/10/2023
20/10/2023
16/10/2023
16/10/2023