Maison à construire à Claye-Souilly (77410)
Images
Description
Opportunité exceptionnelle à saisir ! Projet de construction d'une maison d'exception BALENCY sur mesure
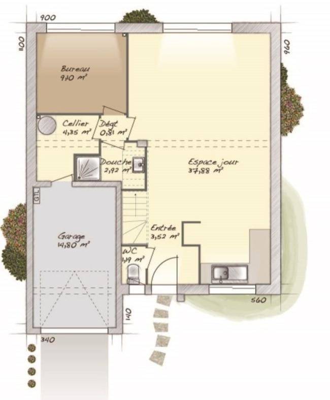
Dans un cadre privilégié, découvrez ce projet unique de construction d'une maison sur mesure, pensée pour allier élégance, confort et prestations haut de gamme. Sur un terrain de 320 m², cette future propriété offrira une surface habitable de 128 m², conçue selon vos envies et vos exigences.
Caractéristiques principales :
- Architecture contemporaine ou classique selon vos préférences
- Matériaux nobles et finitions de qualité supérieure
- Grands volumes lumineux avec baies vitrées et hauteurs sous plafond
- Cuisine équipée haut de gamme ouverte sur un vaste espace de vie
- Suites parentales avec dressing et salle de bain privative
- Espaces personnalisables : bureau, salle de sport, home cinéma...
- Système de chauffage et climatisation gainable pour un confort thermique optimal et une intégration discrète digne d'un palace
- Domotique intégrée pour un confort optimal
- Jardin paysager avec possibilité de piscine, terrasse, pool house...
Localisation idéale :
Située dans un environnement calme et résidentiel, à proximité des commodités, écoles, transports et axes principaux, cette maison incarne le parfait équilibre entre tranquillité et vie active.
Un projet clé en main :
Accompagnement complet par des professionnels reconnus : architectes, artisans, décorateurs. Vous choisissez, nous réalisons.
Pour plus d'informations, merci de nous contacter.
Anda Nistor: (Numéro supprimé)
Annonce proposée par un Agent Commercial Partenaire.
Logement susceptibles de vous intéresser
Nous vous proposons de découvrir aussi cette sélection de logements situés à moins de 10km de Claye-Souilly et qui seraient susceptibles de vous intéresser.
Claye-Souilly
TERRAIN ET MAISONVENTE : maison de 4 pièces (78 m²) à Claye-SouillyParis à 25 min (Transilien K, Mitry-Claye) – Bénéficiant d’un emplacement d’exception dans Claye-Souilly (77410), maison neuve 4 pièces en vente avec 2 niveaux, une surface de 78 m² et de 1 324 m² de terrain. Son intérieur est composé de trois chambres, d’une cuisine et d’une salle de bains.À dix minutes : RER B (Mitry-Claye), gares, établissements scolaires, bassin de natation, tennis, boulangerie, commerces, épicerie, boucheries-charcuteries et supérette. Marché Place de Gaulle hebdomadaire. Paris à 26 km.Cette maison de 4 pièces est proposée à l’achat pour 442 000 €.Contactez notre agence (Stephanie SEBAG : (Numéro supprimé)) pour plus de renseignements sur la maison, sur les modalités de vente ou sur les démarches à suivre.Annonce proposée par un Agent Commercial Partenaire.
Claye-Souilly
TERRAIN ET MAISONVENTE d’une maison F7 (124 m²) à Claye-SouillyParis à 25 min (Transilien K, Mitry-Claye) – Maison neuve 7 pièces à vendre bénéficiant d’un emplacement privilégié dans Claye-Souilly (77410) avec 2 niveaux, une surface de 124 m² et de 1 324 m² de terrain. Son intérieur propose cinq chambres, une cuisine et trois salles de bains. Vue sur un espace vert.À proximité : RER B (Mitry-Claye), gares, établissements scolaires, bassin de natation, tennis, boulangerie, commerces, bureau de poste, épicerie et boucheries-charcuteries. Marché Place de Gaulle hebdomadaire. Paris à 26 km.Cette maison de 7 pièces est à vendre pour la somme de 462 000 €.Contactez Stephanie SEBAG (tél : (Numéro supprimé)) pour obtenir de plus amples informations sur la maison. Maisons Evolution Mareuil-lès-Meaux vous accompagne dans toutes vos démarches et dans tous vos projets immobiliers.Annonce proposée par un Agent Commercial Partenaire.
Claye-Souilly
TERRAIN ET MAISONClaye-Souilly : maison T6 (105 m²) à vendreParis à 25 min (Transilien K, Mitry-Claye) – À découvrir bénéficiant d’un emplacement d’exception dans Claye-Souilly (77410) : maison neuve 6 pièces à vendre, 2 niveaux, 105 m² et 1 324 m² de terrain. Son intérieur propose quatre chambres, une cuisine et deux salles de bains.Proche RER B (Mitry-Claye), gares, établissements scolaires, bassin de natation, tennis, boulangerie, commerces, supérette, boucheries-charcuteries et bureau de poste. Marché Place de Gaulle hebdomadaire. Paris à 26 km.Cette maison de 6 pièces est proposée à l’achat pour 477 000 €.Contactez notre agence (Stephanie SEBAG : (Numéro supprimé)) pour toute information sur la maison ou sur les modalités de vente. Concrétisez vos projets immobiliers avec Maisons Evolution Mareuil-lès-Meaux.Annonce proposée par un Agent Commercial Partenaire.
Claye-Souilly
TERRAIN ET MAISONClaye-Souilly : maison de 6 pièces (89 m²) à vendreParis à 25 min (Transilien K, Mitry-Claye) – À découvrir bénéficiant d’un emplacement privilégié dans Claye-Souilly (77410) : maison neuve 6 pièces en vente, 2 niveaux, 89 m² de surface et 1 324 m² de terrain. Son intérieur inclut quatre chambres, une cuisine et une salle de bains.À dix minutes : RER B (Mitry-Claye), gares, établissements scolaires, bassin de natation, tennis, boulangerie, commerces, épicerie, bureau de poste et boucheries-charcuteries. Marché Place de Gaulle hebdomadaire. Paris à 26 km.Cette maison de 6 pièces est à vendre pour la somme de 437 000 €.Contactez notre agence (SEBAG Stephanie : (Numéro supprimé)) pour toute information sur la maison. Maisons Evolution Mareuil-lès-Meaux est là pour vous accompagner dans tous vos projets immobiliers.Annonce proposée par un Agent Commercial Partenaire.
Claye-Souilly
TERRAIN ET MAISONMaison de 6 pièces (121 m²) à vendre à Claye-SouillyParis à 25 min (Transilien K, Mitry-Claye) – Bénéficiant d’un emplacement privilégié dans Claye-Souilly (77410), maison neuve en vente de 6 pièces, 2 niveaux, 121 m² et 1 324 m² de terrain. Son intérieur compte cinq chambres, une cuisine et deux salles de bains.Proche RER B (Mitry-Claye), gares, établissements scolaires, bassin de natation, tennis, boulangerie, commerces, épicerie, bureau de poste et supérette. Marché Place de Gaulle hebdomadaire. Paris à 26 km.Le prix de vente de cette maison de 6 pièces est de 477 000 €.Prenez contact avec Stephanie SEBAG ((Numéro supprimé)) pour toute question sur la maison ou sur les démarches à suivre. Concrétisez vos projets immobiliers avec Maisons Evolution Mareuil-lès-Meaux.Annonce proposée par un Agent Commercial Partenaire.
Claye-Souilly
TERRAINVotre agence Maisons Evolution de Mareuil-les-Meaux vous propose, grâce à ses partenaires fonciers, sur la commune recherchée de CLAYE SOUILLY, un terrain constructible de 1324 m² au coeur d’un quartier résidentiel et calme, verdoyant et recherché.Ce terrain est à proximité immédiate des écoles, commerces et centre ville, tous accessibles à pied.Pour plus d’informations contactez Stéphanie SEBAG au (Numéro supprimé). Dessinons ensemble votre future maison !Annonce proposée par un Agent Commercial Partenaire.
Thorigny-sur-Marne
TERRAINTerrain de 398 m² en vente à Thorigny-sur-MarneIDÉALEMENT SITUÉ – VUE DÉGAGÉEÀ Thorigny-sur-Marne (77400) à proximité de la gare de Lagny-Thorigny (Paris à 25 min avec le Transilien P), venez découvrir ce terrain de 398 m². Il profite d’une vue dégagée et est exposé au sud-ouest. Dans un secteur recherché, le terrain idéalement situé est proche des commerces et des écoles. Il y a plusieurs établissements scolaires (maternelle, élémentaire et collège) à moins de 10 minutes à pied, tout comme trois structures d’accueil pour la petite enfance. Niveau transports, on trouve la gare Lagny-Thorigny dans les alentours. Il y a une bibliothèque, un tennis, des commerces, des boulangeries, un supermarché, deux bureaux de poste et des épiceries à quelques minutes.Ce terrain est à vendre pour la somme de 189 000 €. Prenez contact avec Hugo NGUYEN (tél : (Numéro supprimé)) pour obtenir de plus amples informations sur le terrain ou sur les démarches à suivre.Annonce proposée par un Agent Commercial Partenaire.
Lagny-sur-Marne
TERRAINVENTE : terrain de 598 m² à Lagny-sur-MarneIDÉALEMENT SITUÉ – VUE DÉGAGÉEÀ proximité du Transilien P (gare de Lagny-Thorigny, 25 min de Paris) à Lagny-sur-Marne (77400), grand terrain. Réalisez-y la maison de vos rêves. Ce terrain, avec vue dégagée, est exposé au sud-ouest. Dans un secteur prisé, ce terrain idéalement situé est proche des écoles et des commerces. Des écoles (de la maternelle au lycée) sont implantées à moins de 10 minutes à pied, tout comme trois structures d’accueil pour les tout-petits. Niveau transports, il y a le RER A et E ainsi que sept gares à moins de 10 minutes en voiture. On trouve une bibliothèque, un bassin de natation, un tennis, des commerces, des boulangeries, deux supérettes, un bureau de poste et des boucheries-charcuteries à proximité. Enfin, le marché Place du marché anime les environs.Il est à vendre pour la somme de 200 000 €. Prenez contact avec notre agence (Hugo NGUYEN : (Numéro supprimé)) pour toute question sur ce terrain. Maisons France Confort Magny-le-Hongre est là pour vous accompagner dans toutes vos démarches.Annonce proposée par un Agent Commercial Partenaire.
Thorigny-sur-Marne
TERRAIN ET MAISONMaison F5 (90 m²) à vendre à Thorigny-sur-MarneIDÉALEMENT SITUÉE – MAISON 5 PIÈCES NEUVEEn vente : à 635 m de la gare de Lagny-Thorigny (Paris à 25 min avec le Transilien P), venez découvrir cette maison de 5 pièces de 90 m² et de 398 m² de terrain idéalement située dans Thorigny-sur-Marne (77400). Elle dispose de trois chambres, d’une cuisine et d’une salle de bains.Cette maison comporte 2 niveaux. Elle est neuve.Cette maison se trouve dans un quartier attractif. Plusieurs écoles (maternelle, élémentaire et collège) sont implantées à moins de 10 minutes à pied, tout comme trois structures d’accueil pour les enfants en bas âge. Niveau transports, on trouve la gare Lagny-Thorigny dans les environs. Il y a une bibliothèque, un tennis, des commerces, des boulangeries, un supermarché, des boucheries-charcuteries et deux bureaux de poste à quelques minutes.Elle est proposée à l’achat pour 359 000 €.Contactez notre agence (Hugo NGUYEN : (Numéro supprimé)) pour plus d’informations sur la maison. Maisons France Confort Magny-le-Hongre est là pour vous accompagner dans tous vos projets immobiliers.Annonce proposée par un Agent Commercial Partenaire.
L’actualité immobilière à Claye-Souilly
27/11/2023
02/11/2023
30/10/2023
20/10/2023
16/10/2023
16/10/2023