Maison à construire à Combs-la-Ville (77380)
Images
Description
Maison de 6 pièces (115 m²) en vente à Combs-la-Ville
PROCHE GARE - MAISON 6 PIÈCES NEUVE
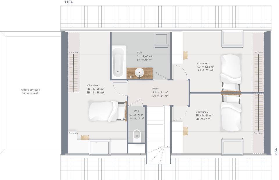
En vente : à proximité de la station Combs-la-Ville-Quincy (Paris à 30 min avec le RER D), votre agence Maisons France Confort Mareuil-lès-Meaux est heureuse de vous présenter cette maison de 6 pièces de 115 m² et de 293 m² de terrain dans Combs-la-Ville (77380), proche de la gare.
Il s'agit d'une maison de 2 niveaux. Son intérieur se divise en quatre chambres, une cuisine et deux salles de bains. Cette maison est neuve.
Plusieurs écoles (maternelle, élémentaire et collège) se trouvent à moins de 10 minutes à pied. Niveau transports en commun, il y a la ligne de RER D (Combs-La-Ville-Quincy) ainsi que huit gares à moins de 10 minutes en voiture. On trouve une bibliothèque, un tennis, une boulangerie, un commerce et un supermarché à proximité.
Son prix de vente est de 362 264 €.
Prenez contact avec notre agence (Cedric YAHIAOUI : (Numéro supprimé)) pour obtenir de plus amples informations sur la maison ou sur les modalités de vente. Maisons France Confort Mareuil-lès-Meaux est là pour vous accompagner dans tous vos projets immobiliers.
Annonce proposée par un Agent Commercial Partenaire.
Logement susceptibles de vous intéresser
Nous vous proposons de découvrir aussi cette sélection de logements situés à moins de 10km de Combs-la-Ville et qui seraient susceptibles de vous intéresser.
Corbeil-Essonnes
TERRAIN ET MAISONMaison F5 (100 m²) en vente à Corbeil-EssonnesMAISON 5 PIÈCES NEUVEÀ vendre : à proximité du RER D (40 min de Paris), à Corbeil-Essonnes (91100), votre agence Maisons France Confort Nemours est ravie de vous proposer cette maison de 5 pièces de 100 m² et de 1 250 m² de terrain.C’est une maison de 2 niveaux. Son intérieur est composé de trois chambres, d’une cuisine et d’une salle de bains. La maison est neuve.On trouve des écoles de tous types (de la maternelle au lycée) à moins de 10 minutes à pied. Côté transports, il y a la station de RER Corbeil-Essonnes (ligne D) ainsi que deux gares (Corbeil-Essonnes et Essonnes Robinson) à proximité. On trouve un bassin de natation, un tennis, des commerces, des boulangeries, deux supermarchés, des épiceries et deux bureaux de poste dans les environs. Le marché Place du Comte Haymon anime le quartier.Elle est à vendre pour la somme de 385 750 €.Prenez contact avec notre agence (Anne DELOHEN : (Numéro supprimé)) pour toute question sur la maison ou sur les modalités de vente.Annonce proposée par un Agent Commercial Partenaire.
Corbeil-Essonnes
TERRAIN ET MAISONVENTE d’une maison F6 (90 m²) à Corbeil-EssonnesMAISON 6 PIÈCES NEUVEÀ vendre : à côté du RER D (40 min de Paris), Maisons France Confort Nemours vous propose cette maison de 6 pièces de 90 m² à Corbeil-Essonnes (91100).Il s’agit d’une maison de 2 niveaux. Elle se divise en trois chambres, une cuisine et deux salles de bains. La maison est neuve.Le terrain de la propriété s’étend sur 1 428 m².Tous les types d’écoles (de la maternelle au lycée) se trouvent à moins de 10 minutes à pied. Niveau transports, il y a la station de RER Corbeil-Essonnes (ligne D) ainsi que deux gares (Corbeil-Essonnes et Essonnes Robinson) dans les alentours. On trouve un bassin de natation, un tennis, des commerces, des boulangeries, deux supermarchés, des épiceries et deux bureaux de poste à quelques minutes. Enfin, le marché Place du Comte Haymon anime les environs.Elle est proposée à l’achat pour 446 368 €.Contactez notre agence (Anne DELOHEN : (Numéro supprimé)) pour tout renseignement sur la maison, sur les modalités de vente ou sur les démarches à suivre. Maisons France Confort Nemours vous accompagne à toutes les étapes de l’achat et dans tous vos projets immobiliers.Annonce proposée par un Agent Commercial Partenaire.
Soignolles-en-Brie
TERRAIN ET MAISONRéalisez votre projet de construction de maison RE 2020 avec PAVILLONS D'ÎLE-DE-FRANCE (constructeur de maisons de gamme et sur-mesure depuis plus de 50 ans) :- Plan sur-mesure et personnalisé de 2 à 5 chambres- Mode de chauffage au choix- Grands choix d'équipements et de prestations- Matériaux de qualité selon les normes en vigueur- Accompagnement dans le choix et l’acquisition du terrainInformations du terrain : Terrain entièrement viabilisé situé à 2 minutes de Coubert et 12 minutes RER MOISSY-CRAMAYEL,Demandez une étude gratuite et personnalisée de votre projet de construction !Contactez Olivier SAMSON au (Numéro supprimé) ou au (Numéro supprimé) (Pavillons d'Île-de-France – Agence de Meaux).Prix avec assurance dommages-ouvrage comprise, hors VRD, terrain viabilisé, assainissement compris, frais de notaire non compris, taxes non comprises, frais divers non compris. Terrain sélectionné et vu pour vous sous réserve de disponibilité et au prix indiqué par notre partenaire foncier. Visuels non contractuels.Cette annonce a été créée et diffusée avec le logiciel VITAHOME.
Corbeil-Essonnes
TERRAIN ET MAISONVENTE d’une maison de 4 pièces (82 m²) à Corbeil-EssonnesMAISON 4 PIÈCES NEUVEÀ quelques minutes du RER D (40 min de Paris), à vendre à Corbeil-Essonnes (91100), notre agence Maisons France Confort Nemours est ravie de vous présenter cette maison de 4 pièces de 82 m² et de 679 m² de terrain. Son intérieur est composé de trois chambres, d’une cuisine et d’une salle de bains.C’est une maison de 2 niveaux. Elle est neuve.Des écoles de tous niveaux sont implantées à moins de 10 minutes à pied. Niveau transports, il y a la station de RER Corbeil-Essonnes (ligne D) ainsi que deux gares (Corbeil-Essonnes et Essonnes Robinson) à proximité. On trouve un bassin de natation, un tennis, des commerces, des boulangeries, deux supermarchés, deux bureaux de poste et des épiceries à quelques minutes du bien. Le marché Place du Comte Haymon anime les environs.Elle est à vendre pour la somme de 332 451 €.N’hésitez pas à prendre contact avec Anne DELOHEN ((Numéro supprimé)) pour toute question sur la maison ou sur les démarches à suivre. Concrétisez vos projets immobiliers avec Maisons France Confort Nemours.Annonce proposée par un Agent Commercial Partenaire.
Corbeil-Essonnes
TERRAINProche Corbeil-Essonnes : terrain de 300 m² en venteTerrain de 300 m² à proximité du RER D (40 min de Paris). Ce terrain se situe proche Corbeil-Essonnes (91100). Le terrain est proche des commerces et des écoles. Il y a des écoles de tous niveaux (de la maternelle au lycée) à moins de 10 minutes à pied. Niveau transports, on trouve la station de RER Corbeil-Essonnes (ligne D) ainsi que deux gares (Corbeil-Essonnes et Essonnes Robinson) à proximité. Il y a un bassin de natation, un tennis, des commerces, des boulangeries, deux supermarchés, deux bureaux de poste et des épiceries dans les environs. Enfin, le marché Place du Comte Haymon anime le quartier.Son prix de vente est de 136 000 €. Prenez contact avec notre agence (RAOUX Jerome : (Numéro supprimé)) pour tout renseignement sur le terrain ou sur les modalités de vente. Concrétisez vos projets immobiliers avec Maisons France Confort Nemours.Annonce proposée par un Agent Commercial Partenaire.
Villecresnes
TERRAIN ET MAISONRéalisez votre projet de construction de maison RE 2020 avec PAVILLONS D'ÎLE-DE-FRANCE (constructeur de maisons de gamme et sur-mesure depuis plus de 50 ans) :- Plan sur-mesure et personnalisé de 2 à 5 chambres- Mode de chauffage au choix- Grands choix d'équipements et de prestations- Matériaux de qualité selon les normes en vigueur- Accompagnement dans le choix et l’acquisition du terrainDemandez une étude gratuite et personnalisée de votre projet de construction !Contactez Stéphane VERHAUVEN au (Numéro supprimé) ou au (Numéro supprimé) (Pavillons d'Île-de-France – Agence de Meaux).Prix avec assurance dommages-ouvrage comprise, hors VRD, terrain viabilisé, assainissement compris, frais de notaire non compris, taxes non comprises, frais divers non compris. Terrain sélectionné et vu pour vous sous réserve de disponibilité et au prix indiqué par notre partenaire foncier. Visuels non contractuels.Cette annonce a été créée et diffusée avec le logiciel VITAHOME.
Grisy-Suisnes
TERRAIN ET MAISONVENTE d’une maison de 4 pièces (78 m²) à Grisy-SuisnesMAISON 4 PIÈCES NEUVEAu pied de la station Gretz-Armainvilliers du RER E (35 min de Paris), nous vous présentons cette maison de 4 pièces de 78 m² à Grisy-Suisnes (77166).Cette maison comporte 2 niveaux. Son intérieur se divise en trois chambres, une cuisine et une salle de bains. La maison est neuve.Le terrain de la propriété s’étend sur 447 m².L’École Élémentaire Champ Fleuri et l’École Maternelle la Ruche sont implantées à moins de 10 minutes à pied. Niveau transports en commun, il y a les lignes de RER E et D ainsi que cinq gares à moins de 10 minutes en voiture. On trouve un tennis, une bibliothèque, deux commerces, une boulangerie, un bureau de poste et deux épiceries à proximité du bien.Elle est proposée à l’achat pour 316 875 €.Prenez contact avec notre agence (DELOHEN Anne : (Numéro supprimé)) pour plus d’informations sur ce bien ou sur les modalités de vente. Maisons France Confort Nemours est là pour vous accompagner à toutes les étapes de l’achat.Annonce proposée par un Agent Commercial Partenaire.
Grisy-Suisnes
TERRAIN ET MAISONVENTE : maison F7 (104 m²) à Grisy-SuisnesMAISON 7 PIÈCES NEUVEÀ proximité de la station Gretz-Armainvilliers (Paris à 35 min avec le RER E), à vendre à Grisy-Suisnes (77166), nous vous présentons cette maison de 7 pièces de 104 m².C’est une maison de 2 niveaux. Son intérieur compte six chambres, une cuisine et deux salles de bains. Cette maison est neuve.Le terrain du bien est de 559 m².Il y a l’École Élémentaire Champ Fleuri et l’École Maternelle la Ruche à moins de 10 minutes à pied. Côté transports en commun, on trouve deux lignes de RER (E et D) ainsi que cinq gares à moins de 10 minutes en voiture. Il y a un tennis, une bibliothèque, deux commerces, une boulangerie, un bureau de poste et deux épiceries dans les environs.Il est à vendre pour la somme de 410 400 €.Contactez notre agence (Anne DELOHEN : (Numéro supprimé)) pour obtenir de plus amples informations sur la maison, sur les démarches à suivre ou sur les modalités de vente. Donnez vie à vos projets immobiliers avec Maisons France Confort Nemours.Annonce proposée par un Agent Commercial Partenaire.
Corbeil-Essonnes
TERRAINTerrain de 1 250 m² en vente à Corbeil-EssonnesÀ quelques minutes du RER D (40 min de Paris) à Corbeil-Essonnes (91100), grand terrain. Réalisez-y votre résidence principale ou secondaire. Il y a des écoles (de la maternelle au lycée) à moins de 10 minutes à pied. Niveau transports, on trouve la station de RER Corbeil-Essonnes (ligne D) ainsi que deux gares (Corbeil-Essonnes et Essonnes Robinson) juste à côté. Il y a un bassin de natation, un tennis, des commerces, des boulangeries, deux supermarchés, des épiceries et des boucheries-charcuteries à proximité de la propriété. Enfin, le marché Place du Comte Haymon anime le quartier.Son prix de vente est de 183 000 €. Contactez Stéphan HOURMANT ((Numéro supprimé)) pour toute information sur ce terrain ou sur les démarches à suivre. Maisons France Confort Nemours est là pour vous accompagner à toutes les étapes de l’achat.Annonce proposée par un Agent Commercial Partenaire.
L’actualité immobilière à Combs-la-Ville
27/11/2023
02/11/2023
30/10/2023
20/10/2023
16/10/2023
16/10/2023