Maison à construire à Couilly-Pont-aux-Dames (77860)
Images
Description
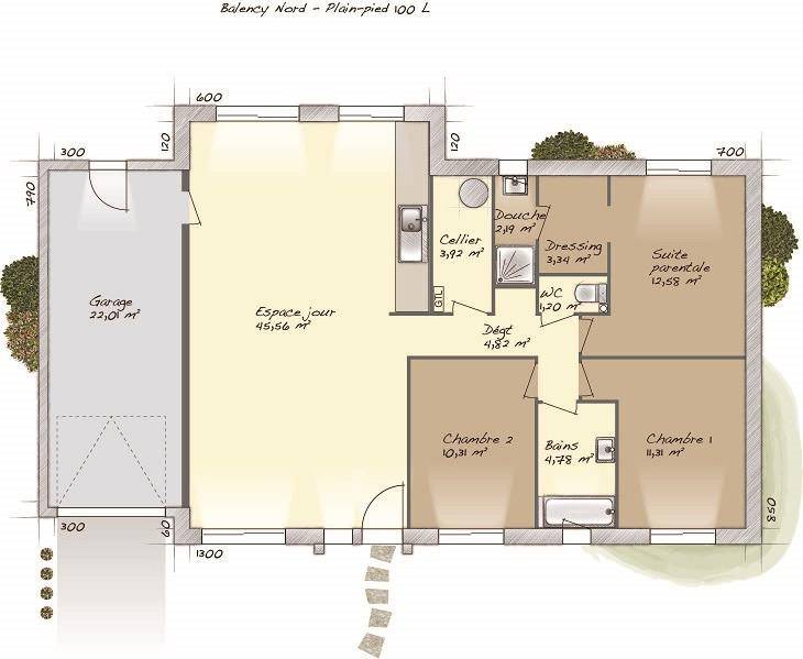
VENTE : maison T5 (100 m²) à Couilly-Pont-aux-Dames
MAISON 5 PIÈCES NEUVE - PROCHE DE MONTREUIL
En vente : située à deux pas de Montreuil, nous sommes ravis de vous proposer cette maison de 5 pièces de plain-pied de 100 m² à Couilly-Pont-aux-Dames (77860).
Elle dispose de trois chambres, d'une cuisine et de deux salles de bains. Cette maison est neuve.
Le terrain du bien est de 1 032 m².
Il y a le Collège Privé Sainte Thérèse, l'École Primaire Privée Sainte-Thérèse et l'École Primaire Fabre d'Eglantine à moins de 10 minutes à pied et une structure d'accueil pour les enfants en bas âge. Niveau transports, on trouve la gare Couilly-Saint-Germain-Quincy juste à côté. Il y a un tennis, une bibliothèque, des commerces, trois boulangeries, un supermarché, une supérette et un bureau de poste à quelques minutes à peine.
Son prix de vente est de 400 000 €.
Contactez notre agence (MONTANIER Aurelien : (Numéro supprimé)) pour toute question sur cette maison, sur les démarches à suivre ou sur les modalités de vente. Maisons Balency Saint-Maur-des-Fossés vous accompagne à toutes les étapes de votre projet et dans tous vos projets immobiliers.
Annonce proposée par un Agent Commercial Partenaire.
Logement susceptibles de vous intéresser
Nous vous proposons de découvrir aussi cette sélection de logements situés à moins de 10km de Couilly-Pont-aux-Dames et qui seraient susceptibles de vous intéresser.
Quincy-Voisins
TERRAINTERRAIN BIEN SITUE NON ACCOLE, BONNE ORIENTATION TOUTES COMMODITES SUR PLACEPROCHE DISNEYLAND..Prix : 141000 €.Sur ce terrain, réalisez votre projet de construction de maison RE 2020 avec PAVILLONS D'ÎLE-DE-FRANCE (constructeur de maisons de gamme et sur-mesure depuis plus de 50 ans) :- Plan sur-mesure et personnalisé de 2 à 5 chambres- Mode de chauffage au choix- Grands choix d'équipements et de prestations- Matériaux de qualité selon les normes en vigueur- Accompagnement dans le choix et l’acquisition du terrainDemandez une étude gratuite et personnalisée de votre projet de construction sur ce terrain !Contactez Kamel SELMI au (Numéro supprimé) ou au (Numéro supprimé) (Pavillons d'Île-de-France – Agence de Cauffry).Prix hors frais de notaire. Terrain sélectionné et vu pour vous sous réserve de disponibilité et au prix indiqué par notre partenaire foncier. Visuels non contractuels.Cette annonce a été créée et diffusée avec le logiciel VITAHOME.
Quincy-Voisins
TERRAINMohammed – Agence Pavillons d'Île-de-FranceVotre expert en maisons sur-mesure depuis plus de 50 ans à Mareuil-lès-MeauxTransformez votre rêve en réalité !Situé dans un écrin de verdure, ce terrain de 400 m² vous offre l'opportunité rare de construire la maison de vos rêves dans un cadre calme et agréable. À deux pas des commerces, écoles et transports, vous bénéficierez de la tranquillité de la campagne sans renoncer à la proximité de la vie urbaine.Imaginez votre futur chez-vous, parfaitement adapté à vos envies et à vos besoins. Ce terrain est prêt à accueillir votre projet et à vous offrir un cadre de vie exceptionnel.Prix : 125 000 €Ne laissez pas passer cette chance unique ! Contactez-nous dès maintenant au (Numéro supprimé) pour planifier une étude de faisabilité.Prix : 125000 €.Sur ce terrain, réalisez votre projet de construction de maison RE 2020 avec PAVILLONS D'ÎLE-DE-FRANCE (constructeur de maisons de gamme et sur-mesure depuis plus de 50 ans) :- Plan sur-mesure et personnalisé de 2 à 5 chambres- Mode de chauffage au choix- Grands choix d'équipements et de prestations- Matériaux de qualité selon les normes en vigueur- Accompagnement dans le choix et l’acquisition du terrainDemandez une étude gratuite et personnalisée de votre projet de construction sur ce terrain !Contactez Mohammed HAMDAOUI au (Numéro supprimé) ou au (Numéro supprimé) (Pavillons d'Île-de-France – Agence de Meaux).Prix hors frais de notaire. Terrain sélectionné et vu pour vous sous réserve de disponibilité et au prix indiqué par notre partenaire foncier. Visuels non contractuels.Cette annonce a été créée et diffusée avec le logiciel VITAHOME.
Tigeaux
TERRAIN ET MAISONVENTE : maison T4 (82 m²) à TigeauxMAISON 4 PIÈCES NEUVE En vente : à proximité de la gare de Guérard-La Celle-sur-Morin (Paris à 45 min avec le Transilien P), nous sommes ravis de vous présenter à Tigeaux (77163), cette maison de 4 pièces de 82 m². Elle se divise en trois chambres, une cuisine et une salle de bains.Le terrain du bien est de 1 004 m².Il s’agit d’une maison de 2 niveaux. Elle est neuve.Il y a une école élémentaire dans le quartier. Niveau transports, on trouve sept gares à moins de 10 minutes en voiture.Son prix de vente est de 299 451 €.Contactez Anne DELOHEN ((Numéro supprimé)) pour tout renseignement sur cette maison ou sur les démarches à suivre. Maisons France Confort Nemours est là pour vous accompagner à toutes les étapes de l’achat.Annonce proposée par un Agent Commercial Partenaire.
Chessy
TERRAIN ET MAISONMaison de 7 pièces (124 m²) à vendre à ChessyMAISON 7 PIÈCES NEUVE – PROCHE DE PARISÀ vendre : à côté du RER A (station Val d’Europe, 30 min de Paris), à Chessy (77700), nous sommes heureux de vous proposer cette maison de 7 pièces de 124 m² et de 420 m² de terrain. Elle comporte cinq chambres, une cuisine et trois salles de bains.Cette maison compte 2 niveaux. Elle est neuve.L’École Primaire Cornelius et l’École Primaire Gaius sont implantées à moins de 10 minutes à pied, tout comme une crèche. Niveau transports en commun, on trouve la ligne de RER A (Chessy-Marne-La-Vallée) ainsi que sept gares à moins de 10 minutes en voiture. Il y a deux tennis, des commerces, une boulangerie, une boucherie-charcuterie et deux épiceries à quelques minutes à peine.Son prix de vente est de 474 000 €.N’hésitez pas à prendre contact avec Antoine FLIPPE (tél : (Numéro supprimé)) pour toute question sur la maison ou sur les démarches à suivre.Annonce proposée par un Agent Commercial Partenaire.
Voulangis
TERRAIN ET MAISONRéalisez votre projet de construction de maison RE 2020 avec PAVILLONS D'ÎLE-DE-FRANCE (constructeur de maisons de gamme et sur-mesure depuis plus de 50 ans) :- Plan sur-mesure et personnalisé de 2 à 5 chambres- Mode de chauffage au choix- Grands choix d'équipements et de prestations- Matériaux de qualité selon les normes en vigueur- Accompagnement dans le choix et l’acquisition du terrainInformations du terrain : Mohammed – Agence Pavillons d'Île-de-FranceVotre expert en maisons sur-mesure depuis plus de 50 ans à Mareuil-lès-MeauxTransformez votre rêve en réalité !Situé dans un écrin de verdure, ce terrain de 170 m² vous offre l'opportunité rare de construire la maison de vos rêves dans un cadre calme et agréable. À deux pas des commerces, écoles et transports, vous bénéficierez de la tranquillité de la campagne sans renoncer à la proximité de la vie urbaine.Imaginez votre futur chez-vous, parfaitement adapté à vos envies et à vos besoins. Ce terrain est prêt à accueillir votre projet et à vous offrir un cadre de vie exceptionnel.Prix : 99 000 €Ne laissez pas passer cette chance unique ! Contactez-nous dès maintenant au (Numéro supprimé) pour planifier une étude de faisabilité.Demandez une étude gratuite et personnalisée de votre projet de construction !Contactez Mohammed HAMDAOUI au (Numéro supprimé) ou au (Numéro supprimé) (Pavillons d'Île-de-France – Agence de Meaux).Prix avec assurance dommages-ouvrage comprise, hors VRD, terrain viabilisé, assainissement non compris, frais de notaire non compris, taxes non comprises, frais divers non compris. Terrain sélectionné et vu pour vous sous réserve de disponibilité et au prix indiqué par notre partenaire foncier. Visuels non contractuels.Cette annonce a été créée et diffusée avec le logiciel VITAHOME.
Chessy
TERRAINChessy : terrain de 420 m² à vendrePROCHE DE PARISTerrain de 420 m² à quelques minutes de la station Val d »Europe (Paris à 30 min avec le RER A). Ce terrain se situe dans Chessy (77700). Le terrain est proche des écoles et des commerces. Il y a l »École Primaire Cornelius et l »École Primaire Gaius à moins de 10 minutes à pied et une structure d »accueil pour la petite enfance. Côté transports en commun, on trouve la ligne de RER A (Chessy-Marne-La-Vallée) ainsi que sept gares à moins de 10 minutes en voiture. Il y a deux tennis, des commerces, une boulangerie, deux épiceries et une boucherie-charcuterie dans les environs.Ce terrain est à vendre pour la somme de 278 000 €. N »hésitez pas à prendre contact avec notre agence (Antoine FLIPPE : (Numéro supprimé)) pour tout renseignement sur le terrain, sur les démarches à suivre ou sur les modalités de vente.Annonce proposée par un Agent Commercial Partenaire.
Voulangis
TERRAINPrix : 195000 €.Sur ce terrain, réalisez votre projet de construction de maison RE 2020 avec PAVILLONS D'ÎLE-DE-FRANCE (constructeur de maisons de gamme et sur-mesure depuis plus de 50 ans) :- Plan sur-mesure et personnalisé de 2 à 5 chambres- Mode de chauffage au choix- Grands choix d'équipements et de prestations- Matériaux de qualité selon les normes en vigueur- Accompagnement dans le choix et l’acquisition du terrainDemandez une étude gratuite et personnalisée de votre projet de construction sur ce terrain !Contactez Stéphane VERHAUVEN au (Numéro supprimé) ou au (Numéro supprimé) (Pavillons d'Île-de-France – Agence de Meaux).Prix hors frais de notaire. Terrain sélectionné et vu pour vous sous réserve de disponibilité et au prix indiqué par notre partenaire foncier. Visuels non contractuels.Cette annonce a été créée et diffusée avec le logiciel VITAHOME.
Coutevroult
TERRAINTerrain de 1 014 m² en vente à CoutevroultPROCHE DE MONTREUILÀ Coutevroult (77580) à quelques minutes du Transilien P (gare d’Esbly, 30 min de Paris), projetez la maison de vos rêves sur ce terrain de 1 014 m². L’École Primaire Pierre Falke est implantée à moins de 10 minutes à pied. Niveau transports en commun, on trouve la ligne de RER A (Chessy-Marne-La-Vallée) ainsi que huit gares à moins de 10 minutes en voiture. Il y a deux commerces dans les environs.Il est proposé à l’achat pour 265 000 €. Contactez Thomas ROUSSEL TOUATI ((Numéro supprimé)) pour obtenir de plus amples renseignements sur le terrain ou sur les modalités de vente. Maisons France Confort Magny-le-Hongre est là pour vous accompagner dans toutes vos démarches.Annonce proposée par un Agent Commercial Partenaire.
Voulangis
TERRAIN ET MAISONRéalisez votre projet de construction de maison RE 2020 avec PAVILLONS D'ÎLE-DE-FRANCE (constructeur de maisons de gamme et sur-mesure depuis plus de 50 ans) :- Plan sur-mesure et personnalisé de 2 à 5 chambres- Mode de chauffage au choix- Grands choix d'équipements et de prestations- Matériaux de qualité selon les normes en vigueur- Accompagnement dans le choix et l’acquisition du terrainInformations du terrain : Mohammed – Agence Pavillons d'Île-de-FranceVotre expert en maisons sur-mesure depuis plus de 50 ans à Mareuil-lès-MeauxTransformez votre rêve en réalité !Situé dans un écrin de verdure, ce terrain de 170 m² vous offre l'opportunité rare de construire la maison de vos rêves dans un cadre calme et agréable. À deux pas des commerces, écoles et transports, vous bénéficierez de la tranquillité de la campagne sans renoncer à la proximité de la vie urbaine.Imaginez votre futur chez-vous, parfaitement adapté à vos envies et à vos besoins. Ce terrain est prêt à accueillir votre projet et à vous offrir un cadre de vie exceptionnel.Prix : 99 000 €Ne laissez pas passer cette chance unique ! Contactez-nous dès maintenant au (Numéro supprimé) pour planifier une étude de faisabilité.Demandez une étude gratuite et personnalisée de votre projet de construction !Contactez Mohammed HAMDAOUI au (Numéro supprimé) ou au (Numéro supprimé) (Pavillons d'Île-de-France – Agence de Meaux).Prix avec assurance dommages-ouvrage comprise, hors VRD, terrain viabilisé, assainissement non compris, frais de notaire non compris, taxes non comprises, frais divers non compris. Terrain sélectionné et vu pour vous sous réserve de disponibilité et au prix indiqué par notre partenaire foncier. Visuels non contractuels.Cette annonce a été créée et diffusée avec le logiciel VITAHOME.
L’actualité immobilière à Couilly-Pont-aux-Dames
27/11/2023
02/11/2023
30/10/2023
20/10/2023
16/10/2023
16/10/2023