Images
Description
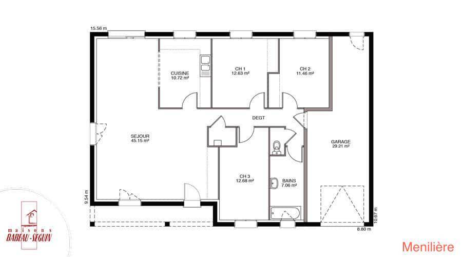
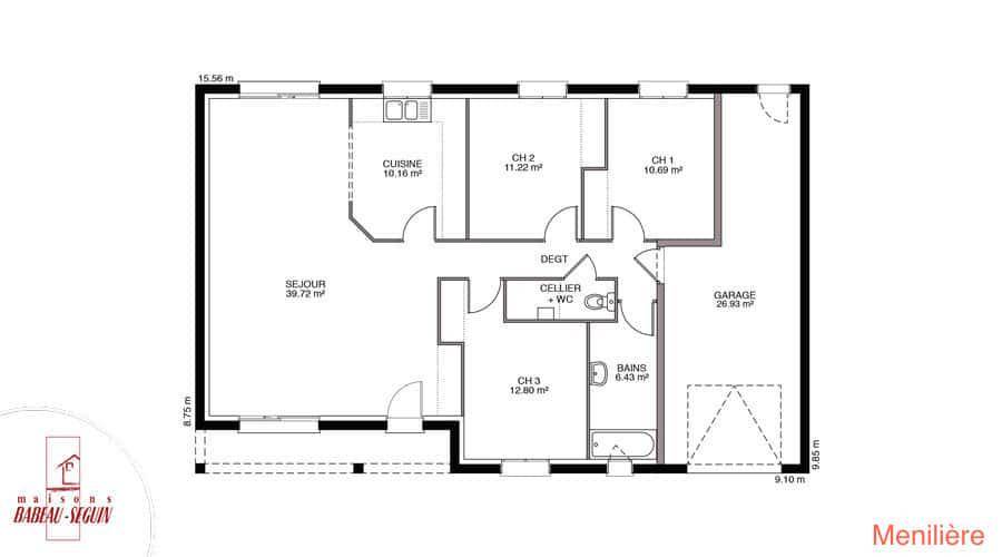
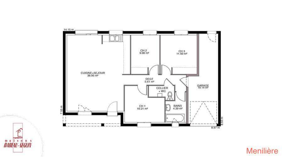
Sur ce terrain, nous vous proposons cette maison neuve, le modèle Ménilière, une maison plain-pied moderne qui intègre de base un garage et une longue galerie sur la face avant. Avec une surface de 100 m², cette maison dispose de 4 chambres et de 4 pièces, offrant ainsi un espace de vie confortable et fonctionnel pour toute la famille.
Véritable ""tout-en-un"" de la maison individuelle, ce modèle est idéal pour votre projet de construction sur-mesure. La Ménilière est disponible avec un toit à 2 pans ou 4 pans, selon vos préférences esthétiques. Le garage intégré et la galerie avant ajoutent une touche pratique et élégante à cette maison.
Les options les plus demandées par nos clients, telles que les menuiseries en aluminium et le sous-sol, sont également disponibles pour personnaliser davantage votre future maison. De plus, cette maison neuve est basse consommation et conforme à la réglementation environnementale RE2020, garantissant ainsi des performances énergétiques optimales et un impact environnemental réduit.
Le constructeur Babeau-Seguin, reconnu pour offrir le meilleur rapport qualité/prix du marché, vous accompagne dans la réalisation de votre projet immobilier. Avec un prix serré et une personnalisation facile, il n'est pas étonnant que la Ménilière soit dans le top 5 des ventes de Babeau-Seguin.
Ne manquez pas cette opportunité unique de devenir propriétaire d'une maison moderne, économe en énergie et parfaitement adaptée à vos besoins. Contactez-nous dès maintenant pour plus d'informations et pour planifier une visite de ce modèle exceptionnel.
Logement susceptibles de vous intéresser
Nous vous proposons de découvrir aussi cette sélection de logements situés à moins de 10km de Crécy-la-Chapelle et qui seraient susceptibles de vous intéresser.
Vaucourtois
TERRAIN ET MAISONMaison F5 (90 m²) en vente à VaucourtoisMAISON 5 PIÈCES NEUVEÀ côté de la gare de Trilport (Paris à 30 min avec le Transilien P), en vente à Vaucourtois (77580), ayez le coup de coeur pour cette maison de 5 pièces de 90 m².Cette maison comporte 2 niveaux. Son intérieur est composé de trois chambres, d’une cuisine et d’une salle de bains. Cette maison est neuve.Le terrain de la propriété est de 777 m².On trouve une école primaire dans le quartier. Niveau transports, il y a huit gares à moins de 10 minutes en voiture.Son prix de vente est de 312 000 €.Prenez contact avec notre agence (Alan RUBAL : (Numéro supprimé)) pour obtenir de plus amples renseignements sur la maison, sur les démarches à suivre ou sur les modalités de vente. Donnez vie à vos projets immobiliers avec Maisons France Confort Magny-le-Hongre.Annonce proposée par un Agent Commercial Partenaire.
Vaucourtois
TERRAIN ET MAISONMaison de 5 pièces (90 m²) à vendre à VaucourtoisMAISON 5 PIÈCES NEUVE – PROCHE DE NOISY-LE-GRANDEn vente : à côté du Transilien P (gare de Trilport, 30 min de Paris), nous sommes heureux de vous présenter cette maison de 5 pièces de 90 m² et de 777 m² de terrain à Vaucourtois (77580).Cette maison compte 2 niveaux. Son intérieur propose trois chambres, une cuisine et une salle de bains. La maison est neuve.Il y a une école primaire dans le quartier. Niveau transports en commun, on trouve huit gares à moins de 10 minutes en voiture.Son prix de vente est de 312 000 €.N’hésitez pas à prendre contact avec notre agence (RUBAL Alan : (Numéro supprimé)) pour obtenir de plus amples informations sur cette maison ou sur les démarches à suivre.Annonce proposée par un Agent Commercial Partenaire.
Vaucourtois
TERRAIN ET MAISONVENTE : maison F5 (90 m²) à VaucourtoisMAISON 5 PIÈCES NEUVE – PROCHE DE NOISY-LE-GRANDEn vente : à côté du Transilien P (gare de Trilport, 30 min de Paris), à Vaucourtois (77580), nous sommes heureux de vous proposer cette maison de 5 pièces de plain-pied de 90 m² et de 777 m² de terrain. Conçue de plain-pied, elle propose trois chambres, une cuisine et deux salles de bains.La maison est neuve.Une école primaire est implantée dans le quartier. Niveau transports, il y a huit gares à moins de 10 minutes en voiture.Elle est proposée à l’achat pour 312 000 €.N’hésitez pas à prendre contact avec notre agence (Alan RUBAL : (Numéro supprimé)) pour obtenir de plus amples informations sur cette maison.Annonce proposée par un Agent Commercial Partenaire.
Vaucourtois
TERRAIN ET MAISONVaucourtois : maison F7 (120 m²) à vendreMAISON 7 PIÈCES NEUVEÀ vendre : au pied du Transilien P (gare de Trilport, 30 min de Paris), à Vaucourtois (77580), nous vous présentons cette maison de 7 pièces de 120 m².Cette maison possède 2 niveaux. Son intérieur comporte cinq chambres, une cuisine et deux salles de bains. Cette maison est neuve.Le terrain du bien est de 777 m².Une école primaire est implantée dans le quartier. Niveau transports, il y a huit gares à moins de 10 minutes en voiture.Elle est à vendre pour la somme de 371 000 €.Contactez Alan RUBAL ((Numéro supprimé)) pour tout renseignement sur la propriété. Maisons France Confort Magny-le-Hongre vous accompagne dans toutes vos démarches et à toutes les étapes de votre projet.Annonce proposée par un Agent Commercial Partenaire.
Couilly-Pont-aux-Dames
TERRAIN ET MAISONVENTE : maison de 6 pièces (100 m²) à Couilly-Pont-aux-DamesEMPLACEMENT PRIVILÉGIÉ – MAISON 6 PIÈCES NEUVEÀ 30 km de Montreuil, votre agence Maisons France Confort Magny-le-Hongre est heureuse de vous présenter cette maison de 6 pièces de 100 m² à vendre bénéficiant d’un emplacement d’exception dans Couilly-Pont-aux-Dames (77860).Il s’agit d’une maison de 2 niveaux. Son intérieur compte quatre chambres, une cuisine et une salle de bains. La maison est neuve.Le terrain du bien s’étend sur 450 m².La maison est située dans un secteur recherché. On trouve le Collège Privé Sainte Thérèse, l’École Primaire Privée Sainte-Thérèse et l’École Primaire Fabre d’Eglantine à moins de 10 minutes à pied et une crèche. Niveau transports, il y a la gare Couilly-Saint-Germain-Quincy dans les alentours. On trouve un tennis, une bibliothèque, des commerces, trois boulangeries, un supermarché, un bureau de poste et une supérette à proximité.Elle est proposée à l’achat pour 325 000 €.Contactez notre constructeur (RUBAL Alan : (Numéro supprimé)) pour toute information sur la maison. Faites de vos projets immobiliers une réalité avec Maisons France Confort Magny-le-Hongre.Annonce proposée par un Agent Commercial Partenaire.
Couilly-Pont-aux-Dames
TERRAIN ET MAISONVENTE d’une maison T6 (105 m²) à Couilly-Pont-aux-DamesEMPLACEMENT PRIVILÉGIÉ – MAISON 6 PIÈCES NEUVEÀ quelques kilomètres de Montreuil, en vente bénéficiant d’un emplacement d’exception dans Couilly-Pont-aux-Dames (77860), nous sommes heureux de vous présenter cette maison de 6 pièces de 105 m² et de 450 m² de terrain.Cette maison comporte 2 niveaux. Elle comporte trois chambres, une cuisine et deux salles de bains. La maison est neuve.La maison se trouve dans un quartier recherché. Il y a le Collège Privé Sainte Thérèse, l’École Primaire Privée Sainte-Thérèse et l’École Primaire Fabre d’Eglantine à moins de 10 minutes à pied et une structure d’accueil pour les tout-petits. Côté transports, on trouve la gare Couilly-Saint-Germain-Quincy à proximité. Il y a un tennis, une bibliothèque, des commerces, trois boulangeries, un supermarché, une supérette et un bureau de poste à quelques minutes de la maison.Elle est proposée à l’achat pour 334 000 €.Prenez contact avec Alan RUBAL ((Numéro supprimé)) pour toute information sur la propriété. Maisons France Confort Magny-le-Hongre vous accompagne dans toutes vos démarches et dans tous vos projets immobiliers.Annonce proposée par un Agent Commercial Partenaire.
Couilly-Pont-aux-Dames
TERRAIN ET MAISONVENTE : maison de 5 pièces (113 m²) à Couilly-Pont-aux-DamesEMPLACEMENT PRIVILÉGIÉ – MAISON 5 PIÈCES NEUVEEn vente : située à deux pas de Montreuil, notre agence Maisons France Confort Magny-le-Hongre est heureuse de vous présenter cette maison de 5 pièces de plain-pied de 113 m² et de 450 m² de terrain bénéficiant d’un emplacement privilégié dans Couilly-Pont-aux-Dames (77860).Son intérieur se divise en quatre chambres, une cuisine et deux salles de bains. Cette maison est neuve.La propriété se situe dans un secteur prisé. On trouve le Collège Privé Sainte Thérèse, l’École Primaire Privée Sainte-Thérèse et l’École Primaire Fabre d’Eglantine à moins de 10 minutes à pied et une crèche. Niveau transports, il y a la gare Couilly-Saint-Germain-Quincy à quelques pas du bien. On trouve un tennis, une bibliothèque, des commerces, trois boulangeries, un supermarché, un bureau de poste et une supérette à proximité.Elle est proposée à l’achat pour 348 400 €.Contactez notre constructeur (Alan RUBAL : (Numéro supprimé)) pour tout renseignement sur la maison ou sur les modalités de vente.Annonce proposée par un Agent Commercial Partenaire.
Couilly-Pont-aux-Dames
TERRAIN ET MAISONVENTE d’une maison F6 (100 m²) à Couilly-Pont-aux-DamesMAISON 6 PIÈCES NEUVE – PROCHE DE SERRISEn vente : Maisons France Confort Magny-le-Hongre vous présente à Couilly-Pont-aux-Dames (77860), cette maison de 6 pièces de 100 m².C’est une maison de 2 niveaux. Elle inclut quatre chambres, une cuisine et une salle de bains. Cette maison est neuve.Le terrain du bien s’étend sur 450 m².Le Collège Privé Sainte Thérèse, l’École Primaire Privée Sainte-Thérèse et l’École Primaire Fabre d’Eglantine sont implantés à moins de 10 minutes à pied, tout comme une structure d’accueil pour la petite enfance. Niveau transports en commun, il y a la gare Couilly-Saint-Germain-Quincy à proximité. On trouve un tennis, une bibliothèque, des commerces, trois boulangeries, un supermarché, un bureau de poste et une supérette à quelques minutes.Elle est à vendre pour la somme de 325 000 €.Prenez contact avec notre agence (RUBAL Alan : (Numéro supprimé)) pour obtenir de plus amples renseignements sur cette maison. Maisons France Confort Magny-le-Hongre est là pour vous accompagner dans toutes vos démarches.Annonce proposée par un Agent Commercial Partenaire.
Couilly-Pont-aux-Dames
TERRAIN ET MAISONVENTE : maison de 7 pièces (120 m²) à Couilly-Pont-aux-DamesPROCHE DE MONTREUIL – MAISON 7 PIÈCES NEUVEEn vente : à deux pas de Montreuil, venez découvrir à Couilly-Pont-aux-Dames (77860), cette maison de 7 pièces de 120 m².Cette maison compte 2 niveaux. Elle se divise en quatre chambres, une cuisine et deux salles de bains. La maison est neuve.Le terrain de la propriété est de 450 m².Il y a le Collège Privé Sainte Thérèse, l’École Primaire Privée Sainte-Thérèse et l’École Primaire Fabre d’Eglantine à moins de 10 minutes à pied et une structure d’accueil pour les enfants en bas âge. Niveau transports, on trouve la gare Couilly-Saint-Germain-Quincy dans les alentours. Il y a un tennis, une bibliothèque, des commerces, trois boulangeries, un supermarché, un bureau de poste et une supérette à proximité du bien.Elle est proposée à l’achat pour 361 000 €.Contactez Alan RUBAL ((Numéro supprimé)) pour toute information sur cette propriété, sur les modalités de vente ou sur les démarches à suivre.Annonce proposée par un Agent Commercial Partenaire.
L’actualité immobilière à Crécy-la-Chapelle
27/11/2023
02/11/2023
30/10/2023
20/10/2023
16/10/2023
16/10/2023