Maison à construire à Crégy-lès-Meaux (77124)
Images
Description
VENTE : maison de 7 pièces (150 m²) à Crégy-lès-Meaux
MAISON 7 PIÈCES NEUVE - PROCHE D'AULNAY-SOUS-BOIS
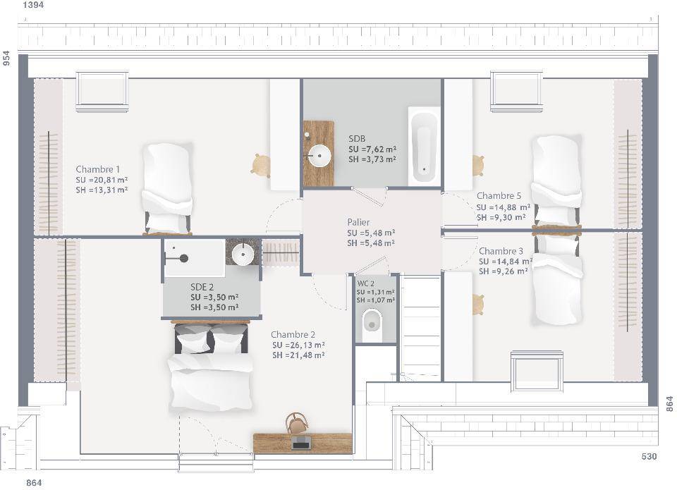
À vendre : proche du Transilien P (gare de Meaux, 25 min de Paris), votre agence Maisons France Confort Magny-le-Hongre est ravie de vous présenter cette maison de 7 pièces de 150 m² à Crégy-lès-Meaux (77124).
Il s'agit d'une maison de 2 niveaux. Elle dispose de cinq chambres, d'une cuisine et de deux salles de bains. La maison est neuve.
Le terrain de la propriété est de 907 m².
Il y a l'École Élémentaire Jean Rostand, le Collège George Sand et l'École Maternelle Jacques Tati à moins de 10 minutes à pied. Côté transports, on trouve les gares Meaux, Trilport et Esbly à moins de 10 minutes en voiture. On trouve une bibliothèque, un tennis, une boulangerie, deux commerces, deux supermarchés et un bureau de poste à proximité de la maison.
Son prix de vente est de 400 000 €.
Contactez notre constructeur (Cedric YAHIAOUI : (Numéro supprimé)) pour toute information sur la maison, sur les modalités de vente ou sur les démarches à suivre. Maisons France Confort Magny-le-Hongre vous accompagne à toutes les étapes de l'achat et dans tous vos projets immobiliers.
Annonce proposée par un Agent Commercial Partenaire.
Logement susceptibles de vous intéresser
Nous vous proposons de découvrir aussi cette sélection de logements situés à moins de 10km de Crégy-lès-Meaux et qui seraient susceptibles de vous intéresser.
Meaux
TERRAIN ET MAISONPenchard : maison T6 (100 m²) en venteEMPLACEMENT PRIVILÉGIÉ – MAISON 6 PIÈCES NEUVEÀ quelques minutes du Transilien P (gare de Meaux, 25 min de Paris), à vendre bénéficiant d’un emplacement d’exception dans Penchard (77124), nous sommes heureux de vous présenter cette maison de 6 pièces de 100 m².Il s’agit d’une maison de 2 niveaux. Son intérieur se divise en quatre chambres, une cuisine et une salle de bains. Cette maison est neuve.Le terrain de la propriété s’étend sur 358 m².Cette maison est située dans un secteur recherché. On y trouve une école primaire. Côté transports, il y a les gares Meaux, Trilport et Esbly à moins de 10 minutes en voiture. On trouve un tennis, une bibliothèque et une boulangerie à quelques minutes à peine.Elle est proposée à l’achat pour 305 000 €.Contactez Alan RUBAL ((Numéro supprimé)) pour obtenir de plus amples informations sur la maison, sur les démarches à suivre ou sur les modalités de vente. Maisons France Confort Magny-le-Hongre vous accompagne dans tous vos projets immobiliers et dans toutes vos démarches.Annonce proposée par un Agent Commercial Partenaire.
Meaux
TERRAIN ET MAISONMaison de 5 pièces (113 m²) à vendre à PenchardEMPLACEMENT PRIVILÉGIÉ – MAISON 5 PIÈCES NEUVEÀ quelques minutes de la gare de Meaux (Paris à 25 min par le Transilien P), Maisons France Confort Magny-le-Hongre vous présente en vente, bénéficiant d’un emplacement privilégié dans Penchard (77124), cette maison de 5 pièces de plain-pied de 113 m² et de 358 m² de terrain.Conçue de plain-pied, elle propose quatre chambres, une cuisine et deux salles de bains. Cette maison est neuve.La maison est située dans un secteur recherché. On y trouve une école primaire. Côté transports en commun, il y a trois gares (Meaux, Trilport et Esbly) à moins de 10 minutes en voiture. On trouve un tennis, une bibliothèque et une boulangerie à proximité.Elle est proposée à l’achat pour 338 400 €.Contactez Alan RUBAL ((Numéro supprimé)) pour obtenir de plus amples informations sur le bien ou sur les démarches à suivre.Annonce proposée par un Agent Commercial Partenaire.
Meaux
TERRAIN ET MAISONVENTE : maison de 8 pièces (160 m²) à PenchardEMPLACEMENT PRIVILÉGIÉ – MAISON 8 PIÈCES NEUVEÀ proximité du Transilien P (gare de Meaux, 25 min de Paris), notre agence Maisons France Confort Magny-le-Hongre est ravie de vous présenter cette maison de 8 pièces de 160 m² en vente bénéficiant d’un emplacement privilégié dans Penchard (77124). Elle inclut cinq chambres, une cuisine et six salles de bains.Le terrain de la propriété s’étend sur 358 m².Il s’agit d’une maison de 2 niveaux. Elle est neuve.La maison est située dans un secteur prisé. On y trouve une école primaire. Niveau transports en commun, il y a les gares Meaux, Trilport et Esbly à moins de 10 minutes en voiture. On trouve un tennis, une bibliothèque et une boulangerie à proximité.Elle est à vendre pour la somme de 423 000 €.Contactez Alan RUBAL (tél : (Numéro supprimé)) pour toute question sur la maison. Maisons France Confort Magny-le-Hongre vous accompagne dans toutes vos démarches et dans tous vos projets immobiliers.Annonce proposée par un Agent Commercial Partenaire.
Meaux
TERRAIN ET MAISONVENTE : maison T6 (100 m²) à VarreddesIDÉALEMENT SITUÉE – MAISON 6 PIÈCES NEUVEÀ côté du Transilien P (gare de Trilport, 30 min de Paris), nous vous présentons en vente, idéalement située dans Varreddes (77910), cette maison de 6 pièces de 100 m² et de 601 m² de terrain.Il s’agit d’une maison de 2 niveaux. Elle comporte quatre chambres, une cuisine et une salle de bains. La maison est neuve.Cette maison se trouve dans un secteur recherché. Il y a l’École Élémentaire la Tournoye et l’École Maternelle le Grand Chemin à moins de 10 minutes à pied. Niveau transports, on trouve cinq gares à moins de 10 minutes en voiture. On trouve un tennis, un commerce, une boulangerie, un bureau de poste et une épicerie dans les environs.Elle est proposée à l’achat pour 320 000 €.Contactez Alan RUBAL (tél : (Numéro supprimé)) pour tout renseignement sur la maison ou sur les démarches à suivre.Annonce proposée par un Agent Commercial Partenaire.
Meaux
TERRAIN ET MAISONVarreddes : maison de 8 pièces (155 m²) en venteIDÉALEMENT SITUÉE – MAISON 8 PIÈCES NEUVEÀ quelques minutes du Transilien P (gare de Trilport, 30 min de Paris), découvrez cette maison de 8 pièces de 155 m² et de 601 m² de terrain en vente idéalement située dans Varreddes (77910).Cette maison possède 2 niveaux. Son intérieur compte cinq chambres, une cuisine et deux salles de bains. La maison est neuve.Ce bien se situe dans un quartier prisé. L’École Élémentaire la Tournoye et l’École Maternelle le Grand Chemin sont implantées à moins de 10 minutes à pied. Niveau transports en commun, il y a cinq gares à moins de 10 minutes en voiture. On trouve un tennis, un commerce, une boulangerie, un bureau de poste et une épicerie à quelques minutes.Il est à vendre pour la somme de 419 000 €.Contactez Alan RUBAL (tél : (Numéro supprimé)) pour tout renseignement sur la maison. Maisons France Confort Magny-le-Hongre est là pour vous accompagner dans toutes vos démarches.Annonce proposée par un Agent Commercial Partenaire.
Meaux
TERRAIN ET MAISONVarreddes : maison de 6 pièces (140 m²) à vendreIDÉALEMENT SITUÉE – MAISON 6 PIÈCES NEUVEÀ côté du Transilien P (gare de Trilport, 30 min de Paris), à vendre idéalement située dans Varreddes (77910), nous vous proposons cette maison de 6 pièces de plain-pied de 140 m². Elle se divise en cinq chambres, une cuisine et deux salles de bains.Le terrain de la maison s’étend sur 601 m².La maison est neuve.Cette maison se trouve dans un secteur convoité. Il y a l’École Élémentaire la Tournoye et l’École Maternelle le Grand Chemin à moins de 10 minutes à pied. Niveau transports en commun, on trouve cinq gares à moins de 10 minutes en voiture. On trouve un tennis, un commerce, une boulangerie, une épicerie et un bureau de poste dans les environs.Elle est à vendre pour la somme de 392 000 €.N’hésitez pas à prendre contact avec Alan RUBAL (tél : (Numéro supprimé)) pour plus d’informations sur la propriété.Annonce proposée par un Agent Commercial Partenaire.
Meaux
TERRAIN ET MAISONVENTE : maison T7 (120 m²) à VarreddesIDÉALEMENT SITUÉE – MAISON 7 PIÈCES NEUVEEn vente : au pied de la gare de Trilport (Paris à 30 min avec le Transilien P), idéalement située dans Varreddes (77910), nous sommes heureux de vous proposer cette maison de 7 pièces de 120 m².C’est une maison de 2 niveaux. Elle offre quatre chambres, une cuisine et deux salles de bains. La maison est neuve.Le terrain de la propriété s’étend sur 601 m².Cette maison est située dans un secteur attractif. L’École Élémentaire la Tournoye et l’École Maternelle le Grand Chemin sont implantées à moins de 10 minutes à pied. Niveau transports, il y a cinq gares à moins de 10 minutes en voiture. Il y a un tennis, un commerce, une boulangerie, un bureau de poste et une épicerie à proximité.Son prix de vente est de 356 000 €.Prenez contact avec Alan RUBAL (tél : (Numéro supprimé)) pour toute information sur la maison ou sur les démarches à suivre. Maisons France Confort Magny-le-Hongre vous accompagne à toutes les étapes de l’achat et dans tous vos projets immobiliers.Annonce proposée par un Agent Commercial Partenaire.
Trilport
TERRAIN ET MAISONVENTE d’une maison F6 (100 m²) à TrilportMAISON 6 PIÈCES NEUVE – PROCHE DE MEAUXProche du Transilien P (30 min de Paris), à vendre à Trilport (77470), nous vous proposons cette maison de 6 pièces de 100 m². Son intérieur compte quatre chambres, une cuisine et une salle de bains.Le terrain de la maison est de 356 m².Cette maison comporte 2 niveaux. Elle est neuve.L’École Élémentaire Jacques Prévert, l’École Maternelle Andrée Chedid, l’École Primaire la Charmoye et le Collège le Bois de l’Enclume se trouvent à moins de 10 minutes à pied. Côté transports en commun, il y a la gare Trilport dans les alentours. On trouve un tennis, deux boulangeries, quatre commerces, un supermarché, un bureau de poste et deux épiceries à quelques minutes à peine.Son prix de vente est de 332 000 €.Contactez notre agence (Alan RUBAL : (Numéro supprimé)) pour plus de renseignements sur la maison ou sur les modalités de vente.Annonce proposée par un Agent Commercial Partenaire.
Trilport
TERRAIN ET MAISONTrilport : maison F7 (120 m²) à vendreMAISON 7 PIÈCES NEUVE – PROCHE DE MEAUXÀ proximité du Transilien P (30 min de Paris), laissez vous charmer par cette maison de 7 pièces de 120 m² et de 356 m² de terrain en vente à Trilport (77470). Son intérieur se divise en quatre chambres, une cuisine et deux salles de bains.Cette maison comporte 2 niveaux. Elle est neuve.Il y a l’École Élémentaire Jacques Prévert, l’École Maternelle Andrée Chedid, l’École Primaire la Charmoye et le Collège le Bois de l’Enclume à moins de 10 minutes à pied. Niveau transports en commun, on trouve la gare Trilport à quelques pas du bien. On trouve un tennis, deux boulangeries, quatre commerces, un supermarché, deux épiceries et un bureau de poste dans les environs.Elle est proposée à l’achat pour 368 000 €.Contactez notre agence (Alan RUBAL : (Numéro supprimé)) pour tout renseignement sur cette maison ou sur les démarches à suivre.Annonce proposée par un Agent Commercial Partenaire.
L’actualité immobilière à Crégy-lès-Meaux
27/11/2023
02/11/2023
30/10/2023
20/10/2023
16/10/2023
16/10/2023