Images
Description
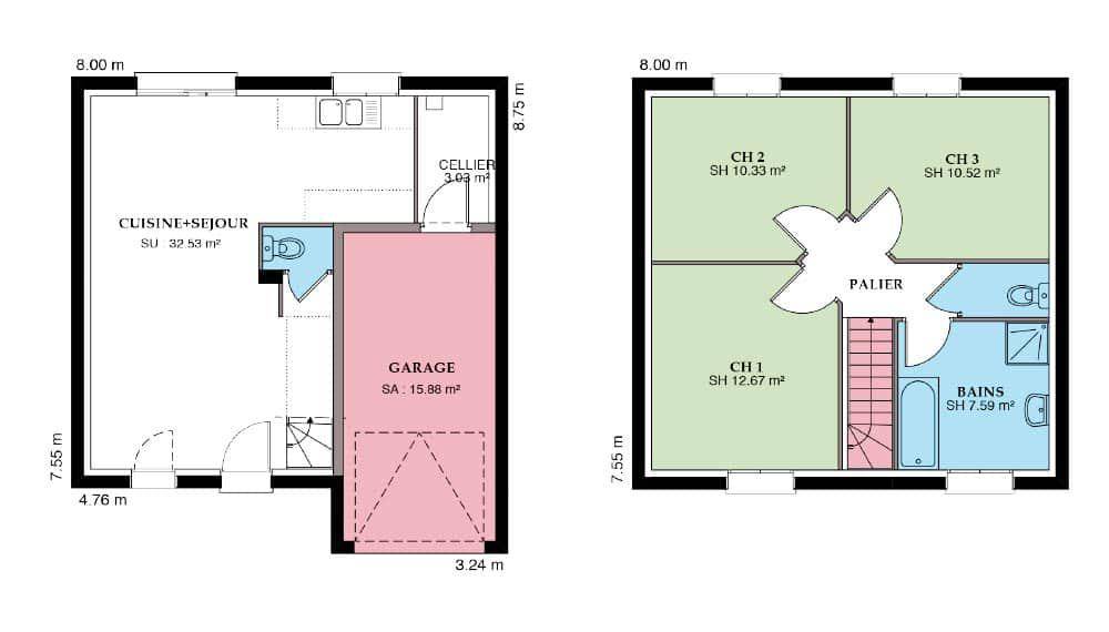
Sur ce terrain, nous vous proposons cette maison neuve baptisée Extenso, conçue par Babeau-Seguin, constructeur offrant le meilleur rapport qualité/prix du marché. Cette belle maison familiale à étage, d'une surface de 91 m², dispose de 3 chambres, d'un vaste séjour, d'une salle de bain, de 2 WC et d'un cellier, ainsi qu'un garage accolé.
Modèle au style urbain parfaitement adapté à ce terrain, cette maison vous offre tout le confort d’une grande maison dans un espace compact et parfaitement optimisé. Vous retrouverez dans cette maison neuve des caractéristiques modernes et pratiques telles que l'enduit bi-ton, la domotique et les volets roulants motorisés, qui sont parmi les options les plus demandées par nos clients.
L'Extenso est une maison basse consommation, conforme à la norme RE2020, garantissant des économies d'énergie significatives et un confort de vie optimal. Avec son plancher béton à l'étage, elle s'affiche au prix de nombreuses maisons de plain-pied, tout en offrant une qualité et une modernité incomparables.
Ne manquez pas cette opportunité unique de devenir propriétaire d'une maison neuve, confortable et économe en énergie, le tout à un prix cassé. Une exclusivité Maisons Babeau-Seguin.
Logement susceptibles de vous intéresser
Nous vous proposons de découvrir aussi cette sélection de logements situés à moins de 10km de Donnemarie-Dontilly et qui seraient susceptibles de vous intéresser.
Montigny-Lencoup
TERRAINProche toutes commodités.Gare la plus proche MONTEREAU FAULT YONNEAccès rapide A5Prix : 60000 €.Sur ce terrain de 600 m² à MONTIGNY-LENCOUP, Maisons Clairval vous propose de réaliser votre projet de construction de maison individuelle.Maisons Clairval propose de construire votre maison neuve avec toutes les prestations suivantes :- Plan sur-mesure et personnalisé de 2 à 6 chambres- Mode de chauffage au choix- Grands choix d'équipements et de prestations- Matériaux de qualité selon les normes en vigueur- Accompagnement dans le choix et l’acquisition du terrain- Construction conforme à la nouvelle RE 2020Demandez une étude gratuite et personnalisée de votre projet de construction sur ce terrain !Contactez Nicolas REBOUL au (Numéro supprimé) ou au (Numéro supprimé) (Maisons Clairval – Agence de Villemoisson).Prix hors frais de notaire. Terrain sélectionné et vu pour vous sous réserve de disponibilité et au prix indiqué par notre partenaire foncier. Conditions et visuels non contractuels.Cette annonce a été créée et diffusée avec le logiciel VITAHOME.
Longueville
TERRAIN ET MAISONRéalisez Votre projet de construction sur la commune de LonguevilleEn vente à proximité immédiate de la gare de LonguevilleMaisons France Confort vous présente à Longueville cette maison de 4 pièces de 81 m².Cette maison se compose de 3 chambres, une cuisine 1 salle de bains et un garage. Cette maison est neuve.Le terrain de la propriété s’étend sur 1235 m².Elle est proposée à l’achat pour 206000 €. Hors frais annexesN’hésitez pas à prendre contact avec Sandrine BOUCHOUX : (Numéro supprimé) pour tout renseignement sur ce projet. Maisons France Confort PROVINS est là pour vous accompagner dans tous vos projets immobiliers.Annonce proposée par un Agent Commercial Partenaire.
Longueville
TERRAIN ET MAISONRéalisez Votre projet de construction sur la commune de LonguevilleEn vente à proximité immédiate de la gare de LonguevilleMaisons France Confort vous présente à Longueville cette maison de 5 pièces de 101 m².Cette maison se compose de 4 chambres, une cuisine 1 salle de bains et un garage. Cette maison est neuve.Le terrain de la propriété s’étend sur 1235 m².Elle est proposée à l’achat pour 232000 €. Hors frais annexesN’hésitez pas à prendre contact avec Sandrine BOUCHOUX : (Numéro supprimé) pour tout renseignement sur ce projet. Maisons France Confort PROVINS est là pour vous accompagner dans tous vos projets immobiliers.Annonce proposée par un Agent Commercial Partenaire.
Longueville
TERRAIN ET MAISONRéalisez Votre projet de construction sur la commune de LonguevilleEn vente à proximité immédiate de la gare de LonguevilleMaisons France Confort vous présente à Longueville cette maison de 5 pièces de 97 m².Cette maison se compose de 4 chambres, une cuisine 1 salle de bains et un garage. Cette maison est neuve.Le terrain de la propriété s’étend sur 1235 m².Elle est proposée à l’achat pour 231000 €. Hors frais annexesN’hésitez pas à prendre contact avec Sandrine BOUCHOUX : (Numéro supprimé) pour tout renseignement sur ce projet. Maisons France Confort PROVINS est là pour vous accompagner dans tous vos projets immobiliers.Annonce proposée par un Agent Commercial Partenaire.
Longueville
TERRAIN ET MAISONRéalisez Votre projet de construction sur la commune de LonguevilleEn vente à proximité immédiate de la gare de LonguevilleMaisons France Confort vous présente à Longueville cette maison de 5 pièces de 90 m².Cette maison se compose de 4 chambres, une cuisine 1 salle de bains et un garage. Cette maison est neuve.Le terrain de la propriété s’étend sur 1235 m².Elle est proposée à l’achat pour 233000 €. Hors frais annexesN’hésitez pas à prendre contact avec Sandrine BOUCHOUX : (Numéro supprimé) pour tout renseignement sur ce projet. Maisons France Confort PROVINS est là pour vous accompagner dans tous vos projets immobiliers.Annonce proposée par un Agent Commercial Partenaire.
Longueville
TERRAIN ET MAISONRéalisez Votre projet de construction sur la commune de LonguevilleEn vente à proximité immédiate de la gare de LonguevilleMaisons France Confort vous présente à Longueville cette maison de 5 pièces de 90 m².Cette maison se compose de 4 chambres dont une suite parentale avec dressing et Sde, une cuisine 1 salle de bains . Cette maison est neuve.Le terrain de la propriété s’étend sur 1235 m².Elle est proposée à l’achat pour 246000 €. Hors frais annexesN’hésitez pas à prendre contact avec Sandrine BOUCHOUX : (Numéro supprimé) pour tout renseignement sur ce projet. Maisons France Confort PROVINS est là pour vous accompagner dans tous vos projets immobiliers.Annonce proposée par un Agent Commercial Partenaire.
Longueville
TERRAINSur la commune de Longueville, ce terrain plat constructible en lot arrière de 1235 m² situé dans un environnement calme et champêtre, bordé par un petit ruisseau.Idéalement placé à proximité immédiate de la gare et de toutes les commodités de LonguevilleLes raccordements sont disponibles au pied du terrain, prévoir un assainissement individuelSi la construction de votre propre maison est dans vos projets, ce terrain constructible est actuellement disponible à l’achat grâce à notre partenaire foncier, sous réserve de disponibilité. Ne perdez pas de temps pour réaliser la maison de vos rêves et saisissez dès maintenant cette opportunité ! Contactez Sandrine BOUCHOUX au (Numéro supprimé) pour obtenir plus d’informations.Maisons France Confort de PROVINS vous accompagne dans tous vos projets immobiliersAnnonce proposée par un Agent Commercial Partenaire.
Longueville
TERRAIN ET MAISONRéalisez Votre projet de construction sur la commune de LonguevilleEn vente à proximité immédiate de la gare de LonguevilleMaisons France Confort vous présente à Longueville cette maison de 3 pièces de 71 m².Cette maison se compose de 2 chambres, une cuisine 1 salle de bains et un garage. Cette maison est neuve.Le terrain de la propriété s’étend sur 1235 m².Elle est proposée à l’achat pour 192000 €. Hors frais annexesN’hésitez pas à prendre contact avec Sandrine BOUCHOUX : (Numéro supprimé) pour tout renseignement sur ce projet. Maisons France Confort PROVINS est là pour vous accompagner dans tous vos projets immobiliers.Annonce proposée par un Agent Commercial Partenaire.
Salins
TERRAINTerrain de 560 m² à vendre à SalinsIDÉALEMENT SITUÉ – PROCHE DE MELUNÀ côté du Transilien R (gare de Montereau, 60 min de Paris) à Salins (77148), grand terrain. Ce terrain, avec vue sur rue, bénéficie d’une exposition sud-ouest. Dans un quartier prisé, ce terrain idéalement situé est proche des commerces et des écoles. Une école primaire est implantée dans le quartier. Niveau transports, il y a deux gares (Montereau et Villeneuve-la-Guyard) à moins de 10 minutes en voiture. On trouve un tennis et une épicerie dans les environs.Il est à vendre pour la somme de 77 800 €. Contactez notre agence (RELAND Thomas : (Numéro supprimé)) pour obtenir de plus amples renseignements sur le terrain ou sur les modalités de vente. Maisons France Confort La Queue-en-Brie est là pour vous accompagner dans tous vos projets immobiliers.
L’actualité immobilière à Donnemarie-Dontilly
27/11/2023
02/11/2023
30/10/2023
20/10/2023
16/10/2023
16/10/2023