Maison à construire à Faremoutiers (77515)
Images
Description
Faremoutiers : maison T7 (115 m²) en vente
PROCHE DE MEAUX - MAISON 7 PIÈCES NEUVE
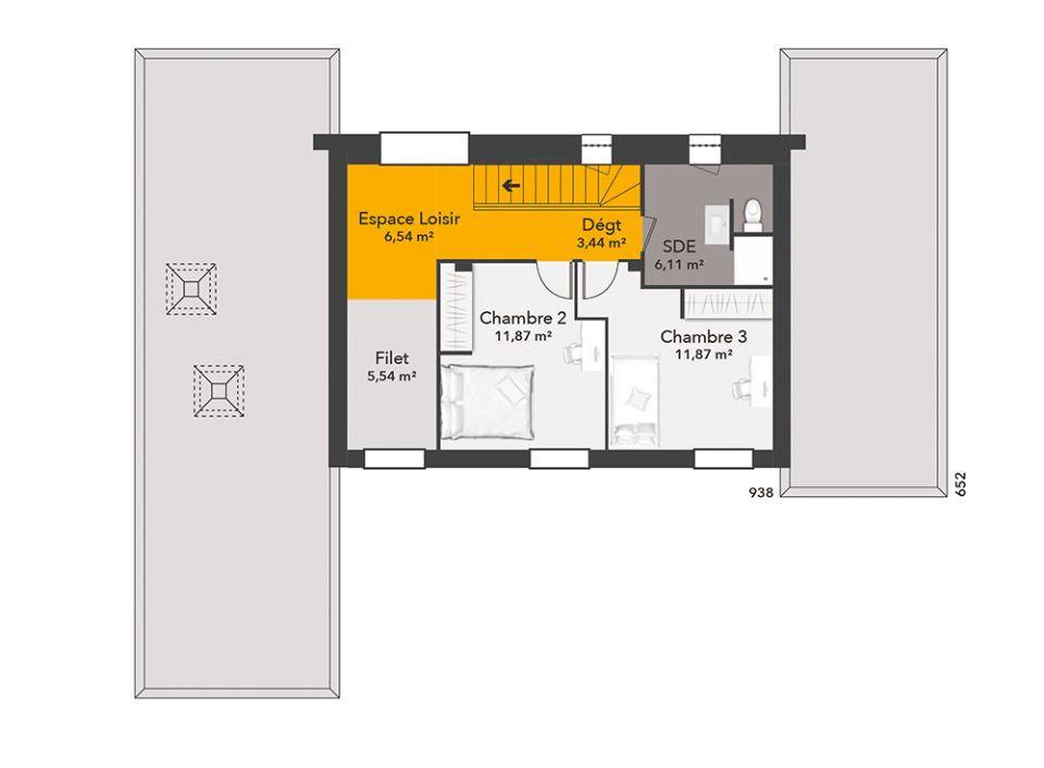
À vendre : au pied de la gare de Faremoutiers-Pommeuse (Paris à 50 min avec le Transilien P), découvrez cette maison de 7 pièces de 115 m² et de 400 m² de terrain à Faremoutiers (77515).
C'est une maison de 2 niveaux. Elle compte quatre chambres, une cuisine et trois salles de bains. La maison est neuve.
L'École Primaire Simone Veil et le Collège Louise Michel sont implantés à moins de 10 minutes à pied. Niveau transports, il y a six gares à moins de 10 minutes en voiture. On trouve quatre commerces, une boulangerie, un supermarché, une poissonnerie et deux boucheries-charcuteries à quelques minutes.
Elle est à vendre pour la somme de 460 000 €.
Contactez Teddy MELES (tél : (Numéro supprimé)) pour toute information sur cette maison.
Annonce proposée par un Agent Commercial Partenaire.
Logement susceptibles de vous intéresser
Nous vous proposons de découvrir aussi cette sélection de logements situés à moins de 10km de Faremoutiers et qui seraient susceptibles de vous intéresser.
Chailly-en-Brie
TERRAIN ET MAISONChailly-en-Brie : maison de 6 pièces (100 m²) à vendreIDÉALEMENT SITUÉE – MAISON 6 PIÈCES NEUVEAu pied du Transilien P (gare de Coulommiers, 1 h de Paris), notre agence Maisons France Confort Magny-le-Hongre est heureuse de vous proposer cette maison de 6 pièces de 100 m² et de 884 m² de terrain en vente idéalement située dans Chailly-en-Brie (77120). Son intérieur offre quatre chambres, une cuisine et une salle de bains.Cette maison compte 2 niveaux. Elle est neuve.La maison est située dans un secteur prisé. L’École Primaire Geoffroy Saint-Hilaire est implantée à moins de 10 minutes à pied. Niveau transports en commun, il y a les gares Coulommiers, Mouroux et Faremoutiers-Pommeuse à moins de 10 minutes en voiture. On trouve un tennis à proximité.Son prix de vente est de 257 000 €.Contactez notre agence (RUBAL Alan : (Numéro supprimé)) pour toute information sur la maison ou sur les modalités de vente.Annonce proposée par un Agent Commercial Partenaire.
Chailly-en-Brie
TERRAIN ET MAISONVENTE : maison de 7 pièces (120 m²) à Chailly-en-BrieIDÉALEMENT SITUÉE – MAISON 7 PIÈCES NEUVEÀ proximité du Transilien P (gare de Coulommiers, 1 h de Paris), Maisons France Confort Magny-le-Hongre vous présente en vente, idéalement située dans Chailly-en-Brie (77120), cette maison de 7 pièces de 120 m². Son intérieur est composé de quatre chambres, d’une cuisine et de deux salles de bains.Le terrain de cette maison s’étend sur 884 m².Cette maison compte 2 niveaux. Elle est neuve.La maison se trouve dans un secteur recherché. Il y a l’École Primaire Geoffroy Saint-Hilaire à moins de 10 minutes à pied. Côté transports, on trouve les gares Coulommiers, Mouroux et Faremoutiers-Pommeuse à moins de 10 minutes en voiture. Il y a un tennis dans les environs.Elle est à vendre pour la somme de 293 000 €.Prenez contact avec notre agence (RUBAL Alan : (Numéro supprimé)) pour toute information sur la maison, sur les modalités de vente ou sur les démarches à suivre.Annonce proposée par un Agent Commercial Partenaire.
Chailly-en-Brie
TERRAIN ET MAISONChailly-en-Brie : maison de 7 pièces (110 m²) à vendreIDÉALEMENT SITUÉE – MAISON 7 PIÈCES NEUVEEn vente : proche du Transilien P (gare de Coulommiers, 1 h de Paris), idéalement située dans Chailly-en-Brie (77120), nous sommes ravis de vous présenter cette maison de 7 pièces de 110 m² et de 884 m² de terrain.C’est une maison de 2 niveaux. Son intérieur compte quatre chambres, une cuisine et deux salles de bains. La maison est neuve.Cette propriété est située dans un secteur attractif. L’École Primaire Geoffroy Saint-Hilaire est implantée à moins de 10 minutes à pied. Niveau transports en commun, on trouve trois gares (Coulommiers, Mouroux et Faremoutiers-Pommeuse) à moins de 10 minutes en voiture. Il y a un tennis dans les environs.Elle est proposée à l’achat pour 275 000 €.Contactez Alan RUBAL ((Numéro supprimé)) pour toute question sur la maison ou sur les modalités de vente. Maisons France Confort Magny-le-Hongre est là pour vous accompagner dans toutes vos démarches.Annonce proposée par un Agent Commercial Partenaire.
Chailly-en-Brie
TERRAIN ET MAISONMaison T6 (105 m²) à vendre à Chailly-en-BrieIDÉALEMENT SITUÉE – MAISON 6 PIÈCES NEUVEEn vente : au pied du Transilien P (gare de Coulommiers, 1 h de Paris), idéalement située dans Chailly-en-Brie (77120), nous vous présentons cette maison de 6 pièces de 105 m² et de 884 m² de terrain.C’est une maison de 2 niveaux. Son intérieur offre trois chambres, une cuisine et deux salles de bains. Cette maison est neuve.La maison se trouve dans un secteur attractif. Il y a l’École Primaire Geoffroy Saint-Hilaire à moins de 10 minutes à pied. Côté transports en commun, on trouve trois gares (Coulommiers, Mouroux et Faremoutiers-Pommeuse) à moins de 10 minutes en voiture. Il y a un tennis à proximité du logement.Elle est à vendre pour la somme de 266 000 €.Prenez contact avec notre agence (Alan RUBAL : (Numéro supprimé)) pour plus d’informations sur la maison, sur les modalités de vente ou sur les démarches à suivre. Concrétisez vos projets immobiliers avec Maisons France Confort Magny-le-Hongre.Annonce proposée par un Agent Commercial Partenaire.
Coulommiers
TERRAIN ET MAISONMaison F6 (105 m²) à vendre à CoulommiersIDÉALEMENT SITUÉE – MAISON 6 PIÈCES NEUVEÀ côté du Transilien P (1 h de Paris), laissez vous charmer par cette maison de 6 pièces de 105 m² en vente idéalement située dans Coulommiers (77120).Il s’agit d’une maison de 2 niveaux. Elle est composée de quatre chambres, d’une cuisine et de deux salles de bains. Cette maison est neuve.Le terrain de la propriété est de 425 m².La maison se situe dans un secteur prisé. Plusieurs écoles (maternelle, élémentaire, primaire et collège) se trouvent à moins de 10 minutes à pied. Niveau transports en commun, il y a la gare Coulommiers à proximité. On trouve un bassin de natation, une bibliothèque, un tennis, des boulangeries, des commerces, un supermarché, des épiceries et des boucheries-charcuteries à quelques minutes à peine. Enfin, le marché Place du marché anime le quartier.Son prix de vente est de 270 030 €.Prenez contact avec Alan RUBAL ((Numéro supprimé)) pour toute question sur la maison, sur les démarches à suivre ou sur les modalités de vente. Concrétisez vos projets immobiliers avec Maisons France Confort Magny-le-Hongre.Annonce proposée par un Agent Commercial Partenaire.
Mouroux
TERRAINVENTE : terrain de 548 m² à MourouxIDÉALEMENT SITUÉ – PROCHE DE MEAUXÀ quelques minutes du Transilien P (55 min de Paris) à Mouroux (77120), grand terrain. Réalisez-y votre résidence principale ou secondaire. Il bénéficie d’une exposition sud-ouest. Dans un quartier convoité, le terrain idéalement situé est proche des écoles et des commerces. Cinq établissements scolaires sont implantés à moins de 10 minutes à pied. Côté transports, il y a quatre gares à moins de 10 minutes en voiture. On trouve un tennis, trois commerces, deux boulangeries, une épicerie et un bureau de poste dans les environs.Ce terrain est proposé à l’achat pour 115 000 €. Contactez notre agence (RUBAL Alan : (Numéro supprimé)) pour toute question sur le terrain ou sur les démarches à suivre. Concrétisez vos projets immobiliers avec Maisons France Confort Magny-le-Hongre.Annonce proposée par un Agent Commercial Partenaire.
Mouroux
TERRAIN ET MAISONMouroux : maison T7 (120 m²) en venteIDÉALEMENT SITUÉE – MAISON 7 PIÈCES NEUVEEn vente : à deux pas du Transilien P (55 min de Paris), nous vous présentons cette maison de 7 pièces de 120 m² et de 548 m² de terrain idéalement située dans Mouroux (77120). Son intérieur dispose de cinq chambres, d’une cuisine et de deux salles de bains.Cette maison comporte 2 niveaux. Elle est neuve.La maison se situe dans un quartier convoité. Il y a cinq établissements scolaires à moins de 10 minutes à pied. Côté transports en commun, on trouve quatre gares à moins de 10 minutes en voiture. On trouve un tennis, trois commerces, deux boulangeries, un bureau de poste et une épicerie à proximité.Son prix de vente est de 331 000 €.Contactez Alan RUBAL (tél : (Numéro supprimé)) pour toute question sur la maison. Maisons France Confort Magny-le-Hongre est là pour vous accompagner dans toutes vos démarches.Annonce proposée par un Agent Commercial Partenaire.
Mouroux
TERRAIN ET MAISONVENTE : maison F6 (115 m²) à MourouxIDÉALEMENT SITUÉE – MAISON 6 PIÈCES NEUVEEn vente : à côté du Transilien P (55 min de Paris), venez découvrir, idéalement située dans Mouroux (77120), cette maison de 6 pièces de plain-pied de 115 m² et de 548 m² de terrain.Conçue de plain-pied, elle se divise en trois chambres, une cuisine et trois salles de bains. Cette maison est neuve.Cette maison est située dans un secteur attractif. Cinq établissements scolaires sont implantés à moins de 10 minutes à pied. Niveau transports, il y a quatre gares à moins de 10 minutes en voiture. On trouve un tennis, trois commerces, deux boulangeries, un bureau de poste et une épicerie dans les environs.Elle est à vendre pour la somme de 322 000 €.Prenez contact avec Alan RUBAL (tél : (Numéro supprimé)) pour obtenir de plus amples informations sur la maison.Annonce proposée par un Agent Commercial Partenaire.
Mouroux
TERRAIN ET MAISONVENTE : maison de 5 pièces (80 m²) à MourouxIDÉALEMENT SITUÉE – MAISON 5 PIÈCES NEUVEÀ côté du Transilien P (55 min de Paris), Maisons France Confort Magny-le-Hongre vous présente cette maison de 5 pièces de plain-pied de 80 m² et de 548 m² de terrain à vendre, idéalement située dans Mouroux (77120).Conçue de plain-pied, elle offre trois chambres, une cuisine et une salle de bains. La maison est neuve.La maison est située dans un secteur prisé. Cinq établissements scolaires sont implantés à moins de 10 minutes à pied. Niveau transports en commun, il y a quatre gares à moins de 10 minutes en voiture. Il y a un tennis, trois commerces, deux boulangeries, une épicerie et un bureau de poste dans les environs.Elle est à vendre pour la somme de 259 000 €.N’hésitez pas à prendre contact avec Alan RUBAL ((Numéro supprimé)) pour obtenir de plus amples informations sur la maison, sur les démarches à suivre ou sur les modalités de vente.Annonce proposée par un Agent Commercial Partenaire.
L’actualité immobilière à Faremoutiers
27/11/2023
02/11/2023
30/10/2023
20/10/2023
16/10/2023
16/10/2023