Maison à construire à Fontainebleau (77300)
Images
Description
Thomery (77810), à deux pas de FONTAINEBLEAU !
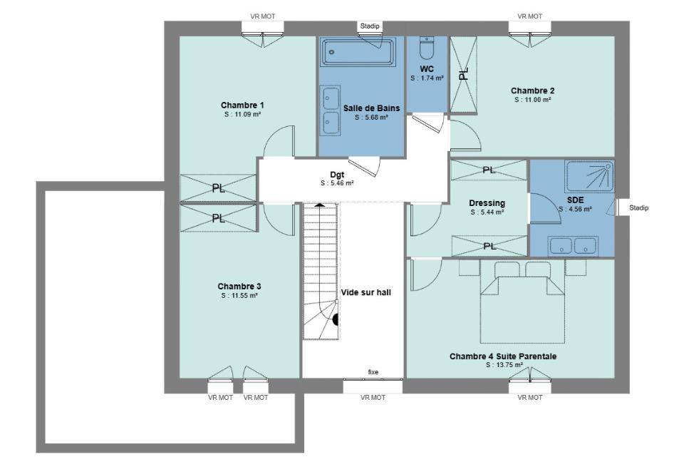
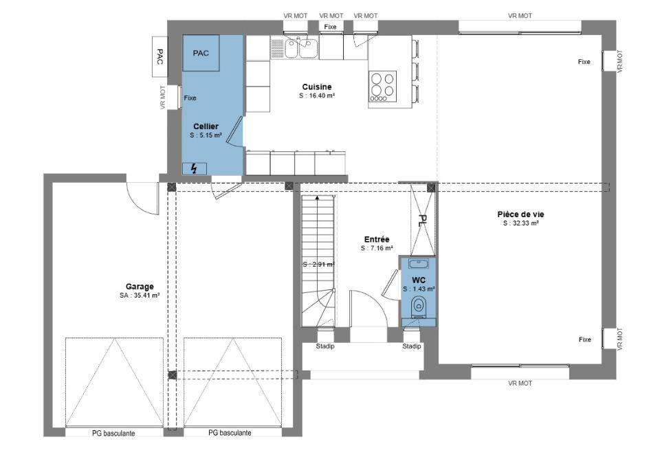
Demeure "Harmonie Élégante" à bâtir sur un terrain de 417 m² : 136 m² habitables sur un lot AVANT, aux dernières normes environnementales RE2020.
Ce terrain rare est parfait pour concrétiser le projet de vie d'un jeune couple, d'une famille, ou de personnes âgées souhaitant construire une maison individuelle.
Le modèle que nous vous proposons dans cette annonce est constitué de 4 chambres et de 2 salles-de-bains : il est estimé à 402 000 € (terrain + construction, hors frais annexes).
Thomery offre un cadre de vie prisé en Île-de-France, alliant la tranquillité de la campagne à la proximité de toutes les commodités. Vous profiterez de la présence d'une école maternelle et primaire, de commerces de proximité comme la boulangerie "Au Pain Gourmand" et la supérette "Proxi", accessibles en moins de 5 minutes à pied.
Cette commune recherchée bénéficie également d'une excellente desserte : La gare de Thomery (Ligne R) vous connecte directement à Paris Gare de Lyon en environ 45 minutes. Pour vos loisirs et vos emplettes, la ville impériale de Fontainebleau est à seulement 10 minutes en voiture, offrant son château, sa forêt domaniale, ainsi que de nombreux commerces et services. Les centres commerciaux "Carrefour Villiers-en-Bière" et "Auchan Fontaine-le-Port" sont respectivement à 15 et 20 minutes en voiture.
Faites confiance aux Maisons Balency (Groupe Hexaôm, 1er constructeur de maisons individuelles en France) pour réaliser votre future maison ! Appelez notre agence d'Ormoy au (Numéro supprimé).
Maisons BALENCY Agence d'Ormoy
23 chemin de Tournenfils
91540 ORMOY
Annonce proposée par un Agent Commercial Partenaire.
Logement susceptibles de vous intéresser
Nous vous proposons de découvrir aussi cette sélection de logements situés à moins de 10km de Fontainebleau et qui seraient susceptibles de vous intéresser.
Fontainebleau
TERRAIN ET MAISONMaison de 7 pièces (120 m²) à vendre à FontainebleauMAISON 7 PIÈCES NEUVE – PROCHE D’ÉVRY-COURCOURONNESEn vente : à côté de la gare de Fontainebleau-Avon (Paris à 40 min avec le Transilien R), nous vous proposons cette maison de 7 pièces de 120 m² à Fontainebleau (77300). Son intérieur propose cinq chambres, une cuisine et deux salles de bains.Le terrain de la propriété est de 610 m².Cette maison compte 2 niveaux. Elle est neuve.Des écoles (de la maternelle au lycée) sont implantées à moins de 10 minutes en voiture, deux crèches à moins de 10 minutes à pied, tout comme l’Institut européen d’administration des affaires pour le supérieur. Niveau transports, on trouve sept gares à moins de 10 minutes en voiture. Il y a des tennis, deux bassins de natation, des bibliothèques, des commerces, des boulangeries, des supermarchés, quatre supérettes et des boucheries-charcuteries à proximité du logement. Enfin, le marché Place du marché anime le quartier.Elle est à vendre pour la somme de 344 000 €.Contactez notre agence (Alan RUBAL : (Numéro supprimé)) pour toute information sur la maison. Maisons France Confort Magny-le-Hongre est là pour vous accompagner dans tous vos projets immobiliers.Annonce proposée par un Agent Commercial Partenaire.
Fontainebleau
TERRAIN ET MAISONMaison T5 (110 m²) en vente à FontainebleauPROCHE D’ÉVRY-COURCOURONNES – MAISON 5 PIÈCES NEUVEProche de la gare de Fontainebleau-Avon (Paris à 40 min avec le Transilien R), nous vous présentons à vendre à Fontainebleau (77300), cette maison de 5 pièces de plain-pied de 110 m² et de 610 m² de terrain. Conçue de plain-pied, elle dispose de quatre chambres, d’une cuisine et de deux salles de bains.La maison est neuve.Tous les types d’établissements scolaires (de la maternelle au lycée) sont implantés à moins de 10 minutes en voiture, deux crèches à moins de 10 minutes à pied, tout comme une établissement du supérieur à moins de 10 minutes en voiture : l’Institut européen d’administration des affaires. Niveau transports en commun, on trouve sept gares à proximité. Il y a des tennis, deux bassins de natation, des bibliothèques, des commerces, des boulangeries, des supermarchés, une poissonnerie et des épiceries dans les environs. Le marché Place du marché anime les environs.Son prix de vente est de 326 000 €.Contactez notre agence (Alan RUBAL : (Numéro supprimé)) pour toute information sur la maison. Maisons France Confort Magny-le-Hongre est là pour vous accompagner à toutes les étapes de l’achat.Annonce proposée par un Agent Commercial Partenaire.
Fontainebleau
TERRAIN ET MAISONFontainebleau : maison F6 (110 m²) en venteMAISON 6 PIÈCES NEUVE – PROCHE D’ÉVRY-COURCOURONNESÀ vendre : proche du Transilien R (gare de Fontainebleau-Avon, 40 min de Paris), à Fontainebleau (77300), nous vous proposons cette maison de 6 pièces de 110 m² et de 610 m² de terrain.C’est une maison de 2 niveaux. Son intérieur comporte quatre chambres, une cuisine et une salle de bains. Cette maison est neuve.Il y a tous les types d’écoles (maternelle, élémentaire et secondaire) à moins de 10 minutes en voiture, deux crèches à moins de 10 minutes à pied, tout comme l’Institut européen d’administration des affaires pour le supérieur. Niveau transports, on trouve sept gares à moins de 10 minutes en voiture. Il y a des tennis, deux bassins de natation, des bibliothèques, des commerces, des boulangeries, des supermarchés, des bureaux de poste et des épiceries à proximité. Le marché Place du marché anime les environs.Elle est proposée à l’achat pour 326 000 €.Contactez notre agence (RUBAL Alan : (Numéro supprimé)) pour tout renseignement sur la maison ou sur les démarches à suivre. Maisons France Confort Magny-le-Hongre est là pour vous accompagner à toutes les étapes de votre projet.Annonce proposée par un Agent Commercial Partenaire.
Fontainebleau
TERRAIN ET MAISONMaison F6 (106 m²) en vente à FontainebleauPROCHE D’ÉVRY-COURCOURONNES – MAISON 6 PIÈCES NEUVEProche du Transilien R (gare de Fontainebleau-Avon, 40 min de Paris), en vente à Fontainebleau (77300), nous sommes ravis de vous proposer cette maison de 6 pièces de plain-pied de 106 m².Son intérieur est composé de quatre chambres, d’une cuisine et de deux salles de bains. Cette maison est neuve.Le terrain du bien est de 610 m².Il y a des écoles de tous niveaux à moins de 10 minutes en voiture, deux structures d’accueil pour les enfants en bas âge à moins de 10 minutes à pied, tout comme l’Institut européen d’administration des affaires pour le supérieur. Niveau transports en commun, on trouve sept gares à moins de 10 minutes en voiture. Il y a des tennis, deux bassins de natation, des bibliothèques, des commerces, des boulangeries, des supermarchés, des boucheries-charcuteries et des épiceries dans les environs. Le marché Place du marché anime les environs.Elle est proposée à l’achat pour 318 800 €.N’hésitez pas à prendre contact avec notre agence (RUBAL Alan : (Numéro supprimé)) pour toute information sur ce bien. Maisons France Confort Magny-le-Hongre est là pour vous accompagner dans tous vos projets immobiliers.Annonce proposée par un Agent Commercial Partenaire.
Fontainebleau
TERRAINDans un lotissement calme et verdoyant, proche FontainebleauPrix : 117000 €.Sur ce terrain de 461 m² à FONTAINEBLEAU, Maisons Clairval vous propose de réaliser votre projet de construction de maison individuelle.Maisons Clairval propose de construire votre maison neuve avec toutes les prestations suivantes :- Plan sur-mesure et personnalisé de 2 à 6 chambres- Mode de chauffage au choix- Grands choix d'équipements et de prestations- Matériaux de qualité selon les normes en vigueur- Accompagnement dans le choix et l’acquisition du terrain- Construction conforme à la nouvelle RE 2020Demandez une étude gratuite et personnalisée de votre projet de construction sur ce terrain !Contactez Nicolas REBOUL au (Numéro supprimé) ou au (Numéro supprimé) (Maisons Clairval – Agence de Villemoisson).Prix hors frais de notaire. Terrain sélectionné et vu pour vous sous réserve de disponibilité et au prix indiqué par notre partenaire foncier. Conditions et visuels non contractuels.Cette annonce a été créée et diffusée avec le logiciel VITAHOME.
Montigny-sur-Loing
TERRAINÀ seulement 5 minutes à pied de la gare (ligne R vers Paris Gare de Lyon) et à proximité immédiate des écoles et du centre villePrix : 110000 €.Sur ce terrain de 649 m² à MONTIGNY-SUR-LOING, Maisons Clairval vous propose de réaliser votre projet de construction de maison individuelle.Maisons Clairval propose de construire votre maison neuve avec toutes les prestations suivantes :- Plan sur-mesure et personnalisé de 2 à 6 chambres- Mode de chauffage au choix- Grands choix d'équipements et de prestations- Matériaux de qualité selon les normes en vigueur- Accompagnement dans le choix et l’acquisition du terrain- Construction conforme à la nouvelle RE 2020Demandez une étude gratuite et personnalisée de votre projet de construction sur ce terrain !Contactez Nicolas REBOUL au (Numéro supprimé) ou au (Numéro supprimé) (Maisons Clairval – Agence de Villemoisson).Prix hors frais de notaire. Terrain sélectionné et vu pour vous sous réserve de disponibilité et au prix indiqué par notre partenaire foncier. Conditions et visuels non contractuels.Cette annonce a été créée et diffusée avec le logiciel VITAHOME.
Saint-Martin-en-Bière
TERRAINFaçade 9,88m s'élargissant à 12m au droit de la construction projetéeProfondeur environ 56mPrix : 125000 €.Sur ce terrain de 655 m² à SAINT-MARTIN-EN-BIERE, Maisons Clairval vous propose de réaliser votre projet de construction de maison individuelle.Maisons Clairval propose de construire votre maison neuve avec toutes les prestations suivantes :- Plan sur-mesure et personnalisé de 2 à 6 chambres- Mode de chauffage au choix- Grands choix d'équipements et de prestations- Matériaux de qualité selon les normes en vigueur- Accompagnement dans le choix et l’acquisition du terrain- Construction conforme à la nouvelle RE 2020Demandez une étude gratuite et personnalisée de votre projet de construction sur ce terrain !Contactez Nicolas REBOUL au (Numéro supprimé) ou au (Numéro supprimé) (Maisons Clairval – Agence de Villemoisson).Prix hors frais de notaire. Terrain sélectionné et vu pour vous sous réserve de disponibilité et au prix indiqué par notre partenaire foncier. Conditions et visuels non contractuels.Cette annonce a été créée et diffusée avec le logiciel VITAHOME.
Fontainebleau
TERRAINCommune prisée pour son cadre de vie paisible, à proximité de la forêt de Fontainebleau.Accès rapide aux commerces, écoles, et transports.À quelques minutes des axes principaux et de la gare.Prix : 140300 €.Sur ce terrain de 500 m² à FONTAINEBLEAU, Maisons Clairval vous propose de réaliser votre projet de construction de maison individuelle.Maisons Clairval propose de construire votre maison neuve avec toutes les prestations suivantes :- Plan sur-mesure et personnalisé de 2 à 6 chambres- Mode de chauffage au choix- Grands choix d'équipements et de prestations- Matériaux de qualité selon les normes en vigueur- Accompagnement dans le choix et l’acquisition du terrain- Construction conforme à la nouvelle RE 2020Demandez une étude gratuite et personnalisée de votre projet de construction sur ce terrain !Contactez Nicolas REBOUL au (Numéro supprimé) ou au (Numéro supprimé) (Maisons Clairval – Agence de Villemoisson).Prix hors frais de notaire. Terrain sélectionné et vu pour vous sous réserve de disponibilité et au prix indiqué par notre partenaire foncier. Conditions et visuels non contractuels.Cette annonce a été créée et diffusée avec le logiciel VITAHOME.
Montigny-sur-Loing
TERRAINquartier résidentiel calme à proximité immédiate de toutes commodités à pied (commerces, gare, écoles…) et de la forêt.Prix : 115000 €.Sur ce terrain de 514 m² à MONTIGNY-SUR-LOING, Maisons Clairval vous propose de réaliser votre projet de construction de maison individuelle.Maisons Clairval propose de construire votre maison neuve avec toutes les prestations suivantes :- Plan sur-mesure et personnalisé de 2 à 6 chambres- Mode de chauffage au choix- Grands choix d'équipements et de prestations- Matériaux de qualité selon les normes en vigueur- Accompagnement dans le choix et l’acquisition du terrain- Construction conforme à la nouvelle RE 2020Demandez une étude gratuite et personnalisée de votre projet de construction sur ce terrain !Contactez Nicolas REBOUL au (Numéro supprimé) ou au (Numéro supprimé) (Maisons Clairval – Agence de Villemoisson).Prix hors frais de notaire. Terrain sélectionné et vu pour vous sous réserve de disponibilité et au prix indiqué par notre partenaire foncier. Conditions et visuels non contractuels.Cette annonce a été créée et diffusée avec le logiciel VITAHOME.
L’actualité immobilière à Fontainebleau
27/11/2023
02/11/2023
30/10/2023
20/10/2023
16/10/2023
16/10/2023