Maison à construire à Fublaines (77470)
Images
Description
VENTE : maison de 7 pièces (150 m²) à Fublaines
PROCHE DE NOISY-LE-GRAND - MAISON 7 PIÈCES NEUVE
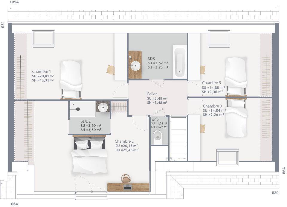
À proximité du Transilien P (gare de Trilport, 30 min de Paris), à vendre à Fublaines (77470), nous vous proposons cette maison de 7 pièces de 150 m² et de 400 m² de terrain. Elle offre cinq chambres, une cuisine et deux salles de bains.
Cette maison possède 2 niveaux. Elle est neuve.
Il y a l'École Primaire la Colline à moins de 10 minutes à pied. Niveau transports en commun, on trouve neuf gares à moins de 10 minutes en voiture. On trouve une épicerie dans les environs.
Elle est proposée à l'achat pour 400 000 €.
Contactez Cedric YAHIAOUI (tél : (Numéro supprimé)) pour toute question sur la maison ou sur les modalités de vente.
Annonce proposée par un Agent Commercial Partenaire.
Logement susceptibles de vous intéresser
Nous vous proposons de découvrir aussi cette sélection de logements situés à moins de 10km de Fublaines et qui seraient susceptibles de vous intéresser.
Vaucourtois
TERRAIN ET MAISONMaison F5 (90 m²) en vente à VaucourtoisMAISON 5 PIÈCES NEUVEÀ côté de la gare de Trilport (Paris à 30 min avec le Transilien P), en vente à Vaucourtois (77580), ayez le coup de coeur pour cette maison de 5 pièces de 90 m².Cette maison comporte 2 niveaux. Son intérieur est composé de trois chambres, d’une cuisine et d’une salle de bains. Cette maison est neuve.Le terrain de la propriété est de 777 m².On trouve une école primaire dans le quartier. Niveau transports, il y a huit gares à moins de 10 minutes en voiture.Son prix de vente est de 312 000 €.Prenez contact avec notre agence (Alan RUBAL : (Numéro supprimé)) pour obtenir de plus amples renseignements sur la maison, sur les démarches à suivre ou sur les modalités de vente. Donnez vie à vos projets immobiliers avec Maisons France Confort Magny-le-Hongre.Annonce proposée par un Agent Commercial Partenaire.
Vaucourtois
TERRAIN ET MAISONMaison de 5 pièces (90 m²) à vendre à VaucourtoisMAISON 5 PIÈCES NEUVE – PROCHE DE NOISY-LE-GRANDEn vente : à côté du Transilien P (gare de Trilport, 30 min de Paris), nous sommes heureux de vous présenter cette maison de 5 pièces de 90 m² et de 777 m² de terrain à Vaucourtois (77580).Cette maison compte 2 niveaux. Son intérieur propose trois chambres, une cuisine et une salle de bains. La maison est neuve.Il y a une école primaire dans le quartier. Niveau transports en commun, on trouve huit gares à moins de 10 minutes en voiture.Son prix de vente est de 312 000 €.N’hésitez pas à prendre contact avec notre agence (RUBAL Alan : (Numéro supprimé)) pour obtenir de plus amples informations sur cette maison ou sur les démarches à suivre.Annonce proposée par un Agent Commercial Partenaire.
Vaucourtois
TERRAIN ET MAISONVENTE : maison F5 (90 m²) à VaucourtoisMAISON 5 PIÈCES NEUVE – PROCHE DE NOISY-LE-GRANDEn vente : à côté du Transilien P (gare de Trilport, 30 min de Paris), à Vaucourtois (77580), nous sommes heureux de vous proposer cette maison de 5 pièces de plain-pied de 90 m² et de 777 m² de terrain. Conçue de plain-pied, elle propose trois chambres, une cuisine et deux salles de bains.La maison est neuve.Une école primaire est implantée dans le quartier. Niveau transports, il y a huit gares à moins de 10 minutes en voiture.Elle est proposée à l’achat pour 312 000 €.N’hésitez pas à prendre contact avec notre agence (Alan RUBAL : (Numéro supprimé)) pour obtenir de plus amples informations sur cette maison.Annonce proposée par un Agent Commercial Partenaire.
Vaucourtois
TERRAIN ET MAISONVaucourtois : maison F7 (120 m²) à vendreMAISON 7 PIÈCES NEUVEÀ vendre : au pied du Transilien P (gare de Trilport, 30 min de Paris), à Vaucourtois (77580), nous vous présentons cette maison de 7 pièces de 120 m².Cette maison possède 2 niveaux. Son intérieur comporte cinq chambres, une cuisine et deux salles de bains. Cette maison est neuve.Le terrain du bien est de 777 m².Une école primaire est implantée dans le quartier. Niveau transports, il y a huit gares à moins de 10 minutes en voiture.Elle est à vendre pour la somme de 371 000 €.Contactez Alan RUBAL ((Numéro supprimé)) pour tout renseignement sur la propriété. Maisons France Confort Magny-le-Hongre vous accompagne dans toutes vos démarches et à toutes les étapes de votre projet.Annonce proposée par un Agent Commercial Partenaire.
Couilly-Pont-aux-Dames
TERRAIN ET MAISONVENTE : maison de 6 pièces (100 m²) à Couilly-Pont-aux-DamesEMPLACEMENT PRIVILÉGIÉ – MAISON 6 PIÈCES NEUVEÀ 30 km de Montreuil, votre agence Maisons France Confort Magny-le-Hongre est heureuse de vous présenter cette maison de 6 pièces de 100 m² à vendre bénéficiant d’un emplacement d’exception dans Couilly-Pont-aux-Dames (77860).Il s’agit d’une maison de 2 niveaux. Son intérieur compte quatre chambres, une cuisine et une salle de bains. La maison est neuve.Le terrain du bien s’étend sur 450 m².La maison est située dans un secteur recherché. On trouve le Collège Privé Sainte Thérèse, l’École Primaire Privée Sainte-Thérèse et l’École Primaire Fabre d’Eglantine à moins de 10 minutes à pied et une crèche. Niveau transports, il y a la gare Couilly-Saint-Germain-Quincy dans les alentours. On trouve un tennis, une bibliothèque, des commerces, trois boulangeries, un supermarché, un bureau de poste et une supérette à proximité.Elle est proposée à l’achat pour 325 000 €.Contactez notre constructeur (RUBAL Alan : (Numéro supprimé)) pour toute information sur la maison. Faites de vos projets immobiliers une réalité avec Maisons France Confort Magny-le-Hongre.Annonce proposée par un Agent Commercial Partenaire.
Couilly-Pont-aux-Dames
TERRAIN ET MAISONVENTE d’une maison T6 (105 m²) à Couilly-Pont-aux-DamesEMPLACEMENT PRIVILÉGIÉ – MAISON 6 PIÈCES NEUVEÀ quelques kilomètres de Montreuil, en vente bénéficiant d’un emplacement d’exception dans Couilly-Pont-aux-Dames (77860), nous sommes heureux de vous présenter cette maison de 6 pièces de 105 m² et de 450 m² de terrain.Cette maison comporte 2 niveaux. Elle comporte trois chambres, une cuisine et deux salles de bains. La maison est neuve.La maison se trouve dans un quartier recherché. Il y a le Collège Privé Sainte Thérèse, l’École Primaire Privée Sainte-Thérèse et l’École Primaire Fabre d’Eglantine à moins de 10 minutes à pied et une structure d’accueil pour les tout-petits. Côté transports, on trouve la gare Couilly-Saint-Germain-Quincy à proximité. Il y a un tennis, une bibliothèque, des commerces, trois boulangeries, un supermarché, une supérette et un bureau de poste à quelques minutes de la maison.Elle est proposée à l’achat pour 334 000 €.Prenez contact avec Alan RUBAL ((Numéro supprimé)) pour toute information sur la propriété. Maisons France Confort Magny-le-Hongre vous accompagne dans toutes vos démarches et dans tous vos projets immobiliers.Annonce proposée par un Agent Commercial Partenaire.
Couilly-Pont-aux-Dames
TERRAIN ET MAISONVENTE : maison de 5 pièces (113 m²) à Couilly-Pont-aux-DamesEMPLACEMENT PRIVILÉGIÉ – MAISON 5 PIÈCES NEUVEEn vente : située à deux pas de Montreuil, notre agence Maisons France Confort Magny-le-Hongre est heureuse de vous présenter cette maison de 5 pièces de plain-pied de 113 m² et de 450 m² de terrain bénéficiant d’un emplacement privilégié dans Couilly-Pont-aux-Dames (77860).Son intérieur se divise en quatre chambres, une cuisine et deux salles de bains. Cette maison est neuve.La propriété se situe dans un secteur prisé. On trouve le Collège Privé Sainte Thérèse, l’École Primaire Privée Sainte-Thérèse et l’École Primaire Fabre d’Eglantine à moins de 10 minutes à pied et une crèche. Niveau transports, il y a la gare Couilly-Saint-Germain-Quincy à quelques pas du bien. On trouve un tennis, une bibliothèque, des commerces, trois boulangeries, un supermarché, un bureau de poste et une supérette à proximité.Elle est proposée à l’achat pour 348 400 €.Contactez notre constructeur (Alan RUBAL : (Numéro supprimé)) pour tout renseignement sur la maison ou sur les modalités de vente.Annonce proposée par un Agent Commercial Partenaire.
Meaux
TERRAIN ET MAISONPenchard : maison T6 (100 m²) en venteEMPLACEMENT PRIVILÉGIÉ – MAISON 6 PIÈCES NEUVEÀ quelques minutes du Transilien P (gare de Meaux, 25 min de Paris), à vendre bénéficiant d’un emplacement d’exception dans Penchard (77124), nous sommes heureux de vous présenter cette maison de 6 pièces de 100 m².Il s’agit d’une maison de 2 niveaux. Son intérieur se divise en quatre chambres, une cuisine et une salle de bains. Cette maison est neuve.Le terrain de la propriété s’étend sur 358 m².Cette maison est située dans un secteur recherché. On y trouve une école primaire. Côté transports, il y a les gares Meaux, Trilport et Esbly à moins de 10 minutes en voiture. On trouve un tennis, une bibliothèque et une boulangerie à quelques minutes à peine.Elle est proposée à l’achat pour 305 000 €.Contactez Alan RUBAL ((Numéro supprimé)) pour obtenir de plus amples informations sur la maison, sur les démarches à suivre ou sur les modalités de vente. Maisons France Confort Magny-le-Hongre vous accompagne dans tous vos projets immobiliers et dans toutes vos démarches.Annonce proposée par un Agent Commercial Partenaire.
Meaux
TERRAIN ET MAISONMaison de 5 pièces (113 m²) à vendre à PenchardEMPLACEMENT PRIVILÉGIÉ – MAISON 5 PIÈCES NEUVEÀ quelques minutes de la gare de Meaux (Paris à 25 min par le Transilien P), Maisons France Confort Magny-le-Hongre vous présente en vente, bénéficiant d’un emplacement privilégié dans Penchard (77124), cette maison de 5 pièces de plain-pied de 113 m² et de 358 m² de terrain.Conçue de plain-pied, elle propose quatre chambres, une cuisine et deux salles de bains. Cette maison est neuve.La maison est située dans un secteur recherché. On y trouve une école primaire. Côté transports en commun, il y a trois gares (Meaux, Trilport et Esbly) à moins de 10 minutes en voiture. On trouve un tennis, une bibliothèque et une boulangerie à proximité.Elle est proposée à l’achat pour 338 400 €.Contactez Alan RUBAL ((Numéro supprimé)) pour obtenir de plus amples informations sur le bien ou sur les démarches à suivre.Annonce proposée par un Agent Commercial Partenaire.
L’actualité immobilière à Fublaines
27/11/2023
02/11/2023
30/10/2023
20/10/2023
16/10/2023
16/10/2023