Maison à construire à Grez-sur-Loing (77880)
Images
Description
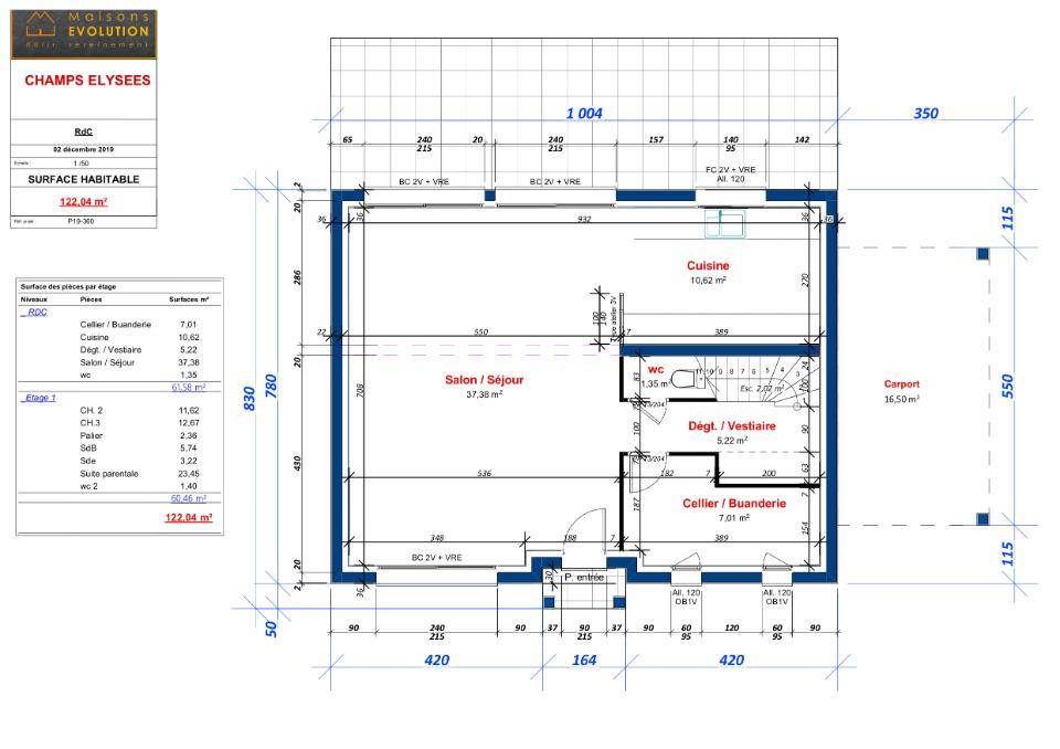
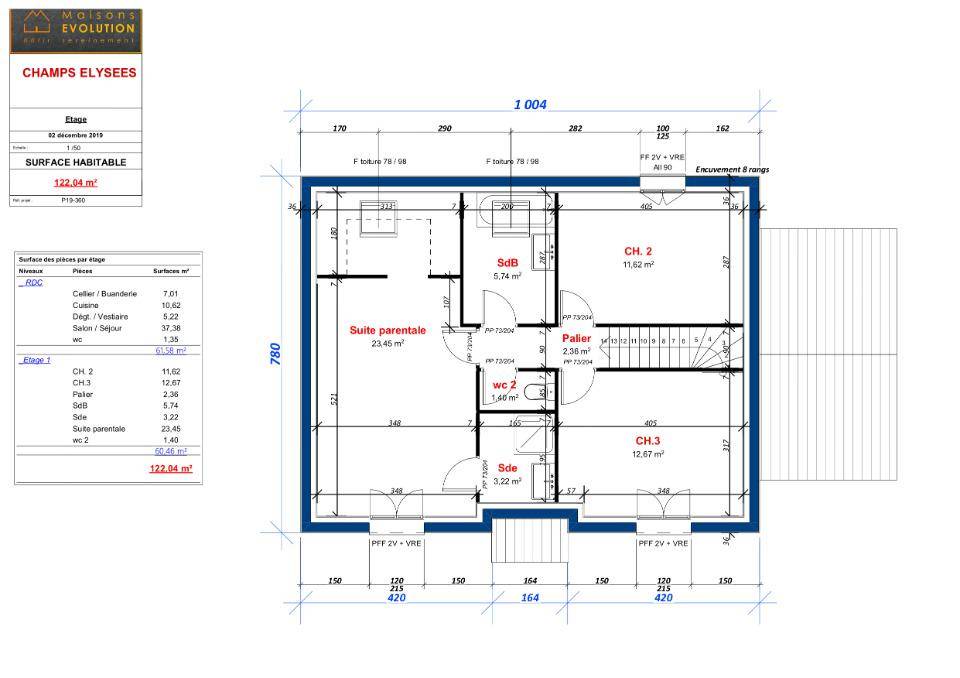
VENTE : maison de 6 pièces (122 m²) à Grez-sur-Loing
Paris à 1 h (Transilien R, Bourron-Marlotte-Grez) - À vendre à Grez-sur-Loing (77880) : maison neuve 6 pièces de 122 m² et de 200 m² de terrain. Son intérieur offre quatre chambres, une cuisine et deux salles de bains.
À proximité : gares, École Primaire les Murgers, commerce. Melun à 26 km.
Le prix de vente de cette maison de 6 pièces est de 314 900 €.
Contactez Stephanie SEBAG ((Numéro supprimé)) pour obtenir de plus amples informations sur la maison ou sur les démarches à suivre.
Annonce proposée par un Agent Commercial Partenaire.
Logement susceptibles de vous intéresser
Nous vous proposons de découvrir aussi cette sélection de logements situés à moins de 10km de Grez-sur-Loing et qui seraient susceptibles de vous intéresser.
Montigny-sur-Loing
TERRAINÀ seulement 5 minutes à pied de la gare (ligne R vers Paris Gare de Lyon) et à proximité immédiate des écoles et du centre villePrix : 110000 €.Sur ce terrain de 649 m² à MONTIGNY-SUR-LOING, Maisons Clairval vous propose de réaliser votre projet de construction de maison individuelle.Maisons Clairval propose de construire votre maison neuve avec toutes les prestations suivantes :- Plan sur-mesure et personnalisé de 2 à 6 chambres- Mode de chauffage au choix- Grands choix d'équipements et de prestations- Matériaux de qualité selon les normes en vigueur- Accompagnement dans le choix et l’acquisition du terrain- Construction conforme à la nouvelle RE 2020Demandez une étude gratuite et personnalisée de votre projet de construction sur ce terrain !Contactez Nicolas REBOUL au (Numéro supprimé) ou au (Numéro supprimé) (Maisons Clairval – Agence de Villemoisson).Prix hors frais de notaire. Terrain sélectionné et vu pour vous sous réserve de disponibilité et au prix indiqué par notre partenaire foncier. Conditions et visuels non contractuels.Cette annonce a été créée et diffusée avec le logiciel VITAHOME.
Montigny-sur-Loing
TERRAINquartier résidentiel calme à proximité immédiate de toutes commodités à pied (commerces, gare, écoles…) et de la forêt.Prix : 115000 €.Sur ce terrain de 514 m² à MONTIGNY-SUR-LOING, Maisons Clairval vous propose de réaliser votre projet de construction de maison individuelle.Maisons Clairval propose de construire votre maison neuve avec toutes les prestations suivantes :- Plan sur-mesure et personnalisé de 2 à 6 chambres- Mode de chauffage au choix- Grands choix d'équipements et de prestations- Matériaux de qualité selon les normes en vigueur- Accompagnement dans le choix et l’acquisition du terrain- Construction conforme à la nouvelle RE 2020Demandez une étude gratuite et personnalisée de votre projet de construction sur ce terrain !Contactez Nicolas REBOUL au (Numéro supprimé) ou au (Numéro supprimé) (Maisons Clairval – Agence de Villemoisson).Prix hors frais de notaire. Terrain sélectionné et vu pour vous sous réserve de disponibilité et au prix indiqué par notre partenaire foncier. Conditions et visuels non contractuels.Cette annonce a été créée et diffusée avec le logiciel VITAHOME.
Montigny-sur-Loing
TERRAIN ET MAISONTerrain proche gare a 57 minutes de Paris 15 minutes de Fontainebleu écoles et commerces sur place . Une maison spacieuse et fonctionnelle, idéale pour toute la famille ! Avec son grand espace de vie lumineux, cette maison allie confort et convivialité. Le rez-de-chaussée accueille un salon, une salle à manger et une cuisine ouverte, accompagnés d’un cellier pratique, d’une salle d’eau et d’un WC indépendant. Une chambre supplémentaire offre flexibilité et confort. À l’étage, trois chambres généreuses, une salle de bain moderne et un second WC garantissent bien-être et praticité au quotidien. Un design moderne et optimisé pour un cadre de vie agréable !. Pour vous assurer un confort de vie optimal et en conformité avec la RE2025, nous avons opté pour un système de chauffage par pompe à chaleur (PAC) avec plancher chauffant au rez-de-chaussée et radiateurs à l’étage. Le logement est également équipé de volets roulants électriques. Prix hors fourniture et pose : des appareils sanitaires (sauf système de chauffage et d'eau chaude sanitaire), du carrelage et de la faïence, des revêtements de sol dans les chambres. Hors décoration et aménagement intérieur et peinture. Hors raccordements, frais de notaire et dommage ouvrage. // Réf. : 2499-210515-CHL. Prix terrain : 115 000 €, hors frais d'agence à la charge de l'acquéreur. Ce terrain vous est proposé, par nos partenaires fonciers, dans le cadre d'un projet de construction avec nous. Les informations sur les risques auxquels ce bien est exposé sont disponibles sur le site Géorisques (www.georisques.gouv.fr). Prix maison : 166 786 €.
Montigny-sur-Loing
TERRAIN ET MAISONTerrain proche gare a 57 minutes de Paris 15 minutes de Fontainebleu écoles et commerces sur place . Une conception en L pour cette maison de plain-pied permettant une distribution harmonieuse des espaces et une excellente circulation entre les pièces. Un séjour spacieux de 30 m² baigné de lumière naturelle, offrant une atmosphère chaleureuse et accueillante pour vos moments de détente et de convivialité, une cuisine ouverte avec cellier attenant. Trois chambres bien agencées offrant des espaces de repos confortables pour chaque membre de la famille, une salle de bains indépendante. Pour vous assurer un confort de vie et conformément à la RE2025, nous avons choisi un mode de chauffage par PAC + plancher chauffant, volets roulants électriques. Prix hors fourniture et pose : des appareils sanitaires (sauf système de chauffage et d'eau chaude sanitaire), du carrelage et de la faïence, des revêtements de sol dans les chambres. Hors décoration et aménagement intérieur et peinture. Hors raccordements, frais de notaire et dommage ouvrage. . // Réf. : 2516-210515-CHL. Prix terrain : 115 000 €, hors frais d'agence à la charge de l'acquéreur. Ce terrain vous est proposé, par nos partenaires fonciers, dans le cadre d'un projet de construction avec nous. Les informations sur les risques auxquels ce bien est exposé sont disponibles sur le site Géorisques (www.georisques.gouv.fr). Prix maison : 131 219 €.
Montigny-sur-Loing
TERRAIN ET MAISONTerrain proche gare a 57 minutes de Paris 15 minutes de Fontainebleu écoles et commerces sur place . Cette maison a été pensée pour offrir un cadre de vie chaleureux et optimisé, où chaque espace trouve sa juste place pour allier confort et praticité. Dès l’entrée, une grande pièce de vie lumineuse vous accueille, offrant un espace idéal pour partager des moments en famille ou entre amis. La cuisine, ouverte sur le séjour, allie modernité et fonctionnalité pour simplifier votre quotidien. À l’étage, trois chambres cosy et bien agencées offrent à chacun son propre espace de repos et d’intimité. Une salle de bain moderne et spacieuse vient compléter cet espace nuit pour répondre aux besoins de toute la famille. Un cellier pratique et des rangement optimisés apportent encore plus de confort à cette maison pensée pour s’adapter à votre mode de vie. Moderne, fonctionnelle et pleine de charme, cette maison est une opportunité à ne pas manquer !. Pour vous assurer un confort de vie optimal et en conformité avec la RE2025, nous avons opté pour un système de chauffage par pompe à chaleur (PAC) avec plancher chauffant au rez-de-chaussée et radiateurs à l’étage. Le logement est également équipé de volets roulants électriques. Prix hors fourniture et pose : des appareils sanitaires (sauf système de chauffage et d'eau chaude sanitaire), du carrelage et de la faïence, des revêtements de sol dans les chambres. Hors décoration et aménagement intérieur et peinture. Hors raccordements, frais de notaire et dommage ouvrage. // Réf. : 2480-210515-CHL. Prix terrain : 115 000 €, hors frais d'agence à la charge de l'acquéreur. Ce terrain vous est proposé, par nos partenaires fonciers, dans le cadre d'un projet de construction avec nous. Les informations sur les risques auxquels ce bien est exposé sont disponibles sur le site Géorisques (www.georisques.gouv.fr). Prix maison : 133 585 €.
La Chapelle-la-Reine
TERRAIN ET MAISONBeau terrain a 27 minutes de Corbeil Essonne école et commerces sur place . Contemporaine et confortable, le modèle ASINARA se distingue par son porche en façade avant et ses enduits bi-ton qui lui apportent un style très actuel. Cette maison de plain-pied vous propose une très belle pièce de vie très lumineuse grâce à ses nombreuses ouvertures. La cuisine est très fonctionnelle puisqu’à la fois ouverte sur le séjour et accolée au cellier. L’espace nuit est composé de trois chambres avec tous les rangements nécessaires ainsi que d’une salle de bains et des wc séparés. Le plus de cette maison est sans nul doute son garage intégré. Ses jeux d'enduits personnalisables sauront vous séduire. Pour vous assurer un confort de vie et conformément à la RE2025, nous avons choisi un mode de chauffage par PAC + plancher chauffant, volets roulants électriques. Prix hors fourniture et pose : des appareils sanitaires (sauf système de chauffage et d'eau chaude sanitaire), du carrelage et de la faïence, des revêtements de sol dans les chambres. Hors décoration et aménagement intérieur et peinture. Hors raccordements, frais de notaire et dommage ouvrage. // Réf. : 1809-210512-CHL. Prix terrain : 98 000 €, hors frais d'agence à la charge de l'acquéreur. Ce terrain vous est proposé, par nos partenaires fonciers, dans le cadre d'un projet de construction avec nous. Les informations sur les risques auxquels ce bien est exposé sont disponibles sur le site Géorisques (www.georisques.gouv.fr). Prix maison : 132 573 €.
La Chapelle-la-Reine
TERRAIN ET MAISONBeau terrain a 27 minutes de Corbeil Essonne école et commerces sur place . Cette maison a été pensée pour offrir un cadre de vie chaleureux et optimisé, où chaque espace trouve sa juste place pour allier confort et praticité. Dès l’entrée, une grande pièce de vie lumineuse vous accueille, offrant un espace idéal pour partager des moments en famille ou entre amis. La cuisine, ouverte sur le séjour, allie modernité et fonctionnalité pour simplifier votre quotidien. À l’étage, trois chambres cosy et bien agencées offrent à chacun son propre espace de repos et d’intimité. Une salle de bain moderne et spacieuse vient compléter cet espace nuit pour répondre aux besoins de toute la famille. Un cellier pratique et des rangement optimisés apportent encore plus de confort à cette maison pensée pour s’adapter à votre mode de vie. Moderne, fonctionnelle et pleine de charme, cette maison est une opportunité à ne pas manquer !. Pour vous assurer un confort de vie optimal et en conformité avec la RE2025, nous avons opté pour un système de chauffage par pompe à chaleur (PAC) avec plancher chauffant au rez-de-chaussée et radiateurs à l’étage. Le logement est également équipé de volets roulants électriques. Prix hors fourniture et pose : des appareils sanitaires (sauf système de chauffage et d'eau chaude sanitaire), du carrelage et de la faïence, des revêtements de sol dans les chambres. Hors décoration et aménagement intérieur et peinture. Hors raccordements, frais de notaire et dommage ouvrage. // Réf. : 2480-210512-CHL. Prix terrain : 98 000 €, hors frais d'agence à la charge de l'acquéreur. Ce terrain vous est proposé, par nos partenaires fonciers, dans le cadre d'un projet de construction avec nous. Les informations sur les risques auxquels ce bien est exposé sont disponibles sur le site Géorisques (www.georisques.gouv.fr). Prix maison : 133 585 €.
La Chapelle-la-Reine
TERRAIN ET MAISONBeau terrain a 27 minutes de Corbeil Essonne école et commerces sur place . Découvrez cette maison compacte et bien agencée, idéale sur un petit terrain. Profitez d’un espace de vie optimisé de 40 m² avec une cuisine ouverte, idéale pour les moments en famille ou entre amis. Un cellier attenant vous offre un espace de rangement supplémentaire. Cette maison comprend également 3 chambres confortables, une salle de bains et des wc séparés pour plus de praticité. Pour vous assurer un confort de vie et conformément à la RE2025, nous avons choisi un mode de chauffage par PAC + plancher chauffant, volets roulants électriques. Prix hors fourniture et pose : des appareils sanitaires (sauf système de chauffage et d'eau chaude sanitaire), du carrelage et de la faïence, des revêtements de sol dans les chambres. Hors décoration et aménagement intérieur et peinture. Hors raccordements, frais de notaire et dommage ouvrage. . // Réf. : 2532-210512-CHL. Prix terrain : 98 000 €, hors frais d'agence à la charge de l'acquéreur. Ce terrain vous est proposé, par nos partenaires fonciers, dans le cadre d'un projet de construction avec nous. Les informations sur les risques auxquels ce bien est exposé sont disponibles sur le site Géorisques (www.georisques.gouv.fr). Prix maison : 131 695 €.
La Chapelle-la-Reine
TERRAINBeau terrain a 27 minutes de Corbeil Essonne école et commerces sur place . // Réf. : T210512. Prix terrain : 98 000 €, hors frais d'agence et de notaire à la charge de l'acquéreur. Ce terrain vous est proposé, par nos partenaires fonciers, dans le cadre d'un projet de construction avec nous. Les informations sur les risques auxquels ce bien est exposé sont disponibles sur le site Géorisques (www.georisques.gouv.fr).
L’actualité immobilière à Grez-sur-Loing
27/11/2023
02/11/2023
30/10/2023
20/10/2023
16/10/2023
16/10/2023