Images
Description
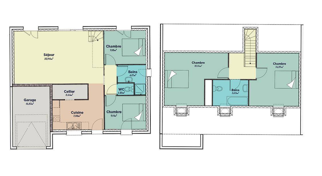
Sur ce terrain, nous vous proposons cette maison neuve : la Focus EVO, un modèle unique de 110 m² conçu par Babeau-Seguin, constructeur offrant le meilleur rapport qualité/prix du marché. Cette maison basse consommation est conforme à la norme RE2020, garantissant des performances énergétiques exceptionnelles.
La Focus EVO se distingue par son concept évolutif, alliant une maison neuve prête à vivre et une maison prête à finir. Livrée avec 73 m² habitables, elle est conçue pour évoluer avec vos besoins futurs. Grâce à ses combles aménageables, vous pouvez facilement augmenter votre surface habitable à 110 m², ajoutant ainsi deux chambres supplémentaires et une salle de bain, pour un total de 4 chambres et 2 salles de bains.
Les caractéristiques principales de cette maison incluent un garage intégré, un cellier, et des combles aménageables. Les options les plus demandées par nos clients, telles que la version Investisseur et les prises USB murales, sont également disponibles.
La Focus EVO est idéale pour tous ceux qui recherchent une maison complète à un prix compétitif. Elle comprend une grande pièce de jour traversante, 4 chambres, une salle de bain, et un garage de 15 m². Que vous soyez un jeune couple, un célibataire ou une famille en pleine expansion, cette maison saura s'adapter à vos besoins et à vos envies.
Ne manquez pas cette occasion unique de devenir propriétaire d'une maison évolutive, économe en énergie et conforme aux dernières normes environnementales. Contactez-nous dès aujourd'hui pour plus d'informations et pour planifier une visite.
Logement susceptibles de vous intéresser
Nous vous proposons de découvrir aussi cette sélection de logements situés à moins de 10km de Grisy-Suisnes et qui seraient susceptibles de vous intéresser.
Soignolles-en-Brie
TERRAIN ET MAISONRéalisez votre projet de construction de maison RE 2020 avec PAVILLONS D'ÎLE-DE-FRANCE (constructeur de maisons de gamme et sur-mesure depuis plus de 50 ans) :- Plan sur-mesure et personnalisé de 2 à 5 chambres- Mode de chauffage au choix- Grands choix d'équipements et de prestations- Matériaux de qualité selon les normes en vigueur- Accompagnement dans le choix et l’acquisition du terrainInformations du terrain : Terrain entièrement viabilisé situé à 2 minutes de Coubert et 12 minutes RER MOISSY-CRAMAYEL,Demandez une étude gratuite et personnalisée de votre projet de construction !Contactez Olivier SAMSON au (Numéro supprimé) ou au (Numéro supprimé) (Pavillons d'Île-de-France – Agence de Meaux).Prix avec assurance dommages-ouvrage comprise, hors VRD, terrain viabilisé, assainissement compris, frais de notaire non compris, taxes non comprises, frais divers non compris. Terrain sélectionné et vu pour vous sous réserve de disponibilité et au prix indiqué par notre partenaire foncier. Visuels non contractuels.Cette annonce a été créée et diffusée avec le logiciel VITAHOME.
Tournan-en-Brie
TERRAIN ET MAISONVENTE d’une maison de 6 pièces (105 m²) à 7 min de Tournan-en-BrieIDÉALEMENT SITUÉE – MAISON 6 PIÈCES NEUVEÀ vendre : à côté de la station Tournan (Paris à 40 min par le RER E), idéalement située dans Les Chapelles Bourbon à 7 min de Tournan-en-Brie (77220), Maisons France Confort La Queue-en-Brie vous présente cette maison de 6 pièces de 105 m² sans vis-à-vis. Elle comporte trois chambres, une cuisine et deux salles de bains.Le terrain de la propriété est de 323 m².Cette maison compte 2 niveaux. Elle est neuve.Cette maison se situe dans un quartier recherché. Des écoles maternelles et élémentaires sont implantées à moins de 10 minutes à pied, tout comme trois structures d’accueil pour la petite enfance. Niveau transports en commun, il y a la station de RER Tournan (ligne E) ainsi que la gare Tournan-en-Brie à proximité. On trouve une bibliothèque, un tennis, des commerces, trois boulangeries, un supermarché, deux épiceries et un bureau de poste à quelques minutes. Le marché Place du marché anime les environs tous les samedis matin.Elle est à vendre pour la somme de 358 000 €.Contactez Dominique (tél : (Numéro supprimé)) pour obtenir de plus amples renseignements sur la maison ou sur les modalités de vente.
Grisy-Suisnes
TERRAIN ET MAISONVENTE d’une maison de 4 pièces (78 m²) à Grisy-SuisnesMAISON 4 PIÈCES NEUVEAu pied de la station Gretz-Armainvilliers du RER E (35 min de Paris), nous vous présentons cette maison de 4 pièces de 78 m² à Grisy-Suisnes (77166).Cette maison comporte 2 niveaux. Son intérieur se divise en trois chambres, une cuisine et une salle de bains. La maison est neuve.Le terrain de la propriété s’étend sur 447 m².L’École Élémentaire Champ Fleuri et l’École Maternelle la Ruche sont implantées à moins de 10 minutes à pied. Niveau transports en commun, il y a les lignes de RER E et D ainsi que cinq gares à moins de 10 minutes en voiture. On trouve un tennis, une bibliothèque, deux commerces, une boulangerie, un bureau de poste et deux épiceries à proximité du bien.Elle est proposée à l’achat pour 316 875 €.Prenez contact avec notre agence (DELOHEN Anne : (Numéro supprimé)) pour plus d’informations sur ce bien ou sur les modalités de vente. Maisons France Confort Nemours est là pour vous accompagner à toutes les étapes de l’achat.Annonce proposée par un Agent Commercial Partenaire.
Grisy-Suisnes
TERRAIN ET MAISONVENTE : maison F7 (104 m²) à Grisy-SuisnesMAISON 7 PIÈCES NEUVEÀ proximité de la station Gretz-Armainvilliers (Paris à 35 min avec le RER E), à vendre à Grisy-Suisnes (77166), nous vous présentons cette maison de 7 pièces de 104 m².C’est une maison de 2 niveaux. Son intérieur compte six chambres, une cuisine et deux salles de bains. Cette maison est neuve.Le terrain du bien est de 559 m².Il y a l’École Élémentaire Champ Fleuri et l’École Maternelle la Ruche à moins de 10 minutes à pied. Côté transports en commun, on trouve deux lignes de RER (E et D) ainsi que cinq gares à moins de 10 minutes en voiture. Il y a un tennis, une bibliothèque, deux commerces, une boulangerie, un bureau de poste et deux épiceries dans les environs.Il est à vendre pour la somme de 410 400 €.Contactez notre agence (Anne DELOHEN : (Numéro supprimé)) pour obtenir de plus amples informations sur la maison, sur les démarches à suivre ou sur les modalités de vente. Donnez vie à vos projets immobiliers avec Maisons France Confort Nemours.Annonce proposée par un Agent Commercial Partenaire.
Tournan-en-Brie
TERRAIN ET MAISONRéalisez votre projet de construction de maison RE 2020 avec PAVILLONS D'ÎLE-DE-FRANCE (constructeur de maisons de gamme et sur-mesure depuis plus de 50 ans) :- Plan sur-mesure et personnalisé de 2 à 5 chambres- Mode de chauffage au choix- Grands choix d'équipements et de prestations- Matériaux de qualité selon les normes en vigueur- Accompagnement dans le choix et l’acquisition du terrainInformations du terrain : Terrain situé à Favières , 5 minutes de la gare RER E de Tournan en Brie.Cadre verdoyant et calme.Contactez Olivier au (Numéro supprimé)Demandez une étude gratuite et personnalisée de votre projet de construction !Contactez Olivier SAMSON au (Numéro supprimé) ou au (Numéro supprimé) (Pavillons d'Île-de-France – Agence de Meaux).Prix avec assurance dommages-ouvrage comprise, hors VRD, terrain non viabilisé, assainissement non compris, frais de notaire non compris, taxes non comprises, frais divers non compris. Terrain sélectionné et vu pour vous sous réserve de disponibilité et au prix indiqué par notre partenaire foncier. Visuels non contractuels.Cette annonce a été créée et diffusée avec le logiciel VITAHOME.
Grisy-Suisnes
TERRAIN ET MAISONMaison de 3 pièces (65 m²) en vente à Grisy-SuisnesMAISON 3 PIÈCES NEUVEÀ côté du RER E (station Gretz-Armainvilliers, 35 min de Paris), en vente à Grisy-Suisnes (77166), découvrez cette maison de 3 pièces de plain-pied de 65 m².Son intérieur dispose de deux chambres, d’une cuisine et d’une salle de bains. La maison est neuve.Le terrain du bien est de 456 m².L’École Élémentaire Champ Fleuri et l’École Maternelle la Ruche sont implantées à moins de 10 minutes à pied. Niveau transports en commun, on trouve deux lignes de RER (E et D) ainsi que cinq gares à moins de 10 minutes en voiture. Il y a un tennis, une bibliothèque, deux commerces, une boulangerie, un bureau de poste et deux épiceries à proximité.Elle est proposée à l’achat pour 313 000 €.Contactez Anne DELOHEN ((Numéro supprimé)) pour toute question sur ce bien ou sur les modalités de vente. Maisons France Confort Nemours est là pour vous accompagner à toutes les étapes de votre projet.Annonce proposée par un Agent Commercial Partenaire.
Grisy-Suisnes
TERRAIN ET MAISONMaison T6 (122 m²) à vendre à Grisy-SuisnesMAISON 6 PIÈCES NEUVEÀ deux pas de la station Gretz-Armainvilliers du RER E (35 min de Paris), ayez le coup de coeur pour cette maison de 6 pièces de 122 m² à vendre à Grisy-Suisnes (77166).Il s’agit d’une maison de 2 niveaux. Son intérieur compte quatre chambres, une cuisine et deux salles de bains. Cette maison est neuve.Le terrain du bien est de 529 m².L’École Élémentaire Champ Fleuri et l’École Maternelle la Ruche sont implantées à moins de 10 minutes à pied. Côté transports en commun, il y a les lignes E et D du RER ainsi que cinq gares à moins de 10 minutes en voiture. On trouve un tennis, une bibliothèque, deux commerces, une boulangerie, deux épiceries et un bureau de poste à proximité.Elle est à vendre pour la somme de 406 097 €.Prenez contact avec notre agence (DELOHEN Anne : (Numéro supprimé)) pour toute question sur le bien. Maisons France Confort Nemours est là pour vous accompagner à toutes les étapes de l’achat.Annonce proposée par un Agent Commercial Partenaire.
Brie-Comte-Robert
TERRAIN ET MAISONVENTE d’une maison F6 (89 m²) proche Brie-Comte-RobertMAISON 6 PIÈCES NEUVE – À vendre : proche de la station Combs-la-Ville-Quincy (Paris à 30 min avec le RER D), notre agence Maisons France Confort Nemours est ravie de vous proposer cette maison de 6 pièces de 89 m² proche Brie-Comte-Robert (77170). Elle inclut quatre chambres, une cuisine et une salle de bains.Le terrain de la propriété s’étend sur 400 m².Cette maison comporte 2 niveaux. Elle est neuve.Cinq établissements scolaires sont implantés à moins de 10 minutes à pied. Côté transports, il y a le RER D, E et A ainsi que sept gares à moins de 10 minutes en voiture. On trouve une bibliothèque, des boulangeries, des commerces, trois supermarchés, un bureau de poste et une boucherie-charcuterie à quelques minutes du bien.Elle est proposée à l’achat pour 340 000 €.Contactez notre agence (Jerome RAOUX : (Numéro supprimé)) pour plus de renseignements sur la maison, sur les modalités de vente ou sur les démarches à suivre. Maisons France Confort Nemours vous accompagne à toutes les étapes de votre projet et dans tous vos projets immobiliers.Annonce proposée par un Agent Commercial Partenaire.
Grisy-Suisnes
TERRAIN ET MAISONMaison de 5 pièces (96 m²) en vente à Grisy-SuisnesMAISON 5 PIÈCES NEUVE En vente : à proximité de la station Gretz-Armainvilliers (Paris à 35 min par le RER E), à Grisy-Suisnes (77166), venez découvrir cette maison de 5 pièces de 96 m². Elle propose quatre chambres, une cuisine et une salle de bains.Le terrain du bien s’étend sur 559 m².Cette maison possède 2 niveaux. Elle est neuve.Il y a l’École Élémentaire Champ Fleuri et l’École Maternelle la Ruche à moins de 10 minutes à pied. Côté transports, on trouve le RER E et D ainsi que cinq gares à moins de 10 minutes en voiture. Il y a un tennis, une bibliothèque, deux commerces, une boulangerie, un bureau de poste et deux épiceries dans les environs.Son prix de vente est de 343 382 €.Contactez notre agence (Anne DELOHEN : (Numéro supprimé)) pour tout renseignement sur cette maison. Maisons France Confort Nemours est là pour vous accompagner à toutes les étapes de l’achat.Annonce proposée par un Agent Commercial Partenaire.
L’actualité immobilière à Grisy-Suisnes
27/11/2023
02/11/2023
30/10/2023
20/10/2023
16/10/2023
16/10/2023