Terrain à vendre

Maison à construire à Grisy-Suisnes (77166)

306000 €
90 m²
Grisy-Suisnes
Seine-et-Marne (77)
TERRAIN ET MAISON
Réf externe: 3546496
Annonce publiée le 26 octobre 2025

Images

Description

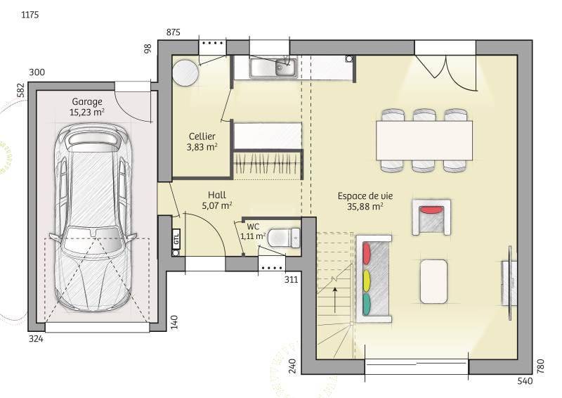
Benoit SAISON de MAISONS BALENCY au (Numéro supprimé) vous propose de réaliser votre projet de construction 100% SUR-MESURE sur ce beau terrain. Ne manquez pas cette occasion unique de construire la maison de vos rêves. Elle sera réalisée en fonction de vos souhaits et de votre budget. Descriptif et matériaux de qualité, maison RE 2020, contrat CCMI. Plans réalisés pas nos soins, modèle sur mesure, maison écologique avec une architecture contemporaine ou moderne. Terrain proposé par notre partenaires fonciers, sous réserve de disponibilité. (Offre Terrain+Maison hors frais de notaires). Contactez moi dès maintenant au (Numéro supprimé) pour discuter de votre projet et commencer à transformer vos idées en réalité. Votre maison personnalisée vous attend !!


Annonce proposée par un Agent Commercial Partenaire.

CONTACTER

Logement susceptibles de vous intéresser

134 000 € 382 €/m²
351 m²

Évry-Grégy-sur-Yerre

TERRAIN

Rare sur le secteur.Muriel GARNIER vous présente en exclusivité, ce beau terrain plat de 351m2 situé dans le charmant village d’Evry Grégy Sur Yerre.Situé à 30km de Paris, et seulement 5min de l’entrée N104 et A5B,La commune bénéficie de commerces de proximité (Restauration, Boulangerie, épicerie, coiffeur, pharmacie), ainsi que les écoles primaires et maternelles.Cette commune charmera tous les amoureux de la nature à la recherche de calme.Le terrain est plat et borné.La façade mesure un peu plus de 21m et dispose d’une profondeur de 18m environ.Prévoir viabilité des réseaux eau, électricité et tout à l’égout sur ruePrix : 134.000 euros FAI Honoraires charge vendeur.Pour visiter et vous accompagner dans votre projet, contactez Muriel GARNIER, au (Numéro supprimé) ou, par courriel à (Email supprimé).Selon l’article L.561.5 du Code Monétaire et Financier, pour l’organisation de la visite, la présentation d’une pièce d’identité vous sera demandée.Cette présente annonce a été rédigée sous la responsabilité éditoriale de Muriel GARNIER agissant sous le statut d’agent commercial immatriculé au RSAC EVRY 981 209 620 auprès de SAS PROPRIETES PRIVEES, au capital de 44 920 euros, ZAC LE CHÊNE FERRÉ – 44 ALLÉE DES CINQ CONTINENTS 44120 VERTOU; SIRET 487 624 777 00040, RCS Nantes. Carte Professionnelle Transactions sur immeubles et fonds de commerce (T) et Gestion immobilière (G) n°CPI 4401 2016 000 010 388 délivrée par la CCI Nantes – Saint Nazaire. Compte séquestre n(Numéro supprimé)67 BPA SAINT-SEBASTIEN-SUR-LOIRE (44230). Garantie GALIAN-SMABTP – 89 rue de la Boétie, 75008 Paris – n°28137 J pour 2 000 000 euros pour T et 120 000 euros pour G. Assurance responsabilité civile professionnelle par GALIAN-SMABTP n° de police 28137.JMandat réf : 405840 – Le professionnel garantit et sécurise votre projet immobilier. Muriel GARNIER (EI) Agent Commercial – Numéro RSAC : EVRY 981 209 620 – .

L’actualité immobilière à Grisy-Suisnes

Image du post Pourquoi acheter un terrain en lotissement ? 27/11/2023
Lire l’article
Pourquoi acheter un terrain en lotissement ?
Image du post Vendre son terrain à un promoteur : comment procéder ? 02/11/2023
Lire l’article
Vendre son terrain à un promoteur : comment procéder ?
Image du post Diviser le terrain de sa maison pour le vendre : pourquoi et comment ? 30/10/2023
Lire l’article
Diviser le terrain de sa maison pour le vendre : pourquoi et comment ?
Image du post Acheter un terrain viabilisé : quels avantages ? 20/10/2023
Lire l’article
Acheter un terrain viabilisé : quels avantages ?
Image du post Les 7 étapes incontournables pour bien vendre votre terrain constructible 16/10/2023
Lire l’article
Les 7 étapes incontournables pour bien vendre votre terrain constructible
Image du post 5 points clés à vérifier pour l’achat d’un terrain constructible  16/10/2023
Lire l’article
5 points clés à vérifier pour l’achat d’un terrain constructible