Maison à construire à Hermé (77114)
Images
Description
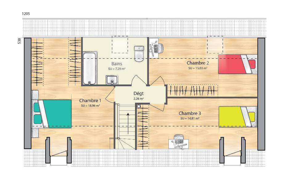
VENTE : maison de 6 pièces (105 m²) à Hermé
EMPLACEMENT PRIVILÉGIÉ - MAISON 6 PIÈCES NEUVE
En vente : à deux pas de la gare de Longueville (Paris à 1 h par le Transilien P), notre agence Maisons France Confort Nemours est ravie de vous présenter cette maison de 6 pièces de 105 m² bénéficiant d'un emplacement privilégié dans Hermé (77114). Elle inclut quatre chambres, une cuisine et deux salles de bains.
Le terrain de la maison s'étend sur 1 232 m².
Cette maison compte 2 niveaux. Elle est neuve.
Cette maison se situe dans un quartier attractif. Une école primaire y est implantée. Côté transports en commun, on trouve quatre gares à moins de 10 minutes en voiture.
Elle est à vendre pour la somme de 246 500 €.
N'hésitez pas à prendre contact avec notre agence (DELOHEN Anne : (Numéro supprimé)) pour plus d'informations sur la propriété ou sur les modalités de vente. Donnez vie à vos projets immobiliers avec Maisons France Confort Nemours.
Annonce proposée par un Agent Commercial Partenaire.
Logement susceptibles de vous intéresser
Nous vous proposons de découvrir aussi cette sélection de logements situés à moins de 10km de Hermé et qui seraient susceptibles de vous intéresser.
Hermé
TERRAINVENTE d’un terrain de 1 232 m² à HerméEMPLACEMENT PRIVILÉGIÉ – VUE DÉGAGÉEÀ Hermé (77114) proche du Transilien P (gare de Longueville, 1 h de Paris), imaginez la maison de vos rêves sur ce terrain de 1 232 m². Il profite d’une vue dégagée. Il est situé dans un quartier convoité. On y trouve une école primaire. Niveau transports, on trouve quatre gares à moins de 10 minutes en voiture.Ce terrain est à vendre pour la somme de 48 000 €. Contactez notre agence (Anne DELOHEN : (Numéro supprimé)) pour plus d’informations sur ce terrain. Maisons France Confort Nemours est là pour vous accompagner dans tous vos projets immobiliers.Annonce proposée par un Agent Commercial Partenaire.
Everly
TERRAINTerrain de 1 130 m² à vendre à EverlyIDÉALEMENT SITUÉ – PROCHE DE LONGUEVILLE À deux pas du Transilien P (gare de Longueville, 1 h de Paris) à Everly (77157), grand terrain. Il est prêt à accueillir votre projet de construction pour toute la famille. Une école élémentaire est implantée dans le quartier. Niveau transports, il y a trois gares (Longueville, Sainte-Colombe Septveilles et Champbenoist-Poigny) à moins de 10 minutes en voiture. On trouve un tennis et une boulangerie dans les environs.Il est proposé à l’achat pour 56 000 €. Prenez contact avec notre agence (DELOHEN Anne : (Numéro supprimé)) pour toute information sur ce terrain ou sur les démarches à suivre. Donnez vie à vos projets immobiliers avec Maisons France Confort Nemours.Annonce proposée par un Agent Commercial Partenaire.
Hermé
TERRAIN ET MAISONHermé : maison de 5 pièces (90 m²) à vendreEMPLACEMENT PRIVILÉGIÉ – MAISON 5 PIÈCES NEUVEÀ deux pas du Transilien P (gare de Longueville, 1 h de Paris), votre agence Maisons France Confort Nemours est ravie de vous proposer cette maison de 5 pièces de plain-pied de 90 m² et de 1 232 m² de terrain à vendre, bénéficiant d’un emplacement privilégié dans Hermé (77114). Conçue de plain-pied, elle se divise en trois chambres, une cuisine et une salle de bains.Cette maison est neuve.La propriété est située dans un quartier prisé. On y trouve une école primaire. Niveau transports en commun, on trouve quatre gares à moins de 10 minutes en voiture.Elle est à vendre pour la somme de 213 500 €.Prenez contact avec notre agence (Anne DELOHEN : (Numéro supprimé)) pour obtenir de plus amples renseignements sur la maison. Maisons France Confort Nemours vous accompagne à toutes les étapes de votre projet et dans toutes vos démarches.Annonce proposée par un Agent Commercial Partenaire.
Hermé
TERRAIN ET MAISONMaison T7 (110 m²) à vendre à HerméEMPLACEMENT PRIVILÉGIÉ – MAISON 7 PIÈCES NEUVEÀ vendre : proche de la gare de Longueville (Paris à 1 h par le Transilien P), votre agence Maisons France Confort Nemours est ravie de vous présenter cette maison de 7 pièces de 110 m² et de 1 232 m² de terrain bénéficiant d’un emplacement d’exception dans Hermé (77114).Cette maison compte 2 niveaux. Elle dispose de quatre chambres, d’une cuisine et de deux salles de bains. Cette maison est neuve.La propriété se situe dans un quartier recherché. On y trouve une école primaire. Côté transports en commun, il y a quatre gares à moins de 10 minutes en voiture.Elle est à vendre pour la somme de 309 700 €.Contactez notre agence (DELOHEN Anne : (Numéro supprimé)) pour plus d’informations sur la maison. Maisons France Confort Nemours vous accompagne à toutes les étapes de votre projet et dans toutes vos démarches.Annonce proposée par un Agent Commercial Partenaire.
Hermé
TERRAIN ET MAISONMaison de 5 pièces (110 m²) à vendre à HerméEMPLACEMENT PRIVILÉGIÉ – MAISON 5 PIÈCES NEUVEÀ proximité de la gare de Longueville (Paris à 1 h par le Transilien P), à vendre bénéficiant d’un emplacement privilégié dans Hermé (77114), Maisons France Confort Nemours vous propose cette maison de 5 pièces de plain-pied de 110 m².Conçue de plain-pied, elle compte quatre chambres, une cuisine et deux salles de bains. Cette maison est neuve.Le terrain de la propriété est de 1 232 m².La maison est située dans un secteur attractif. On y trouve une école primaire. Niveau transports, on trouve quatre gares à moins de 10 minutes en voiture.Son prix de vente est de 233 600 €.Prenez contact avec Anne DELOHEN ((Numéro supprimé)) pour plus de renseignements sur la propriété.Annonce proposée par un Agent Commercial Partenaire.
Hermé
TERRAIN ET MAISONVENTE : maison de 6 pièces (105 m²) à HerméEMPLACEMENT PRIVILÉGIÉ – MAISON 6 PIÈCES NEUVEEn vente : à deux pas de la gare de Longueville (Paris à 1 h par le Transilien P), notre agence Maisons France Confort Nemours est ravie de vous présenter cette maison de 6 pièces de 105 m² bénéficiant d’un emplacement privilégié dans Hermé (77114). Elle inclut quatre chambres, une cuisine et deux salles de bains.Le terrain de la maison s’étend sur 1 232 m².Cette maison compte 2 niveaux. Elle est neuve.Cette maison se situe dans un quartier attractif. Une école primaire y est implantée. Côté transports en commun, on trouve quatre gares à moins de 10 minutes en voiture.Elle est à vendre pour la somme de 246 500 €.N’hésitez pas à prendre contact avec notre agence (DELOHEN Anne : (Numéro supprimé)) pour plus d’informations sur la propriété ou sur les modalités de vente. Donnez vie à vos projets immobiliers avec Maisons France Confort Nemours.Annonce proposée par un Agent Commercial Partenaire.
Hermé
TERRAIN ET MAISONVENTE d’une maison de 5 pièces (101 m²) à HerméEMPLACEMENT PRIVILÉGIÉ – MAISON 5 PIÈCES NEUVEÀ vendre : au pied de la gare de Longueville (Paris à 1 h avec le Transilien P), venez découvrir, bénéficiant d’un emplacement privilégié dans Hermé (77114), cette maison de 5 pièces de plain-pied de 101 m².Elle comporte quatre chambres, une cuisine et une salle de bains. Cette maison est neuve.Le terrain du bien s’étend sur 1 232 m².Cette maison se situe dans un quartier recherché. On y trouve une école primaire. Niveau transports, on trouve quatre gares à moins de 10 minutes en voiture.Son prix de vente est de 226 900 €.Contactez notre agence (DELOHEN Anne : (Numéro supprimé)) pour tout renseignement sur la maison. Concrétisez vos projets immobiliers avec Maisons France Confort Nemours.Annonce proposée par un Agent Commercial Partenaire.
Everly
TERRAIN ET MAISONMaison de 6 pièces (109 m²) à vendre à EverlyIDÉALEMENT SITUÉE – MAISON 6 PIÈCES NEUVEEn vente : au pied du Transilien P (gare de Longueville, 1 h de Paris), Maisons France Confort Nemours vous propose cette maison de 6 pièces de 109 m² idéalement située dans Everly (77157). Elle dispose de quatre chambres, d’une cuisine et de deux salles de bains.Le terrain de cette maison est de 1 130 m².C’est une maison de 2 niveaux. Elle est neuve.La maison est située dans un secteur prisé. On y trouve une école élémentaire. Niveau transports en commun, il y a trois gares (Longueville, Sainte-Colombe Septveilles et Champbenoist-Poigny) à moins de 10 minutes en voiture. On trouve un tennis et une boulangerie à proximité du logement.Son prix de vente est de 247 600 €.Prenez contact avec notre agence (DELOHEN Anne : (Numéro supprimé)) pour toute information sur la maison. Maisons France Confort Nemours est là pour vous accompagner dans toutes vos démarches.Annonce proposée par un Agent Commercial Partenaire.
Everly
TERRAIN ET MAISONVENTE : maison F5 (90 m²) à EverlyIDÉALEMENT SITUÉE – MAISON 5 PIÈCES NEUVEEn vente : proche du Transilien P (gare de Longueville, 1 h de Paris), nous sommes heureux de vous proposer, idéalement située dans Everly (77157), cette maison de 5 pièces de plain-pied de 90 m² et de 1 130 m² de terrain.Conçue de plain-pied, elle est composée de trois chambres, d’une cuisine et d’une salle de bains. La maison est neuve.Ce bien est situé dans un quartier attractif. On y trouve une école élémentaire. Niveau transports en commun, on trouve les gares Longueville, Sainte-Colombe Septveilles et Champbenoist-Poigny à moins de 10 minutes en voiture. Il y a un tennis et une boulangerie dans les environs.Son prix de vente est de 221 300 €.Contactez notre agence (Anne DELOHEN : (Numéro supprimé)) pour toute question sur la maison ou sur les modalités de vente. Concrétisez vos projets immobiliers avec Maisons France Confort Nemours.Annonce proposée par un Agent Commercial Partenaire.
L’actualité immobilière à Hermé
27/11/2023
02/11/2023
30/10/2023
20/10/2023
16/10/2023
16/10/2023