Maison à construire à Jossigny (77600)
Images
Description
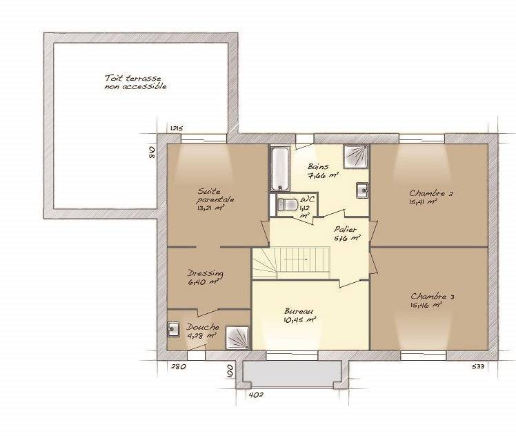
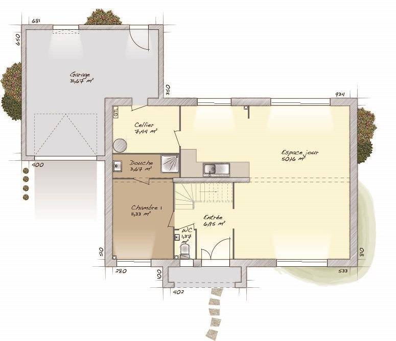
VENTE : maison de 7 pièces (160 m²) à Jossigny
PROCHE DE PARIS - MAISON 7 PIÈCES NEUVE
À côté de la station Val d'Europe du RER A (30 min de Paris), nous vous proposons à vendre à Jossigny (77600), cette maison de 7 pièces de 160 m².
Cette maison comporte 2 niveaux. Son intérieur inclut quatre chambres, une cuisine et deux salles de bains. La maison est neuve.
Le terrain de la propriété est de 535 m².
Une école primaire est implantée dans le quartier. Niveau transports en commun, on trouve le RER A et E ainsi que neuf gares à moins de 10 minutes en voiture. Il y a une boulangerie, deux épiceries et une boucherie-charcuterie à proximité.
Son prix de vente est de 649 000 €.
Prenez contact avec notre agence (MONTANIER Christophe : (Numéro supprimé)) pour plus de renseignements sur cette maison, sur les modalités de vente ou sur les démarches à suivre.
Annonce proposée par un Agent Commercial Partenaire.
Logement susceptibles de vous intéresser
Nous vous proposons de découvrir aussi cette sélection de logements situés à moins de 10km de Jossigny et qui seraient susceptibles de vous intéresser.
Lagny-sur-Marne
TERRAINVENTE d’un terrain de 320 m² à Lagny-sur-MarneIDÉALEMENT SITUÉ – VUE DÉGAGÉEÀ Lagny-sur-Marne (77400) à deux pas de la gare de Lagny-Thorigny (Paris à 25 min par le Transilien P), donnez vie à la maison de vos rêves sur ce terrain de 320 m². Ce terrain, avec vue dégagée, est orienté au sud-ouest. Dans un secteur prisé, le terrain idéalement situé est proche des commerces et des écoles. Il y a des écoles de tous niveaux (de la maternelle au lycée) à moins de 10 minutes à pied, tout comme trois structures d’accueil pour les enfants en bas âge. Niveau transports, on trouve les lignes A et E du RER ainsi que sept gares à moins de 10 minutes en voiture. Il y a une bibliothèque, un bassin de natation, un tennis, des commerces, des boulangeries, un bureau de poste, des boucheries-charcuteries et une poissonnerie à quelques minutes à peine. Le marché Place du marché anime les environs.Ce terrain est à vendre pour la somme de 220 000 €. N’hésitez pas à prendre contact avec Hugo NGUYEN (tél : (Numéro supprimé)) pour tout renseignement sur le terrain ou sur les démarches à suivre. Donnez vie à vos projets immobiliers avec Maisons France Confort Magny-le-Hongre.Annonce proposée par un Agent Commercial Partenaire.
Chessy
TERRAINChessy : terrain de 489 m² à vendreIDÉALEMENT SITUÉ – VUE DÉGAGÉEÀ Chessy (77700) à deux pas du RER A (station Val d’Europe, 30 min de Paris), projetez la maison de vos rêves sur ce terrain de 489 m². Il profite d’une vue dégagée et est exposé au sud-ouest. Dans un secteur attractif, ce terrain idéalement situé est proche des écoles et des commerces. L’École Primaire Cornelius et l’École Primaire Gaius sont implantées à moins de 10 minutes à pied, tout comme une crèche. Niveau transports en commun, on trouve la ligne de RER A (Chessy-Marne-La-Vallée) ainsi que sept gares à moins de 10 minutes en voiture. Il y a deux tennis, des commerces, une boulangerie, une boucherie-charcuterie et deux épiceries dans les environs.Ce terrain est à vendre pour la somme de 259 000 €. Contactez Hugo NGUYEN ((Numéro supprimé)) pour tout renseignement sur le terrain ou sur les démarches à suivre. Maisons France Confort Magny-le-Hongre est là pour vous accompagner à toutes les étapes de votre projet.Annonce proposée par un Agent Commercial Partenaire.
Lagny-sur-Marne
TERRAIN ET MAISONVENTE d’une maison de 5 pièces (90 m²) à Lagny-sur-MarneIDÉALEMENT SITUÉE – MAISON 5 PIÈCES NEUVEÀ vendre : au pied de la gare de Lagny-Thorigny (Paris à 25 min avec le Transilien P), Maisons France Confort Magny-le-Hongre vous présente cette maison de 5 pièces de 90 m² idéalement située dans Lagny-sur-Marne (77400). Son intérieur offre trois chambres, une cuisine et une salle de bains.Le terrain de la propriété est de 320 m².Il s’agit d’une maison de 2 niveaux. Elle est neuve.La maison se trouve dans un secteur convoité. Il y a tous les types d’écoles (maternelle, élémentaire et secondaire) à moins de 10 minutes à pied, tout comme trois crèches. Côté transports, on trouve le RER A et E ainsi que sept gares à moins de 10 minutes en voiture. Il y a une bibliothèque, un bassin de natation, un tennis, des commerces, des boulangeries, une poissonnerie, des boucheries-charcuteries et deux supérettes à quelques minutes à peine. Enfin, le marché Place du marché anime le quartier.Son prix de vente est de 389 000 €.N’hésitez pas à prendre contact avec Hugo NGUYEN ((Numéro supprimé)) pour obtenir de plus amples renseignements sur la propriété ou sur les modalités de vente.Annonce proposée par un Agent Commercial Partenaire.
Lagny-sur-Marne
TERRAIN ET MAISONVENTE : maison de 6 pièces (105 m²) à Lagny-sur-MarneIDÉALEMENT SITUÉE – MAISON 6 PIÈCES NEUVEÀ quelques minutes de la gare de Lagny-Thorigny (Paris à 25 min par le Transilien P), nous sommes heureux de vous présenter cette maison de 6 pièces de 105 m² et de 320 m² de terrain à vendre idéalement située dans Lagny-sur-Marne (77400).Cette maison possède 2 niveaux. Elle compte quatre chambres, une cuisine et deux salles de bains. La maison est neuve.Cette maison se situe dans un secteur convoité. Il y a des écoles du primaire et du secondaire à moins de 10 minutes à pied, tout comme trois structures d’accueil pour les tout-petits. Niveau transports, on trouve les lignes A et E du RER ainsi que sept gares à moins de 10 minutes en voiture. Il y a une bibliothèque, un bassin de natation, un tennis, des commerces, des boulangeries, des boucheries-charcuteries, un bureau de poste et des épiceries à quelques minutes à peine. Enfin, le marché Place du marché anime les environs.Elle est à vendre pour la somme de 410 000 €.Contactez notre agence (NGUYEN Hugo : (Numéro supprimé)) pour obtenir de plus amples informations sur la propriété, sur les modalités de vente ou sur les démarches à suivre. Maisons France Confort Magny-le-Hongre est là pour vous accompagner dans tous vos projets immobiliers.Annonce proposée par un Agent Commercial Partenaire.
Lagny-sur-Marne
TERRAIN ET MAISONMaison de 6 pièces (115 m²) en vente à Lagny-sur-MarneIDÉALEMENT SITUÉE – MAISON 6 PIÈCES NEUVEAu pied du Transilien P (gare de Lagny-Thorigny, 25 min de Paris), venez découvrir cette maison de 6 pièces de 115 m² et de 320 m² de terrain en vente idéalement située dans Lagny-sur-Marne (77400).Cette maison comporte 2 niveaux. Son intérieur est composé de quatre chambres, d’une cuisine et de deux salles de bains. La maison est neuve.La maison est située dans un secteur convoité. On trouve des écoles du primaire et du secondaire à moins de 10 minutes à pied, tout comme trois crèches. Côté transports, il y a les lignes de RER A et E ainsi que sept gares à moins de 10 minutes en voiture. On trouve une bibliothèque, un bassin de natation, un tennis, des commerces, des boulangeries, une poissonnerie, des boucheries-charcuteries et un bureau de poste dans les environs. Le marché Place du marché anime les environs.Son prix de vente est de 439 000 €.Prenez contact avec notre agence (NGUYEN Hugo : (Numéro supprimé)) pour plus d’informations sur la propriété, sur les modalités de vente ou sur les démarches à suivre.Annonce proposée par un Agent Commercial Partenaire.
Lagny-sur-Marne
TERRAIN ET MAISONVENTE : maison T5 (105 m²) à Lagny-sur-MarneIDÉALEMENT SITUÉE – MAISON 5 PIÈCES NEUVEÀ vendre : au pied de la gare de Lagny-Thorigny (Paris à 25 min avec le Transilien P), laissez vous charmer par cette maison de 5 pièces de plain-pied de 105 m² idéalement située dans Lagny-sur-Marne (77400). Son intérieur se divise en quatre chambres, une cuisine et deux salles de bains.Le terrain de la propriété s’étend sur 320 m².La maison est neuve.Cette maison est située dans un secteur convoité. Il y a des établissements scolaires (de la maternelle au lycée) à moins de 10 minutes à pied, tout comme trois structures d’accueil pour les tout-petits. Niveau transports, on trouve les lignes A et E du RER ainsi que sept gares à moins de 10 minutes en voiture. Il y a une bibliothèque, un bassin de natation, un tennis, des commerces, des boulangeries, une poissonnerie, des épiceries et des boucheries-charcuteries à quelques minutes du bien. Le marché Place du marché anime les environs.Elle est proposée à l’achat pour 410 000 €.Contactez notre agence (Hugo NGUYEN : (Numéro supprimé)) pour tout renseignement sur la maison, sur les modalités de vente et sur les démarches à suivre.Annonce proposée par un Agent Commercial Partenaire.
Chessy
TERRAIN ET MAISONMaison F5 (90 m²) en vente à ChessyIDÉALEMENT SITUÉE – MAISON 5 PIÈCES NEUVEEn vente : à proximité de la station Val d’Europe du RER A (30 min de Paris), nous sommes ravis de vous proposer cette maison de 5 pièces de 90 m² idéalement située dans Chessy (77700). Son intérieur est composé de trois chambres, d’une cuisine et d’une salle de bains.Le terrain de la propriété s’étend sur 489 m².C’est une maison de 2 niveaux. Elle est neuve.Cette propriété se trouve dans un quartier attractif. L’École Primaire Cornelius et l’École Primaire Gaius sont implantées à moins de 10 minutes à pied, tout comme une crèche. Côté transports, on trouve la ligne de RER A (Chessy-Marne-La-Vallée) ainsi que sept gares à moins de 10 minutes en voiture. Il y a deux tennis, des commerces, une boulangerie, une boucherie-charcuterie et deux épiceries à proximité.Elle est à vendre pour la somme de 440 000 €.Prenez contact avec notre agence (NGUYEN Hugo : (Numéro supprimé)) pour toute information sur la maison, sur les démarches à suivre ou sur les modalités de vente. Maisons France Confort Magny-le-Hongre vous accompagne dans tous vos projets immobiliers et dans toutes vos démarches.Annonce proposée par un Agent Commercial Partenaire.
Chessy
TERRAIN ET MAISONVENTE : maison F7 (120 m²) à ChessyIDÉALEMENT SITUÉE – MAISON 7 PIÈCES NEUVEAu pied du RER A (station Val d’Europe, 30 min de Paris), nous sommes heureux de vous présenter cette maison de 7 pièces de 120 m² en vente idéalement située dans Chessy (77700).C’est une maison de 2 niveaux. Elle est composée de cinq chambres, d’une cuisine et de deux salles de bains. Cette maison est neuve.Le terrain du bien s’étend sur 489 m².La maison se situe dans un secteur attractif. On trouve l’École Primaire Cornelius et l’École Primaire Gaius à moins de 10 minutes à pied et une structure d’accueil pour les enfants en bas âge. Niveau transports en commun, il y a la ligne de RER A (Chessy-Marne-La-Vallée) ainsi que sept gares à moins de 10 minutes en voiture. Il y a deux tennis, des commerces, une boulangerie, deux épiceries et une boucherie-charcuterie dans les environs.Elle est à vendre pour la somme de 499 000 €.Contactez Hugo NGUYEN (tél : (Numéro supprimé)) pour tout renseignement sur la maison ou sur les démarches à suivre.Annonce proposée par un Agent Commercial Partenaire.
Chessy
TERRAIN ET MAISONChessy : maison F6 (115 m²) en venteIDÉALEMENT SITUÉE – MAISON 6 PIÈCES NEUVEÀ deux pas de la station Val d’Europe (Paris à 30 min par le RER A), nous vous proposons cette maison de 6 pièces de 115 m² à vendre idéalement située dans Chessy (77700).Il s’agit d’une maison de 2 niveaux. Elle propose quatre chambres, une cuisine et deux salles de bains. La maison est neuve.Le terrain du bien s’étend sur 489 m².Cette maison est située dans un quartier recherché. Il y a l’École Primaire Cornelius et l’École Primaire Gaius à moins de 10 minutes à pied et une crèche. Niveau transports, on trouve la ligne de RER A (Chessy-Marne-La-Vallée) ainsi que sept gares à moins de 10 minutes en voiture. On trouve deux tennis, des commerces, une boulangerie, deux épiceries et une boucherie-charcuterie à proximité du logement.Elle est proposée à l’achat pour 540 000 €.Contactez Hugo NGUYEN ((Numéro supprimé)) pour tout renseignement sur le bien, sur les modalités de vente ou sur les démarches à suivre. Maisons France Confort Magny-le-Hongre est là pour vous accompagner dans tous vos projets immobiliers.Annonce proposée par un Agent Commercial Partenaire.
L’actualité immobilière à Jossigny
27/11/2023
02/11/2023
30/10/2023
20/10/2023
16/10/2023
16/10/2023