Maison à construire à La Chapelle-Gauthier (77720)
Images
Description
La Chapelle-Gauthier : maison T5 (145 m²) à vendre
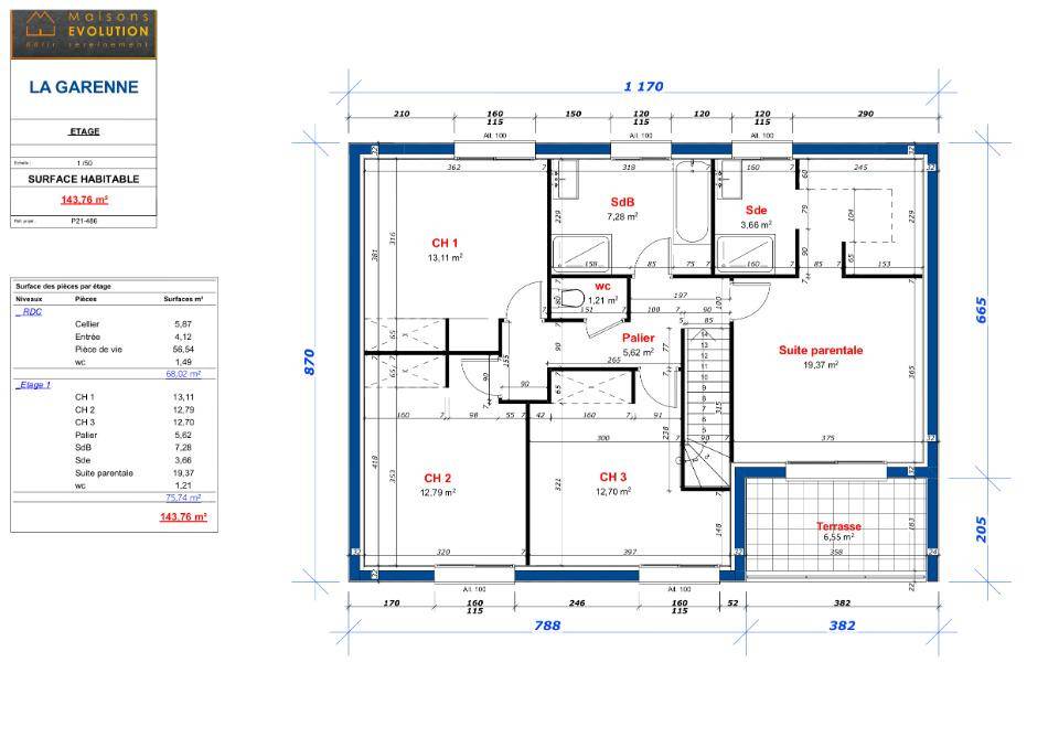
Paris à 35 min (Transilien P, Mormant) - À vendre à La Chapelle-Gauthier (77720) : maison neuve 5 pièces de 145 m² et de 385 m² de terrain. Son intérieur inclut quatre chambres, une cuisine et deux salles de bains.
À dix minutes : gares (Mormant et Nangis), École Primaire du Parc, supermarché, commerce, boulangerie, boucherie-charcuterie et bureau de poste. Melun à 16 km.
Le prix de vente de cette maison de 5 pièces est de 370 000 €.
Prenez contact avec Stephanie SEBAG (tél : (Numéro supprimé)) pour obtenir de plus amples renseignements sur la maison, sur les modalités de vente ou sur les démarches à suivre. Maisons Evolution Mareuil-lès-Meaux vous accompagne dans tous vos projets immobiliers et dans toutes vos démarches.
Annonce proposée par un Agent Commercial Partenaire.
Logement susceptibles de vous intéresser
Nous vous proposons de découvrir aussi cette sélection de logements situés à moins de 10km de La Chapelle-Gauthier et qui seraient susceptibles de vous intéresser.
Mormant
TERRAIN ET MAISONVENTE d’une maison F6 (100 m²) à MormantPROCHE DE CORBEIL-ESSONNES – MAISON 6 PIÈCES NEUVEAu pied du Transilien P (35 min de Paris), votre agence Maisons France Confort Magny-le-Hongre est ravie de vous proposer cette maison de 6 pièces de 100 m² et de 550 m² de terrain à Mormant (77720).Il s’agit d’une maison de 2 niveaux. Elle comporte quatre chambres, une cuisine et une salle de bains. La maison est neuve.Le Collège Nicolas Fouquet, l’École Maternelle Charles Perrault et l’École Élémentaire Jean de la Fontaine sont implantés à moins de 10 minutes à pied. Niveau transports, il y a la gare Mormant à proximité. On trouve un tennis, deux boulangeries, deux supermarchés, des commerces, un bureau de poste et quatre épiceries dans les environs. Ne manquez pas le marché Rue Leclerc tous les jeudis matin.Son prix de vente est de 265 000 €.Contactez notre agence (Alan RUBAL : (Numéro supprimé)) pour toute question sur la maison ou sur les démarches à suivre. Maisons France Confort Magny-le-Hongre vous accompagne dans tous vos projets immobiliers et à toutes les étapes de votre projet.Annonce proposée par un Agent Commercial Partenaire.
Mormant
TERRAIN ET MAISONVENTE d’une maison de 7 pièces (120 m²) à MormantPROCHE DE CORBEIL-ESSONNES – MAISON 7 PIÈCES NEUVEProche du Transilien P (35 min de Paris), votre agence Maisons France Confort Magny-le-Hongre est heureuse de vous proposer cette maison de 7 pièces de 120 m² à vendre à Mormant (77720). Elle dispose de quatre chambres, d’une cuisine et de deux salles de bains.Le terrain du bien est de 550 m².C’est une maison de 2 niveaux. Elle est neuve.Le Collège Nicolas Fouquet, l’École Maternelle Charles Perrault et l’École Élémentaire Jean de la Fontaine sont implantés à moins de 10 minutes à pied. Côté transports, on trouve la gare Mormant à quelques pas du bien. Il y a un tennis, deux boulangeries, deux supermarchés, des commerces, un bureau de poste et quatre épiceries à quelques minutes. Ne manquez pas le marché Rue Leclerc tous les jeudis matin.Son prix de vente est de 301 000 €.N’hésitez pas à prendre contact avec notre agence (Alan RUBAL : (Numéro supprimé)) pour obtenir de plus amples informations sur cette maison ou sur les modalités de vente.Annonce proposée par un Agent Commercial Partenaire.
Mormant
TERRAIN ET MAISONMaison de 5 pièces (110 m²) à vendre à MormantPROCHE DE CORBEIL-ESSONNES – MAISON 5 PIÈCES NEUVEÀ 345 m du Transilien P (35 min de Paris), Maisons France Confort Magny-le-Hongre vous présente cette maison de 5 pièces de plain-pied de 110 m² en vente à Mormant (77720).Elle compte quatre chambres, une cuisine et deux salles de bains. Cette maison est neuve.Le terrain de la propriété s’étend sur 550 m².Il y a le Collège Nicolas Fouquet, l’École Maternelle Charles Perrault et l’École Élémentaire Jean de la Fontaine à moins de 10 minutes à pied. Côté transports, on trouve la gare Mormant juste à côté. Il y a un tennis, deux boulangeries, deux supermarchés, des commerces, un bureau de poste et quatre épiceries dans les environs. Le marché Rue Leclerc anime le quartier chaque jeudi matin.Son prix de vente est de 283 000 €.Contactez notre agence (RUBAL Alan : (Numéro supprimé)) pour toute question sur la maison ou sur les modalités de vente. Maisons France Confort Magny-le-Hongre vous accompagne à toutes les étapes de votre projet et dans toutes vos démarches.Annonce proposée par un Agent Commercial Partenaire.
Mormant
TERRAIN ET MAISONMaison de 5 pièces (90 m²) à vendre à MormantPROCHE DE CORBEIL-ESSONNES – MAISON 5 PIÈCES NEUVEEn vente : à quelques minutes du Transilien P (35 min de Paris), notre agence Maisons France Confort Magny-le-Hongre est heureuse de vous proposer cette maison de 5 pièces de 90 m² à Mormant (77720).C’est une maison de 2 niveaux. Elle dispose de trois chambres, d’une cuisine et d’une salle de bains. La maison est neuve.Le terrain de la propriété est de 550 m².Le Collège Nicolas Fouquet, l’École Maternelle Charles Perrault et l’École Élémentaire Jean de la Fontaine sont implantés à moins de 10 minutes à pied. Niveau transports en commun, il y a la gare Mormant à proximité. On trouve un tennis, deux boulangeries, deux supermarchés, des commerces, quatre épiceries et un bureau de poste à quelques minutes. Enfin, le marché Rue Leclerc anime le quartier tous les jeudis matin.Son prix de vente est de 247 000 €.Contactez notre agence (Alan RUBAL : (Numéro supprimé)) pour tout renseignement sur cette maison. Maisons France Confort Magny-le-Hongre est là pour vous accompagner dans toutes vos démarches.Annonce proposée par un Agent Commercial Partenaire.
Mormant
TERRAIN ET MAISONMaison F5 (104 m²) en vente à MormantMAISON 5 PIÈCES NEUVE – PROCHE DE CORBEIL-ESSONNESÀ vendre : proche du Transilien P (35 min de Paris), Maisons France Confort Magny-le-Hongre vous propose à Mormant (77720), cette maison de 5 pièces de plain-pied de 104 m². Son intérieur propose quatre chambres, une cuisine et deux salles de bains.Le terrain de la propriété est de 550 m².La maison est neuve.Le Collège Nicolas Fouquet, l’École Maternelle Charles Perrault et l’École Élémentaire Jean de la Fontaine sont implantés à moins de 10 minutes à pied. Niveau transports, il y a la gare Mormant dans les environs. On trouve un tennis, deux boulangeries, deux supermarchés, des commerces, un bureau de poste et quatre épiceries à proximité. Enfin, le marché Rue Leclerc a lieu tous les jeudis matin.Elle est proposée à l’achat pour 272 200 €.Contactez Alan RUBAL (tél : (Numéro supprimé)) pour toute question sur ce bien. Maisons France Confort Magny-le-Hongre est là pour vous accompagner à toutes les étapes de l’achat.Annonce proposée par un Agent Commercial Partenaire.
La Chapelle-Gauthier
TERRAINproximité du centre ville, commerces, transports et écoles.Prix : 110000 €.Sur ce terrain de 382 m² à LA CHAPELLE-GAUTHIER, Maisons Clairval vous propose de réaliser votre projet de construction de maison individuelle.Maisons Clairval propose de construire votre maison neuve avec toutes les prestations suivantes :- Plan sur-mesure et personnalisé de 2 à 6 chambres- Mode de chauffage au choix- Grands choix d'équipements et de prestations- Matériaux de qualité selon les normes en vigueur- Accompagnement dans le choix et l’acquisition du terrain- Construction conforme à la nouvelle RE 2020Demandez une étude gratuite et personnalisée de votre projet de construction sur ce terrain !Contactez Nicolas REBOUL au (Numéro supprimé) ou au (Numéro supprimé) (Maisons Clairval – Agence de Villemoisson).Prix hors frais de notaire. Terrain sélectionné et vu pour vous sous réserve de disponibilité et au prix indiqué par notre partenaire foncier. Conditions et visuels non contractuels.Cette annonce a été créée et diffusée avec le logiciel VITAHOME.
Machault
TERRAINsecteur calme entre Melun et FontainebleauProximité centre village, écoles, crèche et commerces accessibles à pied. Collège à moins de 15 min (Vulaines, Champagne sur Seine) . Gares à moins de 20 min en voiture (Héricy, Vulaines-Samoreau, Champagne sur Seine)Prix : 128000 €.Sur ce terrain de 578 m² à MACHAULT, Maisons Clairval vous propose de réaliser votre projet de construction de maison individuelle.Maisons Clairval propose de construire votre maison neuve avec toutes les prestations suivantes :- Plan sur-mesure et personnalisé de 2 à 6 chambres- Mode de chauffage au choix- Grands choix d'équipements et de prestations- Matériaux de qualité selon les normes en vigueur- Accompagnement dans le choix et l’acquisition du terrain- Construction conforme à la nouvelle RE 2020Demandez une étude gratuite et personnalisée de votre projet de construction sur ce terrain !Contactez Nicolas REBOUL au (Numéro supprimé) ou au (Numéro supprimé) (Maisons Clairval – Agence de Villemoisson).Prix hors frais de notaire. Terrain sélectionné et vu pour vous sous réserve de disponibilité et au prix indiqué par notre partenaire foncier. Conditions et visuels non contractuels.Cette annonce a été créée et diffusée avec le logiciel VITAHOME.
La Chapelle-Gauthier
TERRAINproximité du centre ville, commerces, transports et écoles.Prix : 112000 €.Sur ce terrain de 383 m² à LA CHAPELLE-GAUTHIER, Maisons Clairval vous propose de réaliser votre projet de construction de maison individuelle.Maisons Clairval propose de construire votre maison neuve avec toutes les prestations suivantes :- Plan sur-mesure et personnalisé de 2 à 6 chambres- Mode de chauffage au choix- Grands choix d'équipements et de prestations- Matériaux de qualité selon les normes en vigueur- Accompagnement dans le choix et l’acquisition du terrain- Construction conforme à la nouvelle RE 2020Demandez une étude gratuite et personnalisée de votre projet de construction sur ce terrain !Contactez Nicolas REBOUL au (Numéro supprimé) ou au (Numéro supprimé) (Maisons Clairval – Agence de Villemoisson).Prix hors frais de notaire. Terrain sélectionné et vu pour vous sous réserve de disponibilité et au prix indiqué par notre partenaire foncier. Conditions et visuels non contractuels.Cette annonce a été créée et diffusée avec le logiciel VITAHOME.
Fouju
TERRAINMohammed – Agence Pavillons d'Île-de-FranceVotre expert en maisons sur-mesure depuis plus de 50 ans à Mareuil-lès-MeauxTransformez votre rêve en réalité !Situé dans un écrin de verdure, ce terrain de 650 m² vous offre l'opportunité rare de construire la maison de vos rêves dans un cadre calme et agréable. À deux pas des commerces, écoles et transports, vous bénéficierez de la tranquillité de la campagne sans renoncer à la proximité de la vie urbaine.Imaginez votre futur chez-vous, parfaitement adapté à vos envies et à vos besoins. Ce terrain est prêt à accueillir votre projet et à vous offrir un cadre de vie exceptionnel.Prix : 95 000 €Ne laissez pas passer cette chance unique ! Contactez-nous dès maintenant au (Numéro supprimé) pour planifier une étude de faisabilité.Prix : 95000 €.Sur ce terrain, réalisez votre projet de construction de maison RE 2020 avec PAVILLONS D'ÎLE-DE-FRANCE (constructeur de maisons de gamme et sur-mesure depuis plus de 50 ans) :- Plan sur-mesure et personnalisé de 2 à 5 chambres- Mode de chauffage au choix- Grands choix d'équipements et de prestations- Matériaux de qualité selon les normes en vigueur- Accompagnement dans le choix et l’acquisition du terrainDemandez une étude gratuite et personnalisée de votre projet de construction sur ce terrain !Contactez Mohammed HAMDAOUI au (Numéro supprimé) ou au (Numéro supprimé) (Pavillons d'Île-de-France – Agence de Meaux).Prix hors frais de notaire. Terrain sélectionné et vu pour vous sous réserve de disponibilité et au prix indiqué par notre partenaire foncier. Visuels non contractuels.Cette annonce a été créée et diffusée avec le logiciel VITAHOME.
L’actualité immobilière à La Chapelle-Gauthier
27/11/2023
02/11/2023
30/10/2023
20/10/2023
16/10/2023
16/10/2023