Maison à construire à La Chapelle-la-Reine (77760)
Images
Description
Contactez Guillaume Bordes de l'agence Maisons Evolution de Mareuil-lès-Meaux au (Numéro supprimé) pour avoir plus d'informations sur ce projet.
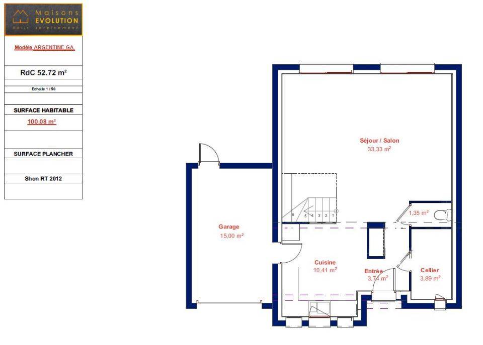
Belle maison à étage de 100 m² habitables avec garage accolé, idéalement située sur la commune de La Chapelle La Reine.
Elle est composée de 3 chambres, d'une salle de bains, de deux WC séparés, et d'un grand salon-séjour lumineux avec cuisine ouverte, cellier et garage accolé.
Les plans sont modifiables selon vos souhaits, en agence ou visioconférence. Nous vous proposons un véritable accompagnement de qualité tout au long de votre projet.
Dessinons ensemble votre future maison !
Tel: (Numéro supprimé)
Annonce proposée par un Agent Commercial Partenaire.
Logement susceptibles de vous intéresser
Nous vous proposons de découvrir aussi cette sélection de logements situés à moins de 10km de La Chapelle-la-Reine et qui seraient susceptibles de vous intéresser.
Amponville
TERRAIN(Numéro supprimé) — Les maisons CLAIRVAL vous proposent ce terrain de 600 m², situé à Amponville, agréable commune de Seine-et-Marne, à seulement 20 minutes de Milly-la-Forêt et proche de Fontainebleau. Vous y profiterez d’un environnement calme et verdoyant, tout en restant à proximité des commerces, écoles et services essentiels disponibles dans les communes voisines.Ce terrain plat et bien dimensionné est idéal pour envisager la construction d’une maison lumineuse, confortable et économe en énergie, conforme à la RE2020. Votre projet sera étudié sur mesure avec un large choix de prestations : finitions intérieures personnalisables, solutions énergétiques performantes, menuiseries contemporaines, domotique intelligente et possibilité d’isolation par l’extérieur pour un confort renforcé et durable.📞 N’hésitez pas à nous contacter pour visiter ce terrain et imaginer votre projet à Amponville.Prix : 90000 €.Sur ce terrain de 600 m² à AMPONVILLE, Maisons Clairval vous propose de réaliser votre projet de construction de maison individuelle.Demandez une étude gratuite et personnalisée de votre projet de construction sur ce terrain !Contactez John BOUT au (Numéro supprimé) ou au (Numéro supprimé) (Maisons Clairval – Agence de Rouvres).Prix hors frais de notaire. Terrain sélectionné et vu pour vous sous réserve de disponibilité et au prix indiqué par notre partenaire foncier. Conditions et visuels non contractuels.Cette annonce a été créée et diffusée avec le logiciel VITAHOME.
La Chapelle-la-Reine
TERRAIN ET MAISONBeau terrain a 27 minutes de Corbeil Essonne école et commerces sur place . Contemporaine et confortable, le modèle ASINARA se distingue par son porche en façade avant et ses enduits bi-ton qui lui apportent un style très actuel. Cette maison de plain-pied vous propose une très belle pièce de vie très lumineuse grâce à ses nombreuses ouvertures. La cuisine est très fonctionnelle puisqu’à la fois ouverte sur le séjour et accolée au cellier. L’espace nuit est composé de trois chambres avec tous les rangements nécessaires ainsi que d’une salle de bains et des wc séparés. Le plus de cette maison est sans nul doute son garage intégré. Ses jeux d'enduits personnalisables sauront vous séduire. Pour vous assurer un confort de vie et conformément à la RE2025, nous avons choisi un mode de chauffage par PAC + plancher chauffant, volets roulants électriques. Prix hors fourniture et pose : des appareils sanitaires (sauf système de chauffage et d'eau chaude sanitaire), du carrelage et de la faïence, des revêtements de sol dans les chambres. Hors décoration et aménagement intérieur et peinture. Hors raccordements, frais de notaire et dommage ouvrage. // Réf. : 1809-210512-CHL. Prix terrain : 98 000 €, hors frais d'agence à la charge de l'acquéreur. Ce terrain vous est proposé, par nos partenaires fonciers, dans le cadre d'un projet de construction avec nous. Les informations sur les risques auxquels ce bien est exposé sont disponibles sur le site Géorisques (www.georisques.gouv.fr). Prix maison : 132 573 €.
La Chapelle-la-Reine
TERRAIN ET MAISONBeau terrain a 27 minutes de Corbeil Essonne école et commerces sur place . Cette maison a été pensée pour offrir un cadre de vie chaleureux et optimisé, où chaque espace trouve sa juste place pour allier confort et praticité. Dès l’entrée, une grande pièce de vie lumineuse vous accueille, offrant un espace idéal pour partager des moments en famille ou entre amis. La cuisine, ouverte sur le séjour, allie modernité et fonctionnalité pour simplifier votre quotidien. À l’étage, trois chambres cosy et bien agencées offrent à chacun son propre espace de repos et d’intimité. Une salle de bain moderne et spacieuse vient compléter cet espace nuit pour répondre aux besoins de toute la famille. Un cellier pratique et des rangement optimisés apportent encore plus de confort à cette maison pensée pour s’adapter à votre mode de vie. Moderne, fonctionnelle et pleine de charme, cette maison est une opportunité à ne pas manquer !. Pour vous assurer un confort de vie optimal et en conformité avec la RE2025, nous avons opté pour un système de chauffage par pompe à chaleur (PAC) avec plancher chauffant au rez-de-chaussée et radiateurs à l’étage. Le logement est également équipé de volets roulants électriques. Prix hors fourniture et pose : des appareils sanitaires (sauf système de chauffage et d'eau chaude sanitaire), du carrelage et de la faïence, des revêtements de sol dans les chambres. Hors décoration et aménagement intérieur et peinture. Hors raccordements, frais de notaire et dommage ouvrage. // Réf. : 2480-210512-CHL. Prix terrain : 98 000 €, hors frais d'agence à la charge de l'acquéreur. Ce terrain vous est proposé, par nos partenaires fonciers, dans le cadre d'un projet de construction avec nous. Les informations sur les risques auxquels ce bien est exposé sont disponibles sur le site Géorisques (www.georisques.gouv.fr). Prix maison : 133 585 €.
La Chapelle-la-Reine
TERRAIN ET MAISONBeau terrain a 27 minutes de Corbeil Essonne école et commerces sur place . Découvrez cette maison compacte et bien agencée, idéale sur un petit terrain. Profitez d’un espace de vie optimisé de 40 m² avec une cuisine ouverte, idéale pour les moments en famille ou entre amis. Un cellier attenant vous offre un espace de rangement supplémentaire. Cette maison comprend également 3 chambres confortables, une salle de bains et des wc séparés pour plus de praticité. Pour vous assurer un confort de vie et conformément à la RE2025, nous avons choisi un mode de chauffage par PAC + plancher chauffant, volets roulants électriques. Prix hors fourniture et pose : des appareils sanitaires (sauf système de chauffage et d'eau chaude sanitaire), du carrelage et de la faïence, des revêtements de sol dans les chambres. Hors décoration et aménagement intérieur et peinture. Hors raccordements, frais de notaire et dommage ouvrage. . // Réf. : 2532-210512-CHL. Prix terrain : 98 000 €, hors frais d'agence à la charge de l'acquéreur. Ce terrain vous est proposé, par nos partenaires fonciers, dans le cadre d'un projet de construction avec nous. Les informations sur les risques auxquels ce bien est exposé sont disponibles sur le site Géorisques (www.georisques.gouv.fr). Prix maison : 131 695 €.
La Chapelle-la-Reine
TERRAINBeau terrain a 27 minutes de Corbeil Essonne école et commerces sur place . // Réf. : T210512. Prix terrain : 98 000 €, hors frais d'agence et de notaire à la charge de l'acquéreur. Ce terrain vous est proposé, par nos partenaires fonciers, dans le cadre d'un projet de construction avec nous. Les informations sur les risques auxquels ce bien est exposé sont disponibles sur le site Géorisques (www.georisques.gouv.fr).
La Chapelle-la-Reine
TERRAIN ET MAISONBeau terrain a 27 minutes de Corbeil Essonne école et commerces sur place . Un intérieur à réinventer, un projet à personnaliser ! Et si votre maison devenait le reflet de votre mode de vie ? Un espace de vie lumineux et ouvert, idéal pour partager des moments de convivialité, complété par un garage attenant et un cellier astucieux pour un quotidien fluide. À l’étage, trois chambres et une salle de bain fonctionnelle offrent un espace nuit bien pensé, propice au confort et à l’intimité. Besoin d’un bureau, d’un dressing ou d’un coin lecture ? Ici, chaque pièce peut évoluer au gré de vos envies. Une maison à façonner selon vos inspirations… Prêts à la personnaliser ?. . Pour un confort optimal et conforme à la RE2025, cette maison dispose d’une PAC avec plancher chauffant, radiateurs à l’étage et volets roulants électriques. À noter : Le prix indiqué exclut les revêtements de sol des chambres, la cuisine aménagée, la peinture, la décoration, les raccordements, les frais de notaire et l’assurance dommages-ouvrage. . . // Réf. : 1742-210512-CHL. Prix terrain : 98 000 €, hors frais d'agence à la charge de l'acquéreur. Ce terrain vous est proposé, par nos partenaires fonciers, dans le cadre d'un projet de construction avec nous. Les informations sur les risques auxquels ce bien est exposé sont disponibles sur le site Géorisques (www.georisques.gouv.fr). Prix maison : 183 645 €.
La Chapelle-la-Reine
TERRAIN ET MAISONBeau terrain a 27 minutes de Corbeil Essonne école et commerces sur place . Une maison qui s’adapte à vous, et non l’inverse ! Oubliez les plans figés, ici c’est vous qui donnez le ton ! Un vaste espace de vie de près de 50 m², baigné de lumière et pensé pour des moments de convivialité. Une chambre au rez-de-chaussée avec salle d’eau attenante, idéale pour votre confort ou celui de vos invités. À l’étage, trois chambres spacieuses et une salle de bain vous offrent un cocon parfait. Ajoutez à cela un garage pratique et un cellier malin, et vous obtenez une maison qui évolue avec vous. Design, confort et flexibilité. Il ne manque que votre touche ! . Pour un confort optimal et conforme à la RE2025, cette maison dispose d’une PAC avec plancher chauffant, radiateurs à l’étage et volets roulants électriques. À noter : Le prix indiqué exclut les revêtements de sol des chambres, la cuisine aménagée, la peinture, la décoration, les raccordements, les frais de notaire et l’assurance dommages-ouvrage. . // Réf. : 113-210512-CHL. Prix terrain : 98 000 €, hors frais d'agence à la charge de l'acquéreur. Ce terrain vous est proposé, par nos partenaires fonciers, dans le cadre d'un projet de construction avec nous. Les informations sur les risques auxquels ce bien est exposé sont disponibles sur le site Géorisques (www.georisques.gouv.fr). Prix maison : 224 402 €.
La Chapelle-la-Reine
TERRAIN ET MAISONBeau terrain a 27 minutes de Corbeil Essonne école et commerces sur place . Une maison qui s’adapte à vous – moderne, lumineuse et 100 % personnalisable ! Et si votre futur chez-vous était à votre image ? Avec 4 chambres, dont une suite parentale avec dressing et salle d’eau, un vaste espace de vie ouvert, et des volumes baignés de lumière, cette maison combine design et confort. L’étage offre trois belles chambres et une salle de bain familiale, parfait pour préserver l’intimité de chacun. . Pour un confort optimal et conforme à la RE2025, cette maison dispose d’une PAC avec plancher chauffant, radiateurs à l’étage et volets roulants électriques. À noter : Le prix indiqué exclut les revêtements de sol des chambres, la cuisine aménagée, la peinture, la décoration, les raccordements, les frais de notaire et l’assurance dommages-ouvrage. . Faites de cette maison votre projet unique, façonné selon vos envies !. // Réf. : 22-210512-CHL. Prix terrain : 98 000 €, hors frais d'agence à la charge de l'acquéreur. Ce terrain vous est proposé, par nos partenaires fonciers, dans le cadre d'un projet de construction avec nous. Les informations sur les risques auxquels ce bien est exposé sont disponibles sur le site Géorisques (www.georisques.gouv.fr). Prix maison : 255 461 €.
La Chapelle-la-Reine
TERRAINBeau terrain a 27 minutes de Corbeil Essonne école et commerces sur place . // Réf. : T210512. Prix terrain : 98 000 €, hors frais d'agence et de notaire à la charge de l'acquéreur. Ce terrain vous est proposé, par nos partenaires fonciers, dans le cadre d'un projet de construction avec nous. Les informations sur les risques auxquels ce bien est exposé sont disponibles sur le site Géorisques (www.georisques.gouv.fr).
L’actualité immobilière à La Chapelle-la-Reine
27/11/2023
02/11/2023
30/10/2023
20/10/2023
16/10/2023
16/10/2023