Maison à construire à La Grande-Paroisse (77130)
Images
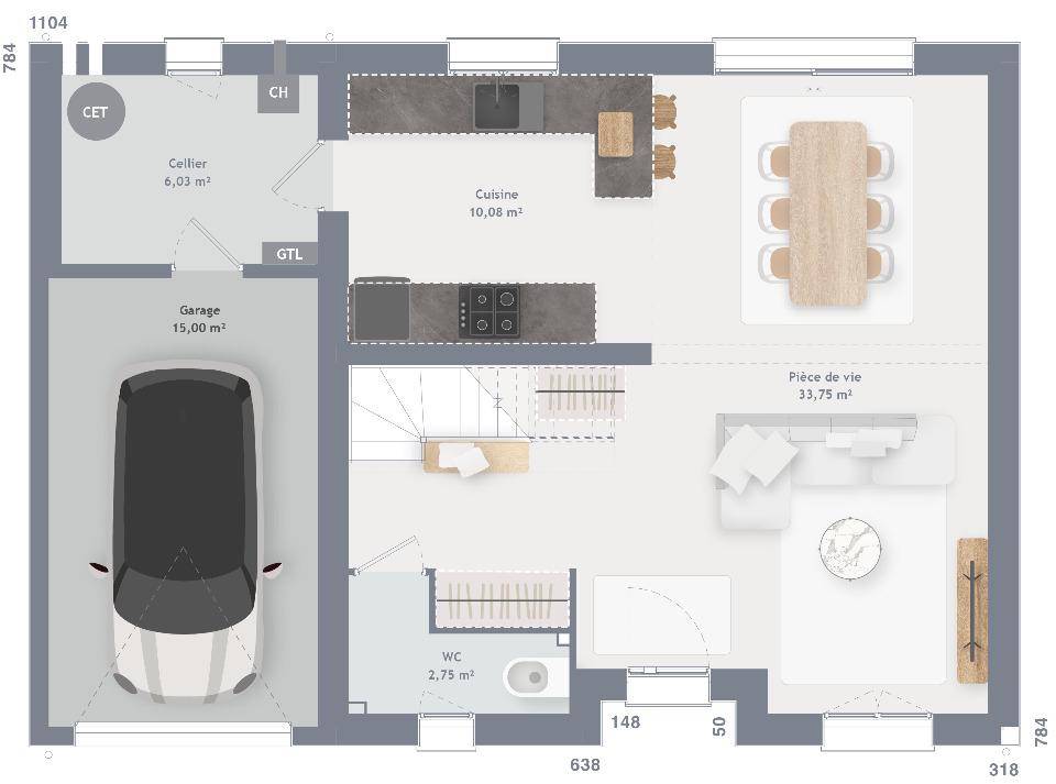
Description
La Grande-Paroisse : maison F5 (90 m²) en vente
EMPLACEMENT PRIVILÉGIÉ - MAISON 5 PIÈCES NEUVE
En vente : à quelques kilomètres de Melun, Maisons France Confort Nemours vous propose, bénéficiant d'un emplacement privilégié dans La Grande-Paroisse (77130), cette maison de 5 pièces de 90 m² et de 800 m² de terrain. Elle est composée de trois chambres, d'une cuisine et d'une salle de bains.
Cette maison compte 2 niveaux. Elle est neuve.
La maison se situe dans un secteur recherché. L'École Élémentaire Clovis Moriot, l'École Élémentaire Achille Pierre et l'École Maternelle André Cholet se trouvent à moins de 10 minutes à pied, tout comme une structure d'accueil pour les tout-petits. Niveau transports, il y a la gare La Grande-Paroisse dans les environs. On trouve une bibliothèque, un commerce et une boulangerie à quelques minutes du bien.
Elle est proposée à l'achat pour 292 867 €.
Contactez Anne DELOHEN ((Numéro supprimé)) pour plus d'informations sur la maison, sur les modalités de vente ou sur les démarches à suivre. Maisons France Confort Nemours vous accompagne dans tous vos projets immobiliers et à toutes les étapes de l'achat.
Annonce proposée par un Agent Commercial Partenaire.
Logement susceptibles de vous intéresser
Nous vous proposons de découvrir aussi cette sélection de logements situés à moins de 10km de La Grande-Paroisse et qui seraient susceptibles de vous intéresser.
Villecerf
TERRAINPrix : 69000 €.Sur ce terrain de 315 m² à VILLECERF, Maisons Clairval vous propose de réaliser votre projet de construction de maison individuelle.Maisons Clairval propose de construire votre maison neuve avec toutes les prestations suivantes :- Plan sur-mesure et personnalisé de 2 à 6 chambres- Mode de chauffage au choix- Grands choix d'équipements et de prestations- Matériaux de qualité selon les normes en vigueur- Accompagnement dans le choix et l’acquisition du terrain- Construction conforme à la nouvelle RE 2020Demandez une étude gratuite et personnalisée de votre projet de construction sur ce terrain !Contactez Nicolas REBOUL au (Numéro supprimé) ou au (Numéro supprimé) (Maisons Clairval – Agence de Villemoisson).Prix hors frais de notaire. Terrain sélectionné et vu pour vous sous réserve de disponibilité et au prix indiqué par notre partenaire foncier. Conditions et visuels non contractuels.Cette annonce a été créée et diffusée avec le logiciel VITAHOME.
Villecerf
TERRAINPrix : 78000 €.Sur ce terrain de 459 m² à VILLECERF, Maisons Clairval vous propose de réaliser votre projet de construction de maison individuelle.Maisons Clairval propose de construire votre maison neuve avec toutes les prestations suivantes :- Plan sur-mesure et personnalisé de 2 à 6 chambres- Mode de chauffage au choix- Grands choix d'équipements et de prestations- Matériaux de qualité selon les normes en vigueur- Accompagnement dans le choix et l’acquisition du terrain- Construction conforme à la nouvelle RE 2020Demandez une étude gratuite et personnalisée de votre projet de construction sur ce terrain !Contactez Nicolas REBOUL au (Numéro supprimé) ou au (Numéro supprimé) (Maisons Clairval – Agence de Villemoisson).Prix hors frais de notaire. Terrain sélectionné et vu pour vous sous réserve de disponibilité et au prix indiqué par notre partenaire foncier. Conditions et visuels non contractuels.Cette annonce a été créée et diffusée avec le logiciel VITAHOME.
Villecerf
TERRAINPrix : 84000 €.Sur ce terrain de 510 m² à VILLECERF, Maisons Clairval vous propose de réaliser votre projet de construction de maison individuelle.Maisons Clairval propose de construire votre maison neuve avec toutes les prestations suivantes :- Plan sur-mesure et personnalisé de 2 à 6 chambres- Mode de chauffage au choix- Grands choix d'équipements et de prestations- Matériaux de qualité selon les normes en vigueur- Accompagnement dans le choix et l’acquisition du terrain- Construction conforme à la nouvelle RE 2020Demandez une étude gratuite et personnalisée de votre projet de construction sur ce terrain !Contactez Nicolas REBOUL au (Numéro supprimé) ou au (Numéro supprimé) (Maisons Clairval – Agence de Villemoisson).Prix hors frais de notaire. Terrain sélectionné et vu pour vous sous réserve de disponibilité et au prix indiqué par notre partenaire foncier. Conditions et visuels non contractuels.Cette annonce a été créée et diffusée avec le logiciel VITAHOME.
La Grande-Paroisse
TERRAINVENTE : terrain de 800 m² à La Grande-ParoisseEMPLACEMENT PRIVILÉGIÉ – PROCHE DE MELUNGrand terrain en vente à 24 km de Melun. De 800 m², ce terrain se situe bénéficiant d’un emplacement d’exception dans La Grande-Paroisse (77130). Dans un secteur attractif, ce terrain est proche des écoles et des commerces. Il y a l’École Élémentaire Clovis Moriot, l’École Élémentaire Achille Pierre et l’École Maternelle André Cholet à moins de 10 minutes à pied et une crèche. Côté transports, on trouve la gare La Grande-Paroisse à quelques pas du terrain. Il y a une bibliothèque, un commerce et une boulangerie dans les environs.Ce terrain est à vendre pour la somme de 80 000 €. N’hésitez pas à prendre contact avec Anne DELOHEN (tél : (Numéro supprimé)) pour toute information sur le terrain, sur les modalités de vente ou sur les démarches à suivre. Maisons France Confort Nemours vous accompagne dans tous vos projets immobiliers et à toutes les étapes de votre projet.Annonce proposée par un Agent Commercial Partenaire.
Varennes-sur-Seine
TERRAINVENTE d’un terrain de 553 m² à Varennes-sur-SeinePROCHE DE MELUNÀ proximité de la gare de Montereau (Paris à 60 min avec le Transilien R) à Varennes-sur-Seine (77130), grand terrain. Il y a l’École Élémentaire Louis Pasteur, le Lycée Professionnel Gustave Eiffel-Lycée des Métiers des Structures Métalliques et de la Chaudronerie Lycée des Métiers de l’Électrotechnique, le Collège Elsa Triolet et l’École Maternelle Louis Aragon à moins de 10 minutes à pied. Côté transports, on trouve cinq gares à moins de 10 minutes en voiture. On trouve un tennis, une bibliothèque, cinq commerces et une boucherie-charcuterie dans les environs.Il est à vendre pour la somme de 99 900 €. Contactez Anne DELOHEN ((Numéro supprimé)) pour tout renseignement sur ce terrain. Maisons France Confort Nemours est là pour vous accompagner à toutes les étapes de l’achat.Annonce proposée par un Agent Commercial Partenaire.
Machault
TERRAINVENTE d’un terrain de 578 m² à MachaultEMPLACEMENT PRIVILÉGIÉ – PROCHE DE MELUNÀ proximité de la gare de Saint-Mammès (Paris à 50 min avec le Transilien R) à Machault (77133), grand terrain. Pour les tout-petits, les environs proposent sept crèches à moins de 10 minutes à pied. Niveau transports, il y a 10 gares à moins de 10 minutes en voiture. On trouve des tennis, des bibliothèques, trois bassins de natation, des boulangeries, des commerces, des supermarchés, des bureaux de poste et des épiceries à quelques minutes du terrain. Enfin, 3 marchés animent les environs.Son prix de vente est de 128 000 €. N’hésitez pas à prendre contact avec notre agence (Anne DELOHEN : (Numéro supprimé)) pour tout renseignement sur le terrain.Annonce proposée par un Agent Commercial Partenaire.
Vernou-la-Celle-sur-Seine
TERRAINTerrain de 369 m² en vente à Vernou-la-Celle-sur-SeinePROCHE DE MELUNÀ 21 km de Melun à Vernou-la-Celle-sur-Seine (77670), terrain de 369 m². Réalisez-y la maison de vos rêves. Il y a l’École Primaire Michel Legrand à moins de 10 minutes à pied. Niveau transports, on trouve la gare Vernou-la-Celle-sur-Seine à quelques pas du terrain. Il y a un tennis, un bassin de natation, une boulangerie et une épicerie à proximité de la propriété.Il est à vendre pour la somme de 99 800 €. N’hésitez pas à prendre contact avec Anne DELOHEN (tél : (Numéro supprimé)) pour toute information sur le terrain. Donnez vie à vos projets immobiliers avec Maisons France Confort Nemours.Annonce proposée par un Agent Commercial Partenaire.
La Grande-Paroisse
TERRAIN ET MAISONLa Grande-Paroisse : maison F5 (90 m²) en venteEMPLACEMENT PRIVILÉGIÉ – MAISON 5 PIÈCES NEUVEEn vente : à quelques kilomètres de Melun, Maisons France Confort Nemours vous propose, bénéficiant d’un emplacement privilégié dans La Grande-Paroisse (77130), cette maison de 5 pièces de 90 m² et de 800 m² de terrain. Elle est composée de trois chambres, d’une cuisine et d’une salle de bains.Cette maison compte 2 niveaux. Elle est neuve.La maison se situe dans un secteur recherché. L’École Élémentaire Clovis Moriot, l’École Élémentaire Achille Pierre et l’École Maternelle André Cholet se trouvent à moins de 10 minutes à pied, tout comme une structure d’accueil pour les tout-petits. Niveau transports, il y a la gare La Grande-Paroisse dans les environs. On trouve une bibliothèque, un commerce et une boulangerie à quelques minutes du bien.Elle est proposée à l’achat pour 292 867 €.Contactez Anne DELOHEN ((Numéro supprimé)) pour plus d’informations sur la maison, sur les modalités de vente ou sur les démarches à suivre. Maisons France Confort Nemours vous accompagne dans tous vos projets immobiliers et à toutes les étapes de l’achat.Annonce proposée par un Agent Commercial Partenaire.
Varennes-sur-Seine
TERRAIN ET MAISONVENTE : maison de 4 pièces (82 m²) à Varennes-sur-SeineMAISON 4 PIÈCES NEUVE – PROCHE DE MELUNÀ côté du Transilien R (gare de Montereau, 60 min de Paris), notre agence Maisons France Confort Nemours est heureuse de vous présenter à vendre à Varennes-sur-Seine (77130), cette maison de 4 pièces de 82 m² et de 553 m² de terrain. Elle propose trois chambres, une cuisine et une salle de bains.Cette maison possède 2 niveaux. Elle est neuve.L’École Élémentaire Louis Pasteur, le Lycée Professionnel Gustave Eiffel-Lycée des Métiers des Structures Métalliques et de la Chaudronerie Lycée des Métiers de l’Électrotechnique, le Collège Elsa Triolet et l’École Maternelle Louis Aragon se trouvent à moins de 10 minutes à pied. Niveau transports, il y a cinq gares à moins de 10 minutes en voiture. On trouve un tennis, une bibliothèque, cinq commerces et une boucherie-charcuterie à quelques minutes.Son prix de vente est de 270 400 €.Contactez Anne DELOHEN (tél : (Numéro supprimé)) pour obtenir de plus amples renseignements sur la maison. Maisons France Confort Nemours vous accompagne dans tous vos projets immobiliers et dans toutes vos démarches.Annonce proposée par un Agent Commercial Partenaire.
L’actualité immobilière à La Grande-Paroisse
27/11/2023
02/11/2023
30/10/2023
20/10/2023
16/10/2023
16/10/2023