Images
Description
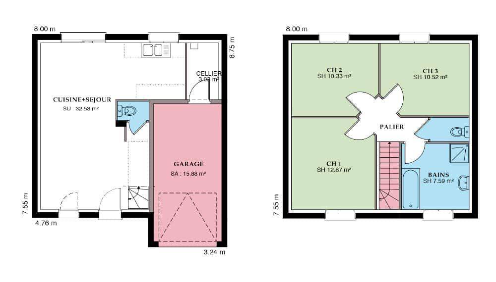
Sur ce terrain, nous vous proposons cette maison neuve baptisée Extenso, conçue par Babeau-Seguin, constructeur offrant le meilleur rapport qualité/prix du marché. Cette maison traditionnelle à étage, avec un fort cachet et un petit prix, dispose d'une surface de 79 m², de 3 chambres et de 4 pièces.
L'Extenso se distingue par son vaste séjour, une salle de bain, 2 WC, un cellier et un garage accolé. Conçue pour répondre aux normes RE2020, cette maison neuve est basse consommation, vous garantissant des économies d'énergie significatives.
Les options les plus demandées par nos clients sont disponibles pour cette maison : enduit bi-ton, domotique et volets roulants motorisés. Ces caractéristiques ajoutent une touche de modernité et de confort à votre futur chez-vous.
Cette belle maison familiale est surtout à ne pas rater pour son prix ! Disposant d'un plancher béton à l'étage, elle s'affiche au prix de nombreuses maisons de plain-pied. Vous n'avez pas encore craqué ?
Si on vous dit que cette Extenso est basse consommation pour encore plus d'économies et qu'en plus sa façade est personnalisable, vous comprendrez qu'il est inutile de chercher un produit équivalent dans l'ancien. Cette Extenso vous offre le confort, la modernité et la qualité... le tout à un prix cassé ! Une exclusivité Maisons Babeau-Seguin.
Ne manquez pas cette opportunité unique d'acquérir une maison neuve, moderne et économe en énergie, parfaitement adaptée à votre terrain. Contactez-nous dès maintenant pour plus d'informations et pour planifier une visite.
Logement susceptibles de vous intéresser
Nous vous proposons de découvrir aussi cette sélection de logements situés à moins de 10km de Le Châtelet-en-Brie et qui seraient susceptibles de vous intéresser.
La Chapelle-Gauthier
TERRAINproximité du centre ville, commerces, transports et écoles.Prix : 110000 €.Sur ce terrain de 382 m² à LA CHAPELLE-GAUTHIER, Maisons Clairval vous propose de réaliser votre projet de construction de maison individuelle.Maisons Clairval propose de construire votre maison neuve avec toutes les prestations suivantes :- Plan sur-mesure et personnalisé de 2 à 6 chambres- Mode de chauffage au choix- Grands choix d'équipements et de prestations- Matériaux de qualité selon les normes en vigueur- Accompagnement dans le choix et l’acquisition du terrain- Construction conforme à la nouvelle RE 2020Demandez une étude gratuite et personnalisée de votre projet de construction sur ce terrain !Contactez Nicolas REBOUL au (Numéro supprimé) ou au (Numéro supprimé) (Maisons Clairval – Agence de Villemoisson).Prix hors frais de notaire. Terrain sélectionné et vu pour vous sous réserve de disponibilité et au prix indiqué par notre partenaire foncier. Conditions et visuels non contractuels.Cette annonce a été créée et diffusée avec le logiciel VITAHOME.
Machault
TERRAINsecteur calme entre Melun et FontainebleauProximité centre village, écoles, crèche et commerces accessibles à pied. Collège à moins de 15 min (Vulaines, Champagne sur Seine) . Gares à moins de 20 min en voiture (Héricy, Vulaines-Samoreau, Champagne sur Seine)Prix : 128000 €.Sur ce terrain de 578 m² à MACHAULT, Maisons Clairval vous propose de réaliser votre projet de construction de maison individuelle.Maisons Clairval propose de construire votre maison neuve avec toutes les prestations suivantes :- Plan sur-mesure et personnalisé de 2 à 6 chambres- Mode de chauffage au choix- Grands choix d'équipements et de prestations- Matériaux de qualité selon les normes en vigueur- Accompagnement dans le choix et l’acquisition du terrain- Construction conforme à la nouvelle RE 2020Demandez une étude gratuite et personnalisée de votre projet de construction sur ce terrain !Contactez Nicolas REBOUL au (Numéro supprimé) ou au (Numéro supprimé) (Maisons Clairval – Agence de Villemoisson).Prix hors frais de notaire. Terrain sélectionné et vu pour vous sous réserve de disponibilité et au prix indiqué par notre partenaire foncier. Conditions et visuels non contractuels.Cette annonce a été créée et diffusée avec le logiciel VITAHOME.
La Chapelle-Gauthier
TERRAINproximité du centre ville, commerces, transports et écoles.Prix : 112000 €.Sur ce terrain de 383 m² à LA CHAPELLE-GAUTHIER, Maisons Clairval vous propose de réaliser votre projet de construction de maison individuelle.Maisons Clairval propose de construire votre maison neuve avec toutes les prestations suivantes :- Plan sur-mesure et personnalisé de 2 à 6 chambres- Mode de chauffage au choix- Grands choix d'équipements et de prestations- Matériaux de qualité selon les normes en vigueur- Accompagnement dans le choix et l’acquisition du terrain- Construction conforme à la nouvelle RE 2020Demandez une étude gratuite et personnalisée de votre projet de construction sur ce terrain !Contactez Nicolas REBOUL au (Numéro supprimé) ou au (Numéro supprimé) (Maisons Clairval – Agence de Villemoisson).Prix hors frais de notaire. Terrain sélectionné et vu pour vous sous réserve de disponibilité et au prix indiqué par notre partenaire foncier. Conditions et visuels non contractuels.Cette annonce a été créée et diffusée avec le logiciel VITAHOME.
Vulaines-sur-Seine
TERRAINDécouvrez notre nouvelle offre de 10 terrains à bâtir, viabilisés et libres de constructeur, de 378m à 604m à moins de 10 Km de FONTAINEBLEAU Situé dans le département de la Seine et Marne, notre programme ‘ VILLA VELCINA ‘ se situe dans un environnement calme, chaleureux et urbain, à 1h30* de PARIS et seulement 10 minutes* du centre-ville de FONTAINEBLEAU.La commune de Vulaines-sur-Seine s’établit dans un cadre de vie privilégié où vous disposerez de tous les commerces et infrastructures nécessaires au quotidien.Vous pourrez également profiter de nombreux espaces de vie et d’activités proposés par la ville. Un patrimoine culturel d’exception !La ville est desservie par la Ligne 9 ( Bus ). La Gare de FONTAINEBLEAU / AVON ( TER ) permet de rejoindre PARIS via MELUN : RER D.Plus que 5 terrains disponibles!Plusieurs terrains disponibles, contactez nous pour plus d’informations.Pour toutes informations complémentaires, prenez contact avec nous !
Vulaines-sur-Seine
TERRAINDécouvrez notre nouvelle offre de 10 terrains à bâtir, viabilisés et libres de constructeur, de 378m à 604m à moins de 10 Km de FONTAINEBLEAU Situé dans le département de la Seine et Marne, notre programme ‘ VILLA VELCINA ‘ se situe dans un environnement calme, chaleureux et urbain, à 1h30* de PARIS et seulement 10 minutes* du centre-ville de FONTAINEBLEAU.La commune de Vulaines-sur-Seine s’établit dans un cadre de vie privilégié où vous disposerez de tous les commerces et infrastructures nécessaires au quotidien.Vous pourrez également profiter de nombreux espaces de vie et d’activités proposés par la ville. Un patrimoine culturel d’exception !La ville est desservie par la Ligne 9 ( Bus ). La Gare de FONTAINEBLEAU / AVON ( TER ) permet de rejoindre PARIS via MELUN : RER D.Plus que 5 terrains disponibles!Plusieurs terrains disponibles, contactez nous pour plus d’informations.Pour toutes informations complémentaires, prenez contact avec nous !
Vulaines-sur-Seine
TERRAINDécouvrez notre nouvelle offre de 10 terrains à bâtir, viabilisés et libres de constructeur, de 378m à 604m à moins de 10 Km de FONTAINEBLEAU Situé dans le département de la Seine et Marne, notre programme ‘ VILLA VELCINA ‘ se situe dans un environnement calme, chaleureux et urbain, à 1h30* de PARIS et seulement 10 minutes* du centre-ville de FONTAINEBLEAU.La commune de Vulaines-sur-Seine s’établit dans un cadre de vie privilégié où vous disposerez de tous les commerces et infrastructures nécessaires au quotidien.Vous pourrez également profiter de nombreux espaces de vie et d’activités proposés par la ville. Un patrimoine culturel d’exception !La ville est desservie par la Ligne 9 ( Bus ). La Gare de FONTAINEBLEAU / AVON ( TER ) permet de rejoindre PARIS via MELUN : RER D.Plus que 5 terrains disponibles!Plusieurs terrains disponibles, contactez nous pour plus d’informations.Pour toutes informations complémentaires, prenez contact avec nous !
Vulaines-sur-Seine
TERRAINDécouvrez notre nouvelle offre de 10 terrains à bâtir, viabilisés et libres de constructeur, de 378m à 604m à moins de 10 Km de FONTAINEBLEAU Situé dans le département de la Seine et Marne, notre programme ‘ VILLA VELCINA ‘ se situe dans un environnement calme, chaleureux et urbain, à 1h30* de PARIS et seulement 10 minutes* du centre-ville de FONTAINEBLEAU.La commune de Vulaines-sur-Seine s’établit dans un cadre de vie privilégié où vous disposerez de tous les commerces et infrastructures nécessaires au quotidien.Vous pourrez également profiter de nombreux espaces de vie et d’activités proposés par la ville. Un patrimoine culturel d’exception !La ville est desservie par la Ligne 9 ( Bus ). La Gare de FONTAINEBLEAU / AVON ( TER ) permet de rejoindre PARIS via MELUN : RER D.Plus que 5 terrains disponibles!Plusieurs terrains disponibles, contactez nous pour plus d’informations.Pour toutes informations complémentaires, prenez contact avec nous !
Vulaines-sur-Seine
TERRAINDécouvrez notre nouvelle offre de 10 terrains à bâtir, viabilisés et libres de constructeur, de 378m à 604m à moins de 10 Km de FONTAINEBLEAU Situé dans le département de la Seine et Marne, notre programme ‘ VILLA VELCINA ‘ se situe dans un environnement calme, chaleureux et urbain, à 1h30* de PARIS et seulement 10 minutes* du centre-ville de FONTAINEBLEAU.La commune de Vulaines-sur-Seine s’établit dans un cadre de vie privilégié où vous disposerez de tous les commerces et infrastructures nécessaires au quotidien.Vous pourrez également profiter de nombreux espaces de vie et d’activités proposés par la ville. Un patrimoine culturel d’exception !La ville est desservie par la Ligne 9 ( Bus ). La Gare de FONTAINEBLEAU / AVON ( TER ) permet de rejoindre PARIS via MELUN : RER D.Plus que 5 terrains disponibles!Plusieurs terrains disponibles, contactez nous pour plus d’informations.Pour toutes informations complémentaires, prenez contact avec nous !
Vulaines-sur-Seine
TERRAINDécouvrez notre nouvelle offre de 10 terrains à bâtir, viabilisés et libres de constructeur, de 378m à 604m à moins de 10 Km de FONTAINEBLEAU Situé dans le département de la Seine et Marne, notre programme ‘ VILLA VELCINA ‘ se situe dans un environnement calme, chaleureux et urbain, à 1h30* de PARIS et seulement 10 minutes* du centre-ville de FONTAINEBLEAU.La commune de Vulaines-sur-Seine s’établit dans un cadre de vie privilégié où vous disposerez de tous les commerces et infrastructures nécessaires au quotidien.Vous pourrez également profiter de nombreux espaces de vie et d’activités proposés par la ville. Un patrimoine culturel d’exception !La ville est desservie par la Ligne 9 ( Bus ). La Gare de FONTAINEBLEAU / AVON ( TER ) permet de rejoindre PARIS via MELUN : RER D.Plus que 5 terrains disponibles!Plusieurs terrains disponibles, contactez nous pour plus d’informations.Pour toutes informations complémentaires, prenez contact avec nous !
L’actualité immobilière à Le Châtelet-en-Brie
27/11/2023
02/11/2023
30/10/2023
20/10/2023
16/10/2023
16/10/2023