Images
Description
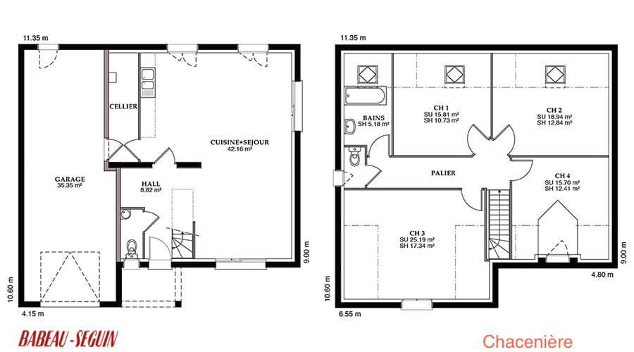
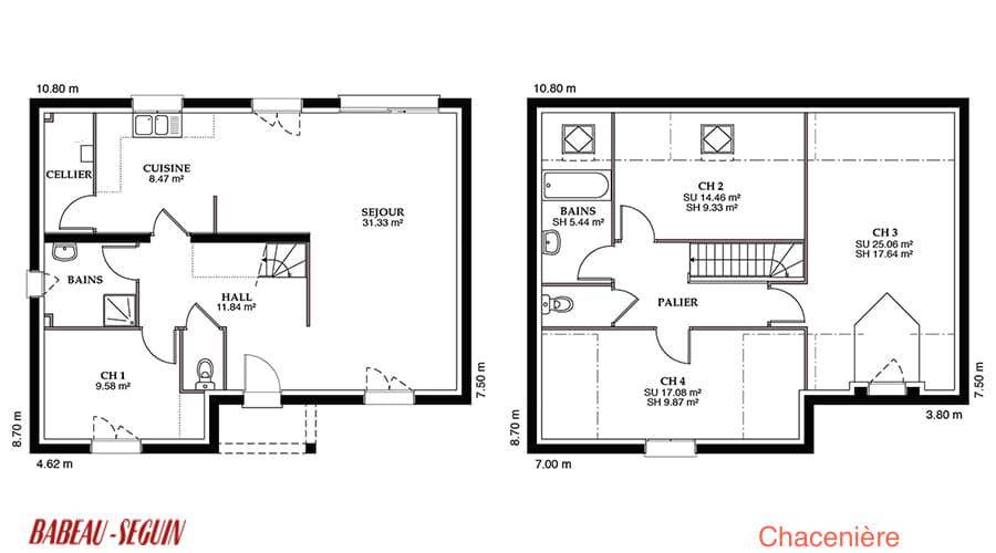
Sur ce terrain, nous vous proposons cette maison neuve : la Chacenière, un modèle de 100 m² conçu par Babeau-Seguin, constructeur reconnu pour offrir le meilleur rapport qualité/prix du marché.
Cette maison en L, à la fois originale et accueillante, dispose de 4 chambres et de 4 pièces, offrant ainsi tout l'espace nécessaire pour une vie familiale confortable. L'étage est composé d'un plancher avec une dalle étage en béton, garantissant robustesse et durabilité. Une charpente traditionnelle et une lucarne maçonnée viennent compléter l'ensemble, ajoutant du charme et du caractère à cette construction.
La Chacenière se distingue par sa cuisine totalement ouverte sur le séjour, créant un espace de vie convivial et lumineux. Le garage intégré est une option très demandée par nos clients, offrant un espace de rangement supplémentaire et une protection pour votre véhicule.
En choisissant cette maison, vous optez pour une construction basse consommation, conforme à la réglementation environnementale RE2020, vous assurant ainsi des économies d'énergie et un confort optimal tout au long de l'année.
Ne manquez pas cette opportunité de faire construire votre maison familiale avec Babeau-Seguin et de profiter d'un habitat moderne, économique et parfaitement adapté à vos besoins.
Logement susceptibles de vous intéresser
Nous vous proposons de découvrir aussi cette sélection de logements situés à moins de 10km de Le Plessis-Feu-Aussoux et qui seraient susceptibles de vous intéresser.
Vaudoy-en-Brie
TERRAINVaudoy-en-Brie : terrain de 459 m² à vendreEMPLACEMENT PRIVILÉGIÉ – PROCHE DE BUSSY-SAINT-GEORGESÀ Vaudoy-en-Brie (77141) à quelques kilomètres de Bussy-Saint-Georges, venez découvrir ce terrain de 459 m². Dans un quartier prisé, ce terrain bénéficiant d’un emplacement privilégié est proche des écoles et des commerces. Il y a cinq établissements scolaires à moins de 10 minutes en voiture. On trouve des tennis, trois bibliothèques, des commerces, des boulangeries, un supermarché, deux poissonneries et trois bureaux de poste à quelques minutes de la propriété.Il est à vendre pour la somme de 102 000 €. N’hésitez pas à prendre contact avec Alan RUBAL (tél : (Numéro supprimé)) pour toute question sur ce terrain, sur les modalités de vente ou sur les démarches à suivre.Annonce proposée par un Agent Commercial Partenaire.
Vaudoy-en-Brie
TERRAIN ET MAISONMaison F8 (140 m²) à vendre à Vaudoy-en-BrieEMPLACEMENT PRIVILÉGIÉ – MAISON 8 PIÈCES NEUVEÀ quelques kilomètres de Bussy-Saint-Georges, nous sommes ravis de vous proposer cette maison de 8 pièces de 140 m² et de 459 m² de terrain à vendre bénéficiant d’un emplacement privilégié dans Vaudoy-en-Brie (77141).Cette maison possède 2 niveaux. Son intérieur offre cinq chambres, une cuisine et deux salles de bains. Cette maison est neuve.Cette maison est située dans un quartier prisé. Cinq établissements scolaires se trouvent à moins de 10 minutes en voiture. Il y a des tennis, trois bibliothèques, des commerces, des boulangeries, un supermarché, une boucherie-charcuterie et deux poissonneries dans les environs.Elle est proposée à l’achat pour 354 000 €.Prenez contact avec notre agence (RUBAL Alan : (Numéro supprimé)) pour obtenir de plus amples informations sur la maison ou sur les modalités de vente. Maisons France Confort Magny-le-Hongre vous accompagne à toutes les étapes de l’achat et dans tous vos projets immobiliers.Annonce proposée par un Agent Commercial Partenaire.
Vaudoy-en-Brie
TERRAIN ET MAISONMaison T7 (120 m²) en vente à Vaudoy-en-BrieEMPLACEMENT PRIVILÉGIÉ – MAISON 7 PIÈCES NEUVEÀ 29 km de Bussy-Saint-Georges, nous sommes heureux de vous proposer cette maison de 7 pièces de 120 m² en vente bénéficiant d’un emplacement d’exception dans Vaudoy-en-Brie (77141). Elle compte quatre chambres, une cuisine et deux salles de bains.Le terrain du bien s’étend sur 459 m².C’est une maison de 2 niveaux. Elle est neuve.Cette maison se trouve dans un quartier prisé. Cinq établissements scolaires sont implantés à moins de 10 minutes en voiture. Il y a des tennis, trois bibliothèques, des commerces, des boulangeries, un supermarché, une boucherie-charcuterie et trois bureaux de poste dans les environs.Elle est à vendre pour la somme de 318 000 €.Contactez Alan RUBAL (tél : (Numéro supprimé)) pour obtenir de plus amples informations sur la maison. Donnez vie à vos projets immobiliers avec Maisons France Confort Magny-le-Hongre.Annonce proposée par un Agent Commercial Partenaire.
Vaudoy-en-Brie
TERRAIN ET MAISONVaudoy-en-Brie : maison T5 (105 m²) en venteEMPLACEMENT PRIVILÉGIÉ – MAISON 5 PIÈCES NEUVEEn vente : à quelques kilomètres de Bussy-Saint-Georges, bénéficiant d’un emplacement d’exception dans Vaudoy-en-Brie (77141), nous sommes ravis de vous présenter cette maison de 5 pièces de plain-pied de 105 m².Son intérieur est composé de quatre chambres, d’une cuisine et de deux salles de bains. La maison est neuve.Le terrain du bien s’étend sur 459 m².La maison se trouve dans un quartier recherché. Cinq établissements scolaires sont implantés à moins de 10 minutes en voiture. Il y a des tennis, trois bibliothèques, des commerces, des boulangeries, un supermarché, une boucherie-charcuterie et deux poissonneries dans les environs.Elle est proposée à l’achat pour 291 000 €.N’hésitez pas à prendre contact avec notre agence (RUBAL Alan : (Numéro supprimé)) pour plus d’informations sur la propriété.Annonce proposée par un Agent Commercial Partenaire.
Vaudoy-en-Brie
TERRAIN ET MAISONVENTE d’une maison de 6 pièces (105 m²) à Vaudoy-en-BrieEMPLACEMENT PRIVILÉGIÉ – MAISON 6 PIÈCES NEUVEEn vente : localisée à deux pas de Bussy-Saint-Georges, nous sommes ravis de vous proposer, bénéficiant d’un emplacement d’exception dans Vaudoy-en-Brie (77141), cette maison de 6 pièces de plain-pied de 105 m² et de 459 m² de terrain.Elle offre quatre chambres, une cuisine et deux salles de bains. La maison est neuve.Cette propriété est située dans un secteur prisé. On trouve cinq établissements scolaires à moins de 10 minutes en voiture. Il y a des tennis, trois bibliothèques, des commerces, des boulangeries, un supermarché, deux poissonneries et des épiceries dans les environs.Elle est proposée à l’achat pour 291 000 €.N’hésitez pas à prendre contact avec Alan RUBAL ((Numéro supprimé)) pour toute information sur la maison, sur les modalités de vente ou sur les démarches à suivre. Maisons France Confort Magny-le-Hongre est là pour vous accompagner à toutes les étapes de votre projet.Annonce proposée par un Agent Commercial Partenaire.
Vaudoy-en-Brie
TERRAINPrix : 99000 €.Sur ce terrain de 377 m² à VAUDOY-EN-BRIE, Maisons Clairval vous propose de réaliser votre projet de construction de maison individuelle.Maisons Clairval propose de construire votre maison neuve avec toutes les prestations suivantes :- Plan sur-mesure et personnalisé de 2 à 6 chambres- Mode de chauffage au choix- Grands choix d'équipements et de prestations- Matériaux de qualité selon les normes en vigueur- Accompagnement dans le choix et l’acquisition du terrain- Construction conforme à la nouvelle RE 2020Demandez une étude gratuite et personnalisée de votre projet de construction sur ce terrain !Contactez Nicolas REBOUL au (Numéro supprimé) ou au (Numéro supprimé) (Maisons Clairval – Agence de Villemoisson).Prix hors frais de notaire. Terrain sélectionné et vu pour vous sous réserve de disponibilité et au prix indiqué par notre partenaire foncier. Conditions et visuels non contractuels.Cette annonce a été créée et diffusée avec le logiciel VITAHOME.
Vaudoy-en-Brie
TERRAINPrix : 99000 €.Sur ce terrain de 356 m² à VAUDOY-EN-BRIE, Maisons Clairval vous propose de réaliser votre projet de construction de maison individuelle.Maisons Clairval propose de construire votre maison neuve avec toutes les prestations suivantes :- Plan sur-mesure et personnalisé de 2 à 6 chambres- Mode de chauffage au choix- Grands choix d'équipements et de prestations- Matériaux de qualité selon les normes en vigueur- Accompagnement dans le choix et l’acquisition du terrain- Construction conforme à la nouvelle RE 2020Demandez une étude gratuite et personnalisée de votre projet de construction sur ce terrain !Contactez Nicolas REBOUL au (Numéro supprimé) ou au (Numéro supprimé) (Maisons Clairval – Agence de Villemoisson).Prix hors frais de notaire. Terrain sélectionné et vu pour vous sous réserve de disponibilité et au prix indiqué par notre partenaire foncier. Conditions et visuels non contractuels.Cette annonce a été créée et diffusée avec le logiciel VITAHOME.
Vaudoy-en-Brie
TERRAINPrix : 103000 €.Sur ce terrain de 367 m² à VAUDOY-EN-BRIE, Maisons Clairval vous propose de réaliser votre projet de construction de maison individuelle.Maisons Clairval propose de construire votre maison neuve avec toutes les prestations suivantes :- Plan sur-mesure et personnalisé de 2 à 6 chambres- Mode de chauffage au choix- Grands choix d'équipements et de prestations- Matériaux de qualité selon les normes en vigueur- Accompagnement dans le choix et l’acquisition du terrain- Construction conforme à la nouvelle RE 2020Demandez une étude gratuite et personnalisée de votre projet de construction sur ce terrain !Contactez Nicolas REBOUL au (Numéro supprimé) ou au (Numéro supprimé) (Maisons Clairval – Agence de Villemoisson).Prix hors frais de notaire. Terrain sélectionné et vu pour vous sous réserve de disponibilité et au prix indiqué par notre partenaire foncier. Conditions et visuels non contractuels.Cette annonce a été créée et diffusée avec le logiciel VITAHOME.
La Chapelle-Iger
TERRAINPrix : 70000 €.Sur ce terrain, réalisez votre projet de construction de maison RE 2020 avec PAVILLONS D'ÎLE-DE-FRANCE (constructeur de maisons de gamme et sur-mesure depuis plus de 50 ans) :- Plan sur-mesure et personnalisé de 2 à 5 chambres- Mode de chauffage au choix- Grands choix d'équipements et de prestations- Matériaux de qualité selon les normes en vigueur- Accompagnement dans le choix et l’acquisition du terrainDemandez une étude gratuite et personnalisée de votre projet de construction sur ce terrain !Contactez Stéphane VERHAUVEN au (Numéro supprimé) ou au (Numéro supprimé) (Pavillons d'Île-de-France – Agence de Meaux).Prix hors frais de notaire. Terrain sélectionné et vu pour vous sous réserve de disponibilité et au prix indiqué par notre partenaire foncier. Visuels non contractuels.Cette annonce a été créée et diffusée avec le logiciel VITAHOME.
L’actualité immobilière à Le Plessis-Feu-Aussoux
27/11/2023
02/11/2023
30/10/2023
20/10/2023
16/10/2023
16/10/2023