Maison à construire à Les Chapelles-Bourbon (77610)
Images
Description
VENTE d'une maison T7 (150 m²) aux Chapelles-Bourbon
PROCHE GARE - MAISON 7 PIÈCES NEUVE
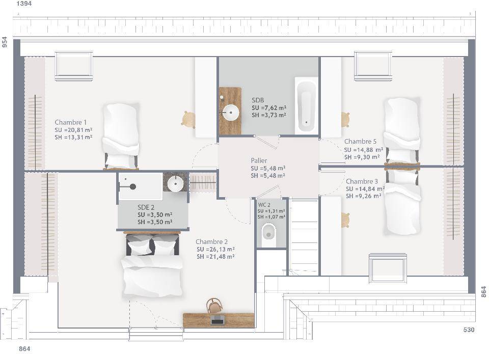
Proche du Transilien P (gare de Marles-en-Brie, 35 min de Paris), notre agence Maisons France Confort Magny-le-Hongre est ravie de vous présenter cette maison de 7 pièces de 150 m² dans Les Chapelles-Bourbon (77610), proche de la gare. Son intérieur offre cinq chambres, une cuisine et deux salles de bains.
Le terrain de la propriété est de 385 m².
Cette maison compte 2 niveaux. Elle est neuve.
Il y a l'École Primaire Haoüis de Garlande à moins de 10 minutes à pied. Côté transports en commun, on trouve la ligne de RER E (Tournan) ainsi que quatre gares à moins de 10 minutes en voiture. Il y a un tennis et une bibliothèque à quelques minutes du bien.
Elle est à vendre pour la somme de 415 000 €.
N'hésitez pas à prendre contact avec notre agence (YAHIAOUI Cedric : (Numéro supprimé)) pour tout renseignement sur la maison, sur les démarches à suivre ou sur les modalités de vente.
Annonce proposée par un Agent Commercial Partenaire.
Logement susceptibles de vous intéresser
Nous vous proposons de découvrir aussi cette sélection de logements situés à moins de 10km de Les Chapelles-Bourbon et qui seraient susceptibles de vous intéresser.
Tournan-en-Brie
TERRAINVENTE : terrain de 503 m² à Tournan-en-BrieEMPLACEMENT PRIVILÉGIÉ – PROCHE DE MONTREUILÀ Tournan-en-Brie (77220) à proximité du RER E (station Tournan, 40 min de Paris), donnez vie à la maison de vos rêves sur ce terrain de 503 m². Il est orienté au sud-ouest. Dans un quartier convoité, le terrain bénéficiant d’un emplacement d’exception est proche des commerces et des écoles. Il y a des établissements scolaires maternelles et élémentaires à moins de 10 minutes à pied, tout comme trois crèches. Niveau transports, on trouve la station de RER Tournan (ligne E) ainsi que la gare Tournan-en-Brie juste à côté. On trouve une bibliothèque, un tennis, des commerces, trois boulangeries, un supermarché, un bureau de poste et une boucherie-charcuterie à quelques minutes. Le marché Place du marché a lieu chaque samedi matin.Son prix de vente est de 190 000 €. Contactez notre agence (RUBAL Alan : (Numéro supprimé)) pour obtenir de plus amples renseignements sur le terrain.Annonce proposée par un Agent Commercial Partenaire.
Tournan-en-Brie
TERRAIN ET MAISONVENTE : maison de 7 pièces (120 m²) à Tournan-en-BrieEMPLACEMENT PRIVILÉGIÉ – MAISON 7 PIÈCES NEUVEÀ quelques minutes de la station Tournan du RER E (40 min de Paris), ayez le coup de coeur pour cette maison de 7 pièces de 120 m² à vendre bénéficiant d’un emplacement d’exception dans Tournan-en-Brie (77220).Cette maison possède 2 niveaux. Elle comporte cinq chambres, une cuisine et deux salles de bains. La maison est neuve.Le terrain du bien s’étend sur 503 m².Cette maison se trouve dans un quartier recherché. Il y a des écoles maternelles et élémentaires à moins de 10 minutes à pied, tout comme trois crèches. Côté transports, on trouve la station de RER Tournan (ligne E) ainsi que la gare Tournan-en-Brie dans les environs. Il y a une bibliothèque, un tennis, des commerces, trois boulangeries, un supermarché, deux épiceries et une boucherie-charcuterie à quelques minutes du logement. Ne manquez pas le marché Place du marché chaque samedi matin.Son prix de vente est de 406 000 €.N’hésitez pas à prendre contact avec notre agence (Alan RUBAL : (Numéro supprimé)) pour obtenir de plus amples renseignements sur la maison, sur les démarches à suivre ou sur les modalités de vente. Maisons France Confort Magny-le-Hongre vous accompagne dans tous vos projets immobiliers et à toutes les étapes de l’achat.Annonce proposée par un Agent Commercial Partenaire.
Tournan-en-Brie
TERRAIN ET MAISONVENTE d’une maison T7 (120 m²) à Tournan-en-BrieEMPLACEMENT PRIVILÉGIÉ – MAISON 7 PIÈCES NEUVEÀ deux pas du RER E (station Tournan, 40 min de Paris), votre agence Maisons France Confort Magny-le-Hongre est ravie de vous proposer cette maison de 7 pièces de 120 m² et de 503 m² de terrain bénéficiant d’un emplacement d’exception dans Tournan-en-Brie (77220).Cette maison comporte 2 niveaux. Son intérieur compte quatre chambres, une cuisine et deux salles de bains. La maison est neuve.La maison se situe dans un quartier attractif. Il y a des écoles maternelles et élémentaires à moins de 10 minutes à pied, tout comme trois structures d’accueil pour les enfants en bas âge. Niveau transports, on trouve la station de RER Tournan (ligne E) ainsi que la gare Tournan-en-Brie à quelques pas du bien. Il y a une bibliothèque, un tennis, des commerces, trois boulangeries, un supermarché, une boucherie-charcuterie et un bureau de poste à proximité du logement. Enfin, le marché Place du marché anime le quartier chaque samedi matin.Elle est à vendre pour la somme de 406 000 €.N’hésitez pas à prendre contact avec Alan RUBAL ((Numéro supprimé)) pour obtenir de plus amples renseignements sur la maison, sur les démarches à suivre ou sur les modalités de vente. Maisons France Confort Magny-le-Hongre vous accompagne à toutes les étapes de l’achat et dans tous vos projets immobiliers.Annonce proposée par un Agent Commercial Partenaire.
Tournan-en-Brie
TERRAIN ET MAISONTournan-en-Brie : maison de 5 pièces (105 m²) en venteEMPLACEMENT PRIVILÉGIÉ – MAISON 5 PIÈCES NEUVEEn vente : à 515 m du RER E (station Tournan, 40 min de Paris), bénéficiant d’un emplacement privilégié dans Tournan-en-Brie (77220), votre agence Maisons France Confort Magny-le-Hongre est ravie de vous proposer cette maison de 5 pièces de plain-pied de 105 m². Elle comporte quatre chambres, une cuisine et deux salles de bains.Le terrain de cette maison s’étend sur 503 m².La maison est neuve.Le bien se trouve dans un quartier convoité. Il y a des écoles maternelles et élémentaires à moins de 10 minutes à pied, tout comme trois structures d’accueil pour les enfants en bas âge. Niveau transports, on trouve la station de RER Tournan (ligne E) ainsi que la gare Tournan-en-Brie juste à côté. Il y a une bibliothèque, un tennis, des commerces, trois boulangeries, un supermarché, une boucherie-charcuterie et un bureau de poste dans les environs. Le marché Place du marché a lieu tous les samedis matin.Son prix de vente est de 379 000 €.Contactez Alan RUBAL (tél : (Numéro supprimé)) pour toute information sur la maison, sur les démarches à suivre ou sur les modalités de vente.Annonce proposée par un Agent Commercial Partenaire.
Tournan-en-Brie
TERRAIN ET MAISONTournan-en-Brie : maison de 5 pièces (100 m²) à vendreEMPLACEMENT PRIVILÉGIÉ – MAISON 5 PIÈCES NEUVEÀ vendre : à quelques minutes de la station Tournan (Paris à 40 min avec le RER E), Maisons France Confort Magny-le-Hongre vous présente cette maison de 5 pièces de 100 m² bénéficiant d’un emplacement privilégié dans Tournan-en-Brie (77220). Elle est composée de trois chambres, d’une cuisine et d’une salle de bains.Le terrain de la propriété s’étend sur 503 m².C’est une maison de 2 niveaux. Elle est neuve.Cette maison se trouve dans un quartier attractif. Il y a des écoles primaires à moins de 10 minutes à pied, tout comme trois crèches. Niveau transports, on trouve la station de RER Tournan (ligne E) ainsi que la gare Tournan-en-Brie à quelques pas de la maison. On trouve une bibliothèque, un tennis, des commerces, trois boulangeries, un supermarché, deux épiceries et un bureau de poste à quelques minutes du logement. Le marché Place du marché anime les environs chaque samedi matin.Elle est à vendre pour la somme de 370 000 €.Prenez contact avec Alan RUBAL ((Numéro supprimé)) pour plus d’informations sur la maison ou sur les démarches à suivre. Concrétisez vos projets immobiliers avec Maisons France Confort Magny-le-Hongre.Annonce proposée par un Agent Commercial Partenaire.
Tournan-en-Brie
TERRAIN ET MAISONMaison F5 (89 m²) à vendre à Tournan-en-BrieEMPLACEMENT PRIVILÉGIÉ – MAISON 5 PIÈCES NEUVEÀ vendre : à 515 m de la station Tournan du RER E (40 min de Paris), nous vous proposons, bénéficiant d’un emplacement d’exception dans Tournan-en-Brie (77220), cette maison de 5 pièces de plain-pied de 89 m². Conçue de plain-pied, elle propose trois chambres, une cuisine et une salle de bains.Le terrain du bien s’étend sur 503 m².Cette maison est neuve.La maison est située dans un secteur recherché. Des établissements scolaires primaires se trouvent à moins de 10 minutes à pied, tout comme trois crèches. Niveau transports en commun, il y a la station de RER Tournan (ligne E) ainsi que la gare Tournan-en-Brie à proximité. Il y a une bibliothèque, un tennis, des commerces, trois boulangeries, un supermarché, une boucherie-charcuterie et un bureau de poste dans les environs. Le marché Place du marché anime le quartier chaque samedi matin.Elle est proposée à l’achat pour 350 200 €.Contactez notre agence (Alan RUBAL : (Numéro supprimé)) pour tout renseignement sur la maison ou sur les modalités de vente.Annonce proposée par un Agent Commercial Partenaire.
Gretz-Armainvilliers
TERRAIN ET MAISONPresles-en-Brie : maison T7 (120 m²) à vendreIDÉALEMENT SITUÉE – MAISON 7 PIÈCES NEUVEÀ deux pas de la station Tournan (Paris à 40 min avec le RER E), notre agence Maisons France Confort Magny-le-Hongre est ravie de vous proposer cette maison de 7 pièces de 120 m² idéalement située dans Presles-en-Brie (77220).C’est une maison de 2 niveaux. Son intérieur comporte cinq chambres, une cuisine et deux salles de bains. Cette maison est neuve.Le terrain de la propriété est de 440 m².La maison est située dans un secteur convoité. L’École Maternelle Maurice André et l’École Élémentaire Maurice André sont implantées à moins de 10 minutes à pied, tout comme une crèche. Niveau transports en commun, on trouve la ligne de RER E (Tournan) ainsi que quatre gares à moins de 10 minutes en voiture. Il y a une bibliothèque, un tennis, une boulangerie, un commerce et une épicerie dans les environs.Son prix de vente est de 389 000 €.Contactez notre constructeur (SOUMARMON Félix : (Numéro supprimé)) pour toute question sur la maison ou sur les démarches à suivre. Maisons France Confort Magny-le-Hongre est là pour vous accompagner à toutes les étapes de l’achat.Annonce proposée par un Agent Commercial Partenaire.
Gretz-Armainvilliers
TERRAIN ET MAISONPresles-en-Brie : maison F6 (115 m²) à vendreIDÉALEMENT SITUÉE – MAISON 6 PIÈCES NEUVEAu pied de la station Tournan du RER E (40 min de Paris), notre agence Maisons France Confort Magny-le-Hongre est heureuse de vous présenter cette maison de 6 pièces de 115 m² et de 440 m² de terrain en vente idéalement située dans Presles-en-Brie (77220).Il s’agit d’une maison de 2 niveaux. Elle dispose de quatre chambres, d’une cuisine et de deux salles de bains. La maison est neuve.La maison se situe dans un secteur convoité. Il y a l’École Maternelle Maurice André et l’École Élémentaire Maurice André à moins de 10 minutes à pied et une structure d’accueil pour les tout-petits. Côté transports en commun, on trouve la ligne de RER E (Tournan) ainsi que quatre gares à moins de 10 minutes en voiture. Il y a une bibliothèque, un tennis, une boulangerie, un commerce et une épicerie à quelques minutes.Son prix de vente est de 379 000 €.Prenez contact avec notre agence (Félix SOUMARMON : (Numéro supprimé)) pour obtenir de plus amples informations sur la maison ou sur les démarches à suivre.Annonce proposée par un Agent Commercial Partenaire.
Gretz-Armainvilliers
TERRAIN ET MAISONVENTE d’une maison de 7 pièces (150 m²) à Presles-en-BrieIDÉALEMENT SITUÉE – MAISON 7 PIÈCES NEUVEÀ vendre : à quelques minutes de la station Tournan (Paris à 40 min par le RER E), laissez vous charmer par cette maison de 7 pièces de 150 m² idéalement située dans Presles-en-Brie (77220). Elle inclut cinq chambres, une cuisine et deux salles de bains.Le terrain de la propriété est de 440 m².C’est une maison de 2 niveaux. Elle est neuve.Cette maison est située dans un quartier convoité. L’École Maternelle Maurice André et l’École Élémentaire Maurice André se trouvent à moins de 10 minutes à pied, tout comme une structure d’accueil pour les tout-petits. Côté transports en commun, il y a la ligne de RER E (Tournan) ainsi que quatre gares à moins de 10 minutes en voiture. On trouve une bibliothèque, un tennis, une boulangerie, un commerce et une épicerie à quelques minutes de la maison.Son prix de vente est de 430 000 €.N’hésitez pas à prendre contact avec notre agence (Félix SOUMARMON : (Numéro supprimé)) pour toute question sur la maison. Maisons France Confort Magny-le-Hongre est là pour vous accompagner dans toutes vos démarches.Annonce proposée par un Agent Commercial Partenaire.
L’actualité immobilière à Les Chapelles-Bourbon
27/11/2023
02/11/2023
30/10/2023
20/10/2023
16/10/2023
16/10/2023