Maison à construire à Lieusaint (77127)
Images
Description
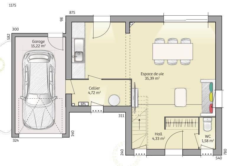
VENTE d'une maison de 5 pièces (90 m²) à Lieusaint
IDÉALEMENT SITUÉE - MAISON 5 PIÈCES NEUVE
À proximité de la station Lieusaint-Moissy du RER D (20 min de Paris), notre agence Maisons France Confort Magny-le-Hongre est heureuse de vous présenter cette maison de 5 pièces de 90 m² idéalement située dans Lieusaint (77127). Son intérieur comporte trois chambres, une cuisine et une salle de bains.
Le terrain du bien est de 359 m².
Il s'agit d'une maison de 2 niveaux. Elle est neuve.
Cette maison se trouve dans un quartier prisé. Il y a plusieurs écoles (maternelle, élémentaire, primaire et collège) à moins de 10 minutes à pied, tout comme une crèche. Côté transports en commun, on trouve la ligne de RER D (Lieusaint-Moissy) ainsi que 17 gares à moins de 10 minutes en voiture. On trouve une bibliothèque, des commerces, des boulangeries, deux supermarchés, un bureau de poste et deux boucheries-charcuteries dans les environs.
Elle est à vendre pour la somme de 389 000 €.
Contactez Hugo NGUYEN (tél : (Numéro supprimé)) pour plus de renseignements sur la maison ou sur les modalités de vente.
Annonce proposée par un Agent Commercial Partenaire.
Logement susceptibles de vous intéresser
Nous vous proposons de découvrir aussi cette sélection de logements situés à moins de 10km de Lieusaint et qui seraient susceptibles de vous intéresser.
Saint-Fargeau-Ponthierry
TERRAINOpportunité UNIQUE : Terrain à Bâtir Exceptionnel à Saint-Fargeau-Ponthierry (77) !RARE À CE PRIX ! Ne manquez pas cette chance de construire la maison de vos rêves.Saisissez l’opportunité d’acquérir une parcelle idéalement située sur la commune prisée de Saint-Fargeau-Ponthierry. Ce terrain est parfait pour concrétiser votre projet de construction neuve et sur-mesure.Les Avantages de Saint-Fargeau-Ponthierry : Une Qualité de Vie Incomparable Profitez d’un cadre de vie alliant la tranquillité de la nature et la proximité des commodités :Transport & Accès :Gare SNCF : Ligne R (Paris Gare de Lyon en moins d’1 heure).Proximité des grands axes routiers (A6).Dessertes bus locales.Commerces & Services :Coeur de ville dynamique avec ses commerces de proximité.Présence de supermarchés et zones commerciales pour tous vos besoins.Éducation Complète sur Place :Nombreuses écoles maternelles et primaires (publiques et privées).Collège pour les jeunes.Lycée à proximité immédiate ou facilement accessible, assurant un parcours scolaire complet pour vos enfants.Loisirs & Environnement : Proximité de la forêt de Fontainebleau, bords de Seine, infrastructures sportives et culturelles.Votre Projet de Construction en Toute Sérénité avec Maisons Balency OrmoyCe terrain est l’endroit idéal pour concevoir et construire votre future maison avec Maisons Balency, groupe Hexaôm, le 1ᵉʳ Constructeur de Maisons Individuelles en France.Pourquoi choisir notre agence d’Ormoy (23 chemin de Tournenfils, 91540 ORMOY) ?Expertise Locale : Notre équipe, forte de plus de 25 ans d’expérience dans l’architecture et la construction, vous accompagne de A à Z.Projet Personnalisé : Nous réaliserons pour vous une étude approfondie du PLU et des documents administratifs, un dessin 2D / insertion 3D réaliste de votre projet, et un chiffrage transparent (Terrain + Construction + Frais + Taxes) afin de sécuriser votre acquisition via un CCMI (Contrat de Construction de M
Limoges-Fourches
TERRAINLimoges-Fourches (77550) : Votre Future Vie Commence ici, avec les Maisons Balency d’Ormoy, sur une belle parcelle viabilisée de 435 m² !Imaginez votre future demeure, baignée de lumière et respectueuse de l’environnement, dans un cadre de vie paisible et verdoyant. C’est ce que vous offre ce magnifique terrain à bâtir.Profitez d’un emplacement privilégié, à quelques minutes seulement de toutes les commodités qui faciliteront votre quotidien :- Pour vos courses : Le Super U de Tournan-en-Brie est à seulement 5 minutes en voiture.- Pour l’éducation de vos enfants : L’École primaire Les Prés de Gretz-Armainvilliers se trouve à environ 8 minutes en voiture, et le Collège Georges Brassens de Tournan-en-Brie est accessible en 7 minutes.- Pour vos déplacements : La gare de Tournan (lignes P du Transilien) est à 6 minutes en voiture, offrant des liaisons rapides vers Paris et les environs.- Pour vos moments de détente : Le Parc des Sports de Tournan-en-Brie, avec ses nombreuses installations, est à moins de 10 minutes.Construisez votre avenir avec la sérénité et l’expertise de Maisons Balency, Groupe Hexaôm, 1er constructeur de maisons individuelles en France. Nous vous accompagnons à chaque étape de votre projet, de la conception des plans personnalisés au parfait achèvement de votre maison, en respectant scrupuleusement la norme RE2020 pour un habitat performant et éco-responsable.Contactez dès maintenant notre agence des Maisons Balency d’Ormoy au (Numéro supprimé) pour obtenir davantage d’informations !Maisons BALENCY Agence d’Ormoy23 chemin de Tournenfils91540 ORMOYAnnonce proposée par un Agent Commercial Partenaire.
Saint-Fargeau-Ponthierry
TERRAIN ET MAISONOpportunité RARE à Saint-Fargeau-Ponthierry (77) !Élégante Demeure Contemporaine de 157 m² à bâtir par les Maisons Balency d’Ormoy sur un terrain de 274 m²Saisissez l’occasion de devenir propriétaire en Île de France, au coeur de la Seine et Marne, à partir de 435 000 € (terrain + maison, hors frais annexes) !Saint-Fargeau-Ponthierry vous offrira une qualité de vie incomparable avec ses commodités. La ligne R vous permettra de rejoindre Paris Gare de Lyon en moins d’une heure, tout comme l’A6, aisément accessible.Bénéficiez également de la présence de plusieurs écoles maternelles et primaires, d’un collège, ainsi que d’un lycée à proximité immédiate ou facilement accessible.Profitez de la célèbre Forêt de Fontainebleau, des bords de Seine, ainsi que d’infrastructures sportives et culturelles dans les environs.Ce terrain est l’endroit idéal pour concevoir et construire votre future chez-vous avec Les Maisons Balency d’Ormoy, (Groupe Hexaôm, 1ᵉʳ Constructeur de Maisons Individuelles en France).Pourquoi choisir notre agence d’Ormoy (23 chemin de Tournenfils, 91540 ORMOY) ?- Une Expertise Locale : Notre équipe, forte de plus de 25 ans d’expérience dans l’architecture et la construction, vous accompagne de A à Z.- Un Projet Personnalisé : Nous réaliserons pour vous une étude approfondie du PLU et des documents administratifs, un dessin 2D / insertion 3D réaliste de votre projet, et un chiffrage transparent (Terrain + Construction + Frais + Taxes) afin de sécuriser votre acquisition via un CCMI (Contrat de Construction de Maison Individuelle).- Un Engagement Qualité : Notre adage : « le diable se cache dans les détails ». Nous garantissons une construction sans surprise et respectueuse de la confiance de nos clients.- Des possibilités d’Investissement Locatif : Forte RentabilitéGrâce à l’attractivité de Saint-Fargeau-Ponthierry (proximité de Paris, cadre de vie, écoles), ce secteur est très recherché. Un investissement immobilier neuf of
Saint-Fargeau-Ponthierry
TERRAIN ET MAISONOpportunité RARE à Saint-Fargeau-Ponthierry (77), dès 285 000 € !Plain-pied en L de 90 m² à bâtir par les Maisons Balency d’Ormoy sur un terrain de 274 m²Devenez propriétaire d’une maison de 2 chambres, avec garage, à Saint-Fargeau-Ponthierry ; la commune vous offrira une qualité de vie incomparable avec ses diverses commodités. La ligne R vous permettra d’accéder à Paris Gare de Lyon en moins d’une heure, tout comme l’A6, aisément joignable.Profitez également de la présence de plusieurs groupes scolaires, d’un collège, ainsi que d’un lycée aisément accessibles.La célèbre Forêt de Fontainebleau se trouve également dans les environs, tout comme les bords de Seine, ainsi que plusieurs infrastructures sportives et culturelles.Ce terrain est l’endroit idéal pour concevoir et construire votre future chez-vous avec Les Maisons Balency d’Ormoy, (Groupe Hexaôm, 1ᵉʳ Constructeur de Maisons Individuelles en France).Pourquoi choisir notre agence d’Ormoy (23 chemin de Tournenfils, 91540 ORMOY) ?- Une Expertise Locale : Notre équipe, forte de plus de 25 ans d’expérience dans l’architecture et la construction, vous accompagne de A à Z.- Un Projet Personnalisé : Nous réaliserons pour vous une étude approfondie du PLU et des documents administratifs, un dessin 2D / insertion 3D réaliste de votre projet, et un chiffrage transparent (Terrain + Construction + Frais + Taxes) afin de sécuriser votre acquisition via un CCMI (Contrat de Construction de Maison Individuelle).- Un Engagement Qualité : Notre adage : « le diable se cache dans les détails ». Nous garantissons une construction sans surprise et respectueuse de la confiance de nos clients.- Des possibilités d’Investissement Locatif : Forte Rentabilité : Grâce à l’attractivité de Saint-Fargeau-Ponthierry (proximité de Paris, cadre de vie, écoles), ce secteur est très recherché. Un investissement immobilier neuf offre une forte rentabilité locative potentielle et l’avantage d’une construction optimi
Saint-Fargeau-Ponthierry
TERRAIN ET MAISONBelle Demeure Traditionnelle de 6 pièces à bâtir à Saint-Fargeau-Ponthierry (77310) – à partir de 350 000 € !Saisissez cette belle opportunité de construction : une maison familiale de 140 m² à bâtir sur un terrain de 274 m² idéalement situé, en Seine-et-Marne. Proche des commerces de proximité, du supermarché Carrefour Market, des écoles et du complexe sportif René Plard accessibles en quelques minutes, ce cadre de vie allie confort, modernité et sérénité. La gare de Ponthierry-Pringy, à quelques instants, permet de rejoindre Paris-Gare de Lyon en moins d’une heure grâce à la ligne R du Transilien. Melun et Évry-Courcouronnes se trouvent à environ vingt minutes, facilitant les déplacements quotidiens.Avec les Maisons Balency d’Ormoy, filiale du Groupe Hexaôm, 1er constructeur de maisons individuelles en France, réalisez une demeure entièrement sur-mesure ou inspirez-vous de nos modèles issus de nos catalogues. Toutes nos constructions respectent la réglementation environnementale RE2020, garantissant une performance énergétique optimale (DPE A ou B).Notre équipe vous accompagne de la recherche foncière jusqu’à la remise des clés de votre future maison. Contactez Les Maisons Balency d’Ormoy au (Numéro supprimé) !Annonce proposée par un Agent Commercial Partenaire.
Saint-Fargeau-Ponthierry
TERRAIN ET MAISON🏡 Maison Environnementale Haut-de-Gamme en bois – 114 m² à Saint-Fargeau-Ponthierry (77310)À partir de 473 000 €, découvrez cette magnifique maison en ossature bois de 5 chambres et de 2 salles-de-bains, à bâtir sur un terrain constructible de 508 m² situé à Saint-Fargeau-Ponthierry, en Seine-et-Marne. Conçue par Les Maisons Balency d’Ormoy, cette demeure associe élégance contemporaine, confort absolu et respect de l’environnement.Pensée pour aller au-delà des standards actuels, cette construction bois haut de gamme offre un habitat à la fois écologique et économique. Grâce à une conception optimisée et à une isolation renforcée, elle garantit des performances thermiques et acoustiques exceptionnelles, avec une résistance près de deux fois supérieure à celle d’un mur traditionnel. En limitant les déperditions d’énergie et en optimisant la gestion thermique, elle assure un confort de vie idéal en été comme en hiver tout en réduisant considérablement la consommation d’énergie.Le choix du bois, issu de forêts éco-gérées, permet une réduction de 65 % des déchets sur le chantier et un impact environnemental inférieur de 60 % à celui d’une maison classique. Matériau naturel et à bilan carbone positif, le bois offre une isolation deux fois plus performante que le béton ou la brique, sans nécessiter d’entretien particulier. La construction bénéficie d’une conception et d’un assemblage industrialisés – murs, plancher, charpente et menuiseries – garantissant une qualité de fabrication irréprochable et un montage ultra-rapide, en seulement une journée sur le chantier.Les Maisons Balency d’Ormoy, reconnues pour leur savoir-faire et la qualité certifiée de leurs réalisations françaises, vous accompagnent dans chaque étape de votre projet : étude personnalisée, aide à la recherche du terrain, conception sur mesure et suivi administratif complet.Idéalement située à Saint-Fargeau-Ponthierry (77310), la propriété bénéficie d’un environnement verdoyant et pais
Saint-Fargeau-Ponthierry
TERRAIN ET MAISONVaste Demeure Contemporaine de 8 pièces à bâtir à Saint-Fargeau-Ponthierry (77310) – à partir de 490 000 €Découvrez cette belle opportunité de construction d’une maison contemporaine d’environ 200 m² sur un terrain de 508 m² idéalement situé à Saint-Fargeau-Ponthierry, en Seine-et-Marne. Proche des commerces de proximité, du supermarché Carrefour Market, des écoles et du complexe sportif René Plard accessibles en quelques minutes, ce cadre de vie allie confort, modernité et sérénité. La gare de Ponthierry-Pringy, à quelques instants, permet de rejoindre Paris-Gare de Lyon en moins d’une heure grâce à la ligne R du Transilien. Melun et Évry-Courcouronnes se trouvent à environ vingt minutes, facilitant les déplacements quotidiens.Avec les Maisons Balency d’Ormoy, filiale du Groupe Hexaôm, 1er constructeur de maisons individuelles en France, réalisez une demeure entièrement sur-mesure ou inspirez-vous de nos modèles issus de nos catalogues. Toutes nos constructions respectent la réglementation environnementale RE2020, garantissant une performance énergétique optimale (DPE A ou B).Notre équipe vous accompagne de la recherche du terrain jusqu’à la remise des clés de votre future maison. Contactez Les Maisons Balency d’Ormoy au (Numéro supprimé) pour concrétiser votre projet de vie dans un environnement privilégié, entre nature, commodités et dynamisme francilien.Annonce proposée par un Agent Commercial Partenaire.
Saint-Fargeau-Ponthierry
TERRAIN ET MAISONBelle Maison de 5 pièces à construire à Saint-Fargeau-Ponthierry (77310) – à partir de 320 000 €Découvrez cette charmante demeure « Première Emprunte » de 90 m² à bâtir sur un terrain de 508 m², idéalement située à Saint-Fargeau-Ponthierry, en Seine-et-Marne. Ce projet, proposé spécifiquement par Les Maisons Balency d’Ormoy, filiale du Groupe Hexaôm, 1er constructeur de maisons individuelles en France, allie confort, performance et personnalisation.Nos maisons sont entièrement sur mesure ou peuvent être adaptées à partir de nos modèles existants, tout en respectant les dernières normes RE2020, garantissant un excellent niveau de performance énergétique (DPE A ou B).L’environnement est particulièrement agréable : écoles, commerces et supermarchés sont accessibles en quelques minutes, tout comme la gare de Saint-Fargeau-Ponthierry – Boissise-le-Roi (ligne R du Transilien) permettant de rejoindre Paris-Gare de Lyon en moins d’une heure. Les villes de Melun et Évry-Courcouronnes se trouvent à environ 20 minutes, offrant de nombreuses infrastructures et services complémentaires.Notre équipe des Maisons Balency d’Ormoy vous accompagne dans toutes les étapes de votre projet, de la recherche du terrain jusqu’à la remise des clés.Contactez-nous dès maintenant au (Numéro supprimé) pour donner vie à votre projet de construction en Île de France !Annonce proposée par un Agent Commercial Partenaire.
Saint-Fargeau-Ponthierry
TERRAIN ET MAISONPLAIN-PIED de 6 pièces à bâtir à Saint-Fargeau-Ponthierry (77310), dès 390 000 € !Réalisez votre projet de vie sur un terrain de 508 m² idéalement situé à Saint-Fargeau-Ponthierry, au coeur de la Seine-et-Marne. Nous vous proposons la construction d’un plain-pied moderne de 100 m², personnalisable selon vos envies. Chez Maisons Balency d’Ormoy, vous avez le choix entre une création 100 % sur-mesure ou l’adaptation de l’un de nos modèles issus de nos catalogues, toujours conformes à la réglementation RE2020, garantissant un DPE A ou B pour un confort durable et économe.Ce terrain bénéficie d’un emplacement privilégié, à proximité du centre commercial Carrefour Market, des écoles Jules-Ferry, du collège Marie-Curie et du gymnase Colette Besson, accessibles en seulement quelques minutes. La gare de Saint-Fargeau permet de rejoindre Paris Gare de Lyon en environ 40 minutes via la ligne R du Transilien. Les villes de Melun et Évry-Courcouronnes se trouvent à une quinzaine de minutes en voiture, offrant un large choix de services, commerces et pôles d’emploi.Faisant partie du Groupe Hexaôm, premier constructeur de maisons individuelles en France, Maisons Balency d’Ormoy vous accompagne dans toutes les étapes de votre projet, de la recherche du terrain jusqu’à la remise des clés.Contactez notre agence au (Numéro supprimé) pour concrétiser votre projet de construction dans les meilleures conditions !Annonce proposée par un Agent Commercial Partenaire.
L’actualité immobilière à Lieusaint
27/11/2023
02/11/2023
30/10/2023
20/10/2023
16/10/2023
16/10/2023