Maison à construire à Limoges-Fourches (77550)
Images
Description
Limoges-Fourches, en Île de France (77550) : Votre Spacieuse Maison Familiale RE2020 sur un terrain VIABILISÉ, dès 375 000 € !
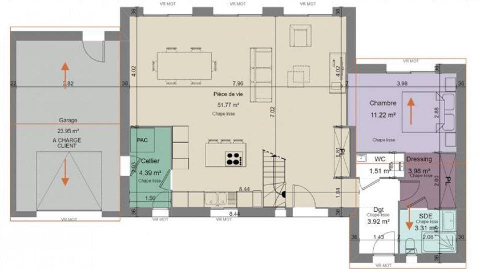
Offrez à votre famille l'espace et le confort dont elle rêve avec ce projet de construction d'une charmante demeure traditionnelle de 120 m², à bâtir sur un beau terrain viabilisé.
Pour 375 000 € (hors frais de notaire et frais annexes du terrain), imaginez des moments de partage inoubliables dans une maison pensée pour la vie de famille, tout en bénéficiant des dernières innovations en matière de performance énergétique grâce à la norme RE2020. Que vous soyez une famille nombreuse ayant besoin d'espace pour chacun, un jeune couple planifiant l'avenir, ou des personnes recherchant une maison confortable et évolutive, ce projet répondra à vos attentes.
Profitez d'un emplacement idéal, alliant la tranquillité d'un village à la proximité des commodités essentielles :
Pour vos courses et besoins quotidiens : Le Super U de Tournan-en-Brie se trouve à seulement 5 minutes en voiture.
Pour l'éducation et l'épanouissement de vos enfants : L'École primaire Les Prés de Gretz-Armainvilliers est à environ 8 minutes en voiture, et le Collège Georges Brassens de Tournan-en-Brie est accessible en 7 minutes.
Pour vos déplacements professionnels ou personnels : La gare de Tournan (lignes P du Transilien) est à 6 minutes en voiture, vous offrant des liaisons pratiques vers Paris et les environs.
Pour vos loisirs en famille : Le Parc des Sports de Tournan-en-Brie, avec ses nombreuses infrastructures, est à moins de 10 minutes.
Choisissez la qualité et la fiabilité de Maisons Balency, (Groupe Hexaôm, 1er constructeur de maisons individuelles en France), pour la réalisation de votre projet. Nous vous accompagnons de la conception à la construction de votre maison familiale RE2020, en vous garantissant un résultat à la hauteur de vos exigences.
Contactez dès maintenant notre agence des Maisons Balency d'Ormoy pour découvrir tous les détails de ce
Logement susceptibles de vous intéresser
Nous vous proposons de découvrir aussi cette sélection de logements situés à moins de 10km de Limoges-Fourches et qui seraient susceptibles de vous intéresser.
Guignes
TERRAINGuignes : terrain de 748 m² en venteEMPLACEMENT PRIVILÉGIÉ – PROCHE DE CRÉTEILÀ côté de la gare de Verneuil-l’Étang (Paris à 30 min avec le Transilien P) à Guignes (77390), grand terrain. Réalisez-y la maison de vos rêves. Il bénéficie d’une exposition sud-ouest. Dans un quartier attractif, ce terrain bénéficiant d’un emplacement privilégié est proche des écoles et des commerces. On trouve l’École Élémentaire André Siméon et l’École Maternelle André Siméon dans la commune. Niveau transports en commun, il y a deux gares (Verneuil-l’Étang et Mormant) à moins de 10 minutes en voiture. Il y a deux boulangeries, quatre commerces, un bureau de poste et deux épiceries à proximité.Son prix de vente est de 129 000 €. Prenez contact avec Alan RUBAL ((Numéro supprimé)) pour plus d’informations sur le terrain ou sur les modalités de vente. Maisons France Confort Magny-le-Hongre vous accompagne dans toutes vos démarches et dans tous vos projets immobiliers.Annonce proposée par un Agent Commercial Partenaire.
Guignes
TERRAIN ET MAISONVENTE d’une maison T7 (120 m²) à GuignesEMPLACEMENT PRIVILÉGIÉ – MAISON 7 PIÈCES NEUVEAu pied du Transilien P (gare de Verneuil-l’Étang, 30 min de Paris), votre agence Maisons France Confort Magny-le-Hongre est heureuse de vous présenter en vente, bénéficiant d’un emplacement privilégié dans Guignes (77390), cette maison de 7 pièces de 120 m². Elle comporte cinq chambres, une cuisine et deux salles de bains.Le terrain du bien s’étend sur 748 m².Il s’agit d’une maison de 2 niveaux. Elle est neuve.La maison est située dans un quartier convoité. On y trouve l’École Élémentaire André Siméon et l’École Maternelle André Siméon. Niveau transports en commun, on trouve les gares Verneuil-l’Étang et Mormant à moins de 10 minutes en voiture. Il y a deux boulangeries, quatre commerces, deux épiceries et un bureau de poste à quelques minutes à peine.Son prix de vente est de 345 000 €.Contactez Alan RUBAL ((Numéro supprimé)) pour tout renseignement sur la maison, sur les modalités de vente ou sur les démarches à suivre.Annonce proposée par un Agent Commercial Partenaire.
Guignes
TERRAIN ET MAISONVENTE d’une maison de 5 pièces (105 m²) à GuignesEMPLACEMENT PRIVILÉGIÉ – MAISON 5 PIÈCES NEUVEEn vente : à proximité du Transilien P (gare de Verneuil-l’Étang, 30 min de Paris), bénéficiant d’un emplacement d’exception dans Guignes (77390), Maisons France Confort Magny-le-Hongre vous propose cette maison de 5 pièces de plain-pied de 105 m².Son intérieur inclut quatre chambres, une cuisine et deux salles de bains. Cette maison est neuve.Le terrain de la propriété s’étend sur 748 m².La maison se situe dans un secteur attractif. On y trouve l’École Élémentaire André Siméon et l’École Maternelle André Siméon. Côté transports, on trouve les gares Verneuil-l’Étang et Mormant à moins de 10 minutes en voiture. Il y a deux boulangeries, quatre commerces, deux épiceries et un bureau de poste à proximité de la maison.Elle est à vendre pour la somme de 318 000 €.Contactez Alan RUBAL (tél : (Numéro supprimé)) pour tout renseignement sur la propriété. Concrétisez vos projets immobiliers avec Maisons France Confort Magny-le-Hongre.Annonce proposée par un Agent Commercial Partenaire.
Guignes
TERRAIN ET MAISONVENTE : maison de 8 pièces (145 m²) à GuignesEMPLACEMENT PRIVILÉGIÉ – MAISON 8 PIÈCES NEUVEÀ proximité du Transilien P (gare de Verneuil-l’Étang, 30 min de Paris), à vendre bénéficiant d’un emplacement privilégié dans Guignes (77390), nous vous proposons cette maison de 8 pièces de 145 m² et de 748 m² de terrain. Elle comporte six chambres, une cuisine et deux salles de bains.Cette maison possède 2 niveaux. Elle est neuve.Cette maison se situe dans un secteur convoité. L’École Élémentaire André Siméon et l’École Maternelle André Siméon y sont implantées. Côté transports, il y a deux gares (Verneuil-l’Étang et Mormant) à moins de 10 minutes en voiture. On trouve deux boulangeries, quatre commerces, deux épiceries et un bureau de poste dans les environs.Elle est à vendre pour la somme de 390 000 €.Prenez contact avec Alan RUBAL ((Numéro supprimé)) pour toute information sur la maison ou sur les démarches à suivre. Donnez vie à vos projets immobiliers avec Maisons France Confort Magny-le-Hongre.Annonce proposée par un Agent Commercial Partenaire.
Guignes
TERRAIN ET MAISONVENTE : maison F5 (90 m²) à GuignesEMPLACEMENT PRIVILÉGIÉ – MAISON 5 PIÈCES NEUVEProche de la gare de Verneuil-l’Étang (Paris à 30 min avec le Transilien P), votre agence Maisons France Confort Magny-le-Hongre est ravie de vous proposer cette maison de 5 pièces de plain-pied de 90 m² à vendre, bénéficiant d’un emplacement privilégié dans Guignes (77390). Elle inclut trois chambres, une cuisine et deux salles de bains.Le terrain de la maison s’étend sur 748 m².Cette maison est neuve.Cette maison se trouve dans un secteur convoité. L’École Élémentaire André Siméon et l’École Maternelle André Siméon y sont implantées. Niveau transports, il y a deux gares (Verneuil-l’Étang et Mormant) à moins de 10 minutes en voiture. On trouve deux boulangeries, quatre commerces, un bureau de poste et deux épiceries à quelques minutes.Elle est à vendre pour la somme de 291 000 €.N’hésitez pas à prendre contact avec notre constructeur (RUBAL Alan : (Numéro supprimé)) pour toute information sur la maison. Concrétisez vos projets immobiliers avec Maisons France Confort Magny-le-Hongre.Annonce proposée par un Agent Commercial Partenaire.
Guignes
TERRAIN ET MAISONGuignes : maison F6 (122 m²) à vendreEMPLACEMENT PRIVILÉGIÉ – MAISON 6 PIÈCES NEUVEÀ côté du Transilien P (gare de Verneuil-l’Étang, 30 min de Paris), laissez vous charmer par à vendre, bénéficiant d’un emplacement d’exception dans Guignes (77390), cette maison de 6 pièces de 122 m² et de 748 m² de terrain. Son intérieur dispose de quatre chambres, d’une cuisine et de deux salles de bains.C’est une maison de 2 niveaux. Elle est neuve.La maison se trouve dans un quartier convoité. L’École Élémentaire André Siméon et l’École Maternelle André Siméon y sont implantées. Niveau transports en commun, il y a les gares Verneuil-l’Étang et Mormant à moins de 10 minutes en voiture. On trouve deux boulangeries, quatre commerces, deux épiceries et un bureau de poste à proximité du logement.Elle est à vendre pour la somme de 348 600 €.Prenez contact avec Alan RUBAL (tél : (Numéro supprimé)) pour toute question sur la maison ou sur les démarches à suivre. Maisons France Confort Magny-le-Hongre vous accompagne à toutes les étapes de l’achat et dans tous vos projets immobiliers.Annonce proposée par un Agent Commercial Partenaire.
Grisy-Suisnes
TERRAINPrix : 210000 €.Sur ce terrain de 640 m² à GRISY-SUISNES, Maisons Clairval vous propose de réaliser votre projet de construction de maison individuelle.Maisons Clairval propose de construire votre maison neuve avec toutes les prestations suivantes :- Plan sur-mesure et personnalisé de 2 à 6 chambres- Mode de chauffage au choix- Grands choix d'équipements et de prestations- Matériaux de qualité selon les normes en vigueur- Accompagnement dans le choix et l’acquisition du terrain- Construction conforme à la nouvelle RE 2020Demandez une étude gratuite et personnalisée de votre projet de construction sur ce terrain !Contactez Nicolas REBOUL au (Numéro supprimé) ou au (Numéro supprimé) (Maisons Clairval – Agence de Villemoisson).Prix hors frais de notaire. Terrain sélectionné et vu pour vous sous réserve de disponibilité et au prix indiqué par notre partenaire foncier. Conditions et visuels non contractuels.Cette annonce a été créée et diffusée avec le logiciel VITAHOME.
Limoges-Fourches
TERRAINPrix : 125000 €.Sur ce terrain de 518 m² à LIMOGES-FOURCHES, Maisons Clairval vous propose de réaliser votre projet de construction de maison individuelle.Maisons Clairval propose de construire votre maison neuve avec toutes les prestations suivantes :- Plan sur-mesure et personnalisé de 2 à 6 chambres- Mode de chauffage au choix- Grands choix d'équipements et de prestations- Matériaux de qualité selon les normes en vigueur- Accompagnement dans le choix et l’acquisition du terrain- Construction conforme à la nouvelle RE 2020Demandez une étude gratuite et personnalisée de votre projet de construction sur ce terrain !Contactez Nicolas REBOUL au (Numéro supprimé) ou au (Numéro supprimé) (Maisons Clairval – Agence de Villemoisson).Prix hors frais de notaire. Terrain sélectionné et vu pour vous sous réserve de disponibilité et au prix indiqué par notre partenaire foncier. Conditions et visuels non contractuels.Cette annonce a été créée et diffusée avec le logiciel VITAHOME.
Moissy-Cramayel
TERRAINDans un secteur recherché proche centre ville, commerces de proximité, écoles, transports en commun.Prix : 177000 €.Sur ce terrain de 403 m² à MOISSY-CRAMAYEL, Maisons Clairval vous propose de réaliser votre projet de construction de maison individuelle.Maisons Clairval propose de construire votre maison neuve avec toutes les prestations suivantes :- Plan sur-mesure et personnalisé de 2 à 6 chambres- Mode de chauffage au choix- Grands choix d'équipements et de prestations- Matériaux de qualité selon les normes en vigueur- Accompagnement dans le choix et l’acquisition du terrain- Construction conforme à la nouvelle RE 2020Demandez une étude gratuite et personnalisée de votre projet de construction sur ce terrain !Contactez Nicolas REBOUL au (Numéro supprimé) ou au (Numéro supprimé) (Maisons Clairval – Agence de Villemoisson).Prix hors frais de notaire. Terrain sélectionné et vu pour vous sous réserve de disponibilité et au prix indiqué par notre partenaire foncier. Conditions et visuels non contractuels.Cette annonce a été créée et diffusée avec le logiciel VITAHOME.
L’actualité immobilière à Limoges-Fourches
27/11/2023
02/11/2023
30/10/2023
20/10/2023
16/10/2023
16/10/2023