Maison à construire à Livry-sur-Seine (77000)
Images
Description
Livry-sur-Seine : maison T5 (80 m²) en vente
PROCHE D'ÉVRY-COURCOURONNES - MAISON 5 PIÈCES NEUVE
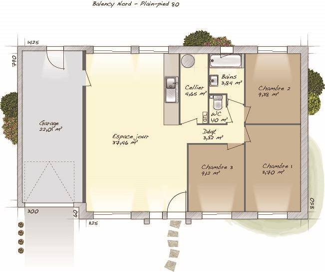
En vente : à quelques kilomètres d'Évry-Courcouronnes, notre agence Maisons Balency Saint-Maur-des-Fossés est ravie de vous présenter cette maison de 5 pièces de plain-pied de 80 m² à Livry-sur-Seine (77000).
Son intérieur se divise en trois chambres, une cuisine et une salle de bains. La maison est neuve.
Le terrain du bien s'étend sur 745 m².
Des écoles maternelles et élémentaires sont implantées dans le quartier et une crèche. Niveau transports, il y a la gare Livry-sur-Seine à moins de 10 minutes à pied. On trouve un tennis, une boulangerie, une épicerie et une boucherie-charcuterie à quelques minutes du logement.
Elle est proposée à l'achat pour 369 000 €.
N'hésitez pas à prendre contact avec Aurelien MONTANIER (tél : (Numéro supprimé)) pour plus d'informations sur la maison, sur les démarches à suivre ou sur les modalités de vente.
Annonce proposée par un Agent Commercial Partenaire.
Logement susceptibles de vous intéresser
Nous vous proposons de découvrir aussi cette sélection de logements situés à moins de 10km de Livry-sur-Seine et qui seraient susceptibles de vous intéresser.
Dammarie-les-Lys
TERRAINPrix : 153000 €.Sur ce terrain de 553 m² à DAMMARIE-LES-LYS, Maisons Clairval vous propose de réaliser votre projet de construction de maison individuelle.Maisons Clairval propose de construire votre maison neuve avec toutes les prestations suivantes :- Plan sur-mesure et personnalisé de 2 à 6 chambres- Mode de chauffage au choix- Grands choix d'équipements et de prestations- Matériaux de qualité selon les normes en vigueur- Accompagnement dans le choix et l’acquisition du terrain- Construction conforme à la nouvelle RE 2020Demandez une étude gratuite et personnalisée de votre projet de construction sur ce terrain !Contactez Nicolas REBOUL au (Numéro supprimé) ou au (Numéro supprimé) (Maisons Clairval – Agence de Villemoisson).Prix hors frais de notaire. Terrain sélectionné et vu pour vous sous réserve de disponibilité et au prix indiqué par notre partenaire foncier. Conditions et visuels non contractuels.Cette annonce a été créée et diffusée avec le logiciel VITAHOME.
Le Mée-sur-Seine
TERRAINPrix : 162500 €.Sur ce terrain de 500 m² à LE MEE-SUR-SEINE, Maisons Clairval vous propose de réaliser votre projet de construction de maison individuelle.Maisons Clairval propose de construire votre maison neuve avec toutes les prestations suivantes :- Plan sur-mesure et personnalisé de 2 à 6 chambres- Mode de chauffage au choix- Grands choix d'équipements et de prestations- Matériaux de qualité selon les normes en vigueur- Accompagnement dans le choix et l’acquisition du terrain- Construction conforme à la nouvelle RE 2020Demandez une étude gratuite et personnalisée de votre projet de construction sur ce terrain !Contactez Nicolas REBOUL au (Numéro supprimé) ou au (Numéro supprimé) (Maisons Clairval – Agence de Villemoisson).Prix hors frais de notaire. Terrain sélectionné et vu pour vous sous réserve de disponibilité et au prix indiqué par notre partenaire foncier. Conditions et visuels non contractuels.Cette annonce a été créée et diffusée avec le logiciel VITAHOME.
Le Châtelet-en-Brie
TERRAINVENTE d’un terrain de 400 m² au Châtelet-en-BriePROCHE D’ÉVRY-COURCOURONNESAu Châtelet-en-Brie (77820) à côté de la gare de Bois-le-Roi (Paris à 35 min par le Transilien R), donnez vie à la maison de vos rêves sur ce terrain de 400 m². Le terrain est proche des écoles et des commerces. Il y a cinq établissements scolaires à moins de 10 minutes à pied, tout comme une crèche. Niveau transports, on trouve six gares à moins de 10 minutes en voiture. On trouve une bibliothèque, des commerces, une boulangerie, une boucherie-charcuterie et un bureau de poste à proximité.Il est proposé à l’achat pour 123 000 €. Contactez Jerome RAOUX ((Numéro supprimé)) pour tout renseignement sur ce terrain ou sur les modalités de vente. Concrétisez vos projets immobiliers avec Maisons France Confort Nemours.Annonce proposée par un Agent Commercial Partenaire.
Le Châtelet-en-Brie
TERRAIN ET MAISONVENTE : maison F5 (90 m²) au Châtelet-en-BriePROCHE D’ÉVRY-COURCOURONNES – MAISON 5 PIÈCES NEUVEÀ deux pas du Transilien R (gare de Bois-le-Roi, 35 min de Paris), Maisons France Confort Nemours vous présente cette maison de 5 pièces de 90 m² et de 400 m² de terrain au Châtelet-en-Brie (77820). Son intérieur offre trois chambres, une cuisine et une salle de bains.Cette maison compte 2 niveaux. Elle est neuve.Cinq établissements scolaires se trouvent à moins de 10 minutes à pied, tout comme une structure d’accueil pour la petite enfance. Niveau transports, il y a six gares à moins de 10 minutes en voiture. On trouve une bibliothèque, des commerces, une boulangerie, un bureau de poste et une boucherie-charcuterie à proximité.Elle est proposée à l’achat pour 330 000 €.Contactez Jerome RAOUX ((Numéro supprimé)) pour toute information sur cette maison. Donnez vie à vos projets immobiliers avec Maisons France Confort Nemours.Annonce proposée par un Agent Commercial Partenaire.
Le Châtelet-en-Brie
TERRAIN ET MAISONVENTE d’une maison T4 (70 m²) au Châtelet-en-BrieMAISON 4 PIÈCES NEUVE – PROCHE D’ÉVRY-COURCOURONNESÀ quelques minutes du Transilien R (gare de Bois-le-Roi, 35 min de Paris), en vente au Châtelet-en-Brie (77820), votre agence Maisons France Confort Nemours est heureuse de vous présenter cette maison de 4 pièces de plain-pied de 70 m² et de 400 m² de terrain. Son intérieur propose deux chambres, une cuisine et une salle de bains.Cette maison est neuve.Il y a cinq établissements scolaires à moins de 10 minutes à pied, tout comme une structure d’accueil pour les tout-petits. Niveau transports, on trouve six gares à moins de 10 minutes en voiture. On trouve une bibliothèque, des commerces, une boulangerie, un bureau de poste et une boucherie-charcuterie à quelques minutes.Elle est proposée à l’achat pour 299 000 €.Contactez notre constructeur (Jerome RAOUX : (Numéro supprimé)) pour obtenir de plus amples informations sur cette maison, sur les démarches à suivre ou sur les modalités de vente. Maisons France Confort Nemours est là pour vous accompagner dans tous vos projets immobiliers.Annonce proposée par un Agent Commercial Partenaire.
Moisenay
TERRAIN ET MAISONContactez Stéphanie SEBAG de l’agence Maisons Evolution de Mareuil-lès-Meaux au (Numéro supprimé) pour avoir plus d’informations sur ce projet.Jolie maison traditionnelle à étage de 100 m² habitables avec garage accolé idéalement située sur la commune de MOISENAYElle est composée de 4 chambres au total (dont une au rez-de-chaussée) d’une ou deux salles de bains, de deux WC, et d’un grand salon-séjour lumineux avec cuisine ouverte.Les plans sont modifiables selon vos souhaits, en agence ou visioconférence. Nous vous proposons un véritable accompagnement de qualité tout au long de votre projet.Dessinons ensemble votre future maison !Tel: (Numéro supprimé)Annonce proposée par un Agent Commercial Partenaire.
Vaux-le-Pénil
TERRAIN ET MAISONContactez Stéphanie SEBAG de l’agence Maisons Evolution de Mareuil-lès-Meaux au (Numéro supprimé) pour avoir plus d’informations sur ce projet.Jolie maison traditionnelle à étage de 100 m² habitables avec garage accolé idéalement située sur la commune de VAUX-LE-PENILElle est composée de 4 chambres au total (dont une au rez-de-chaussée) d’une ou deux salles de bains, de deux WC, et d’un grand salon-séjour lumineux avec cuisine ouverte.Les plans sont modifiables selon vos souhaits, en agence ou visioconférence. Nous vous proposons un véritable accompagnement de qualité tout au long de votre projet.Dessinons ensemble votre future maison !Tel: (Numéro supprimé)Annonce proposée par un Agent Commercial Partenaire.
Vaux-le-Pénil
TERRAINL’Agence Maisons évolution vous propose un terrain de 352 m² sur la commune de VAUX-LE-PENILGare de Melun (Paris à 30 min par le Transilien R)Proche des commerces et écoles maternelle, élémentaire et collègeContactez Stephanie SEBAG (tél : (Numéro supprimé)) pour toute information sur ce terrain.Annonce proposée par un Agent Commercial Partenaire.
Moisenay
TERRAINVotre agence Maisons Evolution vous propose, grâce à ses partenaires fonciers, sur la commune recherchée de MOISENAY, à 8 km de Melun9 Terrains constructible de 313 m² à 539m² Façade des terrains de 9ml à 16.60ml.Les tarifs varies de 120 000€ à 132 0000€Frais de notaire réduit , prêt à taux zéroPour plus d’informations contactez Stéphanie SEBAG au (Numéro supprimé).Toutes nos maisons sont personnalisables et modulables. Dessinons ensemble votre future maison !Annonce proposée par un Agent Commercial Partenaire.
L’actualité immobilière à Livry-sur-Seine
27/11/2023
02/11/2023
30/10/2023
20/10/2023
16/10/2023
16/10/2023